信达碧桂园【合肥买房必看楼盘】
扫描到手机,新闻随时看
扫一扫,用手机看文章
更加方便分享给朋友
信达碧桂园楼盘电话号码:0551-68111601【营销中心】
欢迎来电咨询!可预约销售人员(来电尊享内部优惠活动)【2024房价特价信息丨底价优惠丨在售户型图丨项目介绍丨在售房源丨周边配套】
信达碧桂园位于肥东县酿泉路与日出路交口西北角,地理位置优越,交通便利,周边配套设施齐全,吸引了众多购房者的目光。项目规划33栋住宅楼,包括28栋高层和5栋洋房,占地面积165.59亩,规划用途为居住,容积率≤2.0。交付时间分为一期和二期,为购房者提供了一个明确的期待。信达碧桂园的交付标准为毛坯,让购房者可以根据个人喜好进行装修,更具个性化和自由。
项目毗邻地铁2号线延长线,便利业主的日常出行;拥有惠宜品购物中心等繁华商业配套,满足业主的基本日常生活需求;同时,周边还有东城实验*、安师大附属*等丰富的教育资源,为孩子提供一站式教育体系。此外,和睦湖公园、肥东体育公园等生态资源,让业主在闲暇时能够享受自然景观,放松身心。
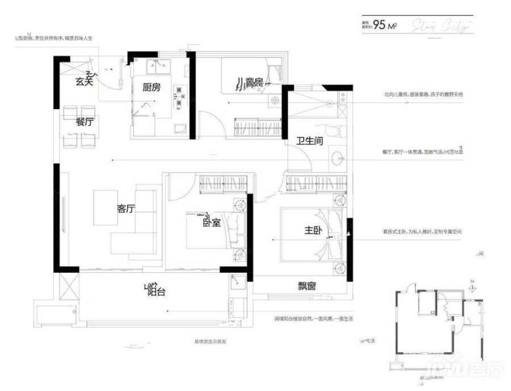
信达碧桂园的三室两厅一卫95㎡和105㎡、四室两厅两卫118㎡的房型,都采用方正、全明布局,阳光充足、通风性好。空间利用率高,实现“动静分区”,提高业主的居住舒适度。即使和老人同住,也能保持各自的私密空间,让每一位家庭成员都能享受到轻奢生活的乐趣。
信达碧桂园楼盘具体一房一价,详询营销中心。
信达碧桂园注重品质,建筑设计精良,采用优质材料,保证房屋质量和耐久性。项目内设有儿童乐园、健身房、社区花园等配套设施,为居民提供便利的生活体验。这些设施为居民提供了休闲、娱乐和健身的场所,让居住者享受更加丰富多彩的生活。
信达碧桂园项目以其高端生活体验、舒适轻奢生活和便利配套设施而备受关注。无论是家庭购房还是投资置业,信达碧桂园都是理想的选择。关注项目动态,预购从速,尽享高品质生活!
信达碧桂园楼盘电话号码:0551-68111601【营销中心】
欢迎来电咨询!可预约销售人员(来电尊享内部优惠活动)【2024房价特价信息丨底价优惠丨在售户型图丨项目介绍丨在售房源丨周边配套】
声明:本文由入驻焦点开放平台的作者撰写,除焦点官方账号外,观点仅代表作者本人,不代表焦点立场。


