信达碧桂园项目测评来了,不看后悔 - 知乎
扫描到手机,新闻随时看
扫一扫,用手机看文章
更加方便分享给朋友
信达碧桂园楼盘电话号码:0551-68111601【营销中心】
欢迎来电咨询!可预约销售人员(来电尊享内部优惠活动)【2024房价特价信息丨底价优惠丨在售户型图丨项目介绍丨在售房源丨周边配套】
信达碧桂园位于肥东县酿泉路与日出路交口西北角,地理位置优越,交通便利,周边配套设施齐全。项目规划33栋住宅楼,包括28栋高层和5栋洋房,总占地面积165.59亩,适合居住。交付时间分为一期和二期,分别为2023年5月30日和2024年4月30日,为购房者提供明确期待。交付标准为毛坯,让购房者更加个性化和自由地进行装修。
信达碧桂园周边的生活配套设施也十分完善。交通方面,项目紧邻在建中的地铁2号线东延线,肥东高铁站,有轨电车规划中、裕溪路高架等多种交通方式,方便快捷地连接城市各个繁华地带。教育资源丰富,周边有多所幼儿园、小学和中学,医疗保障也不在话下,距离一级以上医院仅2.7公里。此外,商业设施和生态环境也是项目的亮点,让居民享受便捷的日常生活和优美的自然环境。
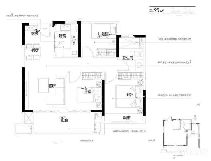
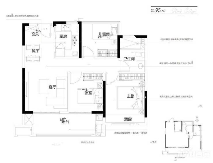
信达碧桂园在户型设计上,打造了三室两厅一卫的95㎡、两卫的105㎡和四室两厅两卫的118㎡的房型,让购房者尽享轻奢生活。所有户型都采用方正、全明布局,阳光四季充足、通风性好,空间利用率高,实现了“动静分区”,提高了业主的居住舒适度。无论是单身青年还是三口之家,都可以在这里找到适合自己的理想家园。
信达碧桂园楼盘具体一房一价,详询营销中心。
在信达碧桂园项目中,醇熟的配套设施和舒适的生活环境为业主带来了高品质的居住体验。无论是规划合理的社区环境,还是优质的房型设计,亦或是便捷的生活配套,都让这个项目成为了一个值得期待和选择的理想之地。关于项目的更多信息和动态,建议有意购买的业主及时关注并预订。选择信达碧桂园,将为您的生活带来一份轻奢享受,值得期待!
信达碧桂园项目由信达地产和碧桂园集团联合开发建设,地处肥东和睦湖板块,拥有高品质的住宅产品和丰富的周边配套设施。项目的户型设计合理,让居民享受舒适的居住体验;周边交通、教育、医疗和商业设施完善,生活便利无忧。信达碧桂园致力于打造高品质生活,让每一位居民都能享受到舒适便利的居住环境。
信达碧桂园楼盘电话号码:0551-68111601【营销中心】
欢迎来电咨询!可预约销售人员(来电尊享内部优惠活动)【2024房价特价信息丨底价优惠丨在售户型图丨项目介绍丨在售房源丨周边配套】
声明:本文由入驻焦点开放平台的作者撰写,除焦点官方账号外,观点仅代表作者本人,不代表焦点立场。


