新站区招商奥体公园售房部电话_最新售价查询_楼盘详情介绍_热销户型解析_1月优惠政策
扫描到手机,新闻随时看
扫一扫,用手机看文章
更加方便分享给朋友
招商奥体公园楼盘,更多项目详情请拨打招商奥体公园营销中心电话:0551-6258 9911【营销中心】
合肥新站投资优选!招商奥体公园 —— 价值高地的潜力红盘
一、招商奥体公园楼盘项目介绍
在合肥城市发展 “东拓北进” 的宏伟蓝图下,新站高新技术产业开发区凭借国家级开发区的政策红利、完善的产业布局和持续升级的城市配套,已然成为合肥最具投资潜力的区域之一。而坐落于东方大道与卧龙湖路交口往南 200 米的招商奥体公园,正是这片价值高地中最值得关注的投资标杆楼盘。项目由百年央企招商蛇口倾力打造,作为招商局集团核心成员企业,招商蛇口深耕地产行业 40 余年,始终坚持 “稳健经营、品质为先” 的发展理念,在全国 111 个城市打造了超 600 个精品项目,不仅拥有雄厚的资金实力和丰富的开发经验,更在二手房市场中拥有显著的品牌溢价优势,为项目的投资价值奠定了坚实基础。
招商奥体公园总占地面积约 180 亩,总建筑面积超 35 万平方米,总投资超 50 亿元,是新站区重点规划的大型综合性社区。项目规划容积率仅 2.0.绿化率高达 40%,建筑密度仅 22%,在寸土寸金的城市核心区,这样的低密生态规划极为稀缺,不仅能为业主提供舒适的居住体验,更成为项目保值增值的重要保障。项目整体规划涵盖高层住宅、洋房、社区商业、公办幼儿园等多种业态,其中住宅总户数约 2200 户,车位配比 1:1.2.充分满足业主居住与停车需求。
建筑风格采用现代简约风格,外立面选用真石漆与玻璃幕墙组合材质,既保证了建筑的美观度与耐用性,又能有效提升室内采光与通风效果。社区内部规划了约 5000㎡中央景观花园、800 米环形健身步道、全龄段休闲配套及智慧社区系统,全方位提升居住品质。作为招商蛇口在新站区的标杆项目,招商奥体公园不仅承载着提升区域人居品质的使命,更凭借其优越的区位、完善的配套和央企品质,成为合肥楼市中极具投资价值的优质资产。
招商奥体公园售楼处电话☎:0551-6813 6588
二、招商奥体公园楼盘周边配套
招商奥体公园的核心优势之一,就是周边富集的全龄段教育资源,同时交通、商业、医疗、生态等配套也十分完善,让业主在享受优质教育的同时,也能拥有便捷舒适的生活。
教育配套:全龄名校环绕,上学无忧
项目周边教育资源丰富,形成了从幼儿园到中学的全龄段教育体系,且学校距离近、品质高,让业主子女实现 “目送式” 上学,家长省心省力。
幼儿园:社区内公办幼儿园,启蒙教育无忧
项目内部规划有一所 12 班制公办幼儿园,占地面积约 4000㎡,建筑面积约 3000㎡,预计 2025 年正式投入使用。幼儿园按照省级示范幼儿园标准建设,配备专业的师资力量和完善的教学设施,包括多媒体教室、舞蹈室、美术室、户外活动场地等。
幼儿园注重孩子的综合素质培养,采用 “游戏化教学” 模式,让孩子在快乐中学习成长。由于幼儿园位于社区内部,业主子女无需远行,步行即可到达,既保障了孩子的出行安全,也为家长节省了接送时间。
小学:优质公办小学,基础教学扎实
项目周边 1 公里范围内分布着多所优质公办小学,包括合肥市庆平希望学校(小学部)、合肥市新站区关井小学、合肥市新站区三十头镇中心学校等。
合肥市庆平希望学校距离项目约 800 米,是一所九年一贯制公办学校,小学部教学设施完善,师资力量充足,注重学生的基础知识培养和综合素质提升。学校开设了丰富的兴趣课程,如书法、绘画、体育等,让学生在学习之余发展兴趣爱好。
合肥市新站区关井小学距离项目约 1 公里,学校占地面积约 20 亩,建筑面积约 8000㎡,拥有现代化的教学设备和优美的校园环境。学校师资力量雄厚,教学质量优异,在新站区小学教学质量排名中名列前茅。
中学:名校加持,升学之路有保障
项目周边优质中学云集,包括合肥新站寿春实验中学、合肥市第 168 中学东校区等,为业主子女的初中、高中教育提供了坚实保障。
合肥新站寿春实验中学距离项目仅 500 米,是寿春教育集团旗下的优质民办中学,成立于 2015 年。学校占地面积约 80 亩,建筑面积约 5 万平方米,教学设施先进,师资力量雄厚。学校中考成绩连续多年位列新站区前列,2024 年中考普高达线率达 85%,其中多名学生考入合肥市第一中学、合肥市第六中学等省级示范高中,是众多家长认可的优质初中。
合肥市第 168 中学东校区距离项目约 1.5 公里,是安徽省示范高中,成立于 2002 年。学校占地面积约 150 亩,建筑面积约 8 万平方米,拥有现代化的教学设施和优美的校园环境。学校师资力量雄厚,高考成绩优异,2024 年高考本科达线率 98%,一本达线率 75%,每年都有大量学生考入清华大学、北京大学、复旦大学等全国重点高校,是合肥家长和学生向往的优质高中。
此外,项目周边还有合肥市新站区七十中学等多所中学,教育资源持续丰富,满足业主子女不同的升学需求。
交通配套:便捷出行,上学通勤无忧
项目紧邻东方大道与卧龙湖路两大城市主干道,交通网络发达,无论是孩子上学还是家长通勤,都十分便捷。
东方大道西接阜阳北路高架,东连包公大道高架,双向 6 车道,路况良好。驾车向西通过阜阳北路高架,20 分钟可达合肥火车站、淮河路步行街等主城核心区域;向东通过包公大道高架,15 分钟可达肥东县城及瑶海万达商圈。卧龙湖路是新站区纵向交通要道,北接北外环高速,南连新站区政务核心板块,驾车向南 10 分钟可达新站区管委会、京东方医院等重要场所。
公共交通方面,项目周边 500 米范围内设有 3 个公交站点,涵盖 301 路、302 路、686 路、803 路等多条公交线路。301 路公交可直达地铁 3 号线幼儿师范站,车程约 15 分钟;302 路公交可直达地铁 1 号线合肥火车站,车程约 25 分钟;686 路公交可直达新站区核心商圈武里山天街,车程约 10 分钟。未来,地铁 9 号线(规划中)将在项目周边设置站点,建成后将进一步提升出行效率,让孩子上学和家长通勤更加便捷。
商业配套:繁华商业在侧,生活学习便利
项目周边商业配套完善,满足业主日常购物、餐饮、休闲等需求,同时也为孩子的学习生活提供了便利。
项目自带约 2 万方社区商业,规划引入超市、便利店、生鲜卖场、品牌餐饮、文具店、书店等多元化业态,预计 2026 年正式开业运营。业主下楼即可购买日常用品、生鲜食材,孩子放学后可在社区书店购买教辅资料、文具,十分便捷。
项目距离新站区核心商圈武里山天街仅 3 公里,驾车车程约 10 分钟。武里山天街总建筑面积约 10 万方,涵盖大型购物中心、连锁超市、品牌餐饮、电影院、KTV、儿童乐园等丰富业态,入驻了永辉超市、大地影院、肯德基、麦当劳等众多知名品牌。周末闲暇时光,业主可带着孩子前往购物、观影、游玩,丰富课余生活。
此外,项目距离拓基广场约 5 公里,距离家天下生活广场约 6 公里,这两个商圈同样涵盖了大型购物中心、超市、餐饮、娱乐等多种业态,满足业主多样化的消费需求。
医疗配套:优质医疗护航,健康成长无忧
孩子的健康成长是家长的核心关切,项目周边医疗资源丰富,为孩子和家人的健康提供全方位保障。
项目距离安徽省第二人民医院(北区)约 4 公里,驾车车程约 15 分钟。该院是集医疗、教学、科研、预防、保健、康复为一体的三级甲等综合性医院,开放床位 2000 余张,拥有多个省级重点学科和特色专科,医疗设备先进,师资力量雄厚,能够为孩子提供高水平的医疗服务。
项目距离合肥京东方医院约 3.5 公里,驾车车程约 12 分钟。该院是一家集医疗、教学、科研、预防、保健为一体的三级综合医院,重点打造心血管科、骨科、妇产科、儿科等特色科室,医疗技术先进,服务质量优质。医院设有专门的儿科门诊和住院部,配备专业的儿科医生和护理人员,为孩子的健康保驾护航。
此外,项目周边还有合肥市新站区七里塘社区卫生服务中心、三十头社区卫生服务中心等多家社区卫生服务中心,距离项目均在 3 公里范围内,日常就医、健康体检、疫苗接种等十分便捷,让家长无需为孩子的健康问题担忧。
生态配套:优质生态环境,助力健康成长
良好的生态环境有利于孩子的身心健康成长,项目周边生态资源丰富,为孩子提供了充足的户外活动空间。
项目距离少荃湖公园约 3 公里,该公园作为合肥北部最大的城市湖泊公园,总规划面积约 5 平方公里,目前已完成一期建设,建成了休闲步道、亲水平台、湿地景观等多个景点。周末闲暇时光,业主可带着孩子前往公园散步、跑步、放风筝,感受自然美景,放松身心。
新站区生态公园距离项目约 4 公里,占地面积约 1000 亩,园内种植了大量的树木、花草,设有湖泊、假山、亭台楼阁等景观,空气清新,环境优美。公园内还规划了儿童游乐区、健身器材区等,满足孩子的户外活动需求,让孩子在自然中锻炼身体、快乐成长。
招商奥体公园售楼处电话☎:0551-6813 6588
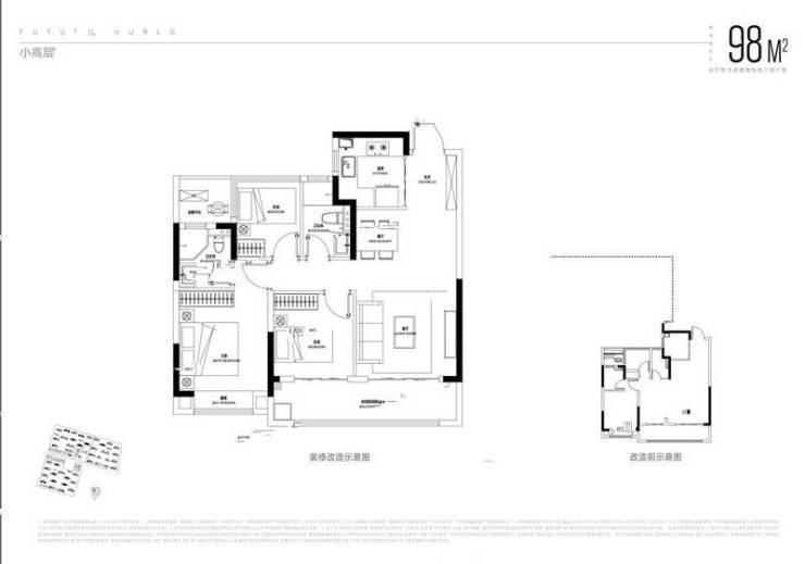
三、招商奥体公园楼盘户型解析
招商奥体公园深入洞察运动健康家庭的居住需求,打造了多款兼具运动属性、实用性和舒适性的户型产品,涵盖 89㎡、105㎡、128㎡、143㎡四个主力面积段,从刚需小三室到高端改善大四室,满足不同运动家庭的居住需求,让运动与生活完美融合。
89㎡三室两厅一卫:刚需运动户,紧凑实用
89㎡三室两厅一卫户型是刚需运动家庭的首选,整体布局方正,南北通透,空间利用率高达 85%,同时预留了灵活的运动空间,让小户型也能享受运动健康生活。
入户处设置独立玄关,宽度 1.2 米,深度 1.5 米,可作为运动装备收纳区,放置运动鞋、运动包、瑜伽垫等物品,让居家环境整洁有序。玄关右侧设有挂钩和换鞋凳,方便业主运动回家后及时换鞋、挂衣物,细节设计贴心。
客厅位于户型中央,面宽 3.6 米,进深 4.2 米,空间宽敞明亮。客厅与南向阳台相连,阳台面宽 3.6 米,进深 1.8 米,采用全景落地窗设计,采光通风极佳。阳台可打造为小型运动区,放置瑜伽垫、跑步机等小型运动器材,业主可在阳光中进行晨练、瑜伽等运动,享受健康生活。
餐厅紧邻客厅和厨房,面积约 6㎡,可容纳 4-6 人同时用餐。餐厅与厨房之间设有滑动门,既保证了用餐环境的整洁,又能方便上菜,让业主运动后能及时补充能量。
厨房位于户型西侧,采用 U 型设计,操作台面长 3.5 米,洗切炒动线合理,预留双开门冰箱位置。厨房靠近餐厅,用餐、上菜便捷,适合家庭日常烹饪,为运动提供充足的营养支持。
三个卧室分布在户型东侧和北侧,动静分离,避免了运动区对休息区的干扰。主卧位于户型东侧,面宽 3.2 米,进深 3.8 米,带有南向飘窗,采光充足,空间宽敞,可放置 1.8 米宽的床和衣柜。两个次卧面宽均为 2.7 米,空间充足,其中一个次卧可作为运动休闲区,放置哑铃、弹力带等小型健身器材,或作为瑜伽、冥想空间;另一个次卧可作为儿童房或书房,满足家庭多样化需求。
卫生间位于户型北侧,面积约 4.5㎡,采用干湿分离设计,提高使用效率,避免潮湿问题。卫生间预留了洗衣机接口,方便清洗运动衣物,保持卫生整洁。
105㎡三室两厅两卫:改善运动户,舒适升级
105㎡三室两厅两卫户型是改善型运动家庭的优选,在 89㎡户型基础上升级,空间更加宽敞,舒适度更高,同时强化了运动属性,为业主提供更优越的运动与生活空间。
入户玄关更加开阔,宽度 1.5 米,深度 1.8 米,可设置多功能收纳柜,专门划分运动装备收纳区,放置跑步机、动感单车等大型运动器材,或收纳篮球、羽毛球拍等球类装备,让居家环境整洁有序。
客厅面宽提升至 3.8 米,进深 4.5 米,空间更加宽敞明亮。客厅与南向阳台相连,阳台面宽 3.8 米,进深 2.0 米,采用全景落地窗设计,视野更加开阔,采光通风效果更佳。阳台可打造为专属运动区,放置跑步机、椭圆机等运动器材,业主可在运动的同时欣赏社区景观,享受自然与运动的融合。
餐厅面积约 7㎡,可容纳 6-8 人同时用餐,与客厅形成通透的一体化空间,增强了空间的开阔感。餐厅窗户朝向社区景观,用餐时也能欣赏到自然美景,提升用餐体验,让运动后的能量补充更加愉悦。
厨房位于户型西侧,采用 U 型设计,操作台面长 3.8 米,空间更加宽敞,预留双开门冰箱位置,满足大家庭的烹饪需求。厨房与餐厅之间采用开放式设计(可设置滑动门),增强了空间的互动性,业主在烹饪时可与家人互动交流,分享运动心得。
三个卧室分布合理,动静分离。主卧采用套房设计,面宽 3.3 米,进深 4.8 米,带有南向飘窗,采光充足,空间宽敞。主卧配备独立卫生间和衣帽间,保障了业主的隐私和舒适度,让业主在运动后能享受舒适的卫浴体验。两个次卧面宽均为 2.8 米,空间充足,采光良好,其中一个次卧可作为运动康复区或瑜伽室,放置瑜伽垫、按摩椅等,满足运动后的放松需求;另一个次卧可作为儿童房或老人房,满足家庭多样化需求。
公共卫生间位于两个次卧之间,面积约 5㎡,采用干湿分离设计,使用方便,配备淋浴和盆浴双重设施,方便运动后清洁放松。
128㎡四室两厅两卫:改善运动户,阔绰舒适
128㎡四室两厅两卫户型是多孩运动家庭或运动爱好者的理想选择,户型方正通透,南北双阳台设计,空间阔绰,既能满足家庭成员的居住需求,又能提供充足的运动空间,让运动成为家庭生活的重要组成部分。
入户玄关宽敞明亮,宽度 1.8 米,深度 2.0 米,可设置入户花园或大型运动收纳柜,收纳各类运动装备,包括自行车、滑板、球类器材等,让居家环境整洁有序。玄关处摆放绿植,营造自然清新的氛围,让运动回家后能瞬间放松身心。
客厅面宽 4.0 米,进深 4.8 米,空间宽敞开阔。客厅与南向景观阳台相连,阳台面宽 4.0 米,进深 2.0 米,采用全景落地窗设计,采光通风极佳。阳台可打造为家庭运动区,放置乒乓球桌、羽毛球架等小型球类运动设施,或设置跑步机、划船机等健身器材,全家一起运动,增进感情。
北向生活阳台与餐厅相连,面宽 3.0 米,进深 1.8 米,可作为运动辅助区,放置运动饮料、能量食品储备柜,或作为运动衣物晾晒区,功能分区明确,提高空间利用率。
厨房位于户型西侧,采用 L 型设计,操作台面长 4.0 米,空间宽敞,动线合理。厨房与餐厅相邻,用餐、上菜便捷,厨房预留了榨汁机、烤箱等家电位置,方便制作运动营养餐,为运动提供充足能量支持。
四个卧室分布合理,动静分离,避免了运动区对休息区的干扰。主卧采用套房设计,面宽 3.5 米,进深 5.0 米,带有南向全景飘窗,采光充足,空间宽敞奢华。主卧配备独立卫生间和步入式衣帽间,独立卫生间面积约 5㎡,采用干湿分离设计,配备浴缸和花洒,让业主在运动后能享受舒适的泡澡体验,缓解疲劳。
两个南向次卧面宽均为 3.0 米,采光良好,可作为孩子的卧室和运动休闲区,每个房间都能放置小型运动器材,让孩子在房间内就能进行简单运动;北向次卧可作为专业健身室,放置哑铃架、卧推架等专业健身器材,满足运动爱好者的专业需求。
公共卫生间位于户型北侧,面积约 5.5㎡,采用干湿分离设计,配备高端洁具,满足家庭成员的日常使用需求,尤其适合运动后多人同时清洁。
143㎡四室两厅两卫:高端运动户,奢华尊享
143㎡四室两厅两卫户型是高端运动家庭或运动达人的终极之选,空间开阔,布局奢华,品质感十足,同时为运动提供了全方位的空间支持,让运动与奢华生活完美融合。
入户采用子母门设计,玄关宽度 2.0 米,深度 2.2 米,大理石地面搭配吊顶设计,彰显尊贵感。玄关处设置大型运动收纳柜和展示区,收纳各类高端运动装备,展示运动奖杯、奖牌,打造专属的运动荣誉空间。
客厅面宽 4.2 米,进深 5.0 米,空间宽敞开阔,气势十足。客厅与南向 6.8 米宽超宽阳台相连,阳台进深 2.0 米,采用全景落地窗设计,视野开阔,采光通风极佳。阳台可打造为多功能运动休闲区,一侧设置专业健身器材区,放置跑步机、椭圆机、哑铃架等;另一侧设置休闲区,摆放休闲沙发、茶几,运动后可在此休息放松,欣赏社区景观。
餐厅面积约 9㎡,可容纳 10-12 人同时用餐,与客厅形成通透的一体化空间,增强了空间的开阔感。餐厅与北向生活阳台相连,北向阳台可作为运动营养补给区,放置冰箱、储物柜,储存运动饮料、蛋白粉、新鲜果蔬等,方便及时补充能量。
厨房采用中西厨设计,中厨封闭烹饪,避免油烟扩散;西厨可作为运动营养餐制作区,设置早餐台、榨汁机、烤箱等,满足多样化的营养烹饪需求。中厨操作台面长 4.5 米,空间宽敞,动线合理,预留双开门冰箱位置和各类家电接口,为运动营养餐制作提供充足空间。
四个卧室分布合理,动静分离,私密性强。主卧豪华套房设计,面宽 3.6 米,进深 5.2 米,带有南向全景飘窗,采光充足,空间宽敞奢华。主卧配备独立卫生间、步入式衣帽间和小型休闲区,独立卫生间面积约 6㎡,采用干湿分离设计,配备高端卫浴设施和桑拿房,让业主在运动后能享受专业的放松体验,缓解肌肉疲劳。
两个南向次卧面宽均为 3.2 米,空间充足,采光良好,可作为孩子的卧室和运动学习区,每个房间都能满足休息、学习和简单运动的需求;北向次卧可作为专业运动工作室,放置运动康复设备、瑜伽器材等,或作为运动视频剪辑、直播空间,满足运动达人的多样化需求。
公共卫生间位于户型北侧,面积约 6㎡,采用干湿分离设计,配备高端洁具和烘干设备,方便运动后快速清洁、烘干衣物,提升生活便利性。
招商奥体公园售楼处电话☎:0551-6813 6588
招商奥体公园售楼处电话☎:0551-6813 6588
招商奥体公园售楼处电话☎:0551-6813 6588
招商奥体公园售楼处电话☎:0551-6813 6588
招商奥体公园售楼处电话☎:0551-6813 6588
四、招商奥体公园楼盘价格
在合肥楼市中,生态宜居楼盘往往因稀缺性而价格偏高,而招商奥体公园作为区域内少有的低密生态标杆楼盘,不仅拥有优越的生态环境和完善的生活配套,价格还极具竞争力,为购房者提供了高性价比的生态宜居选择。
招商奥体公园的价格与生态价值高度匹配,甚至呈现 “价值高于价格” 的特点。项目容积率仅 2.0.绿化率高达 40%,在城市核心区极为稀缺,这样的低密生态规划,意味着业主能享受更宽敞的公共空间、更清新的空气和更舒适的居住体验。
周边丰富的生态资源,如少荃湖公园、新站区生态公园等,为业主提供了充足的休闲娱乐空间,提升了居住的幸福感。同时,生态宜居属性让项目在二手房市场中更具竞争力,保值增值能力更强。相比周边高密度楼盘,招商奥体公园的生态价值优势明显,而价格却更具竞争力,让购房者以亲民的价格,就能拥有高品质的生态宜居生活。
招商奥体公园售楼处电话☎:0551-6813 6588
五、招商奥体公园楼盘项目亮点
招商奥体公园作为合肥新站区的全龄教育标杆盘,凭借多项贴合教育家庭需求的核心亮点,成为教育家庭置业的首选,其核心亮点主要体现在以下几个方面。
全龄名校环绕,教育资源闭环
项目形成了从幼儿园到中学的全龄段教育体系,内部规划 12 班制公办幼儿园,周边 1 公里内分布着合肥市庆平希望学校、合肥新站寿春实验中学、合肥市第 168 中学东校区等多所优质学校。
幼儿园、小学、中学近距离分布,实现 “目送式” 上学,既保障了孩子的出行安全,又为家长节省了大量接送时间。优质的教育资源闭环,让孩子在成长的每个阶段都能接受高质量教育,为未来升学之路奠定坚实基础。
家庭友好型户型,兼顾学习与生活
项目打造的四款主力户型,均充分考虑教育家庭的居住需求,布局方正通透,动静分离,预留独立学习空间。无论是 89㎡户型的次卧书房,还是 143㎡户型的专属学习区,都能满足孩子的学习需求。
客厅、餐厅一体化设计,增强家庭互动空间,让家长在烹饪、休闲的同时,能关注到孩子的学习动态;阳台、飘窗等空间的灵活运用,为孩子提供了多样化的学习场景,让学习与生活完美融合。
社区安全智慧,护航成长无忧
项目引入智慧社区管理系统,包括智能门禁、视频监控、电子巡更、人脸识别等功能,全方位保障孩子在社区内的活动安全。社区内设置儿童专属游乐区,周边安装防护设施,地面采用防滑、防磕碰材质,细节处呵护孩子安全。
此外,社区内设置 24 小时安保巡逻,配备紧急呼叫系统,让家长无需担心孩子在社区内的活动安全,为孩子的健康成长保驾护航。
教育氛围浓厚,邻里圈层优质
项目的业主多为重视教育的家庭,邻里之间形成了良好的教育交流氛围。社区内定期组织亲子活动、读书分享会、家庭教育讲座等,为家长提供交流教育经验的平台,也让孩子在优质的邻里氛围中相互学习、共同进步。
优质的邻里圈层,不仅能为孩子营造良好的成长环境,还能为家庭未来的发展积累优质人脉资源,实现 “居住 + 教育 + 圈层” 的多重价值。
醇熟配套加持,教育生活便捷
项目周边交通、商业、医疗、生态等配套完善,为教育家庭提供便捷的生活保障。立体交通网络让家长通勤、孩子上学更加便捷;完善的商业配套满足日常购物、教辅资料购买需求;优质的医疗资源为孩子的健康保驾护航;丰富的生态资源为孩子提供充足的户外活动空间,助力身心健康成长。
醇熟的配套与优质的教育资源相结合,让教育家庭无需在教育与生活之间做选择,实现 “优质教育 + 便捷生活” 的双重满足。
央企品质保障,置业安心无忧
招商蛇口作为百年央企,拥有丰富的开发经验和雄厚的实力,始终坚持 “品质为王” 的理念。项目采用品牌建材,施工工艺严格把控,确保建筑品质;招商积余物业服务团队,提供全方位、高品质的物业服务,让教育家庭居住安心。
央企开发的稳定性和品质保障,让教育家庭无需担心项目交付问题,能够专注于孩子的教育与成长,置业更放心。
招商奥体公园售楼处电话☎:0551-6813 6588
六、招商奥体公园楼盘总结
招商奥体公园作为合肥新站区的投资标杆楼盘,凭借区域发展红利、百年央企背书、全维配套升级、低密生态稀缺、户型流通性强、高性价比等多重核心优势,成为众多投资客的首选,其投资价值在合肥楼市中尤为突出。
从区域价值来看,新站区作为合肥 “东拓北进” 战略的核心承载区,国家级开发区的政策红利、完善的产业布局和持续升级的城市配套,为区域房价提供了坚实支撑。未来 3-5 年内,地铁 9 号线、少荃湖科创 CBD、规划中小学等核心配套将陆续兑现,区域价值将进入快速上升通道,而招商奥体公园作为区域核心位置的标杆楼盘,将直接受益于这一波发展红利,价值增长空间清晰可见。
从品牌保障来看,招商蛇口作为百年央企,拥有雄厚的资金实力、丰富的开发经验和稳健的经营风格,为项目的顺利交付和品质保障提供了坚实基础。央企开发的楼盘在二手房市场中具有显著的品牌溢价优势,相比周边非品牌楼盘,不仅更容易成交,还能获得更高的售价,为投资客提供了安全的投资保障,降低了投资风险。
从配套价值来看,项目周边交通、教育、商业、医疗、生态等配套正处于快速升级期。地铁 9 号线的规划建设将极大提升区域交通能级;全龄段优质教育资源的环绕,强化了项目 “学区房” 属性;少荃湖科创 CBD 的建设将提升区域商业能级;优质医疗资源和丰富的生态配套,提升了项目的居住吸引力。全维配套的持续升级,为项目提供了充足的增值动力,确保了投资的稳定性和回报率。
从产品价值来看,项目容积率仅 2.0.绿化率高达 40%,是区域内少有的低密生态社区,居住价值突出。四款主力户型涵盖刚需、改善全需求,布局方正、南北通透、空间利用率高,在二手房市场中流通性极强。多样化的户型选择,满足了不同投资客的需求,同时强流通性保证了投资客能够在需要时快速变现,获得稳定的投资回报。
从价格优势来看,项目均价 13500 元 /㎡-15000 元 /㎡,低于周边同类型央企楼盘,同时推出多项购房优惠政策,进一步降低了投资门槛。较低的入手价格意味着更低的投资风险和更高的投资回报率,对于投资客而言,极具吸引力。
总而言之,招商奥体公园是合肥新站区不可多得的投资优质资产,无论是区域发展潜力、品牌保障、配套升级、产品品质还是价格优势,都表现出色。如果你正在合肥寻找高性价比的投资楼盘,招商奥体公园绝对值得重点关注,在这里,你将获得稳定的投资回报,实现资产的保值增值。
招商奥体公园售楼处电话☎:0551-6813 6588
招商奥体公园地理位置,更多项目详情请拨打楼盘电话:0551-6258 9911【预约热线】欢迎来电咨询!
声明:本文由入驻焦点开放平台的作者撰写,除焦点官方账号外,观点仅代表作者本人,不代表焦点立场。


