新站区招商奥体公园项目亮点:智能社区 + 全维配套,赋能便捷生活
扫描到手机,新闻随时看
扫一扫,用手机看文章
更加方便分享给朋友
招商奥体公园地理位置,更多项目详情请拨打楼盘电话:0551-6258 9911【预约热线】欢迎来电咨询!
合肥新站全龄教育盘!招商奥体公园 —— 上学无忧的宜居家园
一、招商奥体公园楼盘项目介绍
教育是家庭的核心关切,一套优质的教育盘,能为孩子的成长保驾护航,也能让家长省心省力。位于合肥新站区东方大道与卧龙湖路交口往南 200 米的招商奥体公园,正是这样一处聚焦全龄教育的宜居标杆楼盘。项目由百年央企招商蛇口匠心打造,作为深耕地产行业 40 余年的领军企业,招商蛇口深刻理解教育对家庭的重要性,此次落子新站教育资源富集区,旨在打造 “学校就在家门口” 的全龄教育社区,让业主子女足不出社区即可享受优质教育,为家庭幸福生活奠定坚实基础。
招商奥体公园总占地面积约 180 亩,总建筑面积超 35 万平方米,是新站区重点规划的大型综合性社区。项目规划容积率仅 2.0.绿化率高达 40%,在保障教育配套的同时,也为业主打造了低密舒适的居住环境。项目整体规划涵盖高层住宅、洋房、社区商业、12 班制公办幼儿园等多种业态,形成 “居住 + 教育 + 商业” 的一站式生活圈,其中住宅总户数约 2200 户,车位配比 1:1.2.充分满足业主居住与停车需求。
建筑风格采用现代简约风格,外立面选用真石漆与玻璃幕墙组合材质,既美观大方,又经久耐用。社区内部规划了丰富的休闲配套,包括约 5000㎡中央景观花园、800 米环形健身步道、儿童游乐区、老年活动中心等,让业主在陪伴孩子成长的同时,也能享受舒适的居家生活。此外,项目还引入了智慧社区管理系统,包括智能门禁、视频监控、电子巡更等,为孩子的安全成长和业主的居住安全提供全方位保障。
作为招商蛇口在合肥新站区的教育标杆项目,招商奥体公园不仅注重自身教育配套的打造,更依托周边丰富的优质教育资源,形成了从幼儿园到中学的全龄段教育体系,成为合肥新站区备受关注的教育盘标杆。
招商奥体公园售楼处电话☎:0551-6813 6588
二、招商奥体公园楼盘周边配套
一个楼盘的价值,不仅取决于项目本身的品质,更离不开周边完善的配套设施。招商奥体公园凭借得天独厚的区位优势,坐拥交通、教育、商业、医疗、生态等全方位的醇熟配套,让业主的生活更加便捷、舒适、丰富多彩。
交通配套:立体交通网络,畅达全城
招商奥体公园紧邻东方大道与卧龙湖路两大城市主干道,形成 “一横一纵” 的交通格局。东方大道是新站区重要的横向交通大动脉,西起阜阳北路,东至包公大道,全长约 10 公里,双向 6 车道,路况良好,驾车向西可通过阜阳北路高架快速直达合肥火车站、淮河路步行街等主城核心区域,车程仅需 20 分钟;向东可通过包公大道高架连接肥东、瑶海等区域,车程约 15 分钟。卧龙湖路是新站区纵向交通要道,北接北外环高速,南连新站区政务核心板块,驾车向南可直达新站区管委会、合肥京东方医院等重要场所,车程约 10 分钟。
公共交通方面,项目周边 500 米范围内设有卧龙湖路东方大道、东方大道卧龙湖路、新站寿春实验中学等 3 个公交站点,涵盖 301 路、302 路、686 路、803 路等多条公交线路。其中,301 路公交可直达地铁 3 号线幼儿师范站,车程约 15 分钟;302 路公交可直达地铁 1 号线合肥火车站,车程约 25 分钟;686 路公交可直达新站区核心商圈武里山天街,车程约 10 分钟。未来,随着合肥地铁 9 号线(规划中)的建成通车,项目将无缝衔接地铁网络,出行效率将进一步提升,轻松通达全城各个角落。
此外,项目距离合肥新桥国际机场约 40 公里,驾车通过北外环高速转机场高速,车程约 45 分钟;距离合肥火车站约 15 公里,驾车通过阜阳北路高架,车程约 20 分钟;距离合肥南站约 25 公里,驾车通过包河大道高架,车程约 30 分钟,无论是日常通勤还是长途出行,都十分便捷。
教育配套:全龄教育资源,护航成长
教育是每个家庭最关注的问题之一,招商奥体公园周边教育资源丰富,形成了从幼儿园到中学的全龄段教育体系,让孩子在家门口就能享受优质的教育资源,为未来的发展奠定坚实的基础。
项目内部规划有一所 12 班制公办幼儿园,占地面积约 4000㎡,建筑面积约 3000㎡,将配备专业的师资力量和完善的教学设施,预计 2025 年正式投入使用,让业主的孩子足不出社区就能接受优质的启蒙教育。
项目周边 1 公里范围内分布着多所优质中小学。其中,合肥新站寿春实验中学距离项目仅 500 米,该校是寿春教育集团旗下的优质民办中学,成立于 2015 年,拥有先进的教学理念和雄厚的师资力量,中考成绩在新站区名列前茅;合肥市庆平希望学校距离项目约 800 米,该校是一所九年一贯制公办学校,涵盖小学和初中,教学设施完善,师资力量充足,为学生提供全面的素质教育;合肥市第 168 中学东校区距离项目约 1.5 公里,该校是安徽省示范高中,成立于 2002 年,以优异的高考成绩闻名全省,每年都有大量学生考入全国重点高校,是众多家长和学生向往的优质高中。
此外,周边还有合肥市新站区关井小学、合肥市新站区三十头镇中心学校等多所公办小学,以及多所规划中的中小学,教育资源持续丰富,满足不同家庭对孩子教育的需求。
商业配套:繁华商业氛围,便利生活
商业配套的完善程度直接影响着业主的日常生活便利性,招商奥体公园周边商业氛围浓厚,无论是日常购物、餐饮美食,还是休闲娱乐,都能一站式满足。
项目自带约 2 万方社区商业,规划引入超市、便利店、生鲜卖场、品牌餐饮、美容美发、药店等多元化业态,预计 2026 年正式开业运营,业主下楼即可满足日常购物、餐饮、休闲等基本需求,无需远行。
项目距离新站区核心商圈 —— 武里山天街仅 3 公里,驾车车程约 10 分钟。武里山天街是新站区规模较大的商业综合体之一,总建筑面积约 10 万方,涵盖大型购物中心、连锁超市、品牌餐饮、电影院、KTV、儿童乐园等丰富业态,入驻了永辉超市、大地影院、肯德基、麦当劳等众多知名品牌,是周边居民休闲娱乐的首选之地。
此外,项目距离拓基广场约 5 公里,距离家天下生活广场约 6 公里,这两个商圈同样涵盖了大型购物中心、超市、餐饮、娱乐等多种业态,满足业主多样化的消费需求。周边还有多个在建的商业综合体,未来商业氛围将更加浓厚,生活便利性将进一步提升。
医疗配套:优质医疗资源,健康保障
健康是幸福生活的基础,招商奥体公园周边医疗资源丰富,为业主的健康提供全方位的保障。
项目距离安徽省第二人民医院(北区)约 4 公里,驾车车程约 15 分钟。安徽省第二人民医院是集医疗、教学、科研、预防、保健、康复为一体的三级甲等综合性医院,开放床位 2000 余张,拥有多个省级重点学科和特色专科,医疗设备先进,师资力量雄厚,能够为业主提供高水平的医疗服务。
项目距离合肥京东方医院约 3.5 公里,驾车车程约 12 分钟。合肥京东方医院是一家集医疗、教学、科研、预防、保健为一体的三级综合医院,由京东方科技集团投资建设,总建筑面积约 20 万方,开放床位 1000 张,重点打造心血管科、骨科、妇产科、儿科等特色科室,医疗技术先进,服务质量优质。
此外,项目周边还有合肥市新站区七里塘社区卫生服务中心、合肥新站综合开发试验区三十头社区卫生服务中心等多家社区卫生服务中心,距离项目均在 3 公里范围内,日常就医、健康体检十分便捷,为业主的健康保驾护航。
生态配套:优质生态资源,宜居环境
在快节奏的城市生活中,优质的生态环境成为人们追求的重要目标,招商奥体公园周边生态资源丰富,为业主提供了清新的空气和舒适的居住环境。
项目距离少荃湖公园约 3 公里,驾车车程约 10 分钟。少荃湖是合肥北部最大的城市湖泊,湖面面积约 1.5 平方公里,周边规划有少荃湖湿地公园、科创 CBD 景观带,总规划面积约 5 平方公里,是合肥市重点打造的生态公园之一。公园内设有休闲步道、观景平台、亲水平台、湿地景观等多个景点,是业主休闲散步、跑步健身、周末出游的绝佳去处。
项目距离新站区生态公园约 4 公里,驾车车程约 15 分钟。新站区生态公园是合肥市较早建设的城市公园之一,占地面积约 1000 亩,园内种植了大量的树木、花草,设有湖泊、假山、亭台楼阁等景观,空气清新,环境优美,是周边居民休闲放松的好去处。
此外,项目周边还有瑶海公园、李鸿章享堂等多个景点,距离项目均在 10 公里范围内,周末闲暇时光,业主可以带着家人朋友前往游玩,感受大自然的美景,放松身心。
招商奥体公园售楼处电话☎:0551-6813 6588
三、招商奥体公园楼盘户型解析
户型是生态宜居生活的核心载体,招商奥体公园深入洞察业主对自然、舒适居住的需求,结合项目低密生态的规划优势,打造了多款兼具实用性、舒适性和生态性的户型产品,让每一户都能最大限度地享受阳光、空气和自然美景。
89㎡三室两厅一卫:刚需生态居,阳光满溢
89㎡三室两厅一卫户型是刚需人群的生态宜居首选,整体布局方正,南北通透,空间利用率高达 85%,同时最大化引入自然光线和新鲜空气,让小户型也能享受生态宜居生活。
入户处设置独立玄关,宽度 1.2 米,深度 1.5 米,既保障了室内隐私,又能作为收纳空间,放置鞋柜、衣帽架等。玄关右侧设有换鞋凳和挂钩,细节设计贴心,方便业主日常使用。
客厅位于户型中央,面宽 3.6 米,进深 4.2 米,空间宽敞明亮。客厅与南向阳台相连,阳台面宽 3.6 米,进深 1.8 米,采用全景落地窗设计,最大化引入自然光线,让客厅更加明亮通透。阳台外是社区中央景观花园,业主坐在客厅就能欣赏到四季美景,感受自然气息。阳台可根据需求打造为休闲区,摆放休闲沙发、茶几,闲暇时品茶、看书,享受惬意时光。
餐厅紧邻客厅和厨房,面积约 6㎡,可容纳 4-6 人同时用餐。餐厅与厨房之间设有滑动门,既保证了用餐环境的整洁,又能方便上菜。厨房位于户型西侧,采用 U 型设计,操作台面长 3.5 米,洗切炒动线合理,预留双开门冰箱位置。厨房窗户朝向社区景观,烹饪时也能欣赏到自然美景,让烹饪成为一种享受。
三个卧室分布在户型东侧和北侧,动静分离,避免了活动区对休息区的干扰。主卧位于户型东侧,面宽 3.2 米,进深 3.8 米,带有南向飘窗,采光充足,空间宽敞。飘窗设计不仅增加了采光,还能作为休闲区,业主可在飘窗上摆放绿植、书籍,享受阳光与自然。两个次卧分别位于户型北侧和东侧,面宽均为 2.7 米,空间充足,可作为儿童房或书房,其中北侧次卧窗户朝向社区景观,让孩子在学习、休息时也能亲近自然。
卫生间位于户型北侧,面积约 4.5㎡,采用干湿分离设计,提高使用效率,避免潮湿问题。卫生间窗户通风效果良好,保持室内干燥清爽。
105㎡三室两厅两卫:改善生态居,舒适升级
105㎡三室两厅两卫户型是改善型刚需的生态宜居优选,在 89㎡户型基础上升级,空间更加宽敞,舒适度更高,同时进一步强化了生态宜居属性,让业主享受更惬意的自然生活。
入户玄关更加开阔,宽度 1.5 米,深度 1.8 米,可设置多功能收纳柜,满足家庭更多收纳需求。玄关处采用大理石地面,与室内木地板形成对比,彰显品质感。玄关顶部设有吊顶和筒灯,营造出温馨舒适的氛围。
客厅面宽提升至 3.8 米,进深 4.5 米,空间更加宽敞明亮。客厅与南向阳台相连,阳台面宽 3.8 米,进深 2.0 米,采用全景落地窗设计,视野更加开阔,采光通风效果更佳。阳台外是社区景观水系和中央花园,业主站在阳台就能欣赏到水景与绿植相映成趣的美景,感受自然的灵动。阳台可打造为休闲区和绿植区,摆放休闲沙发、茶几和各类绿植,打造专属的 “空中花园”。
餐厅面积约 7㎡,可容纳 6-8 人同时用餐,与客厅形成通透的一体化空间,增强了空间的开阔感。餐厅窗户朝向社区景观,用餐时也能欣赏到自然美景,提升用餐体验。
厨房位于户型西侧,采用 U 型设计,操作台面长 3.8 米,空间更加宽敞,预留双开门冰箱位置。厨房与餐厅之间采用开放式设计(可设置滑动门),增强了空间的互动性,同时厨房窗户通风效果良好,避免油烟异味残留。
三个卧室分布合理,动静分离。主卧采用套房设计,面宽 3.3 米,进深 4.8 米,带有南向飘窗,采光充足,空间宽敞。主卧配备独立卫生间和衣帽间,保障了主人的隐私和舒适度。独立卫生间采用干湿分离设计,窗户通风效果良好,保持干燥清爽。两个次卧面宽均为 2.8 米,空间充足,采光良好,其中一个次卧带有南向飘窗,可作为儿童房,让孩子在阳光和自然中成长;另一个次卧可作为老人房或书房,满足多样化需求。
128㎡四室两厅两卫:改善生态居,阔绰舒适
128㎡四室两厅两卫户型是改善型人群的生态宜居理想选择,户型方正通透,南北双阳台设计,空间阔绰,舒适度高,同时最大化利用自然资源,让业主享受全方位的生态宜居体验。
入户玄关宽敞明亮,宽度 1.8 米,深度 2.0 米,可设置入户花园或大型收纳柜,提升居家品质。玄关处摆放绿植,营造出自然清新的氛围。
客厅面宽 4.0 米,进深 4.8 米,空间宽敞开阔。客厅与南向景观阳台相连,阳台面宽 4.0 米,进深 2.0 米,采用全景落地窗设计,采光通风效果极佳。阳台外是社区中央景观花园和环形健身步道,业主坐在客厅就能欣赏到绿植、鲜花和业主健身的活力场景,感受社区的生态与活力。
北向生活阳台与餐厅相连,面宽 3.0 米,进深 1.8 米,可作为晾晒区和储物区,功能分区明确。北向阳台窗户朝向社区另一侧景观,让业主在晾晒衣物时也能欣赏到自然美景。
厨房位于户型西侧,采用 L 型设计,操作台面长 4.0 米,空间宽敞,动线合理。厨房与餐厅相邻,用餐、上菜十分便捷,同时厨房窗户通风效果良好,保持室内空气清新。
四个卧室分布合理,动静分离,每个卧室都能享受良好的采光和通风。主卧采用套房设计,面宽 3.5 米,进深 5.0 米,带有南向全景飘窗,采光充足,空间宽敞奢华。主卧配备独立卫生间和步入式衣帽间,独立卫生间采用干湿分离设计,配备浴缸和花洒,让业主在忙碌的生活中能享受舒适的卫浴体验。两个南向次卧面宽均为 3.0 米,采光良好,可作为儿童房或老人房,窗户朝向社区景观,让孩子和老人在休息时也能亲近自然。北向次卧可作为书房或健身房,窗户通风效果良好,营造出舒适的学习和健身环境。
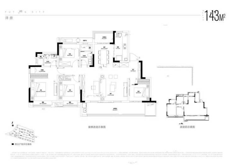
143㎡四室两厅两卫:高端生态居,奢华宜居
143㎡四室两厅两卫户型是高端改善型人群的生态宜居终极之选,空间开阔,布局合理,品质感十足,同时全方位融入生态理念,让业主享受奢华与自然兼具的宜居生活。
入户玄关采用子母门设计,彰显尊贵感。玄关宽度 2.0 米,深度 2.2 米,可设置大型收纳柜和展示区,收纳空间充足。玄关处摆放大型绿植和艺术摆件,营造出高端、自然的氛围。
客厅面宽 4.2 米,进深 5.0 米,空间宽敞开阔,气势十足。客厅与南向超宽阳台相连,阳台面宽 6.8 米,进深 2.0 米,采用全景落地窗设计,视野开阔,采光通风效果极佳。阳台外是社区中央景观花园、景观水系和亲水平台,业主站在阳台就能欣赏到湖光山色般的美景,感受自然的宁静与惬意。阳台可打造为多功能休闲区,设置休闲沙发、茶几、跑步机和绿植区,满足休闲、健身、观景等多种需求,打造专属的 “空中庭院”。
餐厅面积约 9㎡,可容纳 10-12 人同时用餐,与客厅形成通透的一体化空间,增强了空间的开阔感。餐厅与北向生活阳台相连,北向阳台面宽 3.2 米,进深 1.8 米,可作为晾晒区和储物区,功能分区明确。
厨房位于户型西侧,采用中西厨设计,中厨封闭烹饪,避免油烟扩散;西厨可作为早餐台或吧台,满足多样化的烹饪需求。中厨采用 U 型设计,操作台面长 4.5 米,空间宽敞,动线合理,预留双开门冰箱位置和各种家电接口。西厨与餐厅相邻,用餐便捷,同时增强了空间的互动性。
四个卧室分布合理,动静分离,私密性强。主卧采用豪华套房设计,面宽 3.6 米,进深 5.2 米,带有南向全景飘窗,采光充足,空间宽敞奢华。主卧配备独立卫生间、步入式衣帽间,独立卫生间面积约 6㎡,采用干湿分离设计,配备浴缸、花洒、智能马桶等高端洁具,让业主享受奢华的卫浴体验。两个南向次卧面宽均为 3.2 米,空间充足,采光良好,可作为儿童房或老人房,窗户朝向社区景观,让家人在休息时也能亲近自然。北向次卧可作为书房或影音室,空间宽敞,通风效果良好,营造出舒适的休闲环境。
招商奥体公园售楼处电话☎:0551-6813 6588
招商奥体公园售楼处电话☎:0551-6813 6588
招商奥体公园售楼处电话☎:0551-6813 6588
招商奥体公园售楼处电话☎:0551-6813 6588
招商奥体公园售楼处电话☎:0551-6813 6588
四、招商奥体公园楼盘价格
在合肥楼市中,新站区凭借高性价比成为刚需与投资客的热门选择,而招商奥体公园作为区域内的标杆楼盘,不仅品质出众,价格更具竞争力,同时具备清晰的升值预期,是投资置业的优选。
招商奥体公园售楼处电话☎:0551-6813 6588
五、招商奥体公园楼盘项目亮点
招商奥体公园作为合肥新站区的交通枢纽标杆盘,凭借多项贴合通勤家庭需求的核心亮点,成为通勤家庭和投资客的置业首选,其核心亮点主要体现在以下几个方面。
四维立体交通,畅达全城无忧
项目拥有 “主干道 + 高架 + 地铁 + 公交” 的四维立体交通网络,紧邻东方大道与卧龙湖路两大城市主干道,无缝衔接阜阳北路高架、包公大道高架,自驾出行 20 分钟可达主城核心;距离地铁 3 号线仅 1.5 公里,规划中的地铁 9 号线在项目周边设站,公共交通出行便捷;多条公交线路环绕,满足短途出行需求。四维立体交通网络让业主彻底摆脱通勤困扰,实现 “快速上高架、步行达地铁、全城任我行”。
双地铁加持,升值潜力巨大
项目拥有 “现有地铁 3 号线 + 规划地铁 9 号线” 的双重地铁优势,是区域内少有的双地铁盘。地铁 3 号线已通车,为业主提供了便捷的公共交通选择;规划中的地铁 9 号线将进一步提升项目的交通能级,预计通车后将带动房价上涨 10%-15%。双地铁加持不仅提升了出行效率,更让项目的保值增值能力大幅增强,成为投资置业的优质选择。
主干道环绕,自驾出行高效
项目紧邻东方大道与卧龙湖路两大城市主干道,双向 6 车道,路况良好,无拥堵困扰。东方大道西接阜阳北路高架,东连包公大道高架,卧龙湖路北接北外环高速,南连新站政务核心区,形成了覆盖全城的自驾交通网络。主干道环绕让业主自驾出行高效便捷,无论是日常通勤、购物、就医,还是长途出行,都能快速抵达目的地。
交通与生活融合,便捷体验升级
项目将交通便捷性与生活实用性完美融合,社区内部规划了便捷的入户收纳空间,满足通勤装备收纳需求;户型设计注重采光通风和休闲空间打造,让业主通勤回家后能快速放松身心;周边完善的教育、商业、医疗、生态配套,借助便捷的交通,让业主的生活更加便捷舒适,实现 “交通与生活的双重便捷”。
央企品质保障,置业安心无忧
招商蛇口作为百年央企,拥有丰富的开发经验和雄厚的实力,为项目的顺利交付和品质保障提供了坚实基础。项目采用品牌建材,施工工艺严格把控,确保建筑品质;招商积余物业服务团队,提供全方位、高品质的物业服务,让业主居住安心。央企开发的稳定性和品质保障,让通勤家庭无需担心项目交付问题,能够专注于工作与生活,置业更放心。
高性价比优势,通勤家庭首选
相比周边同类型交通盘,招商奥体公园在品质、配套、交通等方面均具有优势,而价格却更具竞争力。项目均价 13500 元 /㎡-15000 元 /㎡,低于周边同类型楼盘,同时推出通勤家庭专项优惠,进一步降低了置业门槛。对于通勤家庭而言,低首付、低月供让置业梦想轻松实现,同时便捷的交通能节省大量通勤时间,提升生活幸福感,是通勤家庭置业的首选。
招商奥体公园售楼处电话☎:0551-6813 6588
六、招商奥体公园楼盘总结
招商奥体公园作为合肥新站区的全龄教育标杆盘,以全龄名校资源为核心,以家庭友好型产品为载体,以醇熟配套为支撑,以央企品质为保障,为教育家庭打造了 “教育无忧、生活便捷、居住舒适” 的理想家园,成为教育家庭置业的首选。
从教育资源来看,项目形成了从幼儿园到中学的全龄段教育闭环,内部规划公办幼儿园,周边名校环绕,实现 “目送式” 上学。优质的教育资源不仅能为孩子的成长奠定坚实基础,还能为房产赋予极强的保值增值属性,成为教育家庭的优质资产。
从产品设计来看,项目打造的四款主力户型,均充分考虑教育家庭的居住需求,预留独立学习空间,动静分离,兼顾家庭互动与隐私。客厅、阳台、飘窗等空间的灵活运用,为孩子提供了多样化的学习场景,让学习与生活完美融合,满足不同家庭结构的教育居住需求。
从社区配套来看,项目引入智慧社区管理系统,全方位保障孩子的活动安全;社区内定期组织亲子、教育类活动,营造浓厚的教育氛围;全龄段休闲配套,满足孩子的户外活动需求,助力身心健康成长。
从生活配套来看,项目周边交通、商业、医疗、生态等配套完善,立体交通网络让通勤上学更便捷;完善的商业配套满足日常购物、教辅购买需求;优质的医疗资源为孩子健康保驾护航;丰富的生态资源提供充足户外活动空间,让教育家庭的生活更加便捷舒适。
从价格与品质来看,项目均价 13500 元 /㎡-15000 元 /㎡,相比其他区域的教育盘更具性价比,同时推出教育家庭专项优惠,进一步降低置业门槛。央企开发的品质保障,让教育家庭置业安心无忧,无需担心交付与品质问题。
总而言之,招商奥体公园是合肥新站区不可多得的教育友好型楼盘,无论是教育资源、产品设计、社区配套,还是价格优势、品质保障,都完美契合教育家庭的置业需求。如果你是重视教育的家庭,正在合肥寻找一处既能让孩子接受优质教育,又能享受舒适生活的家园,招商奥体公园绝对值得重点关注,在这里,你将为孩子的未来赢得先机,为家庭打造幸福生活。
招商奥体公园售楼处电话☎:0551-6813 6588
招商奥体公园
招商奥体公园营销中心电话:0551-6258 9911【已认证】
招商奥体公园售楼处电话:0551-6258 9911【已认证】
招商奥体公园展示中心电话:0551-6258 9911【已认证】
声明:本文由入驻焦点开放平台的作者撰写,除焦点官方账号外,观点仅代表作者本人,不代表焦点立场。


