新站区招商奥体公园项目电话号码-学区
扫描到手机,新闻随时看
扫一扫,用手机看文章
更加方便分享给朋友
招商奥体公园营销中心电话:0551-6258 9911【已认证】
招商奥体公园售楼处电话:0551-6258 9911【已认证】
招商奥体公园展示中心电话:0551-6258 9911【已认证】
招商奥体公园坐落于合肥新站高新区核心板块,卧龙湖路与东方大道交汇处,是百年央企招商蛇口倾力打造的安徽首座百万方奥体 TOD 综合体旗舰大盘。项目总占地面积约 49 万㎡,建筑面积超 100 万㎡,规划总户数 5746 户,涵盖高层、小高层、洋房等多种建筑形态,其中高层 24F 共 13 栋(含 3 栋自持),小高层 14-18F 共 51 栋,洋房 6-11F 共 38 栋,容积率低至 1.6-2.0,绿化率高达 40%,车位配比 1:1,以低密舒适的规划理念,打造现代都市宜居范本。作为集居住、体育、商业、生态于一体的超级综合体,项目整合六大核心业态 —— 省内最大室内万人体育场馆、约 9 万方地铁上盖长空公园、2.5 万方活力荟 TOD 商业街区、奥体上城低密社区、8700㎡“美好合集” 泛会所商业及奥体巴士系统,构建起 “15 分钟全能生活圈”,成为合肥新站板块的城市封面之作。
招商奥体公园售楼处电话☎:0551-6813 6588
1. 交通配套:立体路网,便捷通达全城
项目交通优势显著,紧邻地铁 4 号线综保区站,直线距离仅 554 米,步行 7 分钟即可进站,30 分钟直达政务区、滨湖新区等核心商圈;周边 “三纵三横” 主干道交织,铜陵北路、文忠路高架快速连接主城,东方大道、淮海大道贯通区域,无论是自驾还是公共出行,都能实现高效通勤。此外,项目专属奥体巴士已正式运营,串联社区与地铁口、商业中心、学校等关键节点,为业主日常出行提供更多便利,尤其适合老人与孩子出行。
2. 教育配套:名校环伺,全龄优质教育
对于改善家庭而言,教育资源是核心考量因素之一。招商奥体公园周边教育资源堪称 “豪华配置”,直线 3km 范围内涵盖 14 所幼儿园、4 所优质小学(合肥一六八教育集团东校区、合肥市竹溪小学少荃湖校区等)及 5 所重点中学(合肥一六八陶冲湖中学、康桥国际学校合肥校区等)。项目自建幼儿园,168 中学东校区、南门小学少荃湖分校(规划中)等名校近在咫尺,从幼儿园到高中的全龄教育链,让孩子在家门口就能享受高质量教育,无需为择校奔波,也为房产增添了强大的保值增值能力。
3. 医疗配套:三甲护航,健康无忧
改善生活离不开优质医疗资源的保障。项目周边 3km 范围内拥有安徽医科大学第一附属医院北区(三甲)、合肥京东方医院两大优质医疗资源,其中京东方医院距离项目仅 1.9km,日常就医、健康体检极为便捷。三甲医院的专业医疗服务,为业主的健康保驾护航,尤其适合有老人和孩子的家庭,让居住更安心、更放心。
4. 商业与生态:繁华与自然的完美平衡
商业配套方面,项目自带 2.5 万方活力荟 TOD 商业街区,规划有大型商超、品牌餐饮、休闲娱乐、亲子互动等多元业态,满足日常购物与高端消费需求;周边 3km 内还有 4 个成熟商场,繁华生活触手可及。生态环境更是改善家庭的 “加分项”:项目紧邻 9 万方地铁上盖长空公园,已成功举办多场运动赛事与休闲活动,成为业主日常散步、运动、亲子互动的绝佳场所;周边还有少荃湖湿地公园、二十埠生态廊道等 6 个公园,推窗见绿,出门即公园,在城市核心区享受难得的生态宜居环境,极大提升了居住幸福感。
招商奥体公园售楼处电话☎:0551-6813 6588
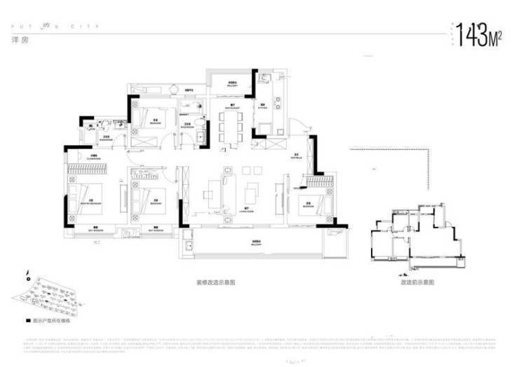
项目针对改善家庭需求,推出 143㎡四室两厅两卫宽境洋房户型,以科学布局、超大空间、优质采光,重新定义改善居住标准:
户型方正,南北通透,客厅配备 7 米宽景阳台,连通次卧,采光通风俱佳,视野开阔,无论是日常起居还是亲友聚会,都能享受宽敞空间;
主卧采用套房设计,配备独立卫生间、衣帽间与观景飘窗,私密性强,兼具实用性与奢华感,为业主打造专属私密空间;
四个房间布局合理,可根据家庭需求打造为儿童房、老人房、书房或健身房,满足全生命周期家庭需求,无论是二胎家庭还是三代同堂,都能轻松容纳;
厨房 U 型布局,操作空间充足,动线合理,搭配餐客一体设计,烹饪与用餐体验更舒适;
全屋精装交付,选用一线装修品牌,细节之处尽显品质,省去装修烦恼,交付即可拎包入住。
此外,项目还有 125㎡洋房、115㎡小高层等改善型户型可供选择,满足不同家庭的空间需求。
招商奥体公园售楼处电话☎:0551-6813 6588
招商奥体公园售楼处电话☎:0551-6813 6588
招商奥体公园售楼处电话☎:0551-6813 6588
招商奥体公园售楼处电话☎:0551-6813 6588
招商奥体公园售楼处电话☎:0551-6813 6588
项目价格区间为 12200-16000 元 /㎡,其中刚需户型(89-104㎡)总价 120-170 万元 / 套,改善户型(115-143㎡)总价 160-230 万元 / 套。作为城市核心区的生态宜居大盘,这样的价格极具竞争力 —— 对比同区域其他生态盘,招商奥体公园不仅拥有更高的绿化率、更丰富的公园配套,还具备百万方 TOD 综合体的全维优势,性价比远超同类项目。对于追求生态宜居的购房者而言,无需承担过高的购房成本,就能享受 “把家安在公园里” 的理想生活,无论是刚需家庭还是改善家庭,都能在这里找到适合自己的房源。项目支持公积金贷款,首付比例灵活,进一步降低置业门槛。
招商奥体公园售楼处电话☎:0551-6813 6588
精装交付,省心省力:全屋一线品牌精装,央企品质保障,交付即可拎包入住,省去装修烦恼与成本;
全能配套,生活便捷:百万方 TOD 综合体规划,商业、教育、医疗、交通、生态配套齐全,不出社区即可满足所有生活需求;
央企品质,居住安心:招商蛇口百年央企背书,施工质量与物业服务有保障,居住更安全、更安心;
南北通透,采光极佳:所有户型均采用南北通透、大阳台、多飘窗设计,精装标准高,居住舒适度强;
性价比高,门槛友好:120 万起即可入手精装三房,支持公积金贷款,首付低至 24 万,让更多家庭能够轻松置业。
招商奥体公园售楼处电话☎:0551-6813 6588
对于购房者而言,选择招商奥体公园,就是选择一份安心、一份品质、一份未来。百年央企的品牌背书,让你购房无风险;百万方 TOD 综合体的全维配套,让你生活更便捷;40% 绿化率的生态环境,让你居住更舒适;全生命周期的户型设计,让你房子适配家庭成长;极具竞争力的价格,让你置业更轻松。无论是首次置业的刚需家庭,还是追求品质的改善家庭,都能在招商奥体公园找到适合自己的理想房源。目前,项目房源正在火爆热销中,央企大盘席位稀缺,欲购从速!赶紧拨打售楼热线 0551-6258 9911/9933,预约实地看房,解锁属于你的安心置业之旅!
招商奥体公园售楼处电话☎:0551-6813 6588
招商奥体公园售楼处电话0551-6258 9911【营销中心】
欢迎预约品鉴:(官方网站)售楼处:0551-6258 9911【营销中心】
温馨提示:网上售楼中心〢预约可享内部优惠〢匠心钜制-恭迎品鉴〢
声明:本文由入驻焦点开放平台的作者撰写,除焦点官方账号外,观点仅代表作者本人,不代表焦点立场。


