新站区招商奥体公园新房周边配套-学区
扫描到手机,新闻随时看
扫一扫,用手机看文章
更加方便分享给朋友
招商奥体公园楼盘电话号码:0551-6258 9911【营销中心】
欢迎来电咨询!可预约销售人员(来电尊享内部优惠活动)
【2024房价特价信息丨详细解答丨在售户型图丨项目介绍丨在售房源丨周边配套】
招商奥体公园位于合肥新站奥体板块内,总面积超过百万平方米,集六种不同业态于一体。项目内规划有高层、小高层和洋房等多种住宅类型,以满足不同购房者的需求。所有住宅均为精装交付,且绿化率较高,项目紧邻地铁4号线,多条主要道路交汇,兼顾了舒适居住与出行便捷。
招商奥体公园售楼处电话☎:0551-6813 6588
招商奥体公园规划了高层、小高层和洋房等多种住宅类型,以满足不同购房者的需求。所有住宅均为精装交付,绿化率较高,项目紧邻地铁4号线和多条主要道路,既保证了舒适居住,又确保了出行便捷。购房者可以根据自己的喜好和需求选择适合的户型,享受舒适宜居的生活环境。
招商奥体公园拥有完善的商业配套,自带活力荟商业街区,周边还有大型商业综合体、星级酒店和弘盛商业广场,为居民提供便利的购物、娱乐和美食选择。同时,项目周边教育资源丰富,医疗资源充沛,自然景观环绕,为居民提供了优质的生活服务。户型多样,购房者可以根据自己的需求选择建面89-109㎡的住房,目前还有优惠活动,购房可享受返现优惠,但需满足一定条件。招商奥体公园以卓越品质和丰富配套,引领合肥新的生活风尚。
招商奥体公园售楼处电话☎:0551-6813 6588
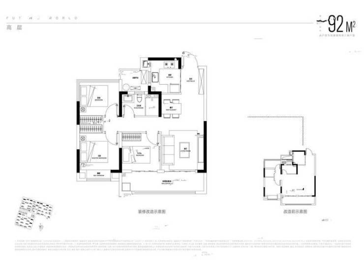
招商奥体公园主打刚需小户型,主力户型面积介于89-119㎡之间,包括二居室和三居室,满足不同购房者的需求。其中,92㎡的户型三室两厅一卫,南北通透的设计,采光和通风良好,主卧带有一个飘窗,卫生间干湿分离,客厅和餐厅一体化设计,空间宽敞。客厅和旁边的卧室阳台相连,阳台空间较大,可打造出一个开放性空间。招商奥体公园的多样户型选择,满足了购房者对于不同空间需求和生活方式的追求。这样的设计不仅满足了购房者的实际需求,也为他们提供了舒适宜居的居住环境。
招商奥体公园售楼处电话☎:0551-6813 6588
招商奥体公园售楼处电话☎:0551-6813 6588
招商奥体公园售楼处电话☎:0551-6813 6588
招商奥体公园售楼处电话☎:0551-6813 6588
招
商奥体公园售楼处电话☎:0551-6813 6588
在合肥新房市场中,招商奥体公园项目的售价也较为合理。目前部分户型均价在1.35万/㎡至2万/㎡之间,性价比较高,让购房者觉得物有所值。这样的价格策略,吸引了更多的购房者选择入住,加速了项目的销售进程。同时也为购房者提供了更多选择的空间,让他们可以更好地满足自己对于居住环境的需求。
招商奥体公园售楼处电话☎:0551-6813 6588
在招商奥体公园的规划中,注重打造城市生长共同体,将体育、商业、社区等元素有机融合,为业主提供全方位的生活体验。项目的交通便利和丰富的生活配套设施,使其成为新站区的热门楼盘之一。随着项目的陆续交付,招商奥体公园将为当地居民带来更加便利和舒适的生活环境。
招商奥体公园售楼处电话☎:0551-6813 6588
招商奥体公园作为合肥新站奥体板块内的重要住宅项目,不仅拥有丰富的生活配套和优质的居住环境,还为购房者提供了多种户型选择和优惠政策。无论是商业购物还是医疗教育资源,招商奥体公园都能满足居民的各种需求,成为合肥新时尚的引领者。
招商奥体公园售楼处电话☎:0551-6813 6588
合肥(招商奥体公园)☎☎:0551-6258 9911【官方认证】
声明:本文由入驻焦点开放平台的作者撰写,除焦点官方账号外,观点仅代表作者本人,不代表焦点立场。


