招商奥体公园项目户型图-优惠
扫描到手机,新闻随时看
扫一扫,用手机看文章
更加方便分享给朋友
招商奥体公园楼盘电话号码:0551-6258 9911【营销中心】
欢迎来电咨询!可预约销售人员(来电尊享内部优惠活动)
【2026房价特价信息丨详细解答丨在售户型图丨项目介绍丨在售房源丨周边配套】
合肥新站核心!招商奥体公园 —— 东方大道宜居红盘
一、招商奥体公园楼盘项目介绍
在合肥 “东拓北进” 的城市发展战略下,新站高新技术产业开发区已然成为城市发展的新引擎,而位于东方大道与卧龙湖路交口往南 200 米的招商奥体公园,正是这片价值高地中最受瞩目的楼盘之一。项目由招商蛇口匠心打造,作为招商局集团旗下的核心企业,招商蛇口深耕地产行业 40 余年,业务遍布全国 111 个城市及地区,开发了超 600 个精品项目,凭借稳健的经营风格、卓越的产品品质和优质的服务,赢得了市场和业主的广泛认可,连续多年位列中国房地产百强企业前列。
招商奥体公园总投资超 50 亿元,总占地面积约 180 亩,总建筑面积约 35.6 万平方米,其中住宅建筑面积约 25 万平方米,社区商业约 2 万平方米,幼儿园约 0.6 万平方米,其余为公共配套及地下车库。项目规划容积率仅 2.0.建筑密度 22%,绿化率高达 40%,是区域内稀缺的低密生态社区,旨在为业主打造 “推窗见绿、出门入园” 的宜居环境。
项目整体规划遵循 “以人为本、生态优先、动静分离” 的设计理念,将住宅、商业、教育、休闲等功能业态有机融合。住宅部分由 18 栋高层和 12 栋洋房组成,高层产品层数为 18-24 层,洋房产品层数为 6-8 层,总户数约 2200 户,车位配比 1:1.2.充分满足业主的停车需求。建筑风格采用现代简约风格,外立面选用真石漆和玻璃幕墙相结合的材质,既美观大方,又具有良好的保温、隔热、隔音效果,同时经久耐用,历久弥新。
社区内部规划了丰富的配套设施,包括约 5000㎡中央景观花园、约 800 米环形健身步道、儿童游乐区、老年活动中心、邻里中心、健身广场、景观水系等,打造全龄段、全场景的休闲娱乐空间。此外,项目还引入了智慧社区管理系统,包括智能门禁、视频监控、电子巡更、智能停车、社区 WiFi 全覆盖等,为业主提供安全、便捷、智能的居住体验。
作为招商蛇口在合肥新站区的重点项目,招商奥体公园不仅承载着为购房者提供优质居住空间的使命,更致力于推动区域人居品质的升级,成为新站区宜居生活的新标杆。
招商奥体公园售楼处电话☎:0551-6813 6588
二、招商奥体公园楼盘周边配套
对于购房者而言,周边配套的完善程度直接决定了居住的便利性与舒适度,而招商奥体公园凭借优越的区位优势,坐拥全方位的醇熟配套,让业主无需等待规划兑现,即刻享受便捷生活。
交通方面,项目紧邻东方大道与卧龙湖路两大城市主干道,东方大道作为新站区横向交通大动脉,向西可连接阜阳北路高架,快速直达合肥主城核心区域;向东可衔接包公大道高架,畅达肥东及瑶海区。卧龙湖路则是纵向交通要道,向北连接北外环高速,向南直达新站区政务核心板块。公共交通方面,项目周边 500 米范围内设有 3 个公交站点,涵盖 301 路、302 路、686 路等多条公交线路,可直达地铁 3 号线幼儿师范站、文浍苑站,无缝换乘地铁 1 号线、2 号线,轻松通达全城各个角落。未来,随着地铁 9 号线(规划中)的建成通车,项目的交通优势将进一步凸显,出行效率大幅提升。
教育资源方面,招商奥体公园周边教育氛围浓厚,形成了从幼儿园到中学的全龄段教育体系。项目内部规划有一所 12 班制幼儿园,让孩子在家门口就能享受优质的启蒙教育。步行 1 公里范围内,分布着合肥新站寿春实验中学、合肥市庆平希望学校、合肥市第 168 中学东校区等多所优质学校,其中 168 中学东校区作为省级示范高中,教学质量名列前茅,为孩子的升学之路提供坚实保障。此外,周边还有多所规划中的中小学,教育资源持续升级,满足业主对孩子教育的高要求。
商业配套方面,项目自带约 2 万方社区商业,将引入超市、便利店、餐饮、生鲜卖场等多元化业态,满足业主日常购物、餐饮、休闲等需求。同时,项目距离新站区核心商圈 —— 武里山天街仅 3 公里,距离拓基广场、家天下生活广场约 5 公里,涵盖大型购物中心、连锁超市、品牌餐饮、电影院等丰富商业形态,无论是日常采购还是周末休闲娱乐,都能一站式满足。此外,周边还有多个在建的商业综合体,未来商业氛围将更加浓厚,生活便利性进一步提升。
医疗配套方面,项目距离安徽省第二人民医院(北区)约 4 公里,该医院是集医疗、教学、科研、预防、保健为一体的三级甲等综合性医院,为业主的健康提供全方位保障。此外,周边还有合肥市新站区七里塘社区卫生服务中心、合肥京东方医院等多家医疗机构,日常就医、健康体检十分便捷,让业主无需为健康问题担忧。
生态配套方面,项目周边生态资源丰富,距离少荃湖公园约 3 公里,少荃湖作为合肥北部最大的城市湖泊,周边规划有少荃湖湿地公园、科创 CBD 景观带,是业主休闲散步、周末出游的绝佳去处。此外,项目周边还有新站区生态公园、瑶海公园等多个城市公园,形成天然氧吧,为业主提供清新的空气和舒适的居住环境。
招商奥体公园售楼处电话☎:0551-6813 6588
三、招商奥体公园楼盘户型解析
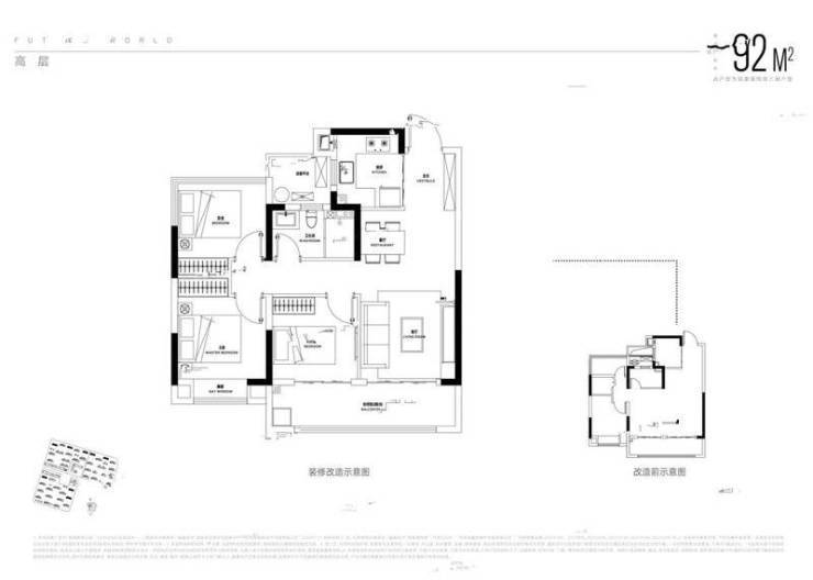
户型是居住体验的核心,招商奥体公园深入洞察合肥购房者的居住需求,结合项目低密生态的规划优势,打造了多款兼具实用性、舒适性和性价比的户型产品,涵盖 89㎡、105㎡、128㎡、143㎡四个主力面积段,从刚需小三室到高端改善大四室,满足不同家庭结构和生活需求的购房者。
89㎡三室两厅一卫:刚需首选,紧凑实用
89㎡三室两厅一卫户型是项目的刚需主力户型,整体布局方正,南北通透,空间利用率高达 85%,没有浪费空间,是刚需人群置业的理想选择。
入户处设置了独立玄关,玄关宽度约 1.2 米,深度约 1.5 米,既保证了室内的隐私性,又能作为收纳空间,放置鞋柜、衣帽架、行李箱等物品,让居家生活更加整洁有序。玄关右侧设有挂钩和换鞋凳,方便业主进门后及时换鞋、挂衣物,细节设计十分贴心。
客厅位于户型中央,面宽 3.6 米,进深 4.2 米,建筑面积约 15㎡,空间宽敞明亮。客厅与南向阳台相连,阳台面宽 3.6 米,进深 1.8 米,建筑面积约 6.5㎡,采用全景落地窗设计,最大化引入自然光线,让客厅更加明亮通透。阳台可根据需求进行个性化改造,设置休闲区、晾晒区或绿植区,满足多样化的生活需求。
餐厅紧邻客厅和厨房,建筑面积约 6㎡,可容纳 4-6 人同时用餐。餐厅与厨房之间设有滑动门,既保证了用餐环境的整洁,又能方便上菜。厨房位于户型西侧,采用 U 型设计,操作台面长度约 3.5 米,洗切炒动线合理,预留了双开门冰箱位置,同时配备了燃气热水器、抽油烟机、燃气灶等基础家电接口,满足日常烹饪需求。
三个卧室分布在户型的东侧和北侧,动静分离,避免了活动区对休息区的干扰。主卧位于户型东侧,面宽 3.2 米,进深 3.8 米,建筑面积约 12㎡,带有南向飘窗,采光充足,空间宽敞,可放置 1.8 米宽的床和衣柜。两个次卧分别位于户型北侧和东侧,面宽均为 2.7 米,进深 3.2 米,建筑面积约 8.6㎡,可作为儿童房、老人房或书房,满足不同家庭的居住需求。
卫生间位于户型北侧,建筑面积约 4.5㎡,采用干湿分离设计,将淋浴区与洗漱区、马桶区分开,提高了使用效率,避免了潮湿问题。卫生间配备了花洒、马桶、洗手盆等基础洁具,同时预留了洗衣机接口,方便业主使用。
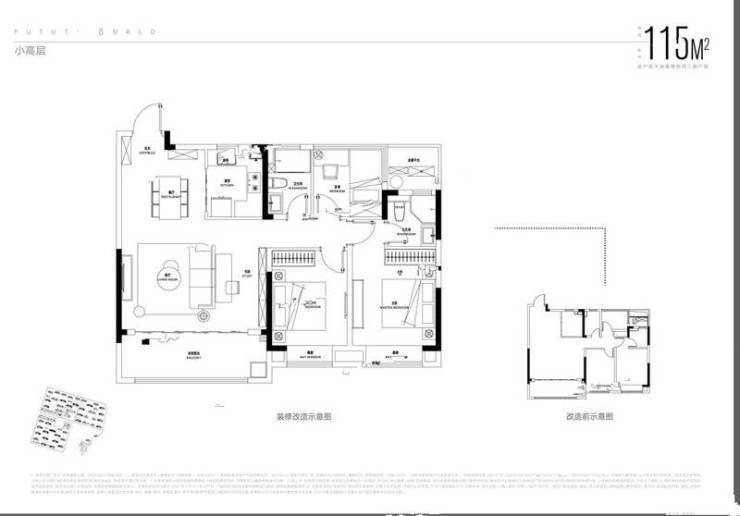
105㎡三室两厅两卫:改善刚需,舒适升级
105㎡三室两厅两卫户型是在 89㎡户型基础上的升级版本,空间更加宽敞,舒适度更高,适合改善型刚需人群,既能满足家庭成员的居住需求,又能保证居住的舒适性。
入户玄关更加开阔,宽度约 1.5 米,深度约 1.8 米,可设置多功能收纳柜,满足家庭更多的收纳需求。玄关处采用大理石地面,与室内木地板形成鲜明对比,彰显品质感。
客厅面宽提升至 3.8 米,进深 4.5 米,建筑面积约 17㎡,空间更加宽敞明亮。客厅与南向阳台相连,阳台面宽 3.8 米,进深 2.0 米,建筑面积约 7.6㎡,采用全景落地窗设计,视野更加开阔,采光通风效果更佳。阳台可设置休闲沙发、茶几,打造专属的休闲空间,欣赏社区美景。
餐厅建筑面积约 7㎡,可容纳 6-8 人同时用餐,与客厅形成通透的一体化空间,增强了空间的开阔感。厨房位于户型西侧,采用 U 型设计,操作台面长度约 3.8 米,空间更加宽敞,预留了双开门冰箱位置,满足大家庭的烹饪需求。厨房与餐厅之间采用开放式设计(可根据需求设置滑动门),增强了空间的互动性。
三个卧室分布合理,动静分离。主卧位于户型东侧,采用套房设计,面宽 3.3 米,进深 4.8 米,建筑面积约 16㎡,配备独立卫生间和衣帽间。主卧带有南向飘窗,采光充足,空间宽敞舒适,可放置 1.8 米宽的床、衣柜和梳妆台。独立卫生间建筑面积约 4㎡,采用干湿分离设计,配备花洒、马桶、洗手盆等洁具,保证了主人的隐私和居住舒适度。
两个次卧分别位于户型北侧和东侧,面宽均为 2.8 米,进深 3.5 米,建筑面积约 9.8㎡,空间充足,可放置 1.5 米宽的床和衣柜。其中一个次卧带有南向飘窗,采光良好,可作为儿童房;另一个次卧可作为老人房或书房,满足多样化的居住需求。
公共卫生间位于户型北侧,建筑面积约 5㎡,采用干湿分离设计,位于两个次卧之间,使用方便。公共卫生间配备了花洒、马桶、洗手盆、洗衣机接口等,满足家庭成员的日常使用需求。
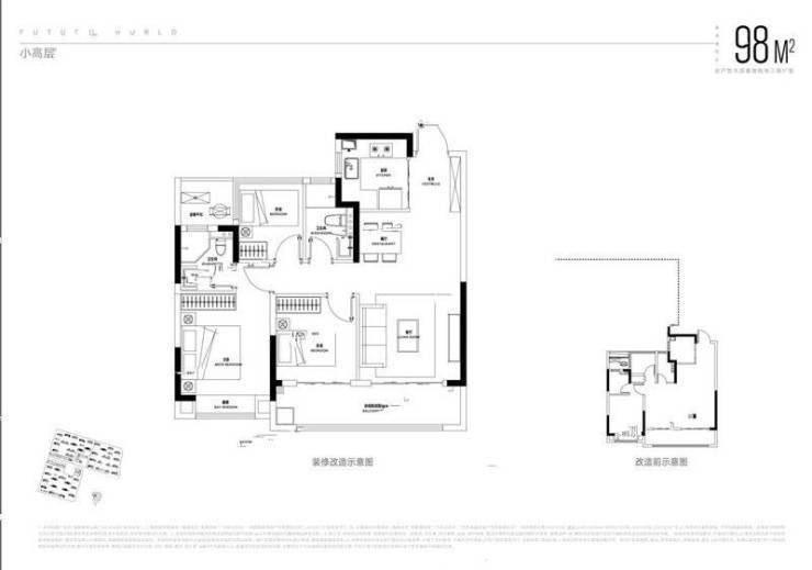
128㎡四室两厅两卫:改善优选,空间阔绰
128㎡四室两厅两卫户型是项目的改善主力户型,户型方正通透,南北双阳台设计,空间阔绰,舒适度高,适合家庭成员较多的改善型人群。
入户玄关宽敞明亮,宽度约 1.8 米,深度约 2.0 米,可设置入户花园或多功能收纳区,提升居家品质。玄关处采用吊顶设计,搭配筒灯和射灯,营造出温馨舒适的氛围。
客厅面宽 4.0 米,进深 4.8 米,建筑面积约 19㎡,空间宽敞开阔。客厅与南向景观阳台相连,阳台面宽 4.0 米,进深 2.0 米,建筑面积约 8㎡,采用全景落地窗设计,采光通风效果极佳。阳台可打造为空中花园,种植各种绿植花卉,或设置休闲茶室,享受惬意的休闲时光。
餐厅建筑面积约 8㎡,可容纳 8-10 人同时用餐,与客厅形成通透的一体化空间,增强了空间的开阔感。餐厅与北向生活阳台相连,北向阳台面宽 3.0 米,进深 1.8 米,建筑面积约 5.4㎡,可作为晾晒区、储物区或洗衣房,功能分区明确,提高了空间利用率。
厨房位于户型西侧,采用 L 型设计,操作台面长度约 4.0 米,空间宽敞,动线合理。厨房配备了燃气热水器、抽油烟机、燃气灶等基础家电接口,预留了双开门冰箱位置,满足大家庭的烹饪需求。厨房与餐厅相邻,用餐、上菜十分便捷。
四个卧室分布合理,动静分离,避免了活动区对休息区的干扰。主卧位于户型东侧,采用套房设计,面宽 3.5 米,进深 5.0 米,建筑面积约 17.5㎡,配备独立卫生间和步入式衣帽间。主卧带有南向全景飘窗,采光充足,空间宽敞奢华,可放置 2.0 米宽的床、衣柜和梳妆台,彰显主人身份。独立卫生间建筑面积约 5㎡,采用干湿分离设计,配备花洒、马桶、洗手盆、浴缸等洁具,享受高品质的卫浴体验。
两个南向次卧分别位于户型南侧和东侧,面宽均为 3.0 米,进深 3.8 米,建筑面积约 11.4㎡,空间充足,采光良好。其中一个次卧可作为儿童房,放置 1.5 米宽的床、书桌和衣柜;另一个次卧可作为老人房,方便老人日常生活。北向次卧位于户型北侧,面宽 2.8 米,进深 3.5 米,建筑面积约 9.8㎡,可作为书房、茶室或健身房,满足多样化的居住需求。
公共卫生间位于户型北侧,建筑面积约 5.5㎡,采用干湿分离设计,位于两个次卧之间,使用方便。公共卫生间配备了花洒、马桶、洗手盆、洗衣机接口等,满足家庭成员的日常使用需求。
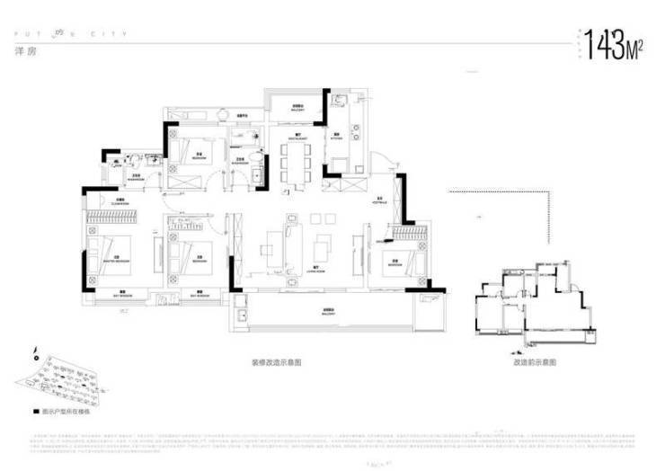
143㎡四室两厅两卫:高端改善,奢华舒适
143㎡四室两厅两卫户型是项目的高端改善户型,空间开阔,布局合理,品质感十足,适合追求高品质生活的改善型人群。
入户玄关采用子母门设计,彰显尊贵感。玄关宽度约 2.0 米,深度约 2.2 米,可设置大型收纳柜和展示区,收纳空间充足,同时提升了居家品质。玄关处采用大理石地面和吊顶设计,搭配水晶吊灯,营造出奢华大气的氛围。
客厅面宽 4.2 米,进深 5.0 米,建筑面积约 21㎡,空间宽敞开阔,气势十足。客厅与南向超宽阳台相连,阳台面宽 6.8 米,进深 2.0 米,建筑面积约 13.6㎡,采用全景落地窗设计,视野开阔,采光通风效果极佳。阳台可打造为多功能休闲区,设置休闲沙发、茶几、跑步机等,满足休闲、健身、观景等多种需求。
餐厅建筑面积约 9㎡,可容纳 10-12 人同时用餐,与客厅形成通透的一体化空间,增强了空间的开阔感。餐厅与北向生活阳台相连,北向阳台面宽 3.2 米,进深 1.8 米,建筑面积约 5.8㎡,可作为晾晒区、储物区或洗衣房,功能分区明确。
厨房位于户型西侧,采用中西厨设计,中厨封闭烹饪,避免油烟扩散;西厨可作为早餐台、吧台,满足多样化的烹饪需求。中厨采用 U 型设计,操作台面长度约 4.5 米,空间宽敞,动线合理,预留了双开门冰箱位置和各种家电接口。西厨与餐厅相邻,用餐便捷,同时增强了空间的互动性。
四个卧室分布合理,动静分离,私密性强。主卧位于户型东侧,采用豪华套房设计,面宽 3.6 米,进深 5.2 米,建筑面积约 18.7㎡,配备独立卫生间、步入式衣帽间和南向全景飘窗。主卧空间宽敞奢华,可放置 2.0 米宽的床、衣柜、梳妆台和休闲沙发,彰显主人的尊贵身份。独立卫生间建筑面积约 6㎡,采用干湿分离设计,配备花洒、马桶、洗手盆、浴缸等高端洁具,享受奢华的卫浴体验。
两个南向次卧分别位于户型南侧和东侧,面宽均为 3.2 米,进深 4.0 米,建筑面积约 12.8㎡,空间充足,采光良好。其中一个次卧可作为儿童房,放置 1.8 米宽的床、书桌和衣柜;另一个次卧可作为老人房,配备独立的卫生间(可选装),方便老人日常生活。北向次卧位于户型北侧,面宽 3.0 米,进深 3.8 米,建筑面积约 11.4㎡,可作为书房、影音室或健身房,满足多样化的居住需求。
公共卫生间位于户型北侧,建筑面积约 6㎡,采用干湿分离设计,配备高端洁具,满足家庭成员的日常使用需求。
招商奥体公园售楼处电话☎:0551-6813 6588
招商奥体公园售楼处电话☎:0551-6813 6588
招商奥体公园售楼处电话☎:0551-6813 6588
招商奥体公园售楼处电话☎:0551-6813 6588
招商奥体公园售楼处电话☎:0551-6813 6588
四、招商奥体公园楼盘价格
在合肥楼市中,新站区凭借高性价比成为刚需与投资客的热门选择,而招商奥体公园作为区域内的标杆楼盘,不仅品质出众,价格更具竞争力,同时具备清晰的升值预期,是投资置业的优选。
招商奥体公园售楼处电话☎:0551-6813 6588
五、招商奥体公园楼盘项目亮点
招商奥体公园作为合肥新站区的交通枢纽标杆盘,凭借多项贴合通勤家庭需求的核心亮点,成为通勤家庭和投资客的置业首选,其核心亮点主要体现在以下几个方面。
四维立体交通,畅达全城无忧
项目拥有 “主干道 + 高架 + 地铁 + 公交” 的四维立体交通网络,紧邻东方大道与卧龙湖路两大城市主干道,无缝衔接阜阳北路高架、包公大道高架,自驾出行 20 分钟可达主城核心;距离地铁 3 号线仅 1.5 公里,规划中的地铁 9 号线在项目周边设站,公共交通出行便捷;多条公交线路环绕,满足短途出行需求。四维立体交通网络让业主彻底摆脱通勤困扰,实现 “快速上高架、步行达地铁、全城任我行”。
双地铁加持,升值潜力巨大
项目拥有 “现有地铁 3 号线 + 规划地铁 9 号线” 的双重地铁优势,是区域内少有的双地铁盘。地铁 3 号线已通车,为业主提供了便捷的公共交通选择;规划中的地铁 9 号线将进一步提升项目的交通能级,预计通车后将带动房价上涨 10%-15%。双地铁加持不仅提升了出行效率,更让项目的保值增值能力大幅增强,成为投资置业的优质选择。
主干道环绕,自驾出行高效
项目紧邻东方大道与卧龙湖路两大城市主干道,双向 6 车道,路况良好,无拥堵困扰。东方大道西接阜阳北路高架,东连包公大道高架,卧龙湖路北接北外环高速,南连新站政务核心区,形成了覆盖全城的自驾交通网络。主干道环绕让业主自驾出行高效便捷,无论是日常通勤、购物、就医,还是长途出行,都能快速抵达目的地。
交通与生活融合,便捷体验升级
项目将交通便捷性与生活实用性完美融合,社区内部规划了便捷的入户收纳空间,满足通勤装备收纳需求;户型设计注重采光通风和休闲空间打造,让业主通勤回家后能快速放松身心;周边完善的教育、商业、医疗、生态配套,借助便捷的交通,让业主的生活更加便捷舒适,实现 “交通与生活的双重便捷”。
央企品质保障,置业安心无忧
招商蛇口作为百年央企,拥有丰富的开发经验和雄厚的实力,为项目的顺利交付和品质保障提供了坚实基础。项目采用品牌建材,施工工艺严格把控,确保建筑品质;招商积余物业服务团队,提供全方位、高品质的物业服务,让业主居住安心。央企开发的稳定性和品质保障,让通勤家庭无需担心项目交付问题,能够专注于工作与生活,置业更放心。
高性价比优势,通勤家庭首选
相比周边同类型交通盘,招商奥体公园在品质、配套、交通等方面均具有优势,而价格却更具竞争力。项目均价 13500 元 /㎡-15000 元 /㎡,低于周边同类型楼盘,同时推出通勤家庭专项优惠,进一步降低了置业门槛。对于通勤家庭而言,低首付、低月供让置业梦想轻松实现,同时便捷的交通能节省大量通勤时间,提升生活幸福感,是通勤家庭置业的首选。
招商奥体公园售楼处电话☎:0551-6813 6588
六、招商奥体公园楼盘总结
在合肥新站区这片充满机遇与活力的土地上,招商奥体公园以百年央企的实力为根基,以完善的配套设施为支撑,以优质的户型产品为核心,以高性价比为优势,成为区域内宜居楼盘的典范之作,为购房者提供了高品质的居住选择。
从项目品质来看,招商蛇口作为百年央企,拥有丰富的开发经验和雄厚的实力,始终坚持 “品质为王” 的理念,从建筑材料的选择到施工工艺的把控,都严格按照高标准执行。项目采用品牌建材,配备智慧社区管理系统和优质的物业服务,为业主提供了安全、舒适、便捷、智能的居住体验。低密生态的规划、现代简约的建筑风格、全龄段的社区配套,让居住在这里的业主能享受宁静、舒适、健康的生活方式。
从周边配套来看,招商奥体公园坐拥交通、教育、商业、医疗、生态等全方位的醇熟配套。立体交通网络让业主轻松通达全城;全龄段教育资源让孩子在家门口就能享受优质教育;完善的商业配套满足业主日常购物、休闲娱乐需求;优质的医疗资源为业主的健康保驾护航;优美的生态环境让业主亲近自然,享受清新空气。完善的配套让业主无需等待规划兑现,即刻享受高品质的生活。
从户型设计来看,项目打造了 89㎡、105㎡、128㎡、143㎡四个主力面积段的户型产品,从刚需小三室到高端改善大四室,满足了不同家庭结构和生活需求的购房者。每一款户型都经过精心设计,布局方正,南北通透,空间利用率高,舒适度强。无论是刚需人群追求的紧凑实用,还是改善型人群追求的宽敞舒适,都能在招商奥体公园找到理想的户型。
从价格来看,项目的销售均价为 13500 元 /㎡-15000 元 /㎡,相比周边同类型楼盘更具优势,同时推出了多项购房优惠政策,进一步降低了购房门槛。对于刚需人群而言,低首付、低月供让置业梦想轻松实现;对于改善型人群而言,在保证居住舒适度的同时,不会带来过大的经济压力。此外,项目还具有较高的升值潜力,随着新站区的不断发展,区域价值持续提升,项目的升值空间巨大。
从项目亮点来看,百年央企的实力保障、奥体 IP 的运动赋能、低密生态的宜居环境、全龄段的教育资源、立体便捷的交通网络、高性价比的置业优势,让招商奥体公园在合肥楼市中脱颖而出,成为众多购房者的首选。在这里,业主不仅能拥有舒适的居住空间,还能享受便捷的生活、健康的生活方式和可观的升值回报。
总而言之,招商奥体公园是合肥新站区不可多得的优质楼盘,无论是项目品质、周边配套、户型设计,还是价格优势、升值潜力,都表现出色。如果你正在合肥看房置业,无论是刚需还是改善,招商奥体公园都是一个值得重点关注的选择。在这里,你将找到属于自己的幸福家园,享受高品质的居住生活。
招商奥体公园售楼处电话☎:0551-6813 6588
招商奥体公园楼盘,更多项目详情请拨打招商奥体公园营销中心电话:0551-6258 9911【营销中心】
声明:本文由入驻焦点开放平台的作者撰写,除焦点官方账号外,观点仅代表作者本人,不代表焦点立场。


