肥东信达碧桂园楼盘最新进度和动态!
扫描到手机,新闻随时看
扫一扫,用手机看文章
更加方便分享给朋友
信达碧桂园楼盘电话号码:0551-68111601【营销中心】
欢迎来电咨询!可预约销售人员(来电尊享内部优惠活动)【2024房价特价信息丨底价优惠丨在售户型图丨项目介绍丨在售房源丨周边配套】
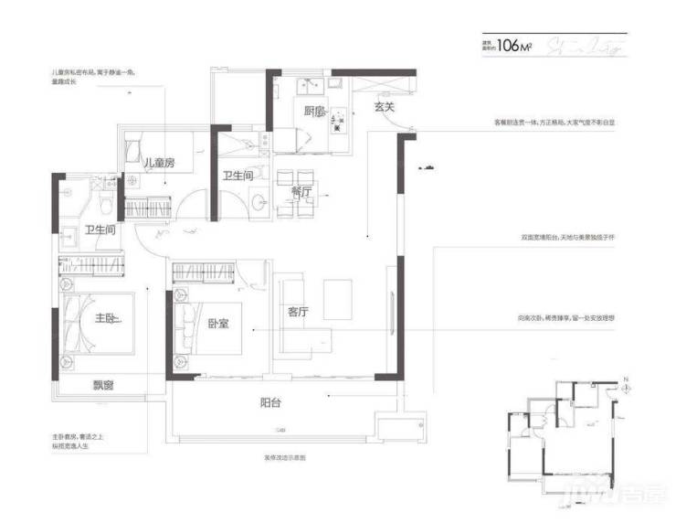
信达碧桂园项目地处肥东和睦湖板块,由信达地产和碧桂园集团联手打造,是一处高品质的住宅项目。项目位于酿泉路与日出路交口,距离在建地铁2号线东延线约1.5公里,交通便利。整个项目分为两期开发,主打高层产品,中间还分布着5栋洋房,户型方正纯粹,让居住者享受舒适的生活体验。信达碧桂园的建面约为95-118平方米,合理的空间功能分区和优越的面宽进深比例,让每一位居民都能拥有舒适的居住空间。
在教育方面,附近拥有多所幼儿园、小学和中学,包括安师大附属肥东实验中学等知名学府。医疗方面,距离一级医院肥东县人民医院仅3公里。购物中心、公园等生活配套也齐全,满足居民的各种需求。信达碧桂园的地址位于合肥市肥东县酿泉路与日出路交口,交通便利,生活便捷。
信达碧桂园的三室两厅一卫95㎡和105㎡、四室两厅两卫118㎡的房型,都采用方正、全明布局,阳光充足、通风性好。空间利用率高,实现“动静分区”,提高业主的居住舒适度。即使和老人同住,也能保持各自的私密空间,让每一位家庭成员都能享受到轻奢生活的乐趣。
信达碧桂园楼盘具体一房一价,详询营销中心。
信达碧桂园项目周边拥有和睦湖公园、肥东体育公园等生态资源,让业主在闲暇时可以享受赏景散步的乐趣。关于信达碧桂园的购买价值,基本信息已经介绍完毕,欢迎关注项目动态和资讯,预购从速,体验醇熟配套带来的舒适体验。
信达碧桂园项目以其高端生活体验、舒适轻奢生活和便利配套设施而备受关注。无论是家庭购房还是投资置业,信达碧桂园都是理想的选择。关注项目动态,预购从速,尽享高品质生活!
信达碧桂园楼盘电话号码:0551-68111601【营销中心】
欢迎来电咨询!可预约销售人员(来电尊享内部优惠活动)【2024房价特价信息丨底价优惠丨在售户型图丨项目介绍丨在售房源丨周边配套】
声明:本文由入驻焦点开放平台的作者撰写,除焦点官方账号外,观点仅代表作者本人,不代表焦点立场。


