绿城溪山禾苑最新消息|楼盘详情|房价户型|区域配套|售楼处电话
扫描到手机,新闻随时看
扫一扫,用手机看文章
更加方便分享给朋友
绿城溪山禾苑楼盘电话号码:0551-68111601【营销中心】
欢迎来电咨询!可预约销售人员(来电尊享内部优惠活动)【2026房价特价信息丨底价优惠丨在售户型图丨项目介绍丨在售房源丨周边配套】
城市中芯的重要性不言而喻,而绿城溪山禾苑作为一个品质之作,选择落户于肥西主城正芯,旨在打造一个诗意人居的理想之地。肥西主城的地理位置优越,配套设施完善,交通便利,使得这里成为肥西未来发展的重心。绿城溪山禾苑的落成,将进一步提升肥西主城的品质生活水平,成为城市中芯周边的一颗璀璨明珠。
绿城溪山禾苑售楼处电话☎:0551-6813 6588
合肥绿城溪山禾苑是新型TOD住宅的范本,通过TOD上盖的设计,创造了多维交通枢纽、高效融合的全新生活场景。项目以3号线李湾地铁站(南延在建)为核心,构筑了城市空间聚合场景。在这里,居民可以享受便捷的交通,同时也能够感受到肥西主城活力的中心位置带来的便利。城市生活在这里得以聚能,延伸到地铁3号线(南延在建)生活半径内,让居民拥有多元化的居住体验。
绿城溪山禾苑售楼处电话☎:0551-6813 6588
绿城溪山禾苑作为品质之作,落位于肥西主城核心地段,尽享肥西主城多年发展积累的齐全配套设施。项目周边2公里范围内聚集了Cmall商圈、百大购物中心、名邦广场、肥西县人民医院、合肥八中肥西中学、肥西三中等优质资源,涵盖了从生活必需品到教育医疗等全方位需求。同时,地铁3号线李湾站的便捷交通,更加凝练了绿城溪山禾苑的城市繁华。而项目周边的生态资源丰富,拥有潭冲河中央公园、古埂公园、丽景湖公园等绿意生态,为城市生活增添了一份灵感与悠闲。绿城溪山禾苑以其地段、繁华和静谧的融合,定位为肥西主城的理想人居之选,为居民们打造一个品质生活的新标杆。
绿城溪山禾苑售楼处电话☎:0551-6813 6588
2023年,国企信服置业与绿城管理联袂打造的品质之作——绿城溪山禾苑,择址肥西主城正芯。这座楼盘旨在打造诗意人居,与城市中芯、繁华融为一体,将成为一座品质生活的典范。
纵览住宅发展的格局,每一座优秀人居,无一不是雄踞核心地段。随着肥西的发展规划,人口红利及政府政策扶持,许多板块有了自己的区域活力;然而无论城市如何发展,真正的城芯只有一个——肥西主城板块。于绿城溪山禾苑而言,落笔肥西主城,亦是对城市核心区位的审视。
绿城溪山禾苑售楼处电话☎:0551-6813 6588
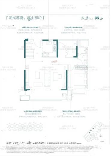
绿城溪山禾苑从空间布局与幸福居家双维度出发,匠造建筑面积约95-125平方米的升级空间。在空间布局上,充分考虑到居者的需求,每个户型都设计出创变的灵动空间。配合南向多开间格局,满足居者各种功能需求,并预留多处收纳空间,让小家越住越大。在居家幸福指数上,溪山禾苑充分考虑居住体验感。运用LDKB一体化设计、约6.1-7米奢阔横厅、三段式卫生间等设计巧思。同时,选用Low-E玻璃等质感建材,构筑时尚舒适之境。
绿城溪山禾苑售楼处电话☎:0551-6813 6588
绿城溪山禾苑售楼处电话☎:0551-6813 6588
绿城溪山禾苑楼盘具体一房一价,详询营销中心。
绿城溪山禾苑售楼处电话☎:0551-6813 6588
绿城溪山禾苑
楼盘电话号码:0551-68111601【营销中心】
欢迎来电咨询!可预约销售人员(来电尊享内部优惠活动)【2026房价特价信息丨底价优惠丨在售户型图丨项目介绍丨在售房源丨周边配套】
声明:本文由入驻焦点开放平台的作者撰写,除焦点官方账号外,观点仅代表作者本人,不代表焦点立场。


