新站区招商奥体公园楼盘怎么样-值得买吗
扫描到手机,新闻随时看
扫一扫,用手机看文章
更加方便分享给朋友
合肥(招商奥体公园)☎☎:0551-6258 9911【官方认证】
2021年,招商地产选择在合肥新站区少荃湖板块布局,打造了合肥首个百万方奥体TOD体育综合体。这个项目位于东方大道与卧龙湖路交叉口,包括少荃体育中心、长空公园、花园里商街、奥体上城等多个业态,为居民提供了丰富多彩的生活方式。招商奥体公园不仅拥有丰富的住宅产品,还有公园、体育中心、购物中心、社区商业中心等配套设施,满足居民多重生活需求。同时,项目周边还有地铁四号线、竹溪小学、京东方医院、少荃湖湿地公园等资源,为居民提供便利的生活环境。
招商奥体公园售楼处电话☎:0551-6813 6588
交通上项目紧邻地铁4号线始发站综保区站地铁口,奥体巴士同步4号线,串联城市与社区,交通便捷,通达全城。同时,三纵三横的干道交汇也为项目的出行提供了更多选择。在商业配套上,项目自带约2.5万方的活力荟商业街区,西侧还规划有14万方的大型商业综合体,北侧5万方的星级酒店已封顶,南侧则有8万方的弘盛商业广场,共同构成了项目强大的商业支撑。这些便捷的交通和完善的商业配套,为居民提供了便利的生活条件。
在教育方面,项目一期二期配套有合肥市168陶冲湖校区和合肥市伦先小学,以及自建的幼儿园;三期四期五期则配套有合肥168陶冲湖校区、竹溪小学少荃校区和自建幼儿园,为业主提供了优质的教育资源。此外,项目周边的医疗资源也十分丰富,包括安徽医科大学第一附属医院北区和京东方医院,为业主的健康保驾护航。同时,项目周边的少荃湖湿地公园、二十埠河生态廊道等自然景观,也为业主提供了休闲娱乐的好去处。招商奥体公园不仅提供了舒适便捷的居住条件,还为居民提供了优质的教育和医疗资源,以及丰富多彩的休闲娱乐选择。
招商奥体公园售楼处电话☎:0551-6813 6588
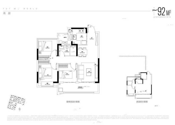
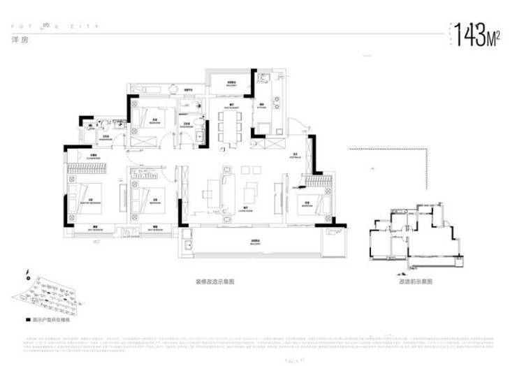
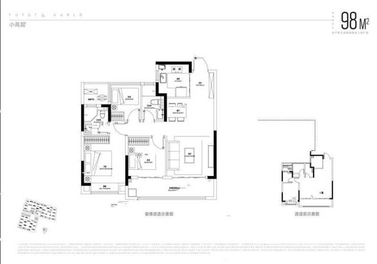
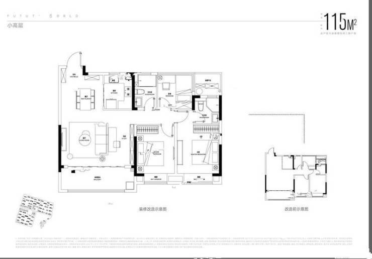
招商奥体公园主打刚需小户型,主力户型面积介于89-119㎡之间,包括二居室和三居室,满足不同购房者的需求。其中,92㎡的户型三室两厅一卫,南北通透的设计,采光和通风良好,主卧带有一个飘窗,卫生间干湿分离,客厅和餐厅一体化设计,空间宽敞。客厅和旁边的卧室阳台相连,阳台空间较大,可打造出一个开放性空间。招商奥体公园的多样户型选择,满足了购房者对于不同空间需求和生活方式的追求。
招商奥体公园售楼处电话☎:0551-6813 6588
招商奥体公园售楼处电话☎:0551-6813 6588
招商奥体公园售楼处电话☎:0551-6813 6588
招商奥体公园售楼处电话☎:0551-6813 6588
招商奥体公园售楼处电话☎:0551-6813 6588
项目的优势在于其综合性和便利的交通配套。周边交通便捷,地铁四号线贯穿,使居民出行更加方便快捷。同时,项目内部设施完善,包括商业配套和公园景观,为居民提供了丰富的生活体验。此外,招商奥体公园的售价也相对亲民,部分户型均价在1.35万/㎡至2万/㎡之间,吸引了众多购房者的关注和青睐。
招商奥体公园售楼处电话☎:0551-6813 6588
招商奥体公园的推出,为合肥新站区少荃湖板块的发展注入了新的活力。以优越的地理位置、丰富的配套设施、优质的住宅产品和可靠的品牌背书,招商奥体公园必将成为当地居民理想的居住选择。随着项目的不断建设和完善,未来将会吸引更多购房者前来关注和购买,也将提升当地的房地产市场发展水
招商奥体公园售楼处电话☎:0551-6813 6588
招商奥体公园以卓越品质和丰富配套,引领合肥新风尚。作为一个综合性的生活圈,项目内设施齐全,周边资源丰富,为居民提供了舒适便捷的生活环境。购房者不仅可以享受优惠政策,还可以体验到多样化的生活体验,是一个理想的居住选择。
招商奥体公园售楼处电话☎:0551-6813 6588
招商奥体公园售楼处电话☎:0551-6258 9911
合肥招商奥体公园售楼处电话☎:0551-6258 9911
售楼电话┇——☎0551-6258 9911——┇来电详细解答
温馨提示:提前预约销售人员看房,感谢您对售楼处的配合!
⚠免责声明:请尊重他人的努力和智慧,避免未经授权的复制或引用。
声明:本文由入驻焦点开放平台的作者撰写,除焦点官方账号外,观点仅代表作者本人,不代表焦点立场。


