新站区招商奥体公园项目户型图-值得买吗
扫描到手机,新闻随时看
扫一扫,用手机看文章
更加方便分享给朋友
合肥(招商奥体公园)☎☎:0551-6813 6588【官方认证】
招商奥体公园位于合肥新站奥体板块内,总面积超过百万平方米,集六种不同业态于一体。项目内规划有高层、小高层和洋房等多种住宅类型,以满足不同购房者的需求。所有住宅均为精装交付,且绿化率较高,项目紧邻地铁4号线,多条主要道路交汇,兼顾了舒适居住与出行便捷。
招商奥体公园售楼处电话☎:0551-6813 6588
交通上,项目紧邻地铁4号线始发站综保区站地铁口,奥体巴士同步4号线,串联城市与社区,交通便捷,通达全城。三纵三横的干道交汇也为项目出行提供更多选择。商业配套丰富,项目自带约2.5万方活力荟商业街区,西侧还规划有14万方大型商业综合体,北侧5万方星级酒店已封顶,南侧有8万方的弘盛商业广场,共同构成项目强大商业支撑。
项目一期二期配套有合肥市168陶冲湖校区、伦先小学和自建幼儿园;三期四期五期配套有合肥168陶冲湖校区、竹溪小学少荃校区和自建幼儿园,为业主提供优质教育资源。周边医疗资源丰富,包括安徽医科大学第一附属医院北区和京东方医院,为业主的健康保驾护航。少荃湖湿地公园、二十埠河生态廊道等自然景观,也为业主提供休闲娱乐的好去处。
招商奥体公园售楼处电话☎:0551-6813 6588
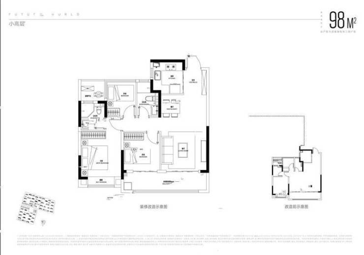
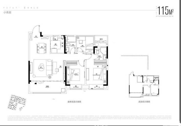
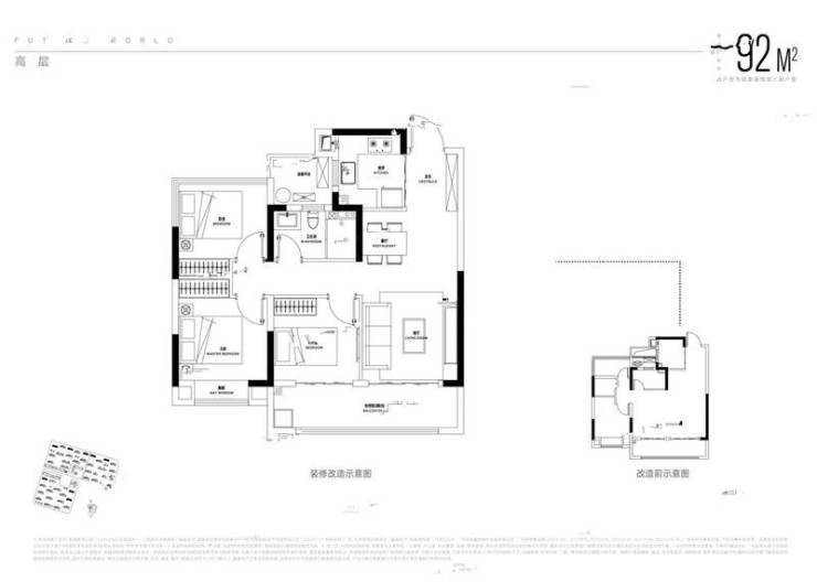
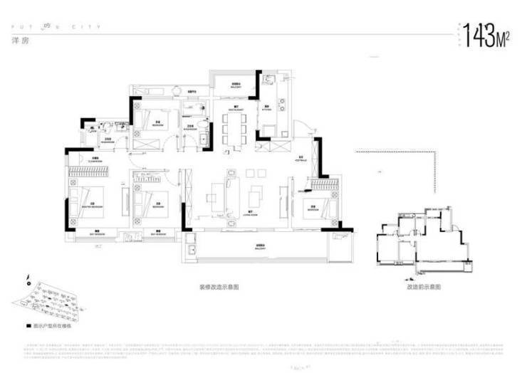
招商奥体公园主打刚需小户型,户型面积介于89-119㎡之间,满足不同购房者的需求。其中,92㎡的户型设计南北通透,采光和通风良好,主卧带有一个飘窗,卫生间干湿分离,客厅和餐厅一体化设计,空间宽敞舒适。客厅和卧室阳台相连,阳台空间较大,可打造出一个开放性的空间,提升居住舒适度。
招商奥体公园售楼处电话☎:0551-6813 6588
招商奥体公园售楼处电话☎:0551-6813 6588
招商奥体公园售楼处电话☎:0551-6813 6588
招商奥体公园售楼处电话☎:0551-6813 6588
招商奥体公园售楼处电话☎:0551-6813 6588
近期在售的招商奥体公园一、二期现房,三、四期准现房,户型面积在88-115m²。作为一线品牌央企,招商在合肥拥有多年深耕发展的经验,带来了多座高品质人居作品。选择招商奥体公园,不仅能享受便利的生活配套和优越的交通条件,更能拥有一个品质生活的家园。
招商奥体公园售楼处电话☎:0551-6813 6588
招商奥体公园项目是新站区销售情况名列前茅的楼盘,目前新站区在售的楼盘比较多,均为刚需楼盘,有想在新站区购房置业的网友,可以对比招商奥体公园后,再做决定。
招商奥体公园售楼处电话☎:0551-6813 6588
总的来说,招商奥体公园在合肥新房市场中表现突出,成为了刚需购房者关注的焦点。优越的地理位置、合适的价格、丰富的业态配套以及智能化的管理服务,使这个项目备受青睐。对于想要在新站区购房的购房者来说,招商奥体公园无疑是一个不错的选择。
招商奥体公园售楼处电话☎:0551-6813 6588
招商奥体公园楼盘电话号码:0551-6813 6588【营销中心】
欢迎来电咨询!可预约销售人员(来电尊享内部优惠活动)
【2024房价特价信息丨底价优惠丨在售户型图丨项目介绍丨在售房源丨周边配套】
声明:本文由入驻焦点开放平台的作者撰写,除焦点官方账号外,观点仅代表作者本人,不代表焦点立场。


