合肥伟星城新房新小区、好项目、看房方便
扫描到手机,新闻随时看
扫一扫,用手机看文章
更加方便分享给朋友
伟星城楼盘电话号码:0551-68111601【营销中心】
欢迎来电咨询!可预约销售人员(来电尊享内部优惠活动)【2024房价特价信息丨底价优惠丨在售户型图丨项目介绍丨在售房源丨周边配套】
伟星地产在合肥的发展迅速,尤其是在肥东和睦湖板块的伟星城项目,更是其在肥东的一大亮点。伟星城位于东部新城核心区,项目占地272.33亩,规划了37栋住宅楼,共计2596套房源,多为15-18层的小高层,毛坯交付。交通、教育、医疗等配套设施齐备,居住环境优美,是一个理想的人居地带。
伟星城售楼处电话☎:0551-6813 6588
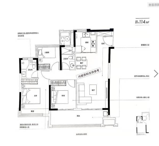
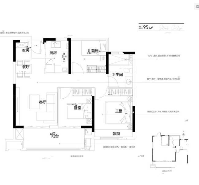
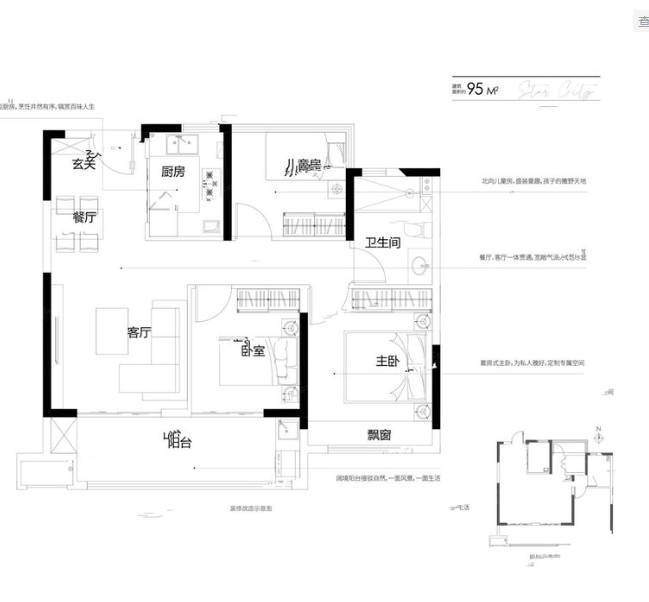
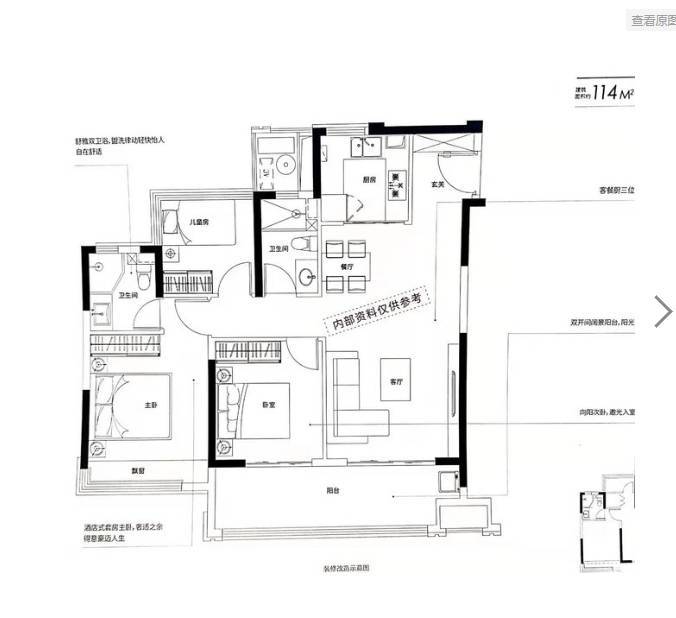
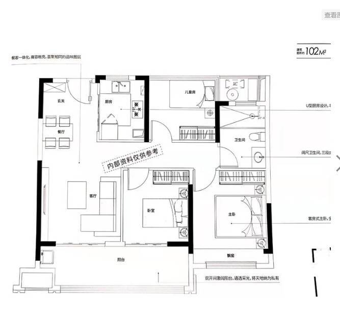
伟星城周边的教育资源丰富,东城实验小学、肥东一中等优质学校为孩子们提供了良好的学习环境。项目在售的二期小高层户型面积从95平方米到142平方米不等,均价约为12000元/平方米,为追求舒适居住体验的购房者提供了一个值得考虑的选择。无论是家庭居住还是投资置业,伟星城都是一个不可多得的优质选择。
伟星城售楼处电话☎:0551-6813 6588
伟星城的规划户型面积从95平方米到142平方米不等,能够满足刚需和改善需求的不同客群。伟星城的户型布局非常合理,方正实用,多数开间朝南,拥有独立玄关和南北大尺度通厅,给人一种宽敞明亮的感觉。南北通透的设计不仅能够保证充足的采光和通风,也让居住者在室内感受到更好的舒适度。伟星地产注重满足居民的多元生活需求,因此在户型设计上也考虑到了不同居住方式和生活习惯,让每个家庭都能找到适合自己的理想住所。
伟星城售楼处电话☎:0551-6813 6588
伟星城售楼处电话☎:0551-6813 6588
伟星城售楼处电话☎:0551-6813 6588
伟星城楼盘具体一房一价,详询营销中心。
伟星城售楼处电话☎:0551-6813 6588
伟星城的设计亮点颇多,项目留出大面积的中庭空间,采用高级灰质感的设计,打造出酒店式的归家体验。立体化的景观中轴贯穿其中,打造出具有江南韵味的社区园林。社区内部配备了丰富的休闲设施,如儿童游乐区、健身区等,为居民提供便利和舒适的生活环境。从硬件设施到细节设计,伟星城都力求为业主提供高品质的生活环境。对于追求舒适居住体验的购房者而言,伟星城无疑是一个值得考虑的选择。
伟星城售楼处电话☎:0551-6813 6588
伟星城项目位于合肥肥东和睦湖板块,地理位置优越,交通便捷,周边配套完善,居住环境优美。项目的社区空间布局设计亮点颇多,配备了丰富的休闲设施,为居民提供便利和舒适的生活环境。无论是从硬件设施还是周边教育资源,伟星城都是一个不可多得的优质选择。
伟星城售楼处电话☎:0551-6813 6588
伟星城楼盘电话号码:0551-68111601【营销中心】
欢迎来电咨询!可预约销售人员(来电尊享内部优惠活动)【2024房价特价信息丨底价优惠丨在售户型图丨项目介绍丨在售房源丨周边配套】
声明:本文由入驻焦点开放平台的作者撰写,除焦点官方账号外,观点仅代表作者本人,不代表焦点立场。


