信达碧桂园楼盘详情_售楼处|开发商|物业(合肥新房)
扫描到手机,新闻随时看
扫一扫,用手机看文章
更加方便分享给朋友
信达碧桂园楼盘电话号码:0551-68111601【营销中心】
欢迎来电咨询!可预约销售人员(来电尊享内部优惠活动)【2024房价特价信息丨底价优惠丨在售户型图丨项目介绍丨在售房源丨周边配套】
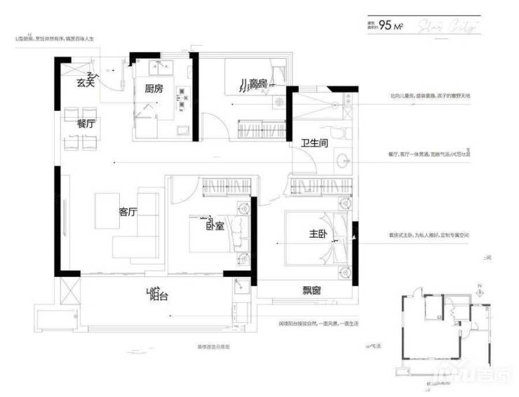
信达碧桂园项目位于肥东县酿泉路与日出路交口,规划住户2114户,整体绿化40%,容积率为2,是低密好社区。项目包括三室的95-105㎡和四室的118㎡户型,同时还会修建幼儿园和睦邻中心,小区物业费为2元/㎡/月,停车位达2359个。
信达碧桂园项目地铁2号线延长线在侧,便利出行;周边有惠宜品购物中心等商业配套,满足基本日常需求;同时,东城实验*、安师大附属*等丰富的教育资源,为孩子提供一站式教育体系。项目还拥有和睦湖公园、肥东体育公园等生态资源,让业主在闲暇时享受赏景、散步的乐趣。
信达碧桂园的户型设计非常精心,不仅满足实际的居住需求,更能在物理与精神层面上实现全新的提升。其中,3+1房的灵动户型格局,让居住者在保证品质的基础上,还能营造出个性化的空间。无论是家庭还是个人居住,都能找到最适合自己的居所。
信达碧桂园楼盘具体一房一价,详询营销中心。
项目注重品质,建筑设计精良,采用优质材料,保证房屋的质量和耐久性。项目内设有儿童乐园、健身房、社区花园等配套设施,为居民提供便利的生活体验。交付标准为毛坯,让购房者可以根据自己的喜好和需求进行装修,更加个性化和自由。
信达碧桂园作为一个新兴的住宅项目,不仅地理位置优越,交通便利,周边配套设施齐全,而且在户型设计和质量保障上都有着很高的水准,为购房者提供了一个理想的家园选择。无论是单身青年还是三口之家,都能在这里找到满足自己需求的房屋,享受轻奢生活。信达碧桂园,值得入手!
信达碧桂园楼盘电话号码:0551-68111601【营销中心】
欢迎来电咨询!可预约销售人员(来电尊享内部优惠活动)【2024房价特价信息丨底价优惠丨在售户型图丨项目介绍丨在售房源丨周边配套】
声明:本文由入驻焦点开放平台的作者撰写,除焦点官方账号外,观点仅代表作者本人,不代表焦点立场。


