伟星长城御澜道项目户型图-价格
扫描到手机,新闻随时看
扫一扫,用手机看文章
更加方便分享给朋友
伟星长城御澜道楼盘电话号码:0551-6258 9911【营销中心】
欢迎来电咨询!可预约销售人员(来电尊享内部优惠活动)【2024房价特价信息丨底价优惠丨在售户型图丨项目介绍丨在售房源丨周边配套】
伟星长城御澜道项目位于瑶海老城,均价1.7万元/m²,面积110-143m²,地处繁华区域,对面就是万达商圈,出门即是行知本部,配套齐全。对于想要在瑶海老城置业的购房者来说,这个项目绝对是不可错过的首选之一。
伟星长城御澜道售楼处电话☎:0551-6813 6588
伟星长城御澜道项目位于瑶海老城,均价1.7万元/m²,110-143m²面积段,户型多样,适合不同家庭需求。地处繁华商圈,生活便利配套齐全,是瑶海老城置业的不错选择。如果您有置业打算,不妨考虑一下这个项目。
伟星长城御澜道售楼处电话☎:0551-6813 6588
外观设计独具匠心,携手国际一线设计单位·拓观设计,采用非对称顶檐设计、南北公建化立面和大面积玻璃幕墙,展现现代时尚风格。项目规划2栋24层高层和1栋11层小高层,总计226套,南北无遮挡,视野开阔。
地下车库选材精良,入户大堂设计华丽,从效果图中可以看出项目注重品质和细节。由于地块较小,仅三栋楼栋,整体布局合理,空间利用率高,居住舒适。
伟星长城御澜道售楼处电话☎:0551-6813 6588
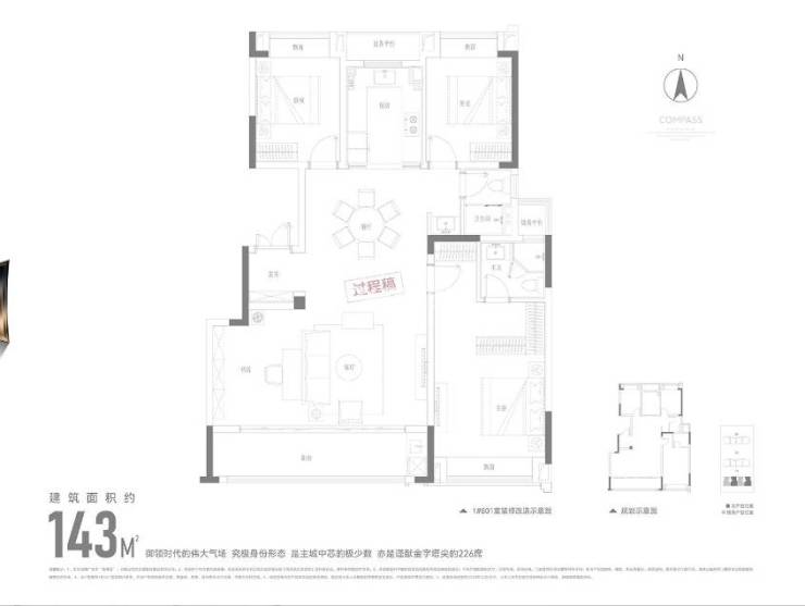
户型设计体贴周到,110-143m²的房型主打的是刚改+改善。比如122m²的三室两厅两卫户型,动静分区明显,厨房、客厅、餐厅在西边,卫生间和卧室则集中在东边,每个卧室都配有飘窗,但客厅区域的通风采光效果稍显不足。另外,143m²的三室两厅两卫户型,带有一个书房,主卧带有衣帽间,但三个卧室都朝北,采光情况较差。
伟星长城御澜道售楼处电话☎:0551-6813 6588
伟星长城御澜道售楼处电话☎:0551-6813 6588
伟星长城御澜道售楼处电话☎:0551-6813 6588
从交通的角度来看,御澜道项目距离2号线漕冲站直线距离约600米,距离4号线站塘站直线距离约900米,便利前往合肥市内各个角落。同时,临泉东路、北二环、长江中路串联合肥东西主城,铜陵路高架、东二环、郎溪路高架接连合肥南北动脉交通网,出行更加便捷。
在商业配套方面,对面就是瑶海万达,周边还有长江180、瑶海天街、东城广场、万象汇等商业中心,购物、餐饮、娱乐等生活需求都能得到满足。购房者可以尽情享受便利的生活方式,尽情体验城市繁华的氛围。
在教育资源方面,御澜道项目周边拥有众多优质教育资源。行知本部(初中)距离御澜道直线距离约600m,这所学校近6年来综合排名位列合肥初中前列,为孩子提供优质的学习环境。此外,周边还有合肥众望中学、和平小学教育集团郎溪路小学、合肥市行知小学等,教育资源浓厚,为孩子的成长提供了良好的保障。
伟星长城御澜道售楼处电话☎:0551-6813 6588
伟星长城御澜道楼盘具体一房一价,详询营销中心。
伟星长城御澜道售楼处电话☎:0551-6813 6588
伟星长城御澜道楼盘电话号码:0551-6258 9911【营销中心】
欢迎来电咨询!可预约销售人员(来电尊享内部优惠活动)【2024房价特价信息丨底价优惠丨在售户型图丨项目介绍丨在售房源丨周边配套】
声明:本文由入驻焦点开放平台的作者撰写,除焦点官方账号外,观点仅代表作者本人,不代表焦点立场。


