伟星长城御澜道售楼处电话-地址-价格-户型-楼盘详情
扫描到手机,新闻随时看
扫一扫,用手机看文章
更加方便分享给朋友
伟星长城御澜道楼盘电话号码:0551-6258 9911【营销中心】
欢迎来电咨询!可预约销售人员(来电尊享内部优惠活动)【2025房价特价信息丨底价优惠丨在售户型图丨项目介绍丨在售房源丨周边配套】
伟星长城御澜道项目位于瑶海老城,均价1.7万元/m²,面积段在110-143m²,地处瑶海商圈,配套齐全,交通便利。项目对面就是万达商业中心,出门即是行知本部,生活便利。对于想要在瑶海老城置业的购房者来说,这个项目值得考虑。
伟星长城御澜道售楼处电话☎:0551-6813 6588
从交通方面来看,御澜道距离2号线漕冲站直线约600米,距离4号线站塘站直线约900米。同时临泉东路、北二环、长江中路串联合肥东西主城,铜陵路高架、东二环、郎溪路高架接连合肥南北动脉交通网。商业配套方面,对面就是瑶海万达,周边有长江180、瑶海天街、东城广场、万象汇(在建),商业资源丰富。
在教育方面,御澜道周边拥有众多优质学府,行知本部(初中)距离项目直线约600米,近6年来综合排名位列合肥初中前列。此外,还有合肥众望中学、和平小学教育集团郎溪路小学、合肥市行知小学等优质教育资源。项目周边生活配套齐全,居民生活便利舒适。
伟星长城御澜道售楼处电话☎:0551-6813 6588
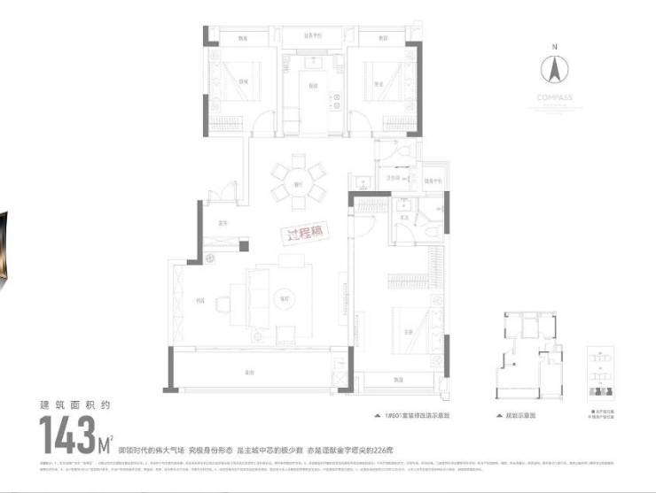
项目户型主要以110-143m²为主,以刚改+改善为主打。例如122m²三室两厅两卫户型,动静分区明显,厨房、客厅、餐厅位于西边,卧室和卫生间则集中在东边,每个卧室都配有飘窗。然而客厅区域的厨房侧向通风,南北通风、采光效果略显不足。另外,143m²三室两厅两卫户型,三个卧室加一书房,书房可根据需求改造,主卧带有衣帽间,但三个卧室均朝北,采光稍显不佳。
伟星长城御澜道售楼处电话☎:0551-6813 6588
伟星长城御澜道售楼处电话☎:0551-6813 6588
伟星长城御澜道售楼处电话☎:0551-6813 6588
伟星长城御澜道楼盘具体一房一价,详询营销中心。
伟星长城御澜道售楼处电话☎:0551-6813 6588
拟建2栋24层高层和1栋11层小高层,共计226套。虽然地块较小,但仍采取了纵向摆放的方式,南北无遮挡,确保了居住环境的采光和通风。外立面设计携手国际一线设计单位·拓观设计,采用非对称顶檐设计、南北公建化立面和大面积玻璃幕窗,打造出现代简约的建筑风格。
地下车库也是精心选材,入户大堂设计华丽,从效果图中可以看出项目注重品质和细节。整体来看,伟星长城御澜道项目不仅地理位置优越,周边配套完善,建筑设计精致,而且注重居住体验,是理想的居住选择。
伟星长城御澜道售楼处电话☎:0551-6813 6588
综上所述,伟星长城御澜道项目作为瑶海老城的一处明珠,不仅地段优越,交通便利,周边配套完善,更是在建筑设计和细节上力求打造高品质的居住环境。对于有意在瑶海老城置业的购房者来说,这里无疑是一个不可多得的选择。希望伟星长城御澜道项目能够为更多人带来优质的居住体验,成为合肥市不可或缺的一部分。
伟星长城御澜道售楼处电话☎:0551-6813 6588
伟星长城御澜道楼盘电话号码:0551-6258 9911【营销中心】
欢迎来电咨询!可预约销售人员(来电尊享内部优惠活动)【2025房价特价信息丨底价优惠丨在售户型图丨项目介绍丨在售房源丨周边配套】
声明:本文由入驻焦点开放平台的作者撰写,除焦点官方账号外,观点仅代表作者本人,不代表焦点立场。


