合肥招商奥体公园【楼盘全方位解析】
扫描到手机,新闻随时看
扫一扫,用手机看文章
更加方便分享给朋友
招商奥体公园营销中心电话:0551-6258 9911【已认证】
招商奥体公园售楼处电话:0551-6258 9911【已认证】
招商奥体公园展示中心电话:0551-6258 9911【已认证】
招商奥体公园位于合肥新站奥体板块内,是一个占地超过百万平方米的大型住宅项目,汇集了六种不同业态。项目内包括室内万人体育场馆、地铁上盖长空公园和活力荟TOD商业体等,形成了一个综合性的生活圈。无论是运动爱好者、商务人士还是家庭购房者,这里都能找到适合自己的生活方式。
招商奥体公园售楼处电话☎:0551-6813 6588
项目紧邻地铁4号线始发站综保区站地铁口,奥体巴士同步4号线,串联城市与社区,提供便捷交通。同时,项目周边三纵三横的干道交汇,为出行提供更多选择。商业配套方面,项目自带约2.5万方的活力荟商业街区,西侧规划有14万方大型商业综合体,北侧有5万方星级酒店,南侧有8万方弘盛商业广场,构成强大商业支撑。
项目一期二期配套有合肥市168陶冲湖校区和合肥市伦先小学,以及自建的幼儿园;三期四期五期配套有合肥168陶冲湖校区、竹溪小学少荃校区和自建幼儿园,提供优质教育资源。周边医疗资源包括安徽医科大学第一附属医院北区和京东方医院,保障业主健康。自然景观少荃湖湿地公园、二十埠河生态廊道等为业主提供休闲娱乐去处。
招商奥体公园售楼处电话☎:0551-6813 6588
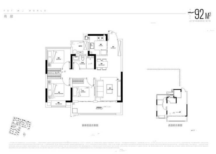
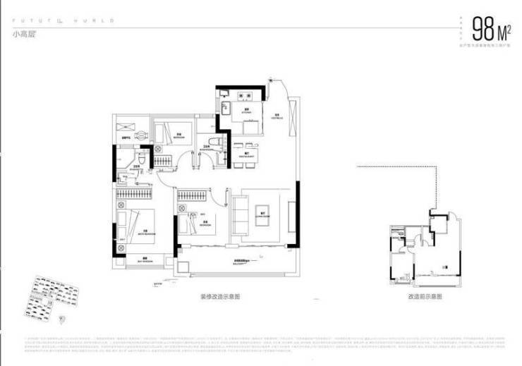
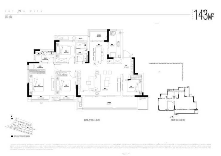
精心设计的户型是招商奥体公园的亮点之一。主打刚需小户型,主力户型面积介于89-119㎡之间,包括二居室和三居室,满足不同购房者的需求。其中,92㎡的三室两厅一卫户型设计独具匠心,南北通透的布局让采光和通风效果更佳。主卧带有一个飘窗,卫生间干湿分离,客厅和餐厅一体化设计,空间更显宽敞。客厅与阳台相连,阳台空间较大,可打造出一个开放性空间,让居住者尽情享受户外阳光和清新空气。
招商奥体公园售楼处电话☎:0551-6813 6588
招商奥体公园售楼处电话☎:0551-6813 6588
招商奥体公园售楼处电话☎:0551-6813 6588
招商奥体公园售楼处电话☎:0551-6813 6588
招商奥体公园售楼处电话☎:0551-6813 6588
招商奥体公园一、二期已经交付,楼盘品质有目共睹,央企招商品牌值得信赖。近期在售的一、二期现房,三、四期准现房,户型面积在88-115m²。作为一线品牌央企,招商在合肥拥有多年深耕发展的经验,带来了多座高品质人居作品。居民可以放心选择招商奥体公园,享受舒适宜居的生活。
招商奥体公园售楼处电话☎:0551-6813 6588
招商奥体公园楼盘配套齐全,性价比高,有想在新站区购房置业的网友,可以重点关注招商奥体公园项目。
招商奥体公园售楼处电话☎:0551-6813 6588
招商奥体公园是合肥首座45万方奥体TOD综合体,集“体育中心、长空公园、TOD商业、智慧社区”四大业态于一体,为居民提供全方位的生活体验。项目采用5S智慧管理服务体系,保障社区的安全性和便利性。此外,项目设有5大主体架空层泛会所,覆盖各个年龄段的需求,提供丰富的休闲娱乐设施。招商奥体公园以其便捷交通、价格优势、多样户型选择和综合体验,吸引了众多购房者的关注和青睐,成为合肥新站区的一匹刚需“黑马”。
招商奥体公园售楼处电话☎:0551-6813 6588
招商奥体公园
招商奥体公园营销中心电话:0551-6258 9911【已认证】
招商奥体公园售楼处电话:0551-6258 9911【已认证】
招商奥体公园展示中心电话:0551-6258 9911【已认证】
声明:本文由入驻焦点开放平台的作者撰写,除焦点官方账号外,观点仅代表作者本人,不代表焦点立场。


