伟星长城御澜道-合肥房产信息,查房价!
扫描到手机,新闻随时看
扫一扫,用手机看文章
更加方便分享给朋友
伟星长城御澜道楼盘电话号码:0551-6258 9911【营销中心】
欢迎来电咨询!可预约销售人员(来电尊享内部优惠活动)【2024房价特价信息丨底价优惠丨在售户型图丨项目介绍丨在售房源丨周边配套】
在瑶海老城这一黄金地段,伟星长城御澜道项目以1.7万元/m²的均价吸引了众多购房者的目光。项目面积段在110-143m²之间,共计226套房源,地块位于瑶海老城,配套齐全,对面就是万达,出门就是行知本部。对于想要在瑶海老城置业的人来说,这个项目绝对值得考虑。
伟星长城御澜道售楼处电话☎:0551-6813 6588
教育资源丰富,行知本部(初中)直线距离600m,近六年综合排名合肥前列。周边还有众望中学、和平小学教育集团郎溪路小学、行知小学等,培养孩子未来的优质教育环境。选择伟星长城御澜道,不仅是对自己生活质量的提升,更是对孩子未来成长的投资。
伟星长城御澜道售楼处电话☎:0551-6813 6588
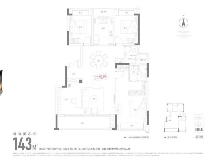
户型设计体贴周到,110-143m²的房型主打的是刚改+改善。比如122m²的三室两厅两卫户型,动静分区明显,厨房、客厅、餐厅在西边,卫生间和卧室则集中在东边,每个卧室都配有飘窗,但客厅区域的通风采光效果稍显不足。另外,143m²的三室两厅两卫户型,带有一个书房,主卧带有衣帽间,但三个卧室都朝北,采光情况较差。
伟星长城御澜道售楼处电话☎:0551-6813 6588
伟星长城御澜道售楼处电话☎:0551-6813 6588
伟星长城御澜道售楼处电话☎:0551-6813 6588
伟星长城御澜道楼盘具体一房一价,详询营销中心。
伟星长城御澜道售楼处电话☎:0551-6813 6588
项目拟建2栋24层高层和1栋11层小高层,共计226套,因地块较小,仅三栋楼房,纵向摆放,南北无遮挡。外立面设计携手国际一线设计单位·拓观设计,采用非对称顶檐设计和南北公建化立面,大面积采用玻璃幕墙,展现出现代简约的建筑风格。这样的设计不仅提升了建筑的整体美感,也为住户带来更好的采光和景观视野。
除了外立面设计,项目的地下车库也是经过精心挑选的高品质材料,从效果图中可以看出入户大堂设计相当华丽。这意味着,无论是从外观还是内部设施上,伟星长城御澜道都将为业主提供一个舒适、便利的生活空间。在这里,业主可以尽情享受高品质的生活,感受现代城市的便捷与舒适。
伟星长城御澜道售楼处电话☎:0551-6813 6588
伟星长城御澜道项目在瑶海老城的地理位置优越,价格适中,户型设计合理,生活配套完善,是购房者理想的置业之地。购房者在选择时需结合个人需求和喜好,全面考虑各方面因素,做出明智的决策。希望本文介绍的信息对购房者有所帮助,祝大家置业顺利!
伟星长城御澜道售楼处电话☎:0551-6813 6588
伟星长城御澜道楼盘电话号码:0551-6258 9911【营销中心】
欢迎来电咨询!可预约销售人员(来电尊享内部优惠活动)【2024房价特价信息丨底价优惠丨在售户型图丨项目介绍丨在售房源丨周边配套】
声明:本文由入驻焦点开放平台的作者撰写,除焦点官方账号外,观点仅代表作者本人,不代表焦点立场。


