合肥包河淝河板块万科城改朗拾森屿均价多少每平?
扫描到手机,新闻随时看
扫一扫,用手机看文章
更加方便分享给朋友
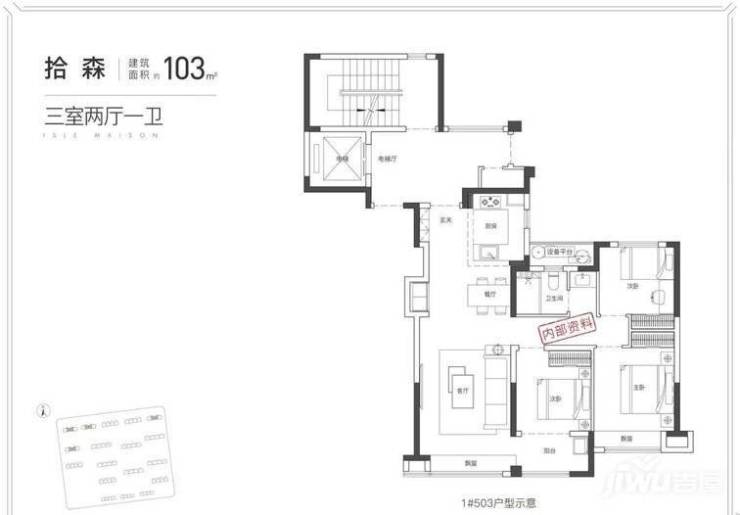
万科城改朗拾森屿首批房源G1#、G2#、G10#楼登记时间2023年8月4日17:00至8月7日17:00,销售均价24998.76元/㎡,小高层户型面积130㎡、143㎡,大高层户型面积103㎡、118㎡,共计230套,2025年6月30日精装交付。刚需供应69套,人才23套,非刚需首付比例不低于2成。
营销咨询电话:0551-65566157
在合肥各大区域,包河区的楼市热度一直非常高,供地量也很高,在售的新盘数量多,表现最为明显的便是淝河板块。
由万科与国企城改联合打造的万科城改朗拾森屿,是目前淝河板块未开先火的项目,楼盘具体位于北京路与郎溪路交口,位置不错,临近北京路与郎溪路两条城市主干道,地铁四号线尧渡河站,临近还有龙川路、东二环、包河大道等,交通便捷,出行方便,轻松畅通全城。
商业配套上,项目周边有多个老小区,社区商业发展成熟,商圈繁荣,可满足日常生活各类需求。项目附近还有星隆国际购物广场,罍街,加侨广场,商业氛围浓厚,日常购物方便。
学区配套上,项目附近有淝河小学,合肥二十九中,教育资源齐全完善。
医疗资源上,项目附近有三甲医院合肥第三人民医院,社区医院,医疗配套齐全,满足周边居民不同的看病需求。
万科城改朗拾森屿,是继万科朗拾之后,万科我在包河淝河板块打造的又一满分竞品质项目,是万科拾系产品,将以自然、生态为主,打造高端改善产品。
除了外部齐全完善的生活配套,项目自身产品力不错,身为满分项目,楼间距容积率低,绿化率42%,绿建三星建筑标准,高级奢质公建设化立面,建筑品质高。
为打造真正的绿色宜居生态住宅,项目外围还设置了约2万方的外围超级绿线及公园,配合内部42%的绿化率,打造一个内外皆园的公园式住宅。
营销咨询电话:0551-65566157
合肥包河淝河板块是近几年比较热门地段板块之一,供地量与新盘数量算是比较多的,购房选择性也多,而且淝河板块也是包河区目前重点发展的区域,位置上与多区有接壤,地理位置有优势,生活配套齐全,居住环境还是不错的,值得考虑入手的区域之一。
声明:本文由入驻焦点开放平台的作者撰写,除焦点官方账号外,观点仅代表作者本人,不代表焦点立场。


