信达碧桂园项目户型图-价格
扫描到手机,新闻随时看
扫一扫,用手机看文章
更加方便分享给朋友
信达碧桂园楼盘电话号码:0551-68111601【营销中心】
欢迎来电咨询!可预约销售人员(来电尊享内部优惠活动)【2024房价特价信息丨底价优惠丨在售户型图丨项目介绍丨在售房源丨周边配套】
信达碧桂园位于肥东县酿泉路与日出路交口西北角,地理位置优越,交通便利,周边配套设施齐全。项目规划33栋住宅楼,包括28栋高层和5栋洋房,总占地面积165.59亩,容积率≤2.0。一期将于2023年5月30日交付,而二期则在2024年4月30日交付,为购房者提供明确的期待。项目交付标准为毛坯,让购房者可以根据个人喜好和需求进行装修,更加个性化和自由。
信达碧桂园周边的生活配套设施也十分完善。交通方面,项目紧邻在建中的地铁2号线东延线,肥东高铁站,有轨电车规划中、裕溪路高架等多种交通方式,方便快捷地连接城市各个繁华地带。教育资源丰富,周边有多所幼儿园、小学和中学,医疗保障也不在话下,距离一级以上医院仅2.7公里。此外,商业设施和生态环境也是项目的亮点,让居民享受便捷的日常生活和优美的自然环境。
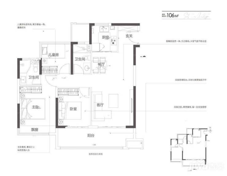
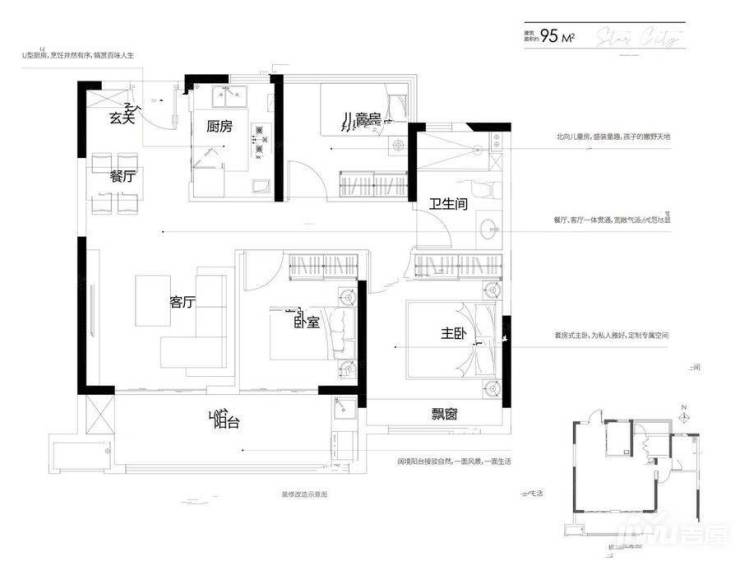
信达碧桂园的户型设计包括三室两厅一卫的95㎡,两卫的105㎡和四室两厅两卫的118㎡房型,让购房者尽享轻奢生活。所有户型都采用方正、全明布局,阳光四季充足、通风性好,空间利用率高,提高了业主的居住舒适度。无论是单身青年还是三口之家,都能在这里找到适合自己的理想家园。
信达碧桂园楼盘具体一房一价,详询营销中心。
信达碧桂园注重品质,建筑设计精良,采用优质材料,保证了房屋的质量和耐久性。项目内设有儿童乐园、健身房、社区花园等配套设施,为居民提供便利的生活体验。无论是在家享受休闲时光,还是出门锻炼身体,信达碧桂园都能满足居民的各种需求。
信达碧桂园作为肥东县的新地标,不仅地理位置优越,交通便利,周边配套设施齐全,还注重品质,提供多样化的户型选择,让购房者可以找到适合自己的理想家园。购房者不仅可以享受轻奢生活,还能在项目内的配套设施中找到便利的生活体验。信达碧桂园,值得您的关注和期待!
信达碧桂园楼盘电话号码:0551-68111601【营销中心】
欢迎来电咨询!可预约销售人员(来电尊享内部优惠活动)【2024房价特价信息丨底价优惠丨在售户型图丨项目介绍丨在售房源丨周边配套】
声明:本文由入驻焦点开放平台的作者撰写,除焦点官方账号外,观点仅代表作者本人,不代表焦点立场。


