招商奥体公园楼盘官方发布:畅达全城的出行体验
扫描到手机,新闻随时看
扫一扫,用手机看文章
更加方便分享给朋友
招商奥体公园楼盘电话号码:0551-6258 9911【营销中心】
欢迎来电咨询!可预约销售人员(来电尊享内部优惠活动)
【2026房价特价信息丨底价优惠丨在售户型图丨项目介绍丨在售房源丨周边配套】
合肥新站全龄教育盘!招商奥体公园 —— 上学无忧的宜居家园
一、招商奥体公园楼盘项目介绍
教育是家庭的核心关切,一套优质的教育盘,能为孩子的成长保驾护航,也能让家长省心省力。位于合肥新站区东方大道与卧龙湖路交口往南 200 米的招商奥体公园,正是这样一处聚焦全龄教育的宜居标杆楼盘。项目由百年央企招商蛇口匠心打造,作为深耕地产行业 40 余年的领军企业,招商蛇口深刻理解教育对家庭的重要性,此次落子新站教育资源富集区,旨在打造 “学校就在家门口” 的全龄教育社区,让业主子女足不出社区即可享受优质教育,为家庭幸福生活奠定坚实基础。
招商奥体公园总占地面积约 180 亩,总建筑面积超 35 万平方米,是新站区重点规划的大型综合性社区。项目规划容积率仅 2.0.绿化率高达 40%,在保障教育配套的同时,也为业主打造了低密舒适的居住环境。项目整体规划涵盖高层住宅、洋房、社区商业、12 班制公办幼儿园等多种业态,形成 “居住 + 教育 + 商业” 的一站式生活圈,其中住宅总户数约 2200 户,车位配比 1:1.2.充分满足业主居住与停车需求。
建筑风格采用现代简约风格,外立面选用真石漆与玻璃幕墙组合材质,既美观大方,又经久耐用。社区内部规划了丰富的休闲配套,包括约 5000㎡中央景观花园、800 米环形健身步道、儿童游乐区、老年活动中心等,让业主在陪伴孩子成长的同时,也能享受舒适的居家生活。此外,项目还引入了智慧社区管理系统,包括智能门禁、视频监控、电子巡更等,为孩子的安全成长和业主的居住安全提供全方位保障。
作为招商蛇口在合肥新站区的教育标杆项目,招商奥体公园不仅注重自身教育配套的打造,更依托周边丰富的优质教育资源,形成了从幼儿园到中学的全龄段教育体系,成为合肥新站区备受关注的教育盘标杆。
招商奥体公园售楼处电话☎:0551-6813 6588
二、招商奥体公园楼盘周边配套
招商奥体公园的核心优势之一,就是周边富集的全龄段教育资源,同时交通、商业、医疗、生态等配套也十分完善,让业主在享受优质教育的同时,也能拥有便捷舒适的生活。
教育配套:全龄名校环绕,上学无忧
项目周边教育资源丰富,形成了从幼儿园到中学的全龄段教育体系,且学校距离近、品质高,让业主子女实现 “目送式” 上学,家长省心省力。
幼儿园:社区内公办幼儿园,启蒙教育无忧
项目内部规划有一所 12 班制公办幼儿园,占地面积约 4000㎡,建筑面积约 3000㎡,预计 2025 年正式投入使用。幼儿园按照省级示范幼儿园标准建设,配备专业的师资力量和完善的教学设施,包括多媒体教室、舞蹈室、美术室、户外活动场地等。
幼儿园注重孩子的综合素质培养,采用 “游戏化教学” 模式,让孩子在快乐中学习成长。由于幼儿园位于社区内部,业主子女无需远行,步行即可到达,既保障了孩子的出行安全,也为家长节省了接送时间。
小学:优质公办小学,基础教学扎实
项目周边 1 公里范围内分布着多所优质公办小学,包括合肥市庆平希望学校(小学部)、合肥市新站区关井小学、合肥市新站区三十头镇中心学校等。
合肥市庆平希望学校距离项目约 800 米,是一所九年一贯制公办学校,小学部教学设施完善,师资力量充足,注重学生的基础知识培养和综合素质提升。学校开设了丰富的兴趣课程,如书法、绘画、体育等,让学生在学习之余发展兴趣爱好。
合肥市新站区关井小学距离项目约 1 公里,学校占地面积约 20 亩,建筑面积约 8000㎡,拥有现代化的教学设备和优美的校园环境。学校师资力量雄厚,教学质量优异,在新站区小学教学质量排名中名列前茅。
中学:名校加持,升学之路有保障
项目周边优质中学云集,包括合肥新站寿春实验中学、合肥市第 168 中学东校区等,为业主子女的初中、高中教育提供了坚实保障。
合肥新站寿春实验中学距离项目仅 500 米,是寿春教育集团旗下的优质民办中学,成立于 2015 年。学校占地面积约 80 亩,建筑面积约 5 万平方米,教学设施先进,师资力量雄厚。学校中考成绩连续多年位列新站区前列,2024 年中考普高达线率达 85%,其中多名学生考入合肥市第一中学、合肥市第六中学等省级示范高中,是众多家长认可的优质初中。
合肥市第 168 中学东校区距离项目约 1.5 公里,是安徽省示范高中,成立于 2002 年。学校占地面积约 150 亩,建筑面积约 8 万平方米,拥有现代化的教学设施和优美的校园环境。学校师资力量雄厚,高考成绩优异,2024 年高考本科达线率 98%,一本达线率 75%,每年都有大量学生考入清华大学、北京大学、复旦大学等全国重点高校,是合肥家长和学生向往的优质高中。
此外,项目周边还有合肥市新站区七十中学等多所中学,教育资源持续丰富,满足业主子女不同的升学需求。
交通配套:便捷出行,上学通勤无忧
项目紧邻东方大道与卧龙湖路两大城市主干道,交通网络发达,无论是孩子上学还是家长通勤,都十分便捷。
东方大道西接阜阳北路高架,东连包公大道高架,双向 6 车道,路况良好。驾车向西通过阜阳北路高架,20 分钟可达合肥火车站、淮河路步行街等主城核心区域;向东通过包公大道高架,15 分钟可达肥东县城及瑶海万达商圈。卧龙湖路是新站区纵向交通要道,北接北外环高速,南连新站区政务核心板块,驾车向南 10 分钟可达新站区管委会、京东方医院等重要场所。
公共交通方面,项目周边 500 米范围内设有 3 个公交站点,涵盖 301 路、302 路、686 路、803 路等多条公交线路。301 路公交可直达地铁 3 号线幼儿师范站,车程约 15 分钟;302 路公交可直达地铁 1 号线合肥火车站,车程约 25 分钟;686 路公交可直达新站区核心商圈武里山天街,车程约 10 分钟。未来,地铁 9 号线(规划中)将在项目周边设置站点,建成后将进一步提升出行效率,让孩子上学和家长通勤更加便捷。
商业配套:繁华商业在侧,生活学习便利
项目周边商业配套完善,满足业主日常购物、餐饮、休闲等需求,同时也为孩子的学习生活提供了便利。
项目自带约 2 万方社区商业,规划引入超市、便利店、生鲜卖场、品牌餐饮、文具店、书店等多元化业态,预计 2026 年正式开业运营。业主下楼即可购买日常用品、生鲜食材,孩子放学后可在社区书店购买教辅资料、文具,十分便捷。
项目距离新站区核心商圈武里山天街仅 3 公里,驾车车程约 10 分钟。武里山天街总建筑面积约 10 万方,涵盖大型购物中心、连锁超市、品牌餐饮、电影院、KTV、儿童乐园等丰富业态,入驻了永辉超市、大地影院、肯德基、麦当劳等众多知名品牌。周末闲暇时光,业主可带着孩子前往购物、观影、游玩,丰富课余生活。
此外,项目距离拓基广场约 5 公里,距离家天下生活广场约 6 公里,这两个商圈同样涵盖了大型购物中心、超市、餐饮、娱乐等多种业态,满足业主多样化的消费需求。
医疗配套:优质医疗护航,健康成长无忧
孩子的健康成长是家长的核心关切,项目周边医疗资源丰富,为孩子和家人的健康提供全方位保障。
项目距离安徽省第二人民医院(北区)约 4 公里,驾车车程约 15 分钟。该院是集医疗、教学、科研、预防、保健、康复为一体的三级甲等综合性医院,开放床位 2000 余张,拥有多个省级重点学科和特色专科,医疗设备先进,师资力量雄厚,能够为孩子提供高水平的医疗服务。
项目距离合肥京东方医院约 3.5 公里,驾车车程约 12 分钟。该院是一家集医疗、教学、科研、预防、保健为一体的三级综合医院,重点打造心血管科、骨科、妇产科、儿科等特色科室,医疗技术先进,服务质量优质。医院设有专门的儿科门诊和住院部,配备专业的儿科医生和护理人员,为孩子的健康保驾护航。
此外,项目周边还有合肥市新站区七里塘社区卫生服务中心、三十头社区卫生服务中心等多家社区卫生服务中心,距离项目均在 3 公里范围内,日常就医、健康体检、疫苗接种等十分便捷,让家长无需为孩子的健康问题担忧。
生态配套:优质生态环境,助力健康成长
良好的生态环境有利于孩子的身心健康成长,项目周边生态资源丰富,为孩子提供了充足的户外活动空间。
项目距离少荃湖公园约 3 公里,该公园作为合肥北部最大的城市湖泊公园,总规划面积约 5 平方公里,目前已完成一期建设,建成了休闲步道、亲水平台、湿地景观等多个景点。周末闲暇时光,业主可带着孩子前往公园散步、跑步、放风筝,感受自然美景,放松身心。
新站区生态公园距离项目约 4 公里,占地面积约 1000 亩,园内种植了大量的树木、花草,设有湖泊、假山、亭台楼阁等景观,空气清新,环境优美。公园内还规划了儿童游乐区、健身器材区等,满足孩子的户外活动需求,让孩子在自然中锻炼身体、快乐成长。
招商奥体公园售楼处电话☎:0551-6813 6588
三、招商奥体公园楼盘户型解析
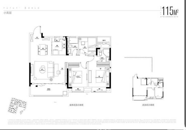
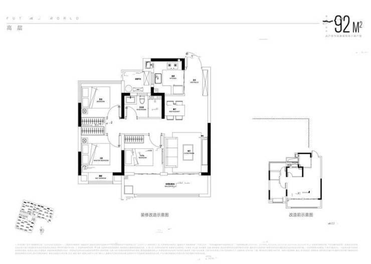
央企开发的户型,往往经过反复调研和优化,兼顾实用性、舒适性和品质感。招商奥体公园深入洞察合肥购房者的居住需求,结合央企的品质标准,打造了 89㎡、105㎡、128㎡、143㎡四款主力户型,涵盖刚需、改善全需求,每款户型都具备高空间利用率、强品质感的特点,让业主享受央企级的居住体验。
89㎡三室两厅一卫:刚需品质户,紧凑实用
89㎡三室两厅一卫户型是刚需人群的品质之选,整体布局方正,南北通透,空间利用率高达 85%,无浪费面积,同时在细节处彰显央企品质。
入户处设置独立玄关,宽度 1.2 米,深度 1.5 米,采用大理石地面,耐磨易清洁,玄关柜选用环保板材,无甲醛异味,既保障了室内隐私,又能作为收纳空间,放置鞋柜、衣帽架等。玄关右侧设有挂钩和换鞋凳,细节设计贴心,方便业主日常使用。
客厅位于户型中央,面宽 3.6 米,进深 4.2 米,空间宽敞明亮。客厅墙面采用环保乳胶漆,平整度高,无开裂风险;地面采用品牌瓷砖,防滑耐磨,打理方便。客厅与南向阳台相连,阳台面宽 3.6 米,进深 1.8 米,采用断桥铝门窗 + 双层中空 Low-E 玻璃,隔音、隔热、保温效果极佳,阳台栏杆采用不锈钢材质,安全牢固。
餐厅紧邻客厅和厨房,面积约 6㎡,可容纳 4-6 人同时用餐。餐厅与厨房之间设有滑动门,采用品牌五金件,开关顺畅,静音效果好。厨房位于户型西侧,采用 U 型设计,操作台面长 3.5 米,选用石英石材质,耐磨耐脏;橱柜选用品牌定制,环保等级高,收纳空间充足;厨房配备品牌抽油烟机、燃气灶,性能稳定,排烟效果好。
三个卧室分布在户型东侧和北侧,动静分离,避免了活动区对休息区的干扰。卧室墙面采用环保乳胶漆,地面铺设品牌实木复合地板,脚感舒适,环保无味。主卧面宽 3.2 米,带南向飘窗,飘窗台面采用大理石材质,耐用易清洁;两个次卧面宽均为 2.7 米,空间充足,可作为儿童房或书房,满足刚需家庭居住需求。
卫生间位于户型北侧,面积约 4.5㎡,采用干湿分离设计,地面选用防滑瓷砖,墙面采用防水瓷砖,防水效果好,不易受潮发霉。卫生间配备品牌马桶、洗手盆、花洒,品质可靠,使用便捷;预留了洗衣机接口,方便业主使用。
105㎡三室两厅两卫:改善品质户,舒适升级
105㎡三室两厅两卫户型是改善型刚需的品质优选,在 89㎡户型基础上升级,空间更宽敞,舒适度更高,同时进一步强化了央企品质细节。
入户玄关更加开阔,宽度 1.5 米,深度 1.8 米,采用大理石地面搭配金属线条装饰,彰显品质感。玄关柜选用品牌定制,采用推拉门设计,收纳空间充足,可放置家庭杂物、孩子的玩具等,让居家生活更加整洁有序。
客厅面宽提升至 3.8 米,进深 4.5 米,空间更加宽敞明亮。客厅吊顶采用双眼皮设计,搭配筒灯和射灯,营造出温馨舒适的氛围;电视背景墙预留了插座和网线接口,方便业主安装电视和智能家居设备。客厅与南向阳台相连,阳台面宽 3.8 米,进深 2.0 米,采用全景落地窗设计,断桥铝门窗 + 双层中空 Low-E 玻璃,最大化引入自然光线,同时保障了隔音隔热效果。
餐厅面积约 7㎡,可容纳 6-8 人同时用餐,与客厅形成通透的一体化空间,增强了空间的开阔感。餐厅吊顶与客厅吊顶相呼应,风格统一;餐厅墙面预留了装饰画挂钩,方便业主个性化装饰。
厨房位于户型西侧,采用 U 型设计,操作台面长 3.8 米,石英石材质耐磨耐脏;橱柜选用品牌定制,配备缓冲铰链,开关无声;厨房配备品牌燃气热水器、抽油烟机、燃气灶,性能稳定,使用安全;预留了双开门冰箱位置,满足大家庭的储物需求。
三个卧室分布合理,动静分离。主卧采用套房设计,面宽 3.3 米,进深 4.8 米,带南向飘窗,飘窗台面大理石材质,视野开阔。主卧配备独立卫生间和衣帽间,衣帽间采用品牌定制衣柜,收纳空间充足;独立卫生间采用干湿分离设计,配备品牌智能马桶、花洒、洗手盆,品质高端,使用舒适。两个次卧面宽均为 2.8 米,空间充足,采光良好,可作为儿童房或老人房,满足改善型家庭居住需求。
公共卫生间位于两个次卧之间,面积约 5㎡,采用干湿分离设计,地面防滑瓷砖,墙面防水瓷砖,防水效果好;配备品牌洁具,品质可靠,使用便捷。
128㎡四室两厅两卫:改善品质户,阔绰舒适
128㎡四室两厅两卫户型是项目的改善主力户型,户型方正通透,南北双阳台设计,空间阔绰,舒适度高,品质感十足,适合家庭成员较多的改善型家庭。
入户玄关宽敞明亮,宽度 1.8 米,深度 2.0 米,采用大理石地面和吊顶设计,搭配筒灯和射灯,营造出高端大气的氛围。玄关柜选用品牌定制,采用组合式设计,既有开放式展示区,又有封闭式收纳区,收纳空间充足,可放置入户花园绿植、家庭杂物等。
客厅面宽 4.0 米,进深 4.8 米,空间宽敞开阔。客厅墙面采用环保乳胶漆,搭配金属装饰线条,彰显品质感;地面铺设品牌实木复合地板,脚感舒适,环保无味。客厅与南向景观阳台相连,阳台面宽 4.0 米,进深 2.0 米,断桥铝门窗 + 双层中空 Low-E 玻璃,采光通风极佳;阳台栏杆采用不锈钢材质,安全牢固,同时不影响观景效果。
北向生活阳台与餐厅相连,面宽 3.0 米,进深 1.8 米,可作为晾晒区和储物区,功能分区明确。生活阳台配备品牌晾衣架,使用便捷;预留了洗衣机、烘干机接口,满足家庭多样化需求。
餐厅面积约 8㎡,可容纳 8-10 人同时用餐,与客厅形成通透的一体化空间,增强了空间的开阔感。餐厅吊顶采用圆形设计,搭配水晶吊灯,彰显尊贵感;餐厅墙面预留了餐边柜位置,方便业主定制收纳。
厨房位于户型西侧,采用 L 型设计,操作台面长 4.0 米,石英石材质耐磨耐脏;橱柜选用品牌定制,收纳空间充足,配备缓冲铰链和抽屉导轨,使用便捷;厨房配备品牌抽油烟机、燃气灶、洗碗机,解放双手,提升生活品质;预留了双开门冰箱位置,满足大家庭的储物需求。
四个卧室分布合理,动静分离,每个卧室都能享受良好的采光和通风。主卧采用套房设计,面宽 3.5 米,进深 5.0 米,带南向全景飘窗,飘窗台面大理石材质,视野开阔。主卧配备独立卫生间和步入式衣帽间,独立卫生间面积约 5㎡,采用干湿分离设计,配备品牌浴缸、智能马桶、花洒、洗手盆,品质高端,使用舒适;步入式衣帽间采用品牌定制衣柜,收纳空间充足,满足业主的衣物收纳需求。
两个南向次卧面宽均为 3.0 米,采光良好,空间充足,可作为儿童房或老人房,卧室墙面预留了书桌和衣柜位置,方便业主定制;北向次卧可作为书房或健身房,空间宽敞,满足多样化需求。
公共卫生间位于户型北侧,面积约 5.5㎡,采用干湿分离设计,配备品牌洁具,品质可靠,使用便捷。
143㎡四室两厅两卫:高端品质户,奢华尊享
143㎡四室两厅两卫户型是项目的高端改善户型,空间开阔,布局奢华,品质感十足,针对追求高品质生活的改善型人群,彰显央企的顶级工艺和品质。
入户采用子母门设计,门体选用品牌安全门,配备指纹锁,安全系数高,使用便捷。玄关宽度 2.0 米,深度 2.2 米,采用大理石地面和吊顶设计,搭配水晶吊灯,营造出奢华大气的氛围。玄关柜选用品牌定制,采用实木材质,工艺精湛,收纳空间充足,同时设有展示区,摆放艺术摆件和家庭合影,提升居家品质。
客厅面宽 4.2 米,进深 5.0 米,空间宽敞开阔,气势十足。客厅墙面采用木饰面和环保乳胶漆组合设计,彰显高端品质;地面铺设品牌实木地板,脚感舒适,环保无味;客厅吊顶采用复杂的造型设计,搭配筒灯、射灯和灯带,营造出奢华的氛围。客厅与南向 6.8 米宽超宽阳台相连,阳台进深 2.0 米,采用全景落地窗设计,断桥铝门窗 + 双层中空 Low-E 玻璃,视野开阔,采光通风极佳;阳台可打造为多功能休闲区,满足休闲、健身、观景等多种需求。
餐厅面积约 9㎡,可容纳 10-12 人同时用餐,与客厅形成通透的一体化空间,增强了空间的开阔感。餐厅吊顶与客厅吊顶相呼应,搭配水晶吊灯,彰显尊贵感;餐厅墙面采用木饰面装饰,品质高端;餐厅与北向生活阳台相连,功能分区明确。
厨房采用中西厨设计,中厨封闭烹饪,避免油烟扩散;西厨可作为早餐台或吧台,满足多样化的烹饪需求。中厨采用 U 型设计,操作台面长 4.5 米,石英石材质耐磨耐脏;橱柜选用品牌定制,实木材质,工艺精湛;中厨配备品牌抽油烟机、燃气灶、洗碗机、蒸烤箱等高端家电,性能稳定,使用便捷;预留了双开门冰箱位置,满足大家庭的储物需求。西厨采用大理石台面,搭配品牌水槽和龙头,品质高端。
四个卧室分布合理,动静分离,私密性强。主卧豪华套房设计,面宽 3.6 米,进深 5.2 米,带南向全景飘窗,飘窗台面大理石材质,视野开阔。主卧配备独立卫生间、步入式衣帽间和小型休闲区,独立卫生间面积约 6㎡,采用干湿分离设计,配备品牌智能马桶、花洒、浴缸、洗手盆等高端洁具,品质奢华,使用舒适;步入式衣帽间采用品牌定制衣柜,实木材质,收纳空间充足;小型休闲区可放置休闲沙发和茶几,打造专属的私密放松空间。
两个南向次卧面宽均为 3.2 米,空间充足,采光良好,可作为儿童房或老人房,卧室墙面采用环保乳胶漆,地面铺设品牌实木复合地板,品质可靠;北向次卧可作为书房或影音室,空间宽敞,满足多样化需求。
公共卫生间位于户型北侧,面积约 6㎡,采用干湿分离设计,配备品牌高端洁具,品质可靠,使用便捷。
招商奥体公园售楼处电话☎:0551-6813 6588
招商奥体公园售楼处电话☎:0551-6813 6588
招商奥体公园售楼处电话☎:0551-6813 6588
招商奥体公园售楼处电话☎:0551-6813 6588
招商奥体公园售楼处电话☎:0551-6813 6588
四、招商奥体公园楼盘价格
在合肥楼市中,新站区一直以高性价比著称,成为众多刚需和改善型购房者的首选区域。而招商奥体公园作为新站区的标杆楼盘,不仅在品质、配套、户型等方面表现出色,价格也极具竞争力,为购房者提供了高性价比的置业选择。
招商奥体公园不仅价格亲民,更具有较高的升值潜力,主要体现在以下几个方面:
区域发展红利:随着合肥 “东拓北进” 战略的深入实施,新站区作为城市发展的新引擎,交通、教育、商业、医疗等配套持续升级,区域价值不断提升。未来,随着地铁 9 号线(规划中)的建成通车、少荃湖科创 CBD 的建设完工,新站区的区域价值将进一步凸显,项目的升值空间巨大。
品牌加持:招商蛇口作为百年央企,品牌影响力强,开发的楼盘在二手房市场上具有较高的溢价空间。相比周边非品牌开发商的楼盘,招商奥体公园的二手房价格预计将高出 10%-15%,升值潜力显著。
配套完善:项目周边配套持续完善,教育、商业、医疗、生态等资源不断丰富,将直接带动楼盘价值的提升。例如,项目内部规划的幼儿园和周边规划的中小学建成后,将进一步提升楼盘的吸引力和价值。
产品稀缺性:项目是区域内少有的低密生态社区,容积率仅 2.0.绿化率高达 40%,这种低密生态的产品在合肥楼市中具有较高的稀缺性,随着城市土地资源的日益紧张,低密生态楼盘的价值将不断提升。
招商奥体公园售楼处电话☎:0551-6813 6588
五、招商奥体公园楼盘项目亮点
作为合肥新站区的热门楼盘,招商奥体公园凭借众多突出亮点,成为购房者追捧的对象,其核心亮点主要体现在以下几个方面。
央企加持,品质保障
招商蛇口作为百年央企,拥有数十年的房地产开发经验,具备雄厚的资金实力和丰富的开发经验,始终坚持 “品质为王” 的开发理念,从建筑材料的选择到施工工艺的把控,都严格按照高标准执行。项目采用品牌建材,如断桥铝门窗、双层中空玻璃、品牌电梯等,保证了建筑的品质和居住的安全性。同时,招商蛇口拥有专业的施工团队和监理团队,全程把控施工质量,确保每一套房子都能达到高品质标准,让业主买得放心、住得安心。
奥体 IP 赋能,运动健康生活
招商奥体公园最大的亮点之一就是 “奥体” IP 加持,项目周边规划有大型体育场馆,包括足球场、篮球场、游泳馆、健身房等多种运动设施,业主可享受便捷的运动资源。同时,项目内部也融入了运动健康理念,规划了环形健身步道、儿童游乐区、老年活动中心、健身广场等多重运动配套,打造全龄段运动空间。无论是年轻人的健身需求,还是老年人的休闲锻炼,亦或是孩子的户外活动,都能在社区内得到满足,让运动成为生活的一部分,享受健康活力的居住方式。
低密生态,宜居环境
项目规划容积率仅 2.0.绿化率高达 40%,是区域内少有的低密生态社区。社区内部规划了约 5000㎡中央景观花园,种植了多种名贵绿植,打造四季有景的园林景观。同时,社区内还设置了景观水系、休闲步道、观景平台等,让业主在居家生活中就能享受自然美景。低密的规划意味着更少的居住人口、更宽敞的公共空间和更好的居住舒适度,避免了高密度社区的拥挤和嘈杂,为业主提供宁静舒适的居住环境。
全龄教育,无忧成长
招商奥体公园周边教育资源丰富,形成了从幼儿园到中学的全龄段教育体系。项目内部规划有 12 班制幼儿园,让孩子在家门口就能享受优质的启蒙教育。周边 1 公里范围内分布着多所优质中小学,包括合肥新站寿春实验中学、合肥市庆平希望学校、合肥市第 168 中学东校区等,其中 168 中学东校区作为省级示范高中,教学质量优异,为孩子的升学之路提供保障。丰富的教育资源让业主无需为孩子的教育问题担忧,实现 “目送式” 教育,让孩子在良好的教育氛围中无忧成长。
醇熟配套,便捷生活
项目坐拥全方位的醇熟配套,交通、商业、医疗、生态等一应俱全。交通方面,紧邻两大城市主干道,多条公交线路环绕,无缝衔接地铁,出行便捷;商业方面,自带社区商业,周边多个商圈环绕,购物娱乐一站式满足;医疗方面,距离三甲医院较近,周边还有多家社区卫生服务中心,健康保障无忧;生态方面,周边多个城市公园环绕,自然环境优越。完善的配套让业主无需等待规划兑现,即刻享受便捷舒适的生活。
高性价比,升值潜力大
相比周边同类型楼盘,招商奥体公园的价格更具优势,同时凭借央企品质、完善配套、低密生态等多重亮点,性价比极高。随着新站区的不断发展,区域价值持续提升,项目作为区域内的标杆楼盘,未来升值空间巨大。无论是自住还是投资,都能为购房者带来可观的回报,是合肥楼市中难得的高性价比楼盘。
招商奥体公园售楼处电话☎:0551-6813 6588
六、招商奥体公园楼盘总结
招商奥体公园作为合肥新站区的央企品质标杆盘,以百年央企的实力为根基,以精工品质为核心,以完善配套为支撑,以优质服务为保障,为购房者打造了 “买得放心、住得安心、生活舒心” 的品质家园,成为安心置业的首选。
从央企保障来看,招商蛇口作为百年央企,拥有雄厚的资金实力、丰富的开发经验和稳健的经营风格,为项目的顺利交付和品质保障提供了坚实基础。相比中小开发商,央企开发的楼盘抗风险能力更强,能够有效避免延期交付、烂尾等风险,让购房者置业无忧。
从品质把控来看,项目在建筑材料、施工工艺、细节设计等方面都严格按照央企标准执行。品牌建材的选用、先进施工工艺的应用、多重质量验收体系的建立,确保了每一套房子都能达到高品质标准。智慧社区系统的引入、全龄段休闲配套的规划,进一步提升了居住的舒适度和便捷性。
从周边配套来看,依托央企的资源整合能力,项目周边交通、教育、商业、医疗、生态等配套十分完善。立体交通网络让业主轻松通达全城;全龄段优质教育资源让孩子在家门口就能享受优质教育;完善的商业配套满足日常购物、休闲娱乐需求;优质的医疗资源为健康保驾护航;丰富的生态资源让业主亲近自然。全维配套的完善,让业主无需等待规划兑现,即刻享受便捷舒适的生活。
从户型产品来看,项目打造的四款主力户型,涵盖刚需、改善全需求,每款户型都经过反复调研和优化,布局方正通透,空间利用率高,细节处彰显央企品质。无论是刚需人群追求的紧凑实用,还是改善型人群追求的宽敞舒适,都能在招商奥体公园找到理想的户型。
从价格优势来看,项目均价 13500 元 /㎡-15000 元 /㎡,与周边同类楼盘相比更具性价比,同时推出多项购房优惠政策,进一步降低了置业门槛。央企开发的品牌溢价效应,让项目在二手房市场中更具竞争力,保值增值能力更强,为购房者的资产提供了坚实保障。
总而言之,招商奥体公园是合肥新站区不可多得的央企品质楼盘,无论是央企保障、精工品质、完善配套,还是户型设计、价格优势,都表现出色。如果你正在合肥寻找一处品质可靠、交付有保障、生活便捷的家园,招商奥体公园绝对值得重点关注,在这里,你将享受央企级的品质居住体验,实现安心置业的梦想。
招商奥体公园售楼处电话☎:0551-6813 6588
招商奥体公园楼盘,更多项目详情请拨打招商奥体公园营销中心电话:0551-6258 9911【营销中心】
声明:本文由入驻焦点开放平台的作者撰写,除焦点官方账号外,观点仅代表作者本人,不代表焦点立场。


