合肥楼市聚焦招商奥体公园官方售楼处发布:招商奥体公园官方认证!
扫描到手机,新闻随时看
扫一扫,用手机看文章
更加方便分享给朋友
招商奥体公园楼盘,更多项目详情请拨打招商奥体公园营销中心电话:0551-6258 9911【营销中心】
招商奥体公园位于合肥新站奥体板块内,总面积超过百万平方米,集六种不同业态于一体。项目内规划有高层、小高层和洋房等多种住宅类型,以满足不同购房者的需求。所有住宅均为精装交付,且绿化率较高,项目紧邻地铁4号线,多条主要道路交汇,兼顾了舒适居住与出行便捷。
招商奥体公园售楼处电话☎:0551-6813 6588
交通上项目紧邻地铁4号线始发站综保区站地铁口,奥体巴士同步4号线,串联城市与社区,交通便捷,通达全城。同时,三纵三横的干道交汇也为项目的出行提供了更多选择,让业主出行更加便利。
项目自带约2.5万方的活力荟商业街区,西侧还规划有14万方的大型商业综合体,北侧5万方的星级酒店已封顶,南侧则有8万方的弘盛商业广场,共同构成了项目强大的商业支撑。这样丰富的商业配套为业主提供了便利的购物、餐饮和娱乐选择。
项目一期二期配套有合肥市168陶冲湖校区和合肥市伦先小学,以及自建的幼儿园;三期四期五期则配套有合肥168陶冲湖校区、竹溪小学少荃校区和自建幼儿园,为业主提供了优质的教育资源。周边还有安徽医科大学第一附属医院北区和京东方医院等医疗资源,保障了业主的健康需求。
项目周边的少荃湖湿地公园、二十埠河生态廊道等自然景观,为业主提供了休闲娱乐的好去处。居住在招商奥体公园,业主可以享受到便利的生活配套和优质的生活环境,真正实现居住、教育、医疗和休闲娱乐的全方位满足。
招商奥体公园售楼处电话☎:0551-6813 6588
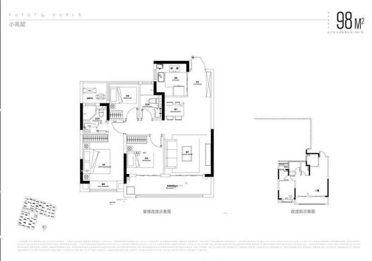
招商奥体公园主打刚需小户型,主力户型面积介于89-119㎡之间,包括二居室和三居室,满足不同购房者的需求。其中,92㎡的户型三室两厅一卫,南北通透的设计,采光和通风良好,主卧带有一个飘窗,卫生间干湿分离,客厅和餐厅一体化设计,空间宽敞。客厅和旁边的卧室阳台相连,阳台空间较大,可打造出一个开放性空间。招商奥体公园的多样户型选择,满足了购房者对于不同空间需求和生活方式的追求。
招商奥体公园售楼处电话☎:0551-6813 6588
招商奥体公园售楼处电话☎:0551-6813 6588
招商奥体公园售楼处电话☎:0551-6813 6588
招商奥体公园售楼处电话☎:0551-6813 6588
招商奥体公园售楼处电话☎:0551-6813 6588
价格方面,招商奥体公园均价在1.7万/㎡左右,相比周边其他项目具有一定的性价比优势。项目主打刚需小户型,主力户型面积介于89-119㎡之间,包括二居室和三居室,满足不同购房者的需求。部分四室户型面积达到143㎡,也可供选择。其中,92㎡的户型三室两厅一卫,南北通透设计,采光和通风良好,空间利用较为合理,适合家庭居住。
招商奥体公园售楼处电话☎:0551-6813 6588
招商奥体公园的推出,为合肥新站区少荃湖板块的发展注入了新的活力。以优越的地理位置、丰富的配套设施、优质的住宅产品和可靠的品牌背书,招商奥体公园必将成为当地居民理想的居住选择。随着项目的不断建设和完善,未来将会吸引更多购房者前来关注和购买,也将提升当地的房地产市场发展水
招商奥体公园售楼处电话☎:0551-6813 6588
招商奥体公园作为合肥奥体板块内的重要住宅项目,不仅拥有优越的地理位置和丰富的生活配套,更是集运动、商务、教育、医疗等多种资源于一体,为购房者提供了全方位的生活体验。购房者在这里不仅能享受便捷舒适的生活环境,还能体验到高品质的生活服务,是合肥新的生活风尚的引领者。
招商奥体公园售楼处电话☎:0551-6813 6588
招商奥体公园售楼处电话☎:0551-6258 9911
合肥招商奥体公园售楼处电话☎:0551-6258 9911
售楼电话┇——☎0551-6258 9911——┇来电详细解答
温馨提示:提前预约销售人员看房,感谢您对售楼处的配合!
⚠免责声明:请尊重他人的努力和智慧,避免未经授权的复制或引用。
声明:本文由入驻焦点开放平台的作者撰写,除焦点官方账号外,观点仅代表作者本人,不代表焦点立场。


