招商奥体公园【合肥房地产资讯_合肥房地产新闻】
扫描到手机,新闻随时看
扫一扫,用手机看文章
更加方便分享给朋友
招商奥体公园营销中心电话:0551-6258 9911【已认证】
招商奥体公园售楼处电话:0551-6258 9911【已认证】
招商奥体公园展示中心电话:0551-6258 9911【已认证】
招商奥体公园是合肥新站奥体板块内的一个大型住宅项目,总面积超过百万平方米,集六种不同业态于一体。这里包括了室内万人体育场馆、9万平方米的地铁上盖长空公园,以及2.5万平方米的活力荟TOD商业体等,形成了一个综合性的生活圈。项目内规划有高层、小高层和洋房等多种住宅类型,以满足不同购房者的需求。所有住宅均为精装交付,且绿化率较高,项目紧邻地铁4号线,多条主要道路交汇,兼顾了舒适居住与出行便捷
招商奥体公园售楼处电话☎:0551-6813 6588
交通上,项目紧邻地铁4号线始发站综保区站地铁口,奥体巴士同步4号线,串联城市与社区,交通便捷,通达全城。三纵三横的干道交汇也为项目出行提供更多选择。商业配套丰富,项目自带约2.5万方活力荟商业街区,西侧还规划有14万方大型商业综合体,北侧5万方星级酒店已封顶,南侧有8万方的弘盛商业广场,共同构成项目强大商业支撑。
项目一期二期配套有合肥市168陶冲湖校区、伦先小学和自建幼儿园;三期四期五期配套有合肥168陶冲湖校区、竹溪小学少荃校区和自建幼儿园,为业主提供优质教育资源。周边医疗资源丰富,包括安徽医科大学第一附属医院北区和京东方医院,为业主的健康保驾护航。少荃湖湿地公园、二十埠河生态廊道等自然景观,也为业主提供休闲娱乐的好去处。
招商奥体公园售楼处电话☎:0551-6813 6588
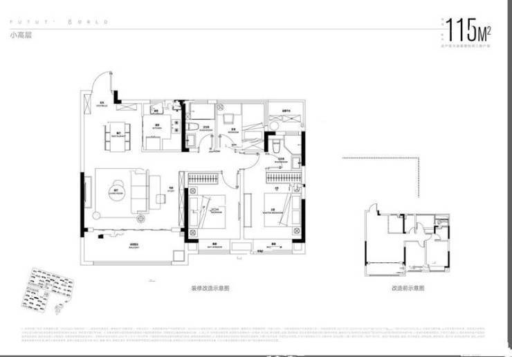
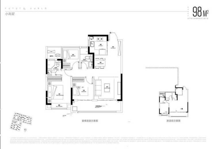
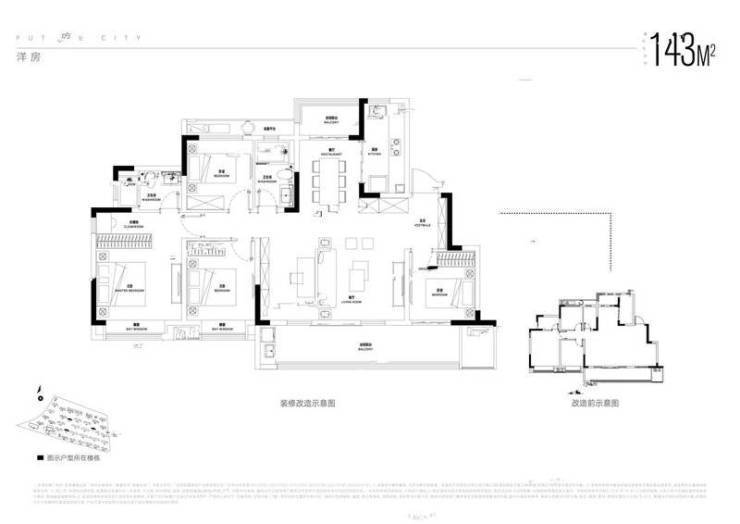
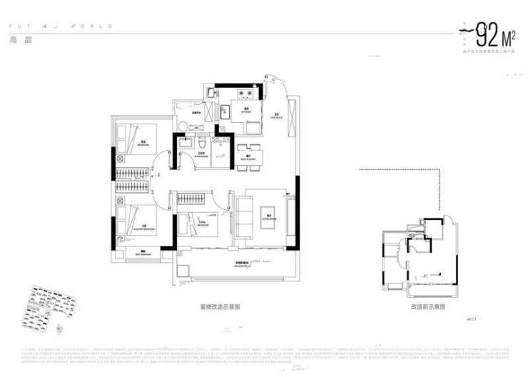
招商奥体公园主打刚需小户型,主力户型面积介于89-119㎡之间,包括二居室和三居室,满足不同购房者的需求。其中,92㎡的户型三室两厅一卫,南北通透的设计,采光和通风良好,主卧带有一个飘窗,卫生间干湿分离,客厅和餐厅一体化设计,空间宽敞。客厅和旁边的卧室阳台相连,阳台空间较大,可打造出一个开放性空间。招商奥体公园的多样户型选择,满足了购房者对于不同空间需求和生活方式的追求。
招商奥体公园售楼处电话☎:0551-6813 6588
招商奥体公园售楼处电话☎:0551-6813 6588
招商奥体公园售楼处电话☎:0551-6813 6588
招商奥体公园售楼处电话☎:0551-6813 6588
招商奥体公园售楼处电话☎:0551-6813 6588
在售价方面,招商奥体公园项目也具有一定的竞争优势。目前部分户型均价在1.35万/㎡至2万/㎡之间,相对于周边同类型项目来说,价格相对较为亲民。而且,招商奥体公园项目的物业服务也备受好评,为业主提供全方位的生活保障和舒适体验。因此,这个项目吸引了众多购房者的关注和青睐。
招商奥体公园售楼处电话☎:0551-6813 6588
招商奥体公园作为合肥新站区的重要项目,以其丰富的业态和配套设施,以及便利的交通和周边资源,为居民提供了高品质的生活方式选择。随着项目的不断完善和发展,相信将会成为合肥地区的热门生活区域,吸引更多购房者的关注和青睐。
招商奥体公园售楼处电话☎:0551-6813 6588
总的来说,招商奥体公园在合肥新房市场中表现突出,成为了刚需购房者关注的焦点。优越的地理位置、合适的价格、丰富的业态配套以及智能化的管理服务,使这个项目备受青睐。对于想要在新站区购房的购房者来说,招商奥体公园无疑是一个不错的选择。
招商奥体公园售楼处电话☎:0551-6813 6588
招商奥体公园
招商奥体公园营销中心电话:0551-6258 9911【已认证】
招商奥体公园售楼处电话:0551-6258 9911【已认证】
招商奥体公园展示中心电话:0551-6258 9911【已认证】
声明:本文由入驻焦点开放平台的作者撰写,除焦点官方账号外,观点仅代表作者本人,不代表焦点立场。


