合肥信达碧桂园项目户型图-优惠
扫描到手机,新闻随时看
扫一扫,用手机看文章
更加方便分享给朋友
信达碧桂园楼盘电话号码:0551-68111601【营销中心】
欢迎来电咨询!可预约销售人员(来电尊享内部优惠活动)【2024房价特价信息丨底价优惠丨在售户型图丨项目介绍丨在售房源丨周边配套】
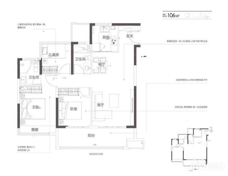
信达碧桂园项目位于肥东县酿泉路与日出路交口,规划住户2114户,整体绿化40%,容积率为2,是低密好社区。项目包括三室的95-105㎡和四室的118㎡户型,同时还会修建幼儿园和睦邻中心,小区物业费为2元/㎡/月,停车位达2359个。
信达碧桂园不仅提供高品质的居住环境,还拥有丰富的周边配套设施。交通便利是其一大优势,紧邻地铁2号线东延线,肥东高铁站,有轨电车(规划中)等多种出行方式,让居民能够快速到达城市各处。同时,项目周边还有多所优质学校、医疗机构和商业设施,满足居民的各种需求。生态环境优越,周边有多个公园供居民休闲使用,让居民能够享受到便利舒适的生活。
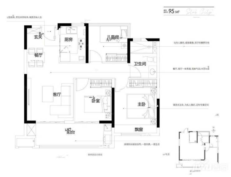
信达碧桂园提供三种主要户型:95㎡的三室两厅一卫、105㎡的两卫和118㎡的四室两厅两卫。这些方正、全明布局的户型拥有充足阳光和通风性好的特点,空间利用率高,让“动静分区”,提高居住舒适度。不论是单身青年还是三口之家,都可以在这里找到适合自己的理想家园。
信达碧桂园楼盘具体一房一价,详询营销中心。
项目注重品质,建筑设计精良,采用优质材料,保证房屋的质量和耐久性。项目内设有儿童乐园、健身房、社区花园等配套设施,为居民提供便利的生活体验。交付标准为毛坯,让购房者可以根据自己的喜好和需求进行装修,更加个性化和自由。
信达碧桂园作为肥东县的新兴住宅项目,以其优越的地理位置、多样化的户型选择和注重品质的建筑设计,吸引了众多购房者的关注。无论是购房者的居住需求还是生活体验,信达碧桂园都能为他们提供理想的选择。希望信达碧桂园能成为更多家庭梦想的归宿,为他们营造一个舒适、便利、品质的家园。
信达碧桂园楼盘电话号码:0551-68111601【营销中心】
欢迎来电咨询!可预约销售人员(来电尊享内部优惠活动)【2024房价特价信息丨底价优惠丨在售户型图丨项目介绍丨在售房源丨周边配套】
声明:本文由入驻焦点开放平台的作者撰写,除焦点官方账号外,观点仅代表作者本人,不代表焦点立场。


