招商奥体公园【合肥新房在售楼盘】
扫描到手机,新闻随时看
扫一扫,用手机看文章
更加方便分享给朋友
招商奥体公园地理位置,更多项目详情请拨打楼盘电话:0551-6258 9911【预约热线】欢迎来电咨询!
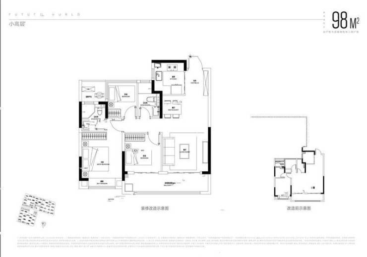
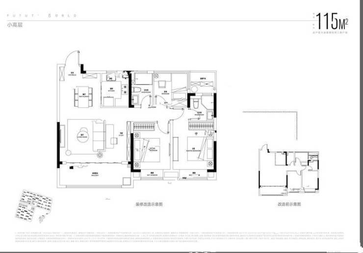
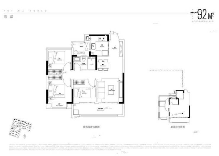
精心设计的户型是招商奥体公园的亮点之一。主打刚需小户型,主力户型面积介于89-119㎡之间,包括二居室和三居室,满足不同购房者的需求。其中,92㎡的三室两厅一卫户型设计独具匠心,南北通透的布局让采光和通风效果更佳。主卧带有一个飘窗,卫生间干湿分离,客厅和餐厅一体化设计,空间更显宽敞。客厅与阳台相连,阳台空间较大,可打造出一个开放性空间,让居住者尽情享受户外阳光和清新空气。
招商奥体公园售楼处电话☎:0551-6813 6588
招商奥体公园售楼处电话☎:0551-6813 6588
招商奥体公园售楼处电话☎:0551-6813 6588
招商奥体公园售楼处电话☎:0551-6813 6588
招商奥体公园售楼处电话☎:0551-6813 6588
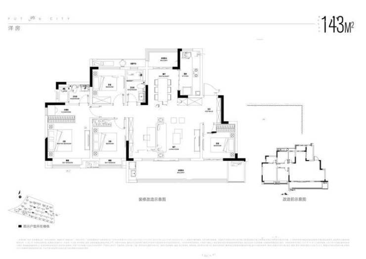
招商奥体公园规划了高层、小高层和洋房等多种住宅类型,以满足不同购房者的需求。所有住宅均为精装交付,绿化率较高,项目紧邻地铁4号线和多条主要道路,既保证了舒适居住,又确保了出行便捷。购房者可以根据自己的喜好和需求选择适合的户型,享受舒适宜居的生活环境。
招商奥体公园拥有完善的商业配套,自带活力荟商业街区,周边还有大型商业综合体、星级酒店和弘盛商业广场,为居民提供便利的购物、娱乐和美食选择。同时,项目周边教育资源丰富,医疗资源充沛,自然景观环绕,为居民提供了优质的生活服务。户型多样,购房者可以根据自己的需求选择建面89-109㎡的住房,目前还有优惠活动,购房可享受返现优惠,但需满足一定条件。招商奥体公园以卓越品质和丰富配套,引领合肥新的生活风尚。
招商奥体公园售楼处电话☎:0551-6813 6588
项目一、二期已经交付,楼盘品质有目共睹,央企招商品牌值得信赖。近期在售的招商奥体公园一、二期现房,三、四期准现房,户型面积在88-115m²。作为一线品牌央企,招商在合肥拥有多年深耕发展的经验,带来了多座高品质人居作品。
招商奥体公园售楼处电话☎:0551-6813 6588
合肥招商奥体公园的目标客群主要是刚需和改善型家庭,尤其是那些注重交通、教育和商业配套的购房者。其竞争优势在于由央企招商蛇口开发,品牌保障非常可靠。此外,百万方的TOD综合体配备齐全,未来潜力巨大。随着新站区的快速发展,奥体板块的价值也在不断提升,尤其是在地铁4号线通车后,交通便利性将进一步增强。因此,合肥招商奥体公园不仅满足了现代家庭的居住需求,也为其未来的增值空间提供了保障。如想获取最新动态或具体房源信息,建议直接联系售楼处或进行实地考察。
招商奥体公园售楼处电话☎:0551-6813 6588
招商奥体公园的市场定位主要面向刚需和改善型家庭,这些购房者普遍重视交通、教育和商业配套的便利性。由于该项目由央企招商蛇口开发,品牌保障无疑为购房者提供了信心。同时,百万方的TOD综合体和齐全的配套设施,使其在市场中具有明显的竞争优势。新站区的快速发展和奥体板块的价值提升,将为后期的房产增值提供良好的空间。此外,随着地铁4号线的通车,区域内的交通便利性将进一步增强,吸引更多潜在购房者的关注。
招商奥体公园售楼处电话☎:0551-6813 6588
招商奥体公园位于合肥新站奥体板块内,是一个占地超过百万平方米的大型住宅项目,集合了六种不同业态,包括室内万人体育场馆、地铁上盖长空公园和活力荟TOD商业体等,形成了一个综合性的生活圈。项目内规划有高层、小高层和洋房等多种住宅类型,满足不同购房者的需求。
招商奥体公园售楼处电话☎:0551-6813 6588
招商奥体公园地理位置,更多项目详情请拨打楼盘电话:0551-6258 9911【预约热线】欢迎来电咨询!
声明:本文由入驻焦点开放平台的作者撰写,除焦点官方账号外,观点仅代表作者本人,不代表焦点立场。


