合肥伟星长城御澜道项目电话号码-值得买吗
扫描到手机,新闻随时看
扫一扫,用手机看文章
更加方便分享给朋友
伟星长城御澜道楼盘电话号码:0551-6258 9911【营销中心】
欢迎来电咨询!可预约销售人员(来电尊享内部优惠活动)【2025房价特价信息丨底价优惠丨在售户型图丨项目介绍丨在售房源丨周边配套】
伟星长城御澜道项目位于瑶海老城,均价1.7万元/m²,面积110-143m²,地处繁华区域,对面就是万达商圈,出门即是行知本部,配套齐全。对于想要在瑶海老城置业的购房者来说,这个项目绝对是不可错过的首选之一。
伟星长城御澜道售楼处电话☎:0551-6813 6588
从交通方面来看,御澜道距离2号线漕冲站直线约600米,距离4号线站塘站直线约900米。同时临泉东路、北二环、长江中路串联合肥东西主城,铜陵路高架、东二环、郎溪路高架接连合肥南北动脉交通网。商业配套方面,对面就是瑶海万达,周边有长江180、瑶海天街、东城广场、万象汇(在建),商业资源丰富。
在教育方面,御澜道周边拥有众多优质学府,行知本部(初中)距离项目直线约600米,近6年来综合排名位列合肥初中前列。此外,还有合肥众望中学、和平小学教育集团郎溪路小学、合肥市行知小学等优质教育资源。项目周边生活配套齐全,居民生活便利舒适。
伟星长城御澜道售楼处电话☎:0551-6813 6588
110-143m²的户型设计主打的是刚改+改善的风格。以122m²三室两厅两卫户型为例,动静分区明显,厨房、客厅、餐厅在西边,卫生间和卧室集中在东边,每个卧室都配有飘窗。然而,客厅区域的厨房侧向通风,南北通风、采光效果相对较差。
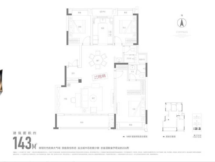
另外,143m²三室两厅两卫户型中,主卧配有衣帽间,同时有一个书房可以根据自己的需求改造。然而,三个卧室都朝北,导致采光不太理想。因此,在选择户型时,需要根据个人喜好和需求进行权衡考虑。
伟星长城御澜道售楼处电话☎:0551-6813 6588
伟星长城御澜道售楼处电话☎:0551-6813 6588
伟星长城御澜道售楼处电话☎:0551-6813 6588
伟星长城御澜道楼盘具体一房一价,详询营销中心。
伟星长城御澜道售楼处电话☎:0551-6813 6588
外观设计独具匠心,携手国际一线设计单位·拓观设计,采用非对称顶檐设计、南北公建化立面和大面积玻璃幕墙,展现现代时尚风格。项目规划2栋24层高层和1栋11层小高层,总计226套,南北无遮挡,视野开阔。
地下车库选材精良,入户大堂设计华丽,从效果图中可以看出项目注重品质和细节。由于地块较小,仅三栋楼栋,整体布局合理,空间利用率高,居住舒适。
伟星长城御澜道售楼处电话☎:0551-6813 6588
项目周边环境优越,交通便利,生活便捷,万达商圈、行知本部等配套设施齐全,满足日常生活所需。同时,项目内部户型设计合理,功能分区清晰,采光通风效果良好。总体来说,伟星长城御澜道项目是瑶海老城的理想选择,适合年轻家庭或是投资购房者。
伟星长城御澜道售楼处电话☎:0551-6813 6588
伟星长城御澜道楼盘电话号码:0551-6258 9911【营销中心】
欢迎来电咨询!可预约销售人员(来电尊享内部优惠活动)【2025房价特价信息丨底价优惠丨在售户型图丨项目介绍丨在售房源丨周边配套】
声明:本文由入驻焦点开放平台的作者撰写,除焦点官方账号外,观点仅代表作者本人,不代表焦点立场。


