合肥越秀中寰天悦新房新小区、好项目、看房方便
扫描到手机,新闻随时看
扫一扫,用手机看文章
更加方便分享给朋友
越秀中寰天悦地理位置,更多项目详情请拨打楼盘电话:0551-6258 9911【预约热线】欢迎来电咨询!
越秀中寰天悦坐落于包河区望江东路与至德路交叉口东北角,紧邻包河主城区,位于二环内淝河板块,周边交通便利,配套设施完善。项目周边主要交通干道包括东二环路、望江东路等,同时临近1号线、4号线和6号线轨道交通,出行非常方便。在教育资源方面,项目周边有包括包河区外国语第二小学和合肥第四十八中望湖校区在内的多所优质学校,学区房备受关注。同时,淝河板块内还拥有多家三甲医院,如市三院和市二院,为居民提供便捷医疗服务。
越秀中寰天悦售楼处电话☎:0551-6813 6588
项目位于包河区望江东路与至德路交叉口东北角,紧邻包河主城区,处于二环内地段,享有淝河板块醇熟配套。周边交通便利,有城市主干道东二环路、望江东路等,同时也靠近轨道交通1号线、4号线和6号线,出行十分方便。教育资源方面,距离项目两公里左右就有包河区外国语第二小学,三公里左右是合肥第四十八中望湖校区,教学质量有保证。此外,淝河板块内还有多家三甲医院和公园,生活便利且环境优美。
除了周边的教育和医疗资源,越秀中寰天悦周边商业配套也相当完善。小区对面就有大型超市满足日常购物需求,三公里内还有知名美食街和购物中心,方便居民休闲娱乐和购物消费。总的来说,越秀中寰天悦不仅在户型设计和价格方面吸引人,其周边配套的完善性也是吸引购房者的一大亮点。
越秀中寰天悦售楼处电话☎:0551-6813 6588
尽管是越秀中寰天悦项目中最小的户型,149㎡的四室布局设计却十分合理。标准四室两厅两卫的设计,端厅布局使活动区域更加宽敞,主卧套房设计可设衣帽间,提高私密性和舒适度。即使是较小的户型,也能满足家庭的居住需求,为购房者带来更多选择。
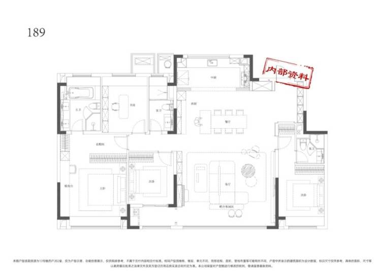
188㎡的户型是越秀中寰天悦项目的亮点之一。入户十字玄关设计,两侧可设置鞋帽柜,注重私密性。卧室布局在前,主卧和次卧均为套房设计,主卧的衣帽间和卫生间空间宽敞舒适。客厅活动区域宽敞明亮,15米端厅设计,南侧为落地窗,采光效果良好。整体设计符合改善型住宅的基调,为居住者带来舒适而宜居的生活环境。
越秀中寰天悦售楼处电话☎:0551-6813 6588
越秀中寰天悦售楼处电话☎:0551-6813 6588
越秀中寰天悦售楼处电话☎:0551-6813 6588
越秀中寰天悦楼盘具体一房一价,详询营销中心。
越秀中寰天悦售楼处电话☎:0551-6813 6588
小区负一层打造了约1300㎡的独立下沉式会所,内设有多样活动区域。从品茗的方桌到宴客的圆桌,可以满足各种聚会需求。另外还有棋牌室、小型KTV等娱乐场所,为业主提供休闲娱乐选择。超大健身区域内设有瑜伽区、普拉提区和健身器械区,满足不同健身需求。会所外的景观区域有浅水池,为小朋友提供安全的水上玩乐空间。
除了负一楼的大会所,各楼栋的一楼大厅也打造成主题空间,满足家庭成员的不同需求。儿童主题区域包括画画区域、积木区域和学堂,为小朋友提供学习和娱乐空间。女性主题区域则有插花、烹茶的区域,以及聊天沙龙和阅读角,让女主人们享受休闲时光。整个越秀中寰天悦项目通过丰富的活动空间,为业主打造舒适便利的社区生活。
越秀中寰天悦售楼处电话☎:0551-6813 6588
越秀中寰天悦这样一个集交通便捷、教育资源丰富、生活配套完善于一体的纯改善型住宅项目,购房者可以享受到高品质的居住体验。项目周边的醇熟配套设施,以及优质的教育资源,将为居民的生活提供便利与舒适。如果您正在寻找一处二环内性价比较高的住宅,不妨多关注越秀中寰天悦,或许它就是您理想中的居所。
越秀中寰天悦售楼处电话☎:0551-6813 6588
越秀中寰天悦楼盘,更多项目详情请拨打越秀中寰天悦营销中心电话:0551-6258 9911【营销中心】
声明:本文由入驻焦点开放平台的作者撰写,除焦点官方账号外,观点仅代表作者本人,不代表焦点立场。


