新站区招商奥体公园-招商奥体公园详情丨学区是什么丨周边配套→新站区新房
扫描到手机,新闻随时看
扫一扫,用手机看文章
更加方便分享给朋友
招商奥体公园楼盘电话号码:0551-68111601【营销中心】
欢迎来电咨询!可预约销售人员(来电尊享内部优惠活动)【2024房价特价信息丨底价优惠丨在售户型图丨项目介绍丨在售房源丨周边配套】
2021年,招商地产选择在合肥新站区少荃湖板块布局,打造了合肥首个百万方奥体TOD体育综合体。这个项目位于东方大道与卧龙湖路交叉口,包括少荃体育中心、长空公园、花园里商街、奥体上城等多个业态,为居民提供了丰富多彩的生活方式。招商奥体公园不仅拥有丰富的住宅产品,还有公园、体育中心、购物中心、社区商业中心等配套设施,满足居民多重生活需求。同时,项目周边还有地铁四号线、竹溪小学、京东方医院、少荃湖湿地公园等资源,为居民提供便利的生活环境。
招商奥体公园项目的地理位置优越,周边交通便捷。地铁四号线贯穿项目区域,让居民可以快速便捷地到达各个目的地。此外,周边配套资源完善,生活所需一应俱全,满足了居民的各种生活需求。这样的便利条件,吸引了众多购房者的目光,成为他们选择购房的重要考量因素之一。
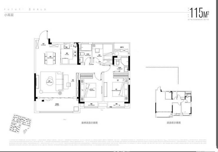
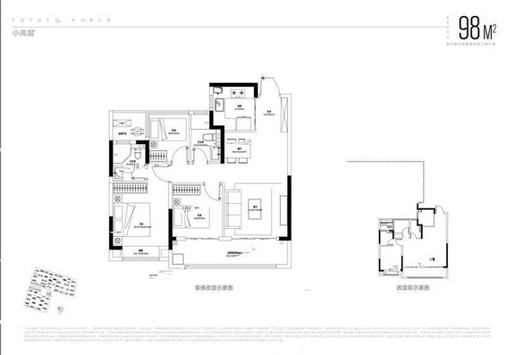
招商奥体公园主打刚需小户型,主力户型面积介于89-119㎡之间,包括二居室和三居室,满足不同购房者的需求。其中,92㎡的户型三室两厅一卫,南北通透的设计,采光和通风良好,主卧带有一个飘窗,卫生间干湿分离,客厅和餐厅一体化设计,空间宽敞。客厅和旁边的卧室阳台相连,阳台空间较大,可打造出一个开放性空间。招商奥体公园的多样户型选择,满足了购房者对于不同空间需求和生活方式的追求。
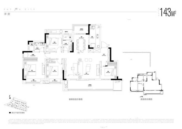
价格方面,招商奥体公园均价在1.7万/㎡左右,相比周边其他项目具有一定的性价比优势。项目主打刚需小户型,主力户型面积介于89-119㎡之间,包括二居室和三居室,满足不同购房者的需求。部分四室户型面积达到143㎡,也可供选择。其中,92㎡的户型三室两厅一卫,南北通透设计,采光和通风良好,空间利用较为合理,适合家庭居住。
招商奥体公园的推出,为合肥新站区少荃湖板块的发展注入了新的活力。以优越的地理位置、丰富的配套设施、优质的住宅产品和可靠的品牌背书,招商奥体公园必将成为当地居民理想的居住选择。随着项目的不断建设和完善,未来将会吸引更多购房者前来关注和购买,也将提升当地的房地产市场发展水平。
在合肥新房市场竞争激烈的背景下,招商奥体公园项目凭借其独特的定位和优势,成为了一匹刚需“黑马”,取得了不错的成绩。其综合性的规划和便利的交通配套,为购房者提供了舒适便利的居住环境,成为了新站区的一颗“明珠”。
总的来说,招商奥体公园项目在合肥新房市场上的表现可圈可点。其独特的综合性规划,便捷的交通配套以及相对亲民的售价,使其成为了购房者们眼中的“香饽饽”。未来,随着项目的不断完善和周边配套的逐步完善,相信招商奥体公园会继续吸引更多购房者的关注和青睐,成为合肥新站区的璀璨明珠。
招商奥体公园楼盘电话号码:0551-68111601【营销中心】
欢迎来电咨询!可预约销售人员(来电尊享内部优惠活动)【2024房价特价信息丨底价优惠丨在售户型图丨项目介绍丨在售房源丨周边配套】
声明:本文由入驻焦点开放平台的作者撰写,除焦点官方账号外,观点仅代表作者本人,不代表焦点立场。


