瑶海区伟星长城御澜道新房周边配套-价格
扫描到手机,新闻随时看
扫一扫,用手机看文章
更加方便分享给朋友
伟星长城御澜道楼盘电话号码:0551-6258 9911【营销中心】
欢迎来电咨询!可预约销售人员(来电尊享内部优惠活动)【2024房价特价信息丨底价优惠丨在售户型图丨项目介绍丨在售房源丨周边配套】
项目拟建2栋24层高层和1栋11层小高层,共计226套。因为地块较小,仅三栋,楼栋纵向摆放,南北无遮挡。外立面携手国际一线设计单位·拓观设计,采用非对称顶檐设计、南北公建化立面、大面积玻璃幕窗,展现出现代简约的建筑风格。这种设计不仅提升了建筑的美感,也有利于室内采光和通风。
地下车库也是品质精心选材,从效果图能看出来入户大堂还是相当华丽的。在室内装修方面,伟星长城御澜道也将尽力打造高品质的生活空间。预计将采用欧洲进口家具、意大利大理石地板、德国工艺厨卫设备等,为业主提供舒适、豪华的居住体验。
伟星长城御澜道售楼处电话☎:0551-6813 6588
伟星长城御澜道项目位于瑶海老城,均价1.7万元/m²,面积110-143m²,地处繁华区域,对面就是万达商圈,出门即是行知本部,配套齐全。对于想要在瑶海老城置业的购房者来说,这个项目绝对是不可错过的首选之一。
伟星长城御澜道售楼处电话☎:0551-6813 6588
项目周边环境优越,交通便利,生活便捷,万达商圈、行知本部等配套设施齐全,满足日常生活所需。同时,项目内部户型设计合理,功能分区清晰,采光通风效果良好。总体来说,伟星长城御澜道项目是瑶海老城的理想选择,适合年轻家庭或是投资购房者。
伟星长城御澜道售楼处电话☎:0551-6813 6588
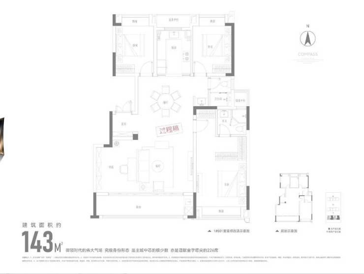
户型设计体贴周到,110-143m²的房型主打的是刚改+改善。比如122m²的三室两厅两卫户型,动静分区明显,厨房、客厅、餐厅在西边,卫生间和卧室则集中在东边,每个卧室都配有飘窗,但客厅区域的通风采光效果稍显不足。另外,143m²的三室两厅两卫户型,带有一个书房,主卧带有衣帽间,但三个卧室都朝北,采光情况较差。
伟星长城御澜道售楼处电话☎:0551-6813 6588
伟星长城御澜道售楼处电话☎:0551-6813 6588
伟星长城御澜道售楼处电话☎:0551-6813 6588
伟星长城御澜道楼盘具体一房一价,详询营销中心。
伟星长城御澜道售楼处电话☎:0551-6813 6588
商业配套完善,对面是瑶海万达,周边还有长江180、瑶海天街、东城广场、万象汇等商业中心。教育资源丰富,距离御澜道约600米的行知本部初中近年来排名居前,周边还有众望中学、和平小学教育集团郎溪路小学、行知小学等优质教育机构。
伟星长城御澜道售楼处电话☎:0551-6813 6588
伟星长城御澜道楼盘电话号码:0551-6258 9911【营销中心】
欢迎来电咨询!可预约销售人员(来电尊享内部优惠活动)【2024房价特价信息丨底价优惠丨在售户型图丨项目介绍丨在售房源丨周边配套】
声明:本文由入驻焦点开放平台的作者撰写,除焦点官方账号外,观点仅代表作者本人,不代表焦点立场。


