淝河板块招商雍润府值得入手吗
扫描到手机,新闻随时看
扫一扫,用手机看文章
更加方便分享给朋友
淝河板块招商雍润府不错,项目地处淝河2.0片区,为央企招商匠心打造的高品质雍系人居作品,位置上临近包河主城区,地理位置优越,周边配套规划齐全,生活便捷舒适,项目目前清盘在售,价格上性价比高,值得入手。
营销咨询号码:0551-68111601
招商,作为实力央企品牌,在地产行业持续深耕多年,是国内领军房企品牌,2017年,招商正式入驻合肥,以优秀的品质,卓越的口碑与品牌影响力,为合肥带来了一座座高品质人居著作,并收获了百亿销售的亮眼成绩,收获诸多家庭的信任与认可。
招商雍润府,是招商在淝河板块匠心打造的一座品质人居,项目具体位于郎溪路与历口路交叉口,项目旁边便是招商开发的臻系四季臻邸,地处淝河2.0片区,地理位置还是相当优越的,生活配套齐全完善。
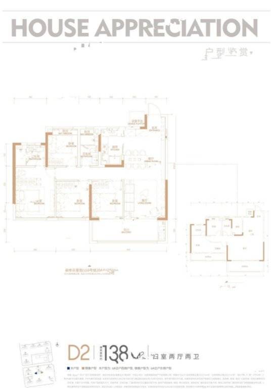
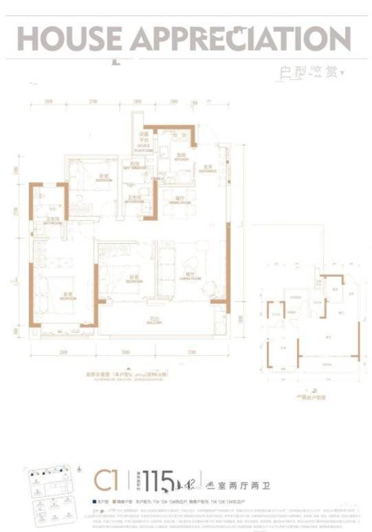
项目规划拟建11栋住宅,主打高层103,115平,小高138平,是一个偏刚需、刚改的项目,周边汇集了地铁四号线、六号线双地铁口,郎溪路、上海路、北京路等多条城市主干道,便捷的立体化交通,出行方便轻松,另外还有翡翠天际商业、星隆购物广场、华润万象汇等,商业资源齐全,项目附近还有多所学校,方便孩子上学,合肥市第三人民医院、市中医院,医疗资源齐全,看病无忧。
淝河板块作为合肥楼市热门片区,兼具地理位置、规划发展、大品牌房企、高端住宅产品汇集等诸多优势,吸引了来自各个区域的购房者,目前在售的新盘也比较多,但论交房时间,招商雍润府还是很有优势,预计今年年底交付,如果对交房时间有要求的网友,可重点关注下雍润府这个项目。
营销咨询号码:0551-68111601
招商雍润府尾盘少量房源在售,均价约1.9万-2.2万,具体一房一价,更多项目详情欢迎致电咨询。
声明:本文由入驻焦点开放平台的作者撰写,除焦点官方账号外,观点仅代表作者本人,不代表焦点立场。


