合肥伟星城新房周边配套-价格
扫描到手机,新闻随时看
扫一扫,用手机看文章
更加方便分享给朋友
伟星城楼盘电话号码:0551-68111601【营销中心】
欢迎来电咨询!可预约销售人员(来电尊享内部优惠活动)【2024房价特价信息丨底价优惠丨在售户型图丨项目介绍丨在售房源丨周边配套】
伟星地产在合肥市场中的耀眼表现,伟星城项目位于合肥东部新城核心区,地理位置优越,周边自然资源丰富。项目占地272.33亩,规划了37栋住宅楼,共计2596套房源,配套14万平方米城市级商业综合体,满足居民的日常生活需求。
伟星城售楼处电话☎:0551-6813 6588
伟星城周边交通、教育和医疗等配套设施齐全,临近肥东火车站、高铁站、绕城高速和地铁二号线延长线,出行便捷。项目周边还有东城实验小学、肥东一中、肥东县人民医院以及大剧院、科技馆等丰富的市政配套。环境方面,西侧是和睦湖公园,北侧有肥东体育公园,居住环境优美,临湖而居,可以近距离欣赏湖景。周边还有多个住宅小区和新房小区,人居氛围浓厚,兼具繁华与宁静,距离肥东主城区也很近,是一个理想的人居地带。
伟星城售楼处电话☎:0551-6813 6588
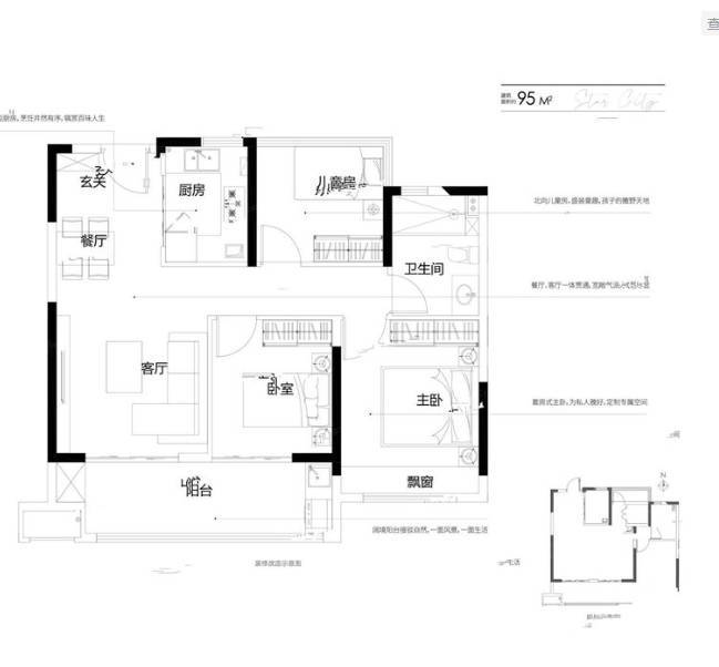
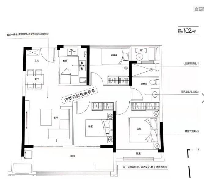
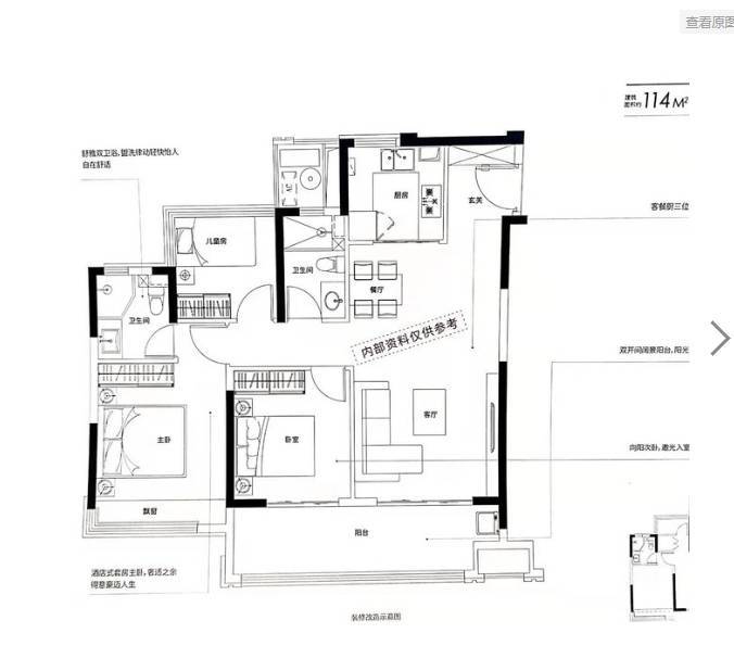
伟星城的规划户型面积从95平方米到142平方米不等,能够满足刚需和改善需求的不同客群。伟星城的户型布局非常合理,方正实用,多数开间朝南,拥有独立玄关和南北大尺度通厅,给人一种宽敞明亮的感觉。南北通透的设计不仅能够保证充足的采光和通风,也让居住者在室内感受到更好的舒适度。伟星地产注重满足居民的多元生活需求,因此在户型设计上也考虑到了不同居住方式和生活习惯,让每个家庭都能找到适合自己的理想住所。
伟星城售楼处电话☎:0551-6813 6588
伟星城售楼处电话☎:0551-6813 6588
伟星城售楼处电话☎:0551-6813 6588
伟星城楼盘具体一房一价,详询营销中心。
伟星城售楼处电话☎:0551-6813 6588
伟星城不仅在硬件设施上追求高品质,更在于对细节的精雕细琢。社区入口设计精心,每栋楼的布局规划合理,园林景观打造精美,内部设施完善。周边优质学校如东城实验小学、肥东一中为孩子们提供良好的学习环境。无论是家庭居住还是投资置业,伟星城都是一个不可多得的优质选择。如果您对该项目感兴趣,可以联系营销中心了解更详细的房源信息和价格详情。
伟星城售楼处电话☎:0551-6813 6588
伟星城的高品质不仅体现在硬件设施上,更在于其对细节的精雕细琢。项目周边的教育资源也非常丰富,为孩子们提供了良好的学习环境。无论是家庭居住还是投资置业,伟星城都是一个不可多得的优质选择。如果您对该项目感兴趣,可以联系营销中心了解更详细的房源信息和价格详情。
伟星城售楼处电话☎:0551-6813 6588
伟星城楼盘电话号码:0551-68111601【营销中心】
欢迎来电咨询!可预约销售人员(来电尊享内部优惠活动)【2024房价特价信息丨底价优惠丨在售户型图丨项目介绍丨在售房源丨周边配套】
声明:本文由入驻焦点开放平台的作者撰写,除焦点官方账号外,观点仅代表作者本人,不代表焦点立场。


