万科城改朗拾森屿户型,以空间的全面迭新,带来全新高品质人居体验
扫描到手机,新闻随时看
扫一扫,用手机看文章
更加方便分享给朋友
淝河板块万科城改朗拾森屿项目不错,值得买。项目为包河淝河板块的纯新盘,是万科在市区的首个满分竞品质的项目,同时也是万科在淝河的第三个项目,延续了热门红盘万科朗拾的高端品质基因,是万科拾系的迭新作品,以湄南河四季酒店为设计灵感,因地制宜打造出一个雅奢静谧的城市新地标,一个内外皆园,生态宜居的森屿之家。
营销咨询电话:0551-65566157
在今年上半年四月份的土拍中,合肥城改成功满分摇中包河BH202302号地块,地块居住单价2010万/亩,总价213703.2万元,楼面价13108.63元/平,溢价率14.86%,装修交付,为万科与城改联合开发打造,案名为万科城改朗拾森屿。
根据规划,万科城改朗拾森屿项目计划修建14栋小高,4栋高层,以及29.6亩的公园绿地,是纯人居的住宅。
万科城改朗拾森屿地处包河淝河板块,地理位置优越,临近郎溪路高架,北京路,东二环等城市主干道,交通发达,日常出行便捷,附近还有地铁四号线。项目周边还有多个大型购物中心,商圈成熟配套齐全,购物方便。教育资源上,朗拾森屿附近有淝河小学,屯溪路小学,合肥一中淝河校区,合肥四十八中等,教育资源优质且充足,孩子上学无忧。
医疗资源上,项目附近有合肥第三人民医院,儿童医院等,满足不同居民看病需求,为健康保驾护航。
另外万科城改朗拾森屿作为满分项目,人车分流、3.15米层高、绿建三星建材、高绿化率、精装修交付,各项建筑标准要求高,楼盘品质好。
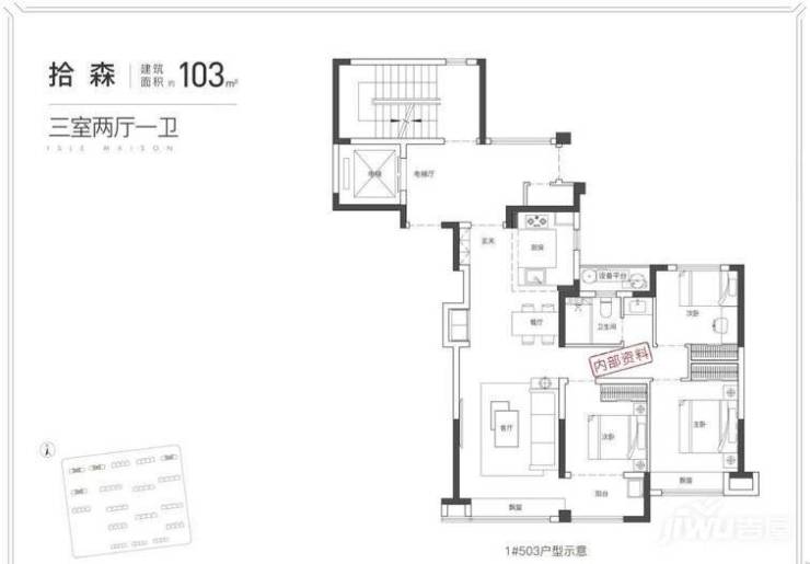
两大品牌房企匠心打造,满分竞品质,地处主城区范围内,地段成熟,生活配套齐全,另外还值得一说的是,户型建筑面积有103㎡、118㎡、129㎡、143㎡,与动辄130或140平米起步的大户型相比,充分考虑到了刚需群体的需求,真正做到了从客户需求考虑出发。
户型设计上,户型方正,空间利用率高,设有主卧套房自带飘窗、卫生间、衣帽间,全景落地玻璃的设计,动静分离,保障私密性,以空间的全面迭新,带来全新的高品质人居体验。
营销咨询电话:0551-65566157
万科朗拾·森屿预计户型面积103㎡、118㎡、129㎡、143㎡,即将推出,详情请致电营销中心。
声明:本文由入驻焦点开放平台的作者撰写,除焦点官方账号外,观点仅代表作者本人,不代表焦点立场。


