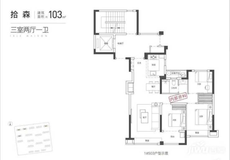
淝河板块万科城改朗拾森屿户型面积
扫描到手机,新闻随时看
扫一扫,用手机看文章
更加方便分享给朋友
淝河板块万科城改朗拾森屿均价24000元/㎡,户型面积103-143㎡,具体一房一价。
好的优质的楼盘,不怕没有热度,例如滨湖省府板块的龙湖青云阙,即便单价高,但仍然触发了摇号,近期瑶海新开的楼盘中国铁建花园天境,也成功触发了摇号。合肥楼市上,还有不少品质不错,未开先火的楼盘项目,例如淝河板块的万科城改朗拾森屿。
营销咨询电话:0551-65566157
朗拾森屿之所以热度会很高,一是淝河板块本身就是置业购房热度高的区域,诞生了不少热门红盘,例如信达观棠,万科朗拾,招商雍润府等,二是项目自身有不少突出亮点。开发商万科的品牌效应,并且还与国企城改合作,楼盘品质双重保障,置业更安心。朗拾森屿是万科旗下的“拾系”产品,前面已有万科朗拾热门红盘做铺垫,120满分竞品质的朗拾森屿自然备受期待,精装交房,地暖新风中央空调三大件配齐,居住环境不错。
再看位置与配套,万科城改朗拾森屿临近东二环,距离主城芯位置更近,并同时坐拥北京路与郎溪路两条城市主干道,距离地铁四号线尧渡河站仅500米,交通便捷,轻松畅达全城。
商业配套上,项目附近有翡翠天际co·life绚集、万象汇,加侨广场等繁华业态,满足饮食、娱乐、休闲、购物、消费等各类生活需求。
学区配套上,项目周边一公里范围内有高校、小学、幼儿园,以及合肥一中淝河校区,满足不同年龄段孩子的教育需求。
医疗资源上,朗拾森屿附近有三甲医院合肥第三人民医院新区,合肥中医院,以及满足日常基础所需的社区医院,多重医疗资源为健康护航。
自然环境上,朗拾森屿附近有森屿公园、淝河智慧中央公园、淝河生态公园,三大公园环绕,享受全天候生态自然氧吧,再配合社区内部42%超高绿地率,构成一个森林之家,公园式住宅。
营销咨询电话:0551-65566157
万科城改朗拾森屿规划18栋住宅,14栋小高层,4栋高层,首开房源是G1#、G2#、G10#楼,销售均价24998.76元/㎡,小高层户型面积130㎡、143㎡,大高层户型面积103㎡、118㎡,共计230套,2025年6月30日精装交付,触发摇号,热度还是很高的,有意向的网友可继续关注后续楼盘动态,本站也将持续关注,欢迎来电咨询。
声明:本文由入驻焦点开放平台的作者撰写,除焦点官方账号外,观点仅代表作者本人,不代表焦点立场。


