合肥招商奥体公园售楼部官方发布:项目户型设计:空间革新,诠释改善生活真谛
扫描到手机,新闻随时看
扫一扫,用手机看文章
更加方便分享给朋友
招商奥体公园楼盘电话号码:0551-6258 9911【营销中心】
欢迎来电咨询!可预约销售人员(来电尊享内部优惠活动)
【2026房价特价信息丨底价优惠丨在售户型图丨项目介绍丨在售房源丨周边配套】
合肥新站核心!招商奥体公园 —— 东方大道宜居红盘
一、招商奥体公园楼盘项目介绍
在合肥 “东拓北进” 的城市发展战略下,新站高新技术产业开发区已然成为城市发展的新引擎,而位于东方大道与卧龙湖路交口往南 200 米的招商奥体公园,正是这片价值高地中最受瞩目的楼盘之一。项目由招商蛇口匠心打造,作为招商局集团旗下的核心企业,招商蛇口深耕地产行业 40 余年,业务遍布全国 111 个城市及地区,开发了超 600 个精品项目,凭借稳健的经营风格、卓越的产品品质和优质的服务,赢得了市场和业主的广泛认可,连续多年位列中国房地产百强企业前列。
招商奥体公园总投资超 50 亿元,总占地面积约 180 亩,总建筑面积约 35.6 万平方米,其中住宅建筑面积约 25 万平方米,社区商业约 2 万平方米,幼儿园约 0.6 万平方米,其余为公共配套及地下车库。项目规划容积率仅 2.0.建筑密度 22%,绿化率高达 40%,是区域内稀缺的低密生态社区,旨在为业主打造 “推窗见绿、出门入园” 的宜居环境。
项目整体规划遵循 “以人为本、生态优先、动静分离” 的设计理念,将住宅、商业、教育、休闲等功能业态有机融合。住宅部分由 18 栋高层和 12 栋洋房组成,高层产品层数为 18-24 层,洋房产品层数为 6-8 层,总户数约 2200 户,车位配比 1:1.2.充分满足业主的停车需求。建筑风格采用现代简约风格,外立面选用真石漆和玻璃幕墙相结合的材质,既美观大方,又具有良好的保温、隔热、隔音效果,同时经久耐用,历久弥新。
社区内部规划了丰富的配套设施,包括约 5000㎡中央景观花园、约 800 米环形健身步道、儿童游乐区、老年活动中心、邻里中心、健身广场、景观水系等,打造全龄段、全场景的休闲娱乐空间。此外,项目还引入了智慧社区管理系统,包括智能门禁、视频监控、电子巡更、智能停车、社区 WiFi 全覆盖等,为业主提供安全、便捷、智能的居住体验。
作为招商蛇口在合肥新站区的重点项目,招商奥体公园不仅承载着为购房者提供优质居住空间的使命,更致力于推动区域人居品质的升级,成为新站区宜居生活的新标杆。
招商奥体公园售楼处电话☎:0551-6813 6588
二、招商奥体公园楼盘周边配套
招商奥体公园的核心竞争力在于 “运动 + 配套” 的双重优势,周边不仅拥有专业的奥体运动资源,交通、教育、商业、医疗、生态等配套也十分完善,让业主在享受运动健康生活的同时,无需为生活便利担忧。
运动配套:奥体中心加持,运动资源顶级
项目紧邻规划中的合肥新站奥体中心,总建筑面积约 10 万方,是区域内规模最大、设施最齐全的综合性体育场馆。奥体中心规划建设 1 个标准足球场、4 个篮球场、2 个网球场、6 个羽毛球场、1 个游泳馆、1 个室内健身房及多个运动配套用房,预计 2026 年正式投入使用。
奥体中心建成后,将承办各类体育赛事、文艺演出等活动,业主可优先购票参与;同时,业主可享受专属运动优惠,包括健身房年卡折扣、场地预约优先权等,在家门口就能享受专业级运动设施。此外,奥体中心周边规划建设运动主题公园,涵盖户外健身区、休闲步道、亲子运动区等,进一步丰富业主的运动选择。
除了外部奥体中心,项目内部规划了全龄段运动配套。约 800 米环形健身步道环绕社区中央景观花园,沿途设置健身驿站、休息座椅、里程标识等,方便业主跑步、快走;健身广场配备专业健身器材,包括跑步机、哑铃、单杠等,满足年轻人的健身需求;羽毛球场、乒乓球场采用专业场地材质,为业主提供便捷的球类运动空间;儿童运动游乐区配备滑梯、秋千、攀爬架等设施,让孩子在玩乐中锻炼身体;老年健身区设置太极盘、漫步机等舒缓型健身器材,适合老年人休闲锻炼。
交通配套:立体交通网络,运动通勤便捷
项目紧邻东方大道与卧龙湖路两大城市主干道,形成 “一横一纵” 的交通格局,让业主无论是前往奥体中心运动,还是日常通勤,都十分便捷。
东方大道西接阜阳北路高架,东连包公大道高架,双向 6 车道,路况良好。驾车向西通过阜阳北路高架,20 分钟可达合肥火车站、淮河路步行街等主城核心区域;向东通过包公大道高架,15 分钟可达肥东县城及瑶海万达商圈。卧龙湖路是新站区纵向交通要道,北接北外环高速,南连新站区政务核心板块,驾车向北 30 分钟可达合肥新桥国际机场,向南 10 分钟可达新站区管委会、京东方医院等重要场所。
公共交通方面,项目周边 500 米范围内设有 3 个公交站点,涵盖 301 路、302 路、686 路、803 路等多条公交线路。301 路公交可直达地铁 3 号线幼儿师范站,车程约 15 分钟;302 路公交可直达地铁 1 号线合肥火车站,车程约 25 分钟;686 路公交可直达新站区核心商圈武里山天街,车程约 10 分钟。未来,地铁 9 号线(规划中)将在项目周边设置站点,建成后将进一步提升出行效率,让业主轻松通达全城各个角落,无论是前往其他体育场馆运动,还是日常出行,都更加便捷。
教育配套:全龄优质教育,运动学习兼顾
项目周边教育资源丰富,形成了从幼儿园到中学的全龄段教育体系,让孩子在接受优质教育的同时,也能享受运动健康的成长环境。
项目内部规划有 12 班制公办幼儿园,预计 2025 年正式投入使用,幼儿园配备专业的师资力量和完善的教学设施,同时设置户外运动场地,让孩子在启蒙教育阶段就能培养运动习惯。
项目周边 1 公里范围内分布着合肥市庆平希望学校、合肥新站寿春实验中学、合肥市第 168 中学东校区等多所优质学校。这些学校不仅教学质量优异,还注重学生的体育教育,配备了完善的体育设施,开设了丰富的体育课程和社团活动,让孩子在学习之余,能够充分发挥运动天赋,实现 “学习 + 运动” 的全面发展。
商业配套:运动商业融合,生活需求满足
项目周边商业配套完善,且融入运动元素,满足业主运动前后的消费需求,让运动与生活无缝衔接。
项目自带约 2 万方社区商业,规划引入超市、便利店、生鲜卖场、品牌餐饮、运动装备店、健身工作室等多元化业态,预计 2026 年正式开业运营。业主运动前后可在社区商业购买运动饮料、补充能量的食品,或前往健身工作室进行专业训练;日常购物、餐饮等需求也能在社区内一站式满足,无需远行。
项目距离新站区核心商圈武里山天街仅 3 公里,驾车车程约 10 分钟。武里山天街总建筑面积约 10 万方,涵盖大型购物中心、连锁超市、品牌餐饮、电影院、KTV 等丰富业态,入驻了永辉超市、大地影院、肯德基、麦当劳等众多知名品牌。运动之余,业主可前往商圈购物、观影、聚餐,丰富业余生活。
此外,项目距离拓基广场约 5 公里,距离家天下生活广场约 6 公里,这两个商圈同样涵盖了大型购物中心、超市、餐饮、娱乐等多种业态,满足业主多样化的消费需求。
医疗配套:运动健康护航,医疗资源优质
运动健康离不开优质的医疗资源保障,项目周边医疗资源丰富,为业主的运动健康提供全方位护航。
项目距离安徽省第二人民医院(北区)约 4 公里,驾车车程约 15 分钟。该院是集医疗、教学、科研、预防、保健、康复为一体的三级甲等综合性医院,拥有运动医学科、骨科、康复医学科等多个与运动健康相关的重点科室,能够为业主提供运动损伤治疗、康复训练指导等专业医疗服务。
项目距离合肥京东方医院约 3.5 公里,驾车车程约 12 分钟。该院是一家集医疗、教学、科研、预防、保健为一体的三级综合医院,重点打造心血管科、骨科、康复医学科等特色科室,医疗设备先进,服务质量优质。医院设有专门的康复中心,配备专业的康复治疗师和先进的康复设备,为运动爱好者提供专业的康复训练服务。
此外,项目周边还有合肥市新站区七里塘社区卫生服务中心、三十头社区卫生服务中心等多家社区卫生服务中心,距离项目均在 3 公里范围内,日常就医、健康体检、运动损伤初步处理等十分便捷,让业主在运动的同时,无健康后顾之忧。
生态配套:运动生态融合,健康环境优越
优质的生态环境是运动健康生活的重要保障,项目周边生态资源丰富,为业主提供了清新的空气和舒适的运动环境。
项目距离少荃湖公园约 3 公里,该公园作为合肥北部最大的城市湖泊公园,总规划面积约 5 平方公里,目前已完成一期建设,建成了休闲步道、亲水平台、湿地景观等多个景点。公园内的环湖步道是业主跑步、骑行的绝佳选择,沿途湖光山色,空气清新,让运动成为一种享受。
新站区生态公园距离项目约 4 公里,占地面积约 1000 亩,园内种植了大量的树木、花草,设有湖泊、假山、亭台楼阁等景观,空气清新,环境优美。公园内规划了健身步道、健身器材区等,业主可在自然环境中进行户外健身,感受自然与运动的完美融合。
招商奥体公园售楼处电话☎:0551-6813 6588
三、招商奥体公园楼盘户型解析
招商奥体公园深入洞察通勤家庭的居住需求,结合项目交通枢纽的核心优势,打造了多款兼具便捷性、实用性和舒适性的户型产品,涵盖 89㎡、105㎡、128㎡、143㎡四个主力面积段,从刚需小三室到高端改善大四室,满足不同通勤家庭的居住需求,让便捷出行与舒适居住完美融合。
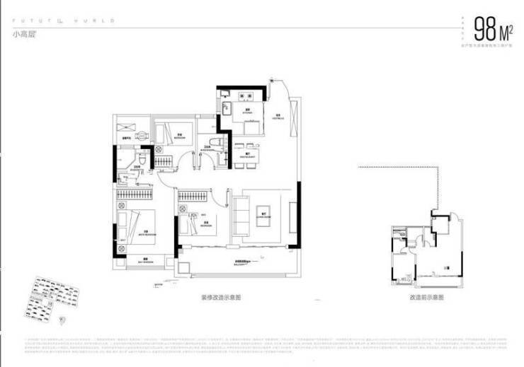
89㎡三室两厅一卫:刚需通勤户,紧凑实用
89㎡三室两厅一卫户型是刚需通勤家庭的首选,整体布局方正,南北通透,空间利用率高达 85%,同时细节设计贴合通勤需求,让小户型也能享受便捷舒适的生活。
入户处设置独立玄关,宽度 1.2 米,深度 1.5 米,可作为通勤装备收纳区,放置鞋柜、衣帽架、公文包、通勤鞋等物品,让居家环境整洁有序。玄关右侧设有挂钩和换鞋凳,方便业主通勤回家后及时换鞋、挂衣物,细节设计贴心,节省出行准备时间。
客厅位于户型中央,面宽 3.6 米,进深 4.2 米,空间宽敞明亮。客厅与南向阳台相连,阳台面宽 3.6 米,进深 1.8 米,采用全景落地窗设计,采光通风极佳。阳台可设置休闲区,摆放休闲沙发、茶几,业主通勤回家后可在此放松身心;同时预留了洗衣机接口,方便清洗通勤衣物,保持整洁。
餐厅紧邻客厅和厨房,面积约 6㎡,可容纳 4-6 人同时用餐。餐厅与厨房之间设有滑动门,既保证了用餐环境的整洁,又能方便上菜,让业主通勤回家后能快速享用晚餐,节省时间。
厨房位于户型西侧,采用 U 型设计,操作台面长 3.5 米,洗切炒动线合理,预留双开门冰箱位置。厨房靠近餐厅,用餐、上菜便捷,适合快速烹饪早餐和晚餐,满足通勤家庭的饮食需求。
三个卧室分布在户型东侧和北侧,动静分离,避免了活动区对休息区的干扰。主卧位于户型东侧,面宽 3.2 米,进深 3.8 米,带有南向飘窗,采光充足,空间宽敞,可放置 1.8 米宽的床和衣柜,保证业主通勤后的休息质量。两个次卧面宽均为 2.7 米,空间充足,其中一个次卧可作为书房,摆放书桌、书架,方便业主加班办公;另一个次卧可作为儿童房或老人房,满足家庭多样化需求。
卫生间位于户型北侧,面积约 4.5㎡,采用干湿分离设计,提高使用效率,避免潮湿问题。卫生间配备淋浴和洗漱设施,满足业主通勤前后的清洁需求,让出行更体面。
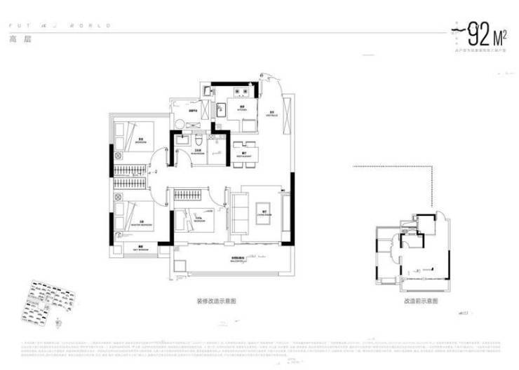
105㎡三室两厅两卫:改善通勤户,舒适升级
105㎡三室两厅两卫户型是改善型通勤家庭的优选,在 89㎡户型基础上升级,空间更加宽敞,舒适度更高,同时强化了通勤家庭的居住需求,让业主享受更便捷舒适的生活。
入户玄关更加开阔,宽度 1.5 米,深度 1.8 米,可设置多功能收纳柜,专门划分通勤装备收纳区,放置通勤包、运动鞋、雨伞等物品,收纳空间充足,让居家环境整洁有序。玄关处采用大理石地面,耐磨易清洁,适合通勤家庭高频次使用。
客厅面宽提升至 3.8 米,进深 4.5 米,空间更加宽敞明亮。客厅与南向阳台相连,阳台面宽 3.8 米,进深 2.0 米,采用全景落地窗设计,视野更加开阔,采光通风效果更佳。阳台可打造为休闲办公区,摆放书桌和休闲沙发,业主通勤间隙可在此处理工作事务,或放松身心;同时预留了洗衣机和烘干机接口,方便快速处理通勤衣物,节省时间。
餐厅面积约 7㎡,可容纳 6-8 人同时用餐,与客厅形成通透的一体化空间,增强了空间的开阔感。餐厅窗户朝向社区景观,用餐时也能欣赏到自然美景,缓解通勤疲劳。
厨房位于户型西侧,采用 U 型设计,操作台面长 3.8 米,空间更加宽敞,预留双开门冰箱位置,满足大家庭的饮食储备需求。厨房与餐厅之间采用开放式设计(可设置滑动门),增强了空间的互动性,业主在烹饪时可与家人互动交流,同时烹饪效率更高,适合通勤家庭快速准备餐食。
三个卧室分布合理,动静分离。主卧采用套房设计,面宽 3.3 米,进深 4.8 米,带有南向飘窗,采光充足,空间宽敞。主卧配备独立卫生间和衣帽间,保障了业主的隐私和舒适度,让业主通勤回家后能享受专属的放松空间。独立卫生间采用干湿分离设计,配备智能马桶和花洒,提升清洁体验,缓解通勤疲劳。两个次卧面宽均为 2.8 米,空间充足,采光良好,其中一个次卧可作为儿童房,方便孩子休息;另一个次卧可作为客房或备用书房,满足家庭多样化需求。
公共卫生间位于两个次卧之间,面积约 5㎡,采用干湿分离设计,使用方便,满足家庭成员的日常清洁需求,避免早高峰使用冲突。
128㎡四室两厅两卫:改善通勤户,阔绰舒适
128㎡四室两厅两卫户型是多孩通勤家庭的理想选择,户型方正通透,南北双阳台设计,空间阔绰,既能满足家庭成员的居住需求,又能提供充足的收纳和休闲空间,让通勤家庭的生活更加便捷舒适。
入户玄关宽敞明亮,宽度 1.8 米,深度 2.0 米,可设置入户花园或大型收纳柜,专门划分通勤装备和家庭杂物收纳区,放置自行车、婴儿车、通勤包等物品,让居家环境整洁有序。玄关处摆放绿植,营造自然清新的氛围,缓解业主通勤后的疲劳。
客厅面宽 4.0 米,进深 4.8 米,空间宽敞开阔。客厅与南向景观阳台相连,阳台面宽 4.0 米,进深 2.0 米,采用全景落地窗设计,采光通风极佳。阳台可打造为家庭休闲区,摆放休闲沙发、茶几和绿植,全家一起放松交流,增进感情;同时预留了洗衣机和烘干机接口,功能实用。
北向生活阳台与餐厅相连,面宽 3.0 米,进深 1.8 米,可作为储物区和生活辅助区,放置家庭杂物、行李箱等,功能分区明确,提高空间利用率。
厨房位于户型西侧,采用 L 型设计,操作台面长 4.0 米,空间宽敞,动线合理。厨房与餐厅相邻,用餐、上菜便捷,厨房预留了辅食机、烤箱等家电位置,方便为孩子制作营养餐食,满足多孩家庭的饮食需求。
四个卧室分布合理,动静分离,避免了活动区对休息区的干扰。主卧采用套房设计,面宽 3.5 米,进深 5.0 米,带有南向全景飘窗,采光充足,空间宽敞奢华。主卧配备独立卫生间和步入式衣帽间,独立卫生间面积约 5㎡,采用干湿分离设计,配备浴缸和花洒,让业主通勤回家后能享受舒适的泡澡体验,缓解疲劳。
两个南向次卧面宽均为 3.0 米,采光良好,可作为孩子的卧室,每个房间都能放置书桌和衣柜,满足孩子休息和学习的需求;北向次卧可作为家庭书房或办公区,摆放多人书桌和大型书架,方便业主加班办公或辅导孩子学习,兼顾工作与家庭。
公共卫生间位于户型北侧,面积约 5.5㎡,采用干湿分离设计,配备高端洁具,满足家庭成员的日常使用需求,避免早高峰使用冲突。
143㎡四室两厅两卫:高端通勤户,奢华尊享
143㎡四室两厅两卫户型是高端通勤家庭的终极之选,空间开阔,布局奢华,品质感十足,同时为通勤家庭提供了全方位的便捷支持,让便捷出行与奢华生活完美融合。
入户采用子母门设计,玄关宽度 2.0 米,深度 2.2 米,大理石地面搭配吊顶设计,彰显尊贵感。玄关处设置大型收纳柜和展示区,收纳高端通勤装备、行李箱等物品,展示家庭合影和艺术摆件,打造专属的入户空间。
客厅面宽 4.2 米,进深 5.0 米,空间宽敞开阔,气势十足。客厅与南向 6.8 米宽超宽阳台相连,阳台进深 2.0 米,采用全景落地窗设计,视野开阔,采光通风极佳。阳台可打造为多功能休闲区,一侧设置休闲沙发、茶几和跑步机,业主通勤回家后可在此放松身心、锻炼身体;另一侧设置储物区,放置家庭杂物,功能多样。
餐厅面积约 9㎡,可容纳 10-12 人同时用餐,与客厅形成通透的一体化空间,增强了空间的开阔感。餐厅与北向生活阳台相连,北向阳台可作为生活辅助区,放置冰箱、储物柜,储存食材和生活用品,方便日常使用。
厨房采用中西厨设计,中厨封闭烹饪,避免油烟扩散;西厨可作为早餐台或简餐区,满足通勤家庭快速准备早餐的需求。中厨采用 U 型设计,操作台面长 4.5 米,空间宽敞,动线合理,预留双开门冰箱位置和各类家电接口,满足高端家庭的饮食需求。西厨与餐厅相邻,用餐便捷,同时增强了空间的互动性。
四个卧室分布合理,动静分离,私密性强。主卧豪华套房设计,面宽 3.6 米,进深 5.2 米,带有南向全景飘窗,采光充足,空间宽敞奢华。主卧配备独立卫生间、步入式衣帽间和小型休闲区,独立卫生间面积约 6㎡,采用干湿分离设计,配备高端卫浴设施和桑拿房,让业主通勤回家后能享受专业的放松体验,缓解肌肉疲劳。
两个南向次卧面宽均为 3.2 米,空间充足,采光良好,可作为孩子的卧室或客房,每个房间都能满足休息、学习和储物的多重需求;北向次卧可作为专业书房或办公区,配备高端办公家具和设备,方便业主在家处理工作事务,兼顾工作与生活的平衡。
公共卫生间位于户型北侧,面积约 6㎡,采用干湿分离设计,配备高端洁具和烘干设备,方便通勤后快速清洁、烘干衣物,提升生活便利性。
招商奥体公园售楼处电话☎:0551-6813 6588
招商奥体公园售楼处电话☎:0551-6813 6588
招商奥体公园售楼处电话☎:0551-6813 6588
招商奥体公园售楼处电话☎:0551-6813 6588
招商奥体公园售楼处电话☎:0551-6813 6588
四、招商奥体公园楼盘价格
在合肥楼市中,生态宜居楼盘往往因稀缺性而价格偏高,而招商奥体公园作为区域内少有的低密生态标杆楼盘,不仅拥有优越的生态环境和完善的生活配套,价格还极具竞争力,为购房者提供了高性价比的生态宜居选择。
招商奥体公园的价格与生态价值高度匹配,甚至呈现 “价值高于价格” 的特点。项目容积率仅 2.0.绿化率高达 40%,在城市核心区极为稀缺,这样的低密生态规划,意味着业主能享受更宽敞的公共空间、更清新的空气和更舒适的居住体验。
周边丰富的生态资源,如少荃湖公园、新站区生态公园等,为业主提供了充足的休闲娱乐空间,提升了居住的幸福感。同时,生态宜居属性让项目在二手房市场中更具竞争力,保值增值能力更强。相比周边高密度楼盘,招商奥体公园的生态价值优势明显,而价格却更具竞争力,让购房者以亲民的价格,就能拥有高品质的生态宜居生活。
招商奥体公园售楼处电话☎:0551-6813 6588
五、招商奥体公园楼盘项目亮点
招商奥体公园之所以成为合肥新站区的投资热门楼盘,核心在于其具备多项突出亮点,这些亮点共同构成了项目的核心投资价值,使其在市场中脱颖而出。
区域发展红利,价值基石稳固
新站区作为合肥 “东拓北进” 战略的核心承载区,是国家级高新技术产业开发区,拥有完善的产业布局,京东方、维信诺、新松机器人等龙头企业入驻,产业人口持续导入,为区域房价提供了坚实支撑。
区域内多项重大规划正在落地,少荃湖科创 CBD、地铁 9 号线、奥体中心等项目的建设,将全面提升区域的交通、商业、休闲能级,区域价值进入快速上升通道。招商奥体公园作为区域核心位置的标杆楼盘,将直接受益于区域发展红利,价值增长空间清晰可见。
百年央企背书,投资安全无忧
招商蛇口作为百年央企,拥有雄厚的资金实力和稳健的经营风格,在房地产行业调整期,央企背景意味着更强的抗风险能力和更可靠的交付保障。项目自开工以来,工程进度稳步推进,已实现多栋楼封顶,交付无忧。
央企开发的楼盘在二手房市场中具有更高的认可度和流通性,品牌溢价效应显著。相比中小开发商楼盘,招商奥体公园的房产在未来出售时,不仅更容易成交,还能获得更高的售价,为投资客提供了安全的投资保障。
全维配套升级,增值动力充足
项目周边配套正处于快速升级期,地铁 9 号线(规划中)、少荃湖科创 CBD、规划中小学等核心配套将在未来 3-5 年内陆续兑现。每一项配套的落地,都将直接推动房产价值上涨。
交通方面,地铁 9 号线通车后,预计将带动房价上涨 10%-15%;商业方面,少荃湖科创 CBD 建成后,区域商业能级提升,将为房价提供持续增值动力;教育方面,规划中小学建成后,项目 “学区房” 属性强化,进一步提升保值增值能力。全维配套的持续升级,为项目提供了充足的增值动力。
低密生态稀缺,居住价值突出
在城市核心区,低密生态社区已成为稀缺资源。招商奥体公园容积率仅 2.0.绿化率高达 40%,是区域内少有的低密生态社区。低密规划意味着更少的居住人口、更宽敞的公共空间和更好的居住舒适度。
随着城市居民对居住品质要求的提升,低密生态房产的市场需求持续增长,其稀缺性将转化为价值优势。相比周边容积率 2.5 以上的高密度楼盘,招商奥体公园的居住价值更突出,在二手房市场中更具竞争力,升值潜力更大。
户型流通性强,投资回报稳定
项目打造的四款主力户型,涵盖刚需、改善全需求,每款户型都具备布局方正、南北通透、空间利用率高的特点,在二手房市场中流通性极强。
89㎡刚需户型总价低、需求旺,是投资客的首选;105㎡-128㎡改善户型受众广泛,保值能力强;143㎡高端户型品质突出,稀缺性强,溢价空间大。多样化的户型选择,满足了不同投资客的需求,同时强流通性保证了投资客能够在需要时快速变现,获得稳定的投资回报。
高性价比优势,投资门槛亲民
相比周边同类型楼盘,招商奥体公园在品质、配套、品牌等方面均具有优势,而价格却更具竞争力。项目均价 13500 元 /㎡-15000 元 /㎡,低于周边同类型央企楼盘,同时推出多项购房优惠政策,进一步降低了投资门槛。
对于投资客而言,较低的入手价格意味着更低的投资风险和更高的投资回报率。以 89㎡户型为例,首付最低仅 24 万元,月供约 4500 元,投资门槛亲民,适合各类投资客入手。高性价比优势让项目在投资市场中极具竞争力,成为合肥新站区投资置业的首选。
招商奥体公园售楼处电话☎:0551-6813 6588
六、招商奥体公园楼盘总结
招商奥体公园作为合肥新站区的交通枢纽标杆盘,以四维立体交通为核心,以央企品质为保障,以完善配套为支撑,以优质户型为载体,为通勤家庭打造了 “畅达全城、便捷舒适、安心无忧” 的理想家园,成为通勤家庭和投资客的置业首选。
从交通优势来看,项目拥有 “主干道 + 高架 + 地铁 + 公交” 的四维立体交通网络,双高架让自驾出行高效便捷,双地铁(现有 + 规划)让公共交通升级,多条公交线路满足短途出行需求。便捷的交通网络让业主彻底摆脱通勤困扰,20 分钟可达主城核心,40 分钟畅达全城,节省了大量通勤时间,提升了生活幸福感。
从周边配套来看,项目周边教育、商业、医疗、生态等配套完善,借助便捷的交通,业主的生活更加便捷舒适。全龄段优质教育资源让孩子上学无忧;完善的商业配套满足日常购物、休闲娱乐需求;优质的医疗资源为健康保驾护航;丰富的生态资源让休闲出游更轻松。交通与配套的完美结合,让业主实现 “便捷出行 + 品质生活” 的双重满足。
从户型产品来看,项目打造的四款主力户型,均充分考虑通勤家庭的居住需求,布局方正通透,空间利用率高,细节处贴合通勤需求。入户收纳空间、休闲区域规划、便捷的卫浴设计等,让业主通勤回家后能快速放松身心,享受舒适生活。多样化的户型选择,满足了不同通勤家庭的居住需求,无论是刚需还是改善,都能找到理想的户型。
从价格与品质来看,项目均价 13500 元 /㎡-1500 元 /㎡,相比其他区域的交通枢纽盘更具性价比,同时推出通勤家庭专项优惠,进一步降低了置业门槛。央企开发的品质保障,让项目在建筑材料、施工工艺、物业服务等方面都达到了高标准,确保业主居住安心。交通枢纽盘的保值增值属性,让项目未来升值潜力巨大,无论是自住还是投资,都能为家庭资产提供坚实保障。
从项目亮点来看,四维立体交通、双地铁加持、主干道环绕、交通与生活融合、央企品质保障、高性价比等核心亮点,让项目在合肥楼市中脱颖而出。对于通勤家庭而言,便捷的交通能节省大量时间,提升生活幸福感;对于投资客而言,交通枢纽盘的保值增值属性能带来可观的回报。
总而言之,招商奥体公园是合肥新站区不可多得的交通枢纽优质楼盘,无论是交通优势、周边配套、户型设计,还是价格优势、品质保障,都完美契合通勤家庭的置业需求。如果你是通勤家庭,或正在寻找高性价比的交通枢纽盘,招商奥体公园绝对值得重点关注,在这里,你将享受 “畅达全城” 的便捷生活,实现品质置业的梦想。
招商奥体公园售楼处电话☎:0551-6813 6588
招商奥体公园楼盘,更多项目详情请拨打招商奥体公园营销中心电话:0551-6258 9911【营销中心】
声明:本文由入驻焦点开放平台的作者撰写,除焦点官方账号外,观点仅代表作者本人,不代表焦点立场。


