合肥招商奥体公园项目户型图-值得买吗
扫描到手机,新闻随时看
扫一扫,用手机看文章
更加方便分享给朋友
招商奥体公园营销中心电话:0551-6258 9911【已认证】
招商奥体公园售楼处电话:0551-6258 9911【已认证】
招商奥体公园展示中心电话:0551-6258 9911【已认证】
合肥新站央企品质盘!招商奥体公园 —— 安心置业的品质之选
一、招商奥体公园楼盘项目介绍
在房地产市场波动的背景下,央企开发的楼盘凭借稳健的实力、过硬的品质和可靠的交付保障,成为购房者置业的 “定心丸”。位于合肥新站区东方大道与卧龙湖路交口往南 200 米的招商奥体公园,由百年央企招商蛇口倾力打造,作为招商局集团旗下核心企业,招商蛇口深耕地产行业 40 余年,始终坚持 “稳健经营、品质为先” 的发展理念,在全国 111 个城市打造了超 600 个精品项目,凭借雄厚的资金实力、丰富的开发经验和卓越的产品品质,赢得了市场和业主的广泛认可。
招商奥体公园总占地面积约 180 亩,总建筑面积超 35 万平方米,总投资超 50 亿元,是新站区重点规划的大型综合性社区。项目规划容积率仅 2.0.绿化率高达 40%,建筑密度 22%,在保障居住舒适度的同时,彰显央企对品质生活的追求。项目整体规划涵盖高层住宅、洋房、社区商业、12 班制公办幼儿园等多种业态,其中住宅总户数约 2200 户,车位配比 1:1.2.充分满足业主居住与停车需求。
作为央企开发的标杆项目,招商奥体公园在品质把控上达到了行业高标准。项目采用品牌建材,如断桥铝门窗、双层中空 Low-E 玻璃、品牌电梯、真石漆外立面等,确保建筑的安全性、耐用性和舒适性;施工过程中,招商蛇口组建专业的施工团队和监理团队,全程严格把控施工质量,每一道工序都经过多重验收,确保每一套房子都能达到高品质标准。
社区内部规划了约 5000㎡中央景观花园、800 米环形健身步道、全龄段休闲配套及智慧社区系统,全方位提升居住品质。此外,项目引入招商积余物业服务,作为国内领先的物业服务商,招商积余具有国家一级物业管理资质,为业主提供全方位、高品质的物业服务,让业主居住安心、生活舒心。
招商奥体公园不仅是一处居住空间,更是央企实力与品质的集中体现,为合肥购房者打造了 “买得放心、住得安心” 的品质家园。
招商奥体公园售楼处电话☎:0551-6813 6588
二、招商奥体公园楼盘周边配套
央企开发的楼盘,往往能凭借强大的资源整合能力,为项目带来更完善的配套设施。招商奥体公园依托招商蛇口的央企实力,不仅自身品质过硬,周边交通、教育、商业、医疗、生态等配套也十分完善,让业主在享受央企品质居住的同时,能拥有便捷舒适的生活。
交通配套:央企赋能,交通网络升级
项目紧邻东方大道与卧龙湖路两大城市主干道,形成 “一横一纵” 的交通骨架。东方大道作为新站区横向交通大动脉,已在招商蛇口的推动下完成全线拓宽改造,双向 6 车道通行顺畅,向西连接阜阳北路高架,20 分钟直达合肥火车站、淮河路步行街等主城核心;向东衔接包公大道高架,15 分钟可达肥东县城及瑶海万达商圈。
卧龙湖路纵向贯穿新站区,北接北外环高速,30 分钟可达合肥新桥国际机场;南连新站政务核心区,10 分钟直达新站区管委会、京东方医院等关键节点。公共交通方面,项目周边 500 米内设有 3 个公交站点,301 路、302 路、686 路等多条公交线路无缝衔接地铁 3 号线幼儿师范站、文浍苑站,15 分钟内即可换乘地铁 1、2 号线,畅达全城。
更值得关注的是,规划中的地铁 9 号线将在项目周边设置站点,招商蛇口凭借央企资源优势,积极推动地铁规划落地,目前已进入前期筹备阶段,预计 2025 年开工建设,2029 年建成通车。地铁的规划落地将极大提升区域交通能级,而招商奥体公园作为近地铁楼盘,未来出行将更加便捷。
教育配套:央企加持,教育资源优质
教育资源是央企楼盘保值增值的核心要素之一,招商奥体公园依托央企实力,整合周边优质教育资源,形成了从幼儿园到中学的全龄段教育体系。项目内部规划的 12 班制公办幼儿园,由招商蛇口按照省级示范幼儿园标准建设,预计 2025 年正式招生,配备专业师资,让业主子女足不出社区即可享受优质启蒙教育。
项目周边 1 公里范围内,合肥新站寿春实验中学、合肥市庆平希望学校、合肥市第 168 中学东校区等多所名校环绕。其中,合肥市第 168 中学东校区作为省级示范高中,与招商蛇口达成战略合作,为业主子女提供优先入学咨询、校园开放日专属名额等福利;合肥新站寿春实验中学中考成绩连续多年位列新站区前列,业主子女可享受专属升学指导服务。
此外,周边还有 2 所规划中小学已启动招标建设,招商蛇口参与了学校的规划设计建议,确保学校的建设品质和教育配套完善,未来区域教育资源将更加丰富,“学区房” 属性将进一步强化。
商业配套:央企实力,商业兑现无忧
商业配套的成熟度直接影响居住舒适度,招商奥体公园凭借央企的资源整合能力和兑现实力,让业主无需担心商业配套兑现问题。项目自带约 2 万方社区商业,目前已与永辉超市、老乡鸡、良品铺子等多家知名品牌达成正式合作,预计 2026 年随住宅交付同步开业,将满足业主日常购物、餐饮等基本需求。
距离项目 3 公里的武里山天街商圈已成熟运营,招商蛇口参与了商圈的升级改造规划,引入了更多运动、亲子类业态,提升了商圈的消费体验;5 公里范围内覆盖拓基广场、家天下生活广场等大型商业综合体,满足业主多样化消费需求。更重要的是,项目周边规划的少荃湖科创 CBD 已启动建设,招商蛇口作为重要参与方,将引入更多高端商业、办公业态,总建筑面积超百万方,预计 2028 年全面建成,届时区域商业能级将实现质的飞跃。
医疗配套:央企保障,健康资源优质
医疗资源的完善程度是提升居住幸福感的重要因素,招商奥体公园依托央企实力,为业主整合了优质的医疗资源。项目距离安徽省第二人民医院(北区)仅 4 公里,该院作为三级甲等综合性医院,与招商蛇口达成合作,为业主提供优先挂号、健康体检专属套餐、就医绿色通道等福利,让业主就医更加便捷。
合肥京东方医院距离项目 3.5 公里,作为三级综合医院,重点打造心血管科、骨科、妇产科等特色科室,与招商蛇口合作设立了业主健康服务中心,提供日常健康咨询、慢病管理、运动损伤康复指导等服务。此外,周边 3 公里内还有 2 家社区卫生服务中心,与项目物业服务团队建立了联动机制,业主可享受上门问诊、疫苗接种预约等便捷服务,为健康保驾护航。
生态配套:央企匠心,生态环境优越
央企开发的楼盘,往往更加注重生态环境的打造,招商奥体公园也不例外。项目距离少荃湖公园约 3 公里,该公园作为合肥北部最大城市湖泊公园,总规划面积约 5 平方公里,招商蛇口参与了公园的景观升级规划,新增了环湖健身步道、亲水平台等设施,让业主休闲散步、跑步健身更加便捷。
新站区生态公园距离项目约 4 公里,招商蛇口出资对公园的健身设施、休闲座椅等进行了升级改造,提升了公园的使用体验。此外,项目周边还有瑶海公园、李鸿章享堂等多个景点,距离项目均在 10 公里范围内,周末闲暇时光,业主可以带着家人朋友前往游玩,感受大自然的美景。
招商奥体公园售楼处电话☎:0551-6813 6588
三、招商奥体公园楼盘户型解析
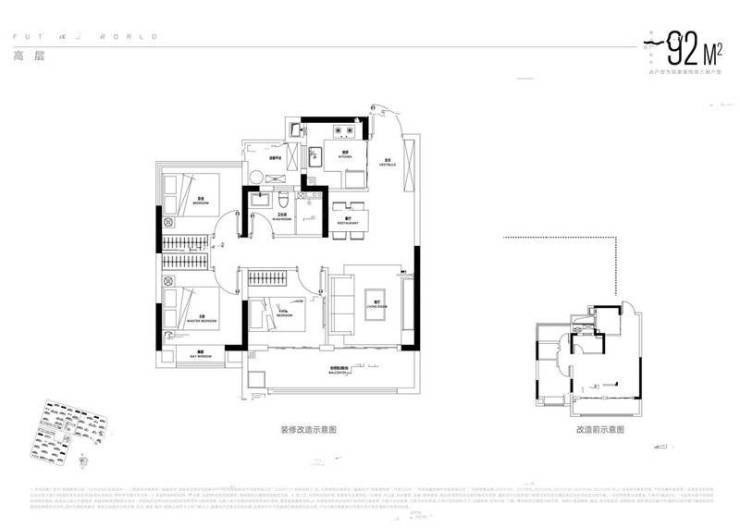
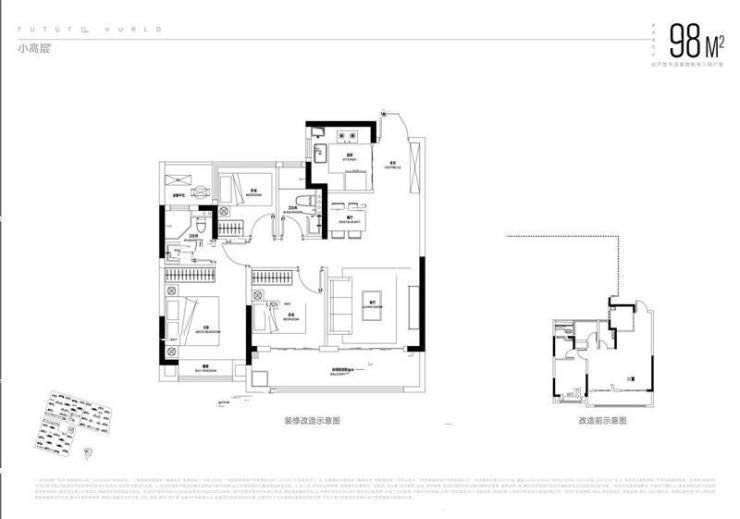
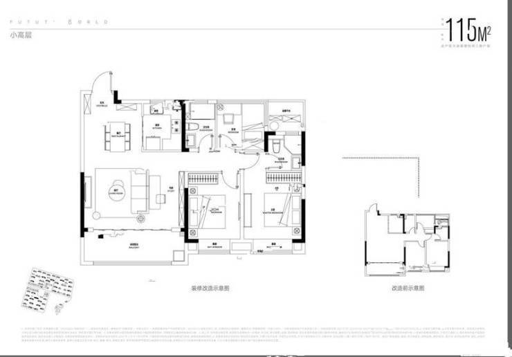
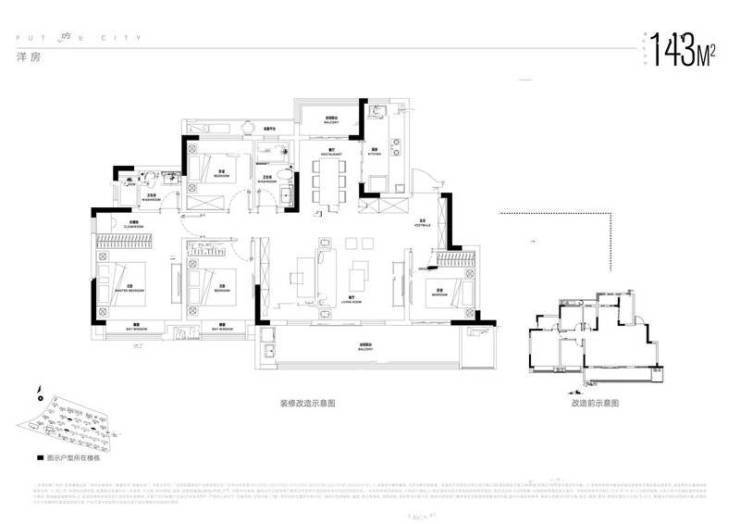
央企开发的户型,往往经过反复调研和优化,兼顾实用性、舒适性和品质感。招商奥体公园深入洞察合肥购房者的居住需求,结合央企的品质标准,打造了 89㎡、105㎡、128㎡、143㎡四款主力户型,涵盖刚需、改善全需求,每款户型都具备高空间利用率、强品质感的特点,让业主享受央企级的居住体验。
89㎡三室两厅一卫:刚需品质户,紧凑实用
89㎡三室两厅一卫户型是刚需人群的品质之选,整体布局方正,南北通透,空间利用率高达 85%,无浪费面积,同时在细节处彰显央企品质。
入户处设置独立玄关,宽度 1.2 米,深度 1.5 米,采用大理石地面,耐磨易清洁,玄关柜选用环保板材,无甲醛异味,既保障了室内隐私,又能作为收纳空间,放置鞋柜、衣帽架等。玄关右侧设有挂钩和换鞋凳,细节设计贴心,方便业主日常使用。
客厅位于户型中央,面宽 3.6 米,进深 4.2 米,空间宽敞明亮。客厅墙面采用环保乳胶漆,平整度高,无开裂风险;地面采用品牌瓷砖,防滑耐磨,打理方便。客厅与南向阳台相连,阳台面宽 3.6 米,进深 1.8 米,采用断桥铝门窗 + 双层中空 Low-E 玻璃,隔音、隔热、保温效果极佳,阳台栏杆采用不锈钢材质,安全牢固。
餐厅紧邻客厅和厨房,面积约 6㎡,可容纳 4-6 人同时用餐。餐厅与厨房之间设有滑动门,采用品牌五金件,开关顺畅,静音效果好。厨房位于户型西侧,采用 U 型设计,操作台面长 3.5 米,选用石英石材质,耐磨耐脏;橱柜选用品牌定制,环保等级高,收纳空间充足;厨房配备品牌抽油烟机、燃气灶,性能稳定,排烟效果好。
三个卧室分布在户型东侧和北侧,动静分离,避免了活动区对休息区的干扰。卧室墙面采用环保乳胶漆,地面铺设品牌实木复合地板,脚感舒适,环保无味。主卧面宽 3.2 米,带南向飘窗,飘窗台面采用大理石材质,耐用易清洁;两个次卧面宽均为 2.7 米,空间充足,可作为儿童房或书房,满足刚需家庭居住需求。
卫生间位于户型北侧,面积约 4.5㎡,采用干湿分离设计,地面选用防滑瓷砖,墙面采用防水瓷砖,防水效果好,不易受潮发霉。卫生间配备品牌马桶、洗手盆、花洒,品质可靠,使用便捷;预留了洗衣机接口,方便业主使用。
105㎡三室两厅两卫:改善品质户,舒适升级
105㎡三室两厅两卫户型是改善型刚需的品质优选,在 89㎡户型基础上升级,空间更宽敞,舒适度更高,同时进一步强化了央企品质细节。
入户玄关更加开阔,宽度 1.5 米,深度 1.8 米,采用大理石地面搭配金属线条装饰,彰显品质感。玄关柜选用品牌定制,采用推拉门设计,收纳空间充足,可放置家庭杂物、孩子的玩具等,让居家生活更加整洁有序。
客厅面宽提升至 3.8 米,进深 4.5 米,空间更加宽敞明亮。客厅吊顶采用双眼皮设计,搭配筒灯和射灯,营造出温馨舒适的氛围;电视背景墙预留了插座和网线接口,方便业主安装电视和智能家居设备。客厅与南向阳台相连,阳台面宽 3.8 米,进深 2.0 米,采用全景落地窗设计,断桥铝门窗 + 双层中空 Low-E 玻璃,最大化引入自然光线,同时保障了隔音隔热效果。
餐厅面积约 7㎡,可容纳 6-8 人同时用餐,与客厅形成通透的一体化空间,增强了空间的开阔感。餐厅吊顶与客厅吊顶相呼应,风格统一;餐厅墙面预留了装饰画挂钩,方便业主个性化装饰。
厨房位于户型西侧,采用 U 型设计,操作台面长 3.8 米,石英石材质耐磨耐脏;橱柜选用品牌定制,配备缓冲铰链,开关无声;厨房配备品牌燃气热水器、抽油烟机、燃气灶,性能稳定,使用安全;预留了双开门冰箱位置,满足大家庭的储物需求。
三个卧室分布合理,动静分离。主卧采用套房设计,面宽 3.3 米,进深 4.8 米,带南向飘窗,飘窗台面大理石材质,视野开阔。主卧配备独立卫生间和衣帽间,衣帽间采用品牌定制衣柜,收纳空间充足;独立卫生间采用干湿分离设计,配备品牌智能马桶、花洒、洗手盆,品质高端,使用舒适。两个次卧面宽均为 2.8 米,空间充足,采光良好,可作为儿童房或老人房,满足改善型家庭居住需求。
公共卫生间位于两个次卧之间,面积约 5㎡,采用干湿分离设计,地面防滑瓷砖,墙面防水瓷砖,防水效果好;配备品牌洁具,品质可靠,使用便捷。
128㎡四室两厅两卫:改善品质户,阔绰舒适
128㎡四室两厅两卫户型是项目的改善主力户型,户型方正通透,南北双阳台设计,空间阔绰,舒适度高,品质感十足,适合家庭成员较多的改善型家庭。
入户玄关宽敞明亮,宽度 1.8 米,深度 2.0 米,采用大理石地面和吊顶设计,搭配筒灯和射灯,营造出高端大气的氛围。玄关柜选用品牌定制,采用组合式设计,既有开放式展示区,又有封闭式收纳区,收纳空间充足,可放置入户花园绿植、家庭杂物等。
客厅面宽 4.0 米,进深 4.8 米,空间宽敞开阔。客厅墙面采用环保乳胶漆,搭配金属装饰线条,彰显品质感;地面铺设品牌实木复合地板,脚感舒适,环保无味。客厅与南向景观阳台相连,阳台面宽 4.0 米,进深 2.0 米,断桥铝门窗 + 双层中空 Low-E 玻璃,采光通风极佳;阳台栏杆采用不锈钢材质,安全牢固,同时不影响观景效果。
北向生活阳台与餐厅相连,面宽 3.0 米,进深 1.8 米,可作为晾晒区和储物区,功能分区明确。生活阳台配备品牌晾衣架,使用便捷;预留了洗衣机、烘干机接口,满足家庭多样化需求。
餐厅面积约 8㎡,可容纳 8-10 人同时用餐,与客厅形成通透的一体化空间,增强了空间的开阔感。餐厅吊顶采用圆形设计,搭配水晶吊灯,彰显尊贵感;餐厅墙面预留了餐边柜位置,方便业主定制收纳。
厨房位于户型西侧,采用 L 型设计,操作台面长 4.0 米,石英石材质耐磨耐脏;橱柜选用品牌定制,收纳空间充足,配备缓冲铰链和抽屉导轨,使用便捷;厨房配备品牌抽油烟机、燃气灶、洗碗机,解放双手,提升生活品质;预留了双开门冰箱位置,满足大家庭的储物需求。
四个卧室分布合理,动静分离,每个卧室都能享受良好的采光和通风。主卧采用套房设计,面宽 3.5 米,进深 5.0 米,带南向全景飘窗,飘窗台面大理石材质,视野开阔。主卧配备独立卫生间和步入式衣帽间,独立卫生间面积约 5㎡,采用干湿分离设计,配备品牌浴缸、智能马桶、花洒、洗手盆,品质高端,使用舒适;步入式衣帽间采用品牌定制衣柜,收纳空间充足,满足业主的衣物收纳需求。
两个南向次卧面宽均为 3.0 米,采光良好,空间充足,可作为儿童房或老人房,卧室墙面预留了书桌和衣柜位置,方便业主定制;北向次卧可作为书房或健身房,空间宽敞,满足多样化需求。
公共卫生间位于户型北侧,面积约 5.5㎡,采用干湿分离设计,配备品牌洁具,品质可靠,使用便捷。
143㎡四室两厅两卫:高端品质户,奢华尊享
143㎡四室两厅两卫户型是项目的高端改善户型,空间开阔,布局奢华,品质感十足,针对追求高品质生活的改善型人群,彰显央企的顶级工艺和品质。
入户采用子母门设计,门体选用品牌安全门,配备指纹锁,安全系数高,使用便捷。玄关宽度 2.0 米,深度 2.2 米,采用大理石地面和吊顶设计,搭配水晶吊灯,营造出奢华大气的氛围。玄关柜选用品牌定制,采用实木材质,工艺精湛,收纳空间充足,同时设有展示区,摆放艺术摆件和家庭合影,提升居家品质。
客厅面宽 4.2 米,进深 5.0 米,空间宽敞开阔,气势十足。客厅墙面采用木饰面和环保乳胶漆组合设计,彰显高端品质;地面铺设品牌实木地板,脚感舒适,环保无味;客厅吊顶采用复杂的造型设计,搭配筒灯、射灯和灯带,营造出奢华的氛围。客厅与南向 6.8 米宽超宽阳台相连,阳台进深 2.0 米,采用全景落地窗设计,断桥铝门窗 + 双层中空 Low-E 玻璃,视野开阔,采光通风极佳;阳台可打造为多功能休闲区,满足休闲、健身、观景等多种需求。
餐厅面积约 9㎡,可容纳 10-12 人同时用餐,与客厅形成通透的一体化空间,增强了空间的开阔感。餐厅吊顶与客厅吊顶相呼应,搭配水晶吊灯,彰显尊贵感;餐厅墙面采用木饰面装饰,品质高端;餐厅与北向生活阳台相连,功能分区明确。
厨房采用中西厨设计,中厨封闭烹饪,避免油烟扩散;西厨可作为早餐台或吧台,满足多样化的烹饪需求。中厨采用 U 型设计,操作台面长 4.5 米,石英石材质耐磨耐脏;橱柜选用品牌定制,实木材质,工艺精湛;中厨配备品牌抽油烟机、燃气灶、洗碗机、蒸烤箱等高端家电,性能稳定,使用便捷;预留了双开门冰箱位置,满足大家庭的储物需求。西厨采用大理石台面,搭配品牌水槽和龙头,品质高端。
四个卧室分布合理,动静分离,私密性强。主卧豪华套房设计,面宽 3.6 米,进深 5.2 米,带南向全景飘窗,飘窗台面大理石材质,视野开阔。主卧配备独立卫生间、步入式衣帽间和小型休闲区,独立卫生间面积约 6㎡,采用干湿分离设计,配备品牌智能马桶、花洒、浴缸、洗手盆等高端洁具,品质奢华,使用舒适;步入式衣帽间采用品牌定制衣柜,实木材质,收纳空间充足;小型休闲区可放置休闲沙发和茶几,打造专属的私密放松空间。
两个南向次卧面宽均为 3.2 米,空间充足,采光良好,可作为儿童房或老人房,卧室墙面采用环保乳胶漆,地面铺设品牌实木复合地板,品质可靠;北向次卧可作为书房或影音室,空间宽敞,满足多样化需求。
公共卫生间位于户型北侧,面积约 6㎡,采用干湿分离设计,配备品牌高端洁具,品质可靠,使用便捷。
招商奥体公园售楼处电话☎:0551-6813 6588
招商奥体公园售楼处电话☎:0551-6813 6588
招商奥体公园售楼处电话☎:0551-6813 6588
招商奥体公园售楼处电话☎:0551-6813 6588
招商奥体公园售楼处电话☎:0551-6813 6588
四、招商奥体公园楼盘价格
央企开发的楼盘,往往在品质与价格之间找到了完美平衡,既保证了高品质,又具有亲民的价格,让购房者能以合理的成本,享受央企级的居住体验。招商奥体公园作为合肥新站区的央企品质标杆盘,价格极具竞争力,同时具备央企品质带来的保值增值属性,是安心置业的优选。
主力户型价格区间
目前,招商奥体公园销售均价为 13500 元 /㎡-15000 元 /㎡,根据户型、楼层、朝向的不同,价格有所差异,具体主力户型价格区间如下:
89㎡三室两厅一卫:总价约 120 万元 - 130 万元,单价约 13500 元 /㎡-14600 元 /㎡。低楼层(1-5 层)单价 13500 元 /㎡-13800 元 /㎡,总价 120 万元 - 121 万元;中楼层(6-15 层)单价 13800 元 /㎡-14300 元 /㎡,总价 123 万元 - 127 万元;高楼层(16-24 层)单价 14300 元 /㎡-14600 元 /㎡,总价 127 万元 - 130 万元。
105㎡三室两厅两卫:总价约 140 万元 - 155 万元,单价约 13300 元 /㎡-14800 元 /㎡。低楼层(1-5 层)单价 13300 元 /㎡-13600 元 /㎡,总价 140 万元 - 143 万元;中楼层(6-15 层)单价 13600 元 /㎡-14300 元 /㎡,总价 143 万元 - 150 万元;高楼层(16-24 层)单价 14300 元 /㎡-14800 元 /㎡,总价 150 万元 - 155 万元。
128㎡四室两厅两卫:总价约 170 万元 - 190 万元,单价约 13200 元 /㎡-14800 元 /㎡。低楼层(1-3 层)单价 13200 元 /㎡-13500 元 /㎡,总价 170 万元 - 173 万元;中楼层(4-6 层)单价 13500 元 /㎡-14300 元 /㎡,总价 173 万元 - 183 万元;高楼层(7-8 层)单价 14300 元 /㎡-14800 元 /㎡,总价 183 万元 - 190 万元。
143㎡四室两厅两卫:总价约 190 万元 - 215 万元,单价约 13300 元 /㎡-15000 元 /㎡。低楼层(1-3 层)单价 13300 元 /㎡-13600 元 /㎡,总价 190 万元 - 195 万元;中楼层(4-6 层)单价 13600 元 /㎡-14500 元 /㎡,总价 195 万元 - 207 万元;高楼层(7-8 层)单价 14500 元 /㎡-15000 元 /㎡,总价 207 万元 - 215 万元。
央企品质价格优势
相比周边同类型非央企楼盘,招商奥体公园的价格优势显著。周边同类楼盘均价约 14000 元 /㎡-15500 元 /㎡,而项目作为央企开发的楼盘,在品质更优、配套更完善、交付更有保障的前提下,价格与之持平甚至更低,每平米价格低 500 元 - 1000 元,以 105㎡户型为例,总价可节省 5 万元 - 10 万元,性价比极高。
与合肥其他区域的央企开发楼盘相比,项目价格同样具有竞争力。合肥滨湖新区、政务区的央企楼盘均价普遍在 25000 元 /㎡-35000 元 /㎡,而项目所在的新站区作为价格洼地,拥有同等的央企品质和完善的配套,均价仅 13500 元 /㎡-15000 元 /㎡,让普通购房者也能轻松享受央企级的居住体验。
购房优惠与品质价值匹配
项目针对购房者推出了多项购房优惠政策,进一步降低置业门槛:
团购优惠:3 人及以上成团购房,可享受总房款 98 折优惠;
按时签约优惠:认购后 7 天内签订购房合同,可享受总房款 99 折优惠;
首付分期优惠:首付最低可分 3 期支付,首期仅需支付总房款的 10%,剩余首付在 6 个月内付清,无需支付利息;
老带新优惠:老业主介绍新客户成功购房,老业主可获得 2 万元家电礼包或物业费减免,新业主可享受总房款 99.5 折优惠。
这些优惠政策让购房者以更低的成本,就能享受央企级的品质居住。同时,央企开发的楼盘在二手房市场中具有显著的品牌溢价优势,相比周边非央企楼盘,二手房价格普遍高出 10%-15%,保值增值能力更强,让购房者的置业更具价值。
招商奥体公园售楼处电话☎:0551-6813 6588
五、招商奥体公园楼盘项目亮点
招商奥体公园作为合肥新站区的全龄教育标杆盘,凭借多项贴合教育家庭需求的核心亮点,成为教育家庭置业的首选,其核心亮点主要体现在以下几个方面。
全龄名校环绕,教育资源闭环
项目形成了从幼儿园到中学的全龄段教育体系,内部规划 12 班制公办幼儿园,周边 1 公里内分布着合肥市庆平希望学校、合肥新站寿春实验中学、合肥市第 168 中学东校区等多所优质学校。
幼儿园、小学、中学近距离分布,实现 “目送式” 上学,既保障了孩子的出行安全,又为家长节省了大量接送时间。优质的教育资源闭环,让孩子在成长的每个阶段都能接受高质量教育,为未来升学之路奠定坚实基础。
家庭友好型户型,兼顾学习与生活
项目打造的四款主力户型,均充分考虑教育家庭的居住需求,布局方正通透,动静分离,预留独立学习空间。无论是 89㎡户型的次卧书房,还是 143㎡户型的专属学习区,都能满足孩子的学习需求。
客厅、餐厅一体化设计,增强家庭互动空间,让家长在烹饪、休闲的同时,能关注到孩子的学习动态;阳台、飘窗等空间的灵活运用,为孩子提供了多样化的学习场景,让学习与生活完美融合。
社区安全智慧,护航成长无忧
项目引入智慧社区管理系统,包括智能门禁、视频监控、电子巡更、人脸识别等功能,全方位保障孩子在社区内的活动安全。社区内设置儿童专属游乐区,周边安装防护设施,地面采用防滑、防磕碰材质,细节处呵护孩子安全。
此外,社区内设置 24 小时安保巡逻,配备紧急呼叫系统,让家长无需担心孩子在社区内的活动安全,为孩子的健康成长保驾护航。
教育氛围浓厚,邻里圈层优质
项目的业主多为重视教育的家庭,邻里之间形成了良好的教育交流氛围。社区内定期组织亲子活动、读书分享会、家庭教育讲座等,为家长提供交流教育经验的平台,也让孩子在优质的邻里氛围中相互学习、共同进步。
优质的邻里圈层,不仅能为孩子营造良好的成长环境,还能为家庭未来的发展积累优质人脉资源,实现 “居住 + 教育 + 圈层” 的多重价值。
醇熟配套加持,教育生活便捷
项目周边交通、商业、医疗、生态等配套完善,为教育家庭提供便捷的生活保障。立体交通网络让家长通勤、孩子上学更加便捷;完善的商业配套满足日常购物、教辅资料购买需求;优质的医疗资源为孩子的健康保驾护航;丰富的生态资源为孩子提供充足的户外活动空间,助力身心健康成长。
醇熟的配套与优质的教育资源相结合,让教育家庭无需在教育与生活之间做选择,实现 “优质教育 + 便捷生活” 的双重满足。
央企品质保障,置业安心无忧
招商蛇口作为百年央企,拥有丰富的开发经验和雄厚的实力,始终坚持 “品质为王” 的理念。项目采用品牌建材,施工工艺严格把控,确保建筑品质;招商积余物业服务团队,提供全方位、高品质的物业服务,让教育家庭居住安心。
央企开发的稳定性和品质保障,让教育家庭无需担心项目交付问题,能够专注于孩子的教育与成长,置业更放心。
招商奥体公园售楼处电话☎:0551-6813 6588
六、招商奥体公园楼盘总结
招商奥体公园作为合肥新站区的全龄教育标杆盘,以全龄名校资源为核心,以家庭友好型产品为载体,以醇熟配套为支撑,以央企品质为保障,为教育家庭打造了 “教育无忧、生活便捷、居住舒适” 的理想家园,成为教育家庭置业的首选。
从教育资源来看,项目形成了从幼儿园到中学的全龄段教育闭环,内部规划公办幼儿园,周边名校环绕,实现 “目送式” 上学。优质的教育资源不仅能为孩子的成长奠定坚实基础,还能为房产赋予极强的保值增值属性,成为教育家庭的优质资产。
从产品设计来看,项目打造的四款主力户型,均充分考虑教育家庭的居住需求,预留独立学习空间,动静分离,兼顾家庭互动与隐私。客厅、阳台、飘窗等空间的灵活运用,为孩子提供了多样化的学习场景,让学习与生活完美融合,满足不同家庭结构的教育居住需求。
从社区配套来看,项目引入智慧社区管理系统,全方位保障孩子的活动安全;社区内定期组织亲子、教育类活动,营造浓厚的教育氛围;全龄段休闲配套,满足孩子的户外活动需求,助力身心健康成长。
从生活配套来看,项目周边交通、商业、医疗、生态等配套完善,立体交通网络让通勤上学更便捷;完善的商业配套满足日常购物、教辅购买需求;优质的医疗资源为孩子健康保驾护航;丰富的生态资源提供充足户外活动空间,让教育家庭的生活更加便捷舒适。
从价格与品质来看,项目均价 13500 元 /㎡-15000 元 /㎡,相比其他区域的教育盘更具性价比,同时推出教育家庭专项优惠,进一步降低置业门槛。央企开发的品质保障,让教育家庭置业安心无忧,无需担心交付与品质问题。
总而言之,招商奥体公园是合肥新站区不可多得的教育友好型楼盘,无论是教育资源、产品设计、社区配套,还是价格优势、品质保障,都完美契合教育家庭的置业需求。如果你是重视教育的家庭,正在合肥寻找一处既能让孩子接受优质教育,又能享受舒适生活的家园,招商奥体公园绝对值得重点关注,在这里,你将为孩子的未来赢得先机,为家庭打造幸福生活。
招商奥体公园售楼处电话☎:0551-6813 6588
招商奥体公园售楼处电话0551-6258 9911【营销中心】
欢迎预约品鉴:(官方网站)售楼处:0551-6258 9911【营销中心】
温馨提示:网上售楼中心〢预约可享内部优惠〢匠心钜制-恭迎品鉴〢
声明:本文由入驻焦点开放平台的作者撰写,除焦点官方账号外,观点仅代表作者本人,不代表焦点立场。


