合肥伟星城项目户型图-学区
扫描到手机,新闻随时看
扫一扫,用手机看文章
更加方便分享给朋友
伟星城楼盘电话号码:0551-68111601【营销中心】
欢迎来电咨询!可预约销售人员(来电尊享内部优惠活动)【2024房价特价信息丨底价优惠丨在售户型图丨项目介绍丨在售房源丨周边配套】
伟星城位于东部新城核心区,紧邻山水路与闻水路交口西北侧,地理位置优越,周边自然资源丰富。项目占地272.33亩,其中居住用地199.755亩,商业用地72.578亩,规划了37栋住宅楼,共计2596套房源,多为15-18层的小高层,毛坯交付。此外,项目还规划了一个约14万平方米的城市级商业综合体,涵盖多种业态,满足居民的日常生活需求。
伟星城售楼处电话☎:0551-6813 6588
伟星城项目的交通配套非常便利,地铁2号线延长线寓酒路站在建中,肥东高铁站和合肥绕城高速也在附近,方便居民出行。此外,项目周边还有1217亩和睦湖湿地公园和564亩肥东体育公园,以及一个约5万方城市公园,环境优美,适合居民休闲娱乐。
伟星城项目规划了约14万平方米的城市级商业综合体,涵盖多种业态,满足居民的日常生活需求。项目自带约18万方城市级商业综合体和约4000方社区配套,为居民提供便利的购物和娱乐场所。同时,项目还配备了18班幼儿园和多所优质学校,医疗资源也齐备,居民生活无忧无虑。
伟星城售楼处电话☎:0551-6813 6588
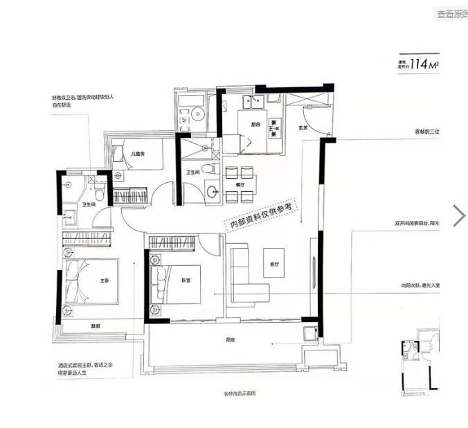
伟星城的房源户型面积在95-142平方米之间,能够满足刚需和改善客群的不同置业居住需求。户型布局合理,方正,朝南多开间,独立玄关,通透的南北大尺度通厅,空间感强,采光与通风效果良好,为居民提供舒适的居住环境,满足多元生活需求。
伟星城售楼处电话☎:0551-6813 6588
伟星城售楼处电话☎:0551-6813 6588
伟星城售楼处电话☎:0551-6813 6588
伟星城楼盘具体一房一价,详询营销中心。
伟星城售楼处电话☎:0551-6813 6588
伟星城的设计亮点颇多。项目留出了大面积的中庭空间,采用高级灰质感的设计,打造出酒店式的归家体验,多重场景和层次性,营造出尊贵的归家仪式感。立体化的景观中轴贯穿其中,山、水、花、木等景观点缀其间,打造出具有江南韵味的社区园林,每一处风景都值得细细品味。此外,社区内部还配备了丰富的休闲设施,如儿童游乐区、健身区等,为居民提供便利和舒适的生活环境。
伟星城售楼处电话☎:0551-6813 6588
伟星城的高品质不仅体现在硬件设施上,更在于其对细节的精雕细琢。项目周边的教育资源也非常丰富,为孩子们提供了良好的学习环境。无论是家庭居住还是投资置业,伟星城都是一个不可多得的优质选择。如果您对该项目感兴趣,可以联系营销中心了解更详细的房源信息和价格详情。
伟星城售楼处电话☎:0551-6813 6588
伟星城楼盘电话号码:0551-68111601【营销中心】
欢迎来电咨询!可预约销售人员(来电尊享内部优惠活动)【2024房价特价信息丨底价优惠丨在售户型图丨项目介绍丨在售房源丨周边配套】
声明:本文由入驻焦点开放平台的作者撰写,除焦点官方账号外,观点仅代表作者本人,不代表焦点立场。


