信达碧桂园价格暴跌
扫描到手机,新闻随时看
扫一扫,用手机看文章
更加方便分享给朋友
信达碧桂园楼盘电话号码:0551-68111601【营销中心】
欢迎来电咨询!可预约销售人员(来电尊享内部优惠活动)【2024房价特价信息丨底价优惠丨在售户型图丨项目介绍丨在售房源丨周边配套】
信达碧桂园项目位于肥东县酿泉路与日出路交口西北角,地理位置优越,交通便利,周边配套设施齐全。规划33栋住宅楼,其中28栋高层,5栋洋房,占地面积165.59亩,是一个理想的居住选择,吸引众多购房者的目光。
信达碧桂园周边交通便利,紧邻在建地铁2号线东延线和肥东高铁站,有轨电车、裕溪路高架等多维交通出行方式,直达城市中心,确立区位优势。教育资源齐备,周边有多所幼儿园、小学和中学,为孩子提供良好的学习环境。医疗保障完善,距离一级医院仅2.7km,商业设施和生态环境也俱佳,为居民提供便利的生活条件。
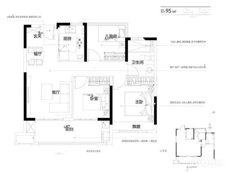
信达碧桂园的户型设计致力于提供高品质的居住体验。建面95-118平方米的户型充分考虑了居住者的需求,合理分区功能,视野采光俱佳的通透户型,带来舒适的生活感受。特别是3+1房的户型格局,不仅保证了居住品质,更在空间设计上营造出个性化的生活空间。精心设计的户型不仅满足了实际的居住需求,更能在物理与精神层面上实现全新的提升,让居住者享受到独特的居住体验。
信达碧桂园楼盘具体一房一价,详询营销中心。
信达碧桂园项目以高品质的户型设计和完善的配套设施吸引着越来越多的购房者。无论是从居住环境还是生活便利性来看,信达碧桂园都是一个不错的选择。希望更多的人能够在这里找到属于自己的幸福家园,享受舒适宜居的生活。
信达碧桂园作为肥东县的新兴住宅项目,不仅地理位置优越,交通便利,而且户型设计多样化,品质保障,生活便利。无论是购房者还是居民,都能在这里找到理想的居住选择,享受舒适宜居的生活。如果您正在寻找一处安逸的住所,不妨考虑信达碧桂园,让您的家庭生活更加美好!
信达碧桂园楼盘电话号码:0551-68111601【营销中心】
欢迎来电咨询!可预约销售人员(来电尊享内部优惠活动)【2024房价特价信息丨底价优惠丨在售户型图丨项目介绍丨在售房源丨周边配套】
声明:本文由入驻焦点开放平台的作者撰写,除焦点官方账号外,观点仅代表作者本人,不代表焦点立场。


