中央公园琥珀星樾湾售楼处电话—百科详情【24H预约热线】—实时动态--最新价格-户型图-容积率@琥珀星樾湾营销中心
扫描到手机,新闻随时看
扫一扫,用手机看文章
更加方便分享给朋友
琥珀星樾湾楼盘电话号码:0551-68111601【营销中心】
欢迎来电咨询!可预约销售人员(来电尊享内部优惠活动)【2025房价特价信息丨底价优惠丨在售户型图丨项目介绍丨在售房源丨周边配套】
琥珀星樾湾楼盘户型解析
作为 “生态宜居盘”,琥珀星樾湾的户型设计不仅要 “舒适”,更要 “与自然融合”—— 通过合理的空间布局,让业主在室内就能享受 “公园景观” 和 “充足阳光”。项目针对不同人群的需求,设计了 95㎡、110㎡、125㎡、140㎡四种主力户型,每种户型都做到了 “南北通透、采光充足、景观视野好”,让 “公园生活” 延伸到室内。
95㎡三室两厅一卫(刚需生态户型) 专为年轻刚需人群设计,在满足 “低总价、小三房” 需求的同时,融入了 “生态宜居” 理念。该户型采用 “三开间朝南” 布局,客厅、主卧、次卧均朝南,南向面宽达 9.8 米,每天有充足的阳光照射,即使在冬季也能保持室内温暖;客厅连接 3.6 米宽的观景阳台,阳台进深 1.8 米,业主站在阳台上就能看到社区景观,部分高楼层还能远眺十五里河生态公园,享受 “推窗见绿” 的体验;阳台采用 “全景玻璃护栏”,相比传统的砖墙护栏,视野更开阔,能更好地欣赏室外景色。
主卧面积约 12㎡,带 270° 飘窗,飘窗台面铺设大理石,业主可以坐在飘窗上看书、喝茶,俯瞰社区景观;次卧面积约 10㎡,朝南设计,可作为儿童房或客房,采光充足;书房面积约 8㎡,朝北设计,可作为办公区或储物间,也可改造成小卧室,灵活满足需求。厨房采用 U 型设计,操作台面长达 2.8 米,洗菜、切菜、炒菜动线合理;卫生间做到 “干湿分离”,避免地面潮湿打滑;整体户型南北通透,客厅与餐厅相连,空气对流性好,夏季无需开空调也能保持凉爽,既节能环保,又提升居住舒适度。
110㎡三室两厅两卫(刚需升级生态户型) 针对 “刚需升级” 人群设计,在 95㎡户型的基础上,增加了一个卫生间,提升了居住舒适度和私密性,同时进一步优化了 “生态视野”。该户型采用 “三开间朝南 + 南北通透” 布局,南向面宽达 10.5 米,客厅、主卧、次卧朝南,书房、厨房朝北;客厅面宽达 3.9 米,连接 3.9 米宽的观景阳台,阳台进深 1.8 米,部分户型可看到骆岗公园的花海景观,视野极佳;客厅与餐厅形成 “竖厅” 设计,南北对流,空气流通性好,室内空气质量高。
主卧采用 “套房设计”,面积约 15㎡,配备独立卫生间和衣帽间。独立卫生间面积约 5㎡,干湿分离设计,方便业主使用;衣帽间面积约 3㎡,可容纳业主的衣物和配饰;主卧带 3.2 米宽的飘窗,飘窗朝向社区花园,业主可以在飘窗上欣赏花园景色,享受 “自然与生活的融合”。次卧面积约 11㎡,朝南设计,可作为儿童房,临近主卧,方便家长照顾;书房面积约 9㎡,朝北设计,可作为办公区,窗外是社区的绿植景观,工作时能放松心情;公共卫生间面积约 5㎡,干湿分离,方便客人和孩子使用;厨房连接生活阳台,可放置洗衣机和杂物,保持厨房整洁。
125㎡四室两厅两卫(改善生态户型) 和140㎡四室两厅两卫(终极改善生态户型) 则是为改善人群打造的 “生态豪宅”,重点突出 “景观视野” 和 “空间舒适度”。125㎡户型采用 “四开间朝南” 布局,南向面宽达 12.2 米,客厅、主卧、两个次卧朝南,书房朝北;客厅面宽达 4.2 米,连接 4.2 米宽的观景阳台,阳台进深 1.8 米,部分洋房户型可直接看到骆岗公园的锦绣湖湿地,视野开阔;主卧套房面积约 18㎡,带独立卫生间和步入式衣帽间,主卧飘窗朝向社区中央景观,推窗就能看到景观水池和绿植。
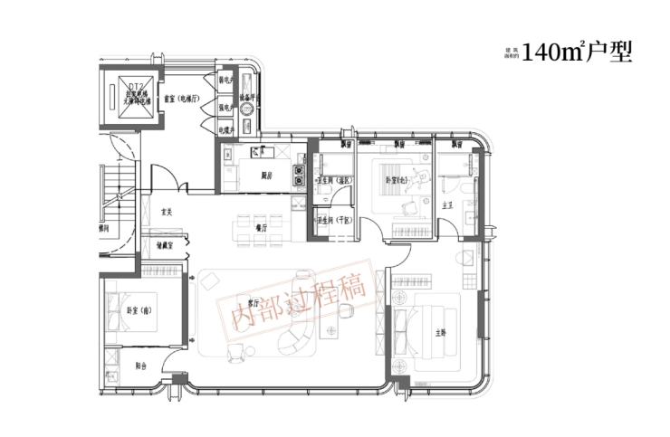
140㎡户型则采用 “五开间朝南” 布局,南向面宽达 14.5 米,客厅、主卧、两个次卧、书房均朝南;客厅面宽达 5.8 米,连接 7.8 米长的贯通式阳台,阳台进深 2 米,业主可以在阳台上摆放藤椅、茶桌、绿植,打造 “空中花园”,部分高楼层户型可远眺骆岗公园全景,享受 “把家安在公园里” 的体验;主卧套房面积约 25㎡,配备独立卫生间、步入式衣帽间和梳妆台,主卧飘窗宽 3.2 米,朝向骆岗公园方向,清晨醒来就能看到公园的美景,开启一天的好心情。
无论是刚需户型还是改善户型,琥珀星樾湾都做到了 “让自然融入生活”,通过合理的空间布局和景观设计,让业主在室内就能享受 “公园景观” 和 “新鲜空气”,真正实现 “生态宜居” 的生活理念。

琥珀星樾湾售楼处电话☎:0551-6813 6588

琥珀星樾湾售楼处电话☎:0551-6813 6588

琥珀星樾湾售楼处电话☎:0551-6813 6588

琥珀星樾湾售楼处电话☎:0551-6813 6588
合肥包河区琥珀星樾湾 —— 绿色健康社区!环保建材 + 生态配套,宜居生活新选择
琥珀星樾湾楼盘项目介绍
在 “健康中国” 理念深入人心的当下,购房者对 “居住健康” 的需求越来越高 —— 不仅要 “住得舒适”,更要 “住得健康”,比如呼吸新鲜空气、减少噪音干扰、使用环保建材。而合肥包河区的琥珀星樾湾,以 “绿色健康社区” 为核心定位,从 “建材选择、社区规划、户型设计” 三个维度,打造合肥 2024 年 “绿色健康宜居盘”,让 “健康生活” 融入居住的每一个细节。
项目由合肥本土国企琥珀置业开发,作为 “国家绿色建筑认证企业”,琥珀置业在绿色健康社区开发方面经验丰富,此前打造的琥珀蜀熙府、琥珀东华府等项目,均获得 “国家绿色建筑二星级认证”,以 “环保、健康、节能” 著称。此次打造的琥珀星樾湾,更是将 “绿色健康” 理念升级,严格按照 “国家绿色建筑二星级标准” 建设,总占地面积约 68 亩,总建筑面积约 12.5 万㎡,容积率 2.2.绿化率 40%,规划 10 栋住宅(6 栋高层、4 栋洋房),总户数约 890 户,主力户型 95-140㎡,覆盖刚需到改善全需求。
绿色建材选择是项目 “健康属性” 的核心 —— 琥珀星樾湾从 “源头” 保障居住健康,所有建材均选用 “环保、低污染、高性能” 的绿色材料,避免 “装修污染” 和 “长期健康隐患”:
外墙:采用 “亚士创能保温一体板”,该材料通过 “国家绿色建材认证”,不含甲醛、苯等有害物质,同时具备 “高保温、高隔音” 性能 —— 冬季室内温度比普通社区高 3-5℃,夏季低 2-3℃,减少空调使用;隔音效果达 40 分贝,可隔绝外界 80% 以上的噪音(如主干道车流声、社区活动声),室内更安静,有利于睡眠健康。
地面:室内地面采用 “圣象 E0 级实木复合地板”,甲醛释放量≤0.05mg/m³,远低于国家标准(≤0.124mg/m³),赤脚踩在地板上也安全;公共区域(入户大堂、电梯间)地面采用 “马可波罗防滑瓷砖”,无辐射、易清洁,避免细菌滋生。
门窗:选用 “信义断桥铝双层中空 Low-E 玻璃”,玻璃内填充惰性气体,不仅隔音隔热,还能阻挡 90% 以上的紫外线,避免家具褪色、皮肤晒伤;窗框采用 “粉末喷涂工艺”,不含重金属,环保无污染。
涂料:室内墙面采用 “立邦 E0 级乳胶漆”,甲醛释放量几乎为零,且具备 “抗菌功能”(可抑制大肠杆菌、金黄色葡萄球菌),减少室内细菌滋生,尤其适合有老人、孩子的家庭。
辅材:装修辅材(如胶水、腻子、密封胶)均选用 “绿色环保产品”,如 “东方雨虹环保胶水”“美巢 E0 级腻子”,确保 “看不见的细节” 也健康。
社区绿色规划进一步强化 “健康属性”—— 项目从 “空气、水质、噪音、绿化” 四个维度,打造 “全维度健康社区”:
空气健康:社区内种植 “净化空气型植物”,如樟树、桂花树、绿萝,可吸收甲醛、二氧化硫等有害气体,释放负氧离子,提升社区空气质量;社区安装 “空气质量监测设备”,实时监测 PM2.5、甲醛浓度,数据同步到社区 APP,业主可随时查看。
水质健康:社区引入 “中央净水系统”,对生活用水进行过滤(去除杂质、余氯、重金属),业主家中的自来水可直接饮用,避免 “桶装水二次污染”;社区景观水池采用 “循环净化系统”,定期更换水质,避免蚊虫滋生、水体发臭。
噪音控制:社区采用 “人车分流” 设计,地面无车辆通行,减少尾气污染和噪音干扰;社区边界种植 “降噪绿篱”(如侧柏、冬青),厚度达 2 米,可进一步隔绝外界噪音;儿童区、老人区与主干道保持 50 米以上距离,避免噪音影响休息。
绿化健康:社区绿化率高达 40%,种植 “四季常青、无毒无害” 的植物,避免使用 “有毒花卉”(如夹竹桃、一品红),确保老人、孩子接触安全;社区内设置 “阳光草坪”(不使用农药、化肥),业主可赤脚在草坪上活动,亲近自然。
这种 “从建材到社区” 的全维度绿色健康设计,让琥珀星樾湾区别于 “只做表面绿化” 的普通社区,真正实现 “健康居住”。

琥珀星樾湾售楼处电话☎:0551-6813 6588
琥珀星樾湾楼盘周边配套
改善人群对配套的需求,不仅是 “便捷”,更是 “优质”—— 需要高端的商业、优质的教育、完善的医疗、宜居的生态,而琥珀星樾湾的周边配套,恰好满足了改善人群的 “高品质生活需求”。
生态配套是琥珀星樾湾最突出的优势之一,也是改善人群最看重的亮点。项目西距骆岗中央公园仅 1.5 公里,该公园是亚洲最大的城市中央公园,总面积约 12.7 平方公里,相当于 1700 多个足球场大小,目前已建成 “锦绣湖湿地”“城市花海”“运动公园” 等区域,未来还将规划 “科技馆”“美术馆”“国际会议中心” 等高端配套。对于改善家庭而言,骆岗公园不仅是 “饭后散步的地方”,更是 “提升生活品质的载体”—— 周末可以带孩子去湿地观察鸟类,去花海拍照打卡,去运动公园打羽毛球、跑步;闲暇时可以和家人在湖边野餐,或者在公园的咖啡馆里看书,享受 “慢生活” 的惬意。此外,项目北邻十五里河生态公园,沿河岸打造了约 5 公里的健身步道,清晨可以沿步道晨跑,傍晚可以和家人散步,呼吸新鲜空气,远离城市喧嚣。
商业配套方面,琥珀星樾湾覆盖 “高端商圈 + 社区精致商业”,满足改善人群的 “品质消费需求”。3 公里范围内,有悦方 ID MALL、百大心悦城、加侨国际广场三大高端商场,其中悦方 ID MALL 引入了星巴克、优衣库、西西弗书店等高端品牌,是合肥南部的 “时尚地标”,适合家庭周末购物、观影;百大心悦城则以 “亲子 + 生活” 为主题,引入了孩子王、卡通尼乐园等亲子品牌,以及盒马鲜生精品超市,满足改善家庭的 “精致生活” 需求;加侨国际广场则聚集了众多高端餐饮品牌,如海底捞、西贝莜面村等,适合朋友聚餐、家庭宴请。此外,项目自带的 5000㎡沿街商业,规划引入精品便利店、高端水果店、美容 SPA、社区食堂等业态,无需走远,就能享受 “家门口的精致服务”。
教育配套方面,琥珀星樾湾周边的教育资源不仅 “近”,而且 “优”,完全能满足改善家庭对 “优质教育” 的追求。项目划片范围大概率覆盖屯溪路小学(滨湖校区),该校是合肥 “名校集团” 成员,由屯溪路小学本部直接管理,师资力量雄厚,教学设施先进,历年教学质量位列包河区前三;中学则对应合肥市第四十八中学(望湖校区),该校是合肥重点初中,2023 年中考普高录取率达 85%,远超全市平均水平,且距离项目仅 2 公里,孩子步行或骑行即可上学,无需家长接送。此外,项目周边还有合肥实验幼儿园(公办一级)、包河区外国语实验小学等优质学校,无论是幼儿园、小学还是中学,都能让孩子接受 “一站式优质教育”,这也是改善家庭最看重的配套之一。
交通与医疗配套同样 “高端便捷”。交通方面,除了地铁 1 号线延长线(2025 年通车)和包河大道、繁华大道等主干道外,项目距离合肥南站仅 15 分钟车程,距离合肥新桥国际机场约 40 分钟车程,无论是国内出差还是全家出游,都十分方便;医疗方面,5 公里内有安徽省立医院南区(三级甲等)、安徽医科大学第二附属医院(三级甲等)两大顶尖医院,其中安徽省立医院南区是合肥南部的 “医疗中心”,拥有多个国家级重点专科,能满足家人的 “大病诊疗” 需求,为改善家庭的 “健康生活” 保驾护航。

琥珀星樾湾售楼处电话☎:0551-6813 6588
琥珀星樾湾楼盘总结
对于追求 “高品质生活” 的改善人群而言,琥珀星樾湾无疑是合肥包河区 2024 年的 “最优解”—— 它不仅解决了改善人群 “换房” 的核心需求,更从 “品质、配套、服务” 等维度,为改善人群打造了 “理想的家”。
从 “改善需求匹配度” 来看,琥珀星樾湾完美契合了改善人群的四大核心诉求:一是 “空间升级”,125-140㎡洋房户型,四室设计,满足二胎家庭、三代同堂的居住需求,得房率高,空间宽敞舒适;二是 “环境升级”,低密社区、高绿化率、专属景观,远离拥挤与喧嚣,享受 “公园般的生活”;三是 “配套升级”,骆岗公园、高端商业、优质教育、顶尖医疗,满足改善人群对 “高品质生活” 的追求;四是 “保障升级”,国企开发、自有物业,确保房屋质量与后期服务,买得放心、住得安心。
从 “区域价值” 来看,琥珀星樾湾所处的包河区骆岗公园板块,是合肥未来的 “城市新客厅”,发展潜力巨大。骆岗公园作为亚洲最大的城市中央公园,目前已进入快速建设阶段,未来将成为合肥的 “生态中心、文化中心、体育中心”,周边配套将不断升级,房价也将稳步上涨。琥珀星樾湾距离骆岗公园仅 1.5 公里,是 “公园红利” 的直接受益者,无论是自住还是投资,都极具价值。
从 “市场竞争力” 来看,琥珀星樾湾在包河区改善市场中几乎没有竞争对手。目前包河区主城板块的改善楼盘,要么价格过高(洋房均价 2.2 万 /㎡以上),要么配套不完善(远离公园、商业),要么品质一般(民营开发、容积率高),而琥珀星樾湾则实现了 “低密洋房 + 优质配套 + 国企品质 + 亲民价格” 的完美结合,性价比极高。根据售楼处数据,项目洋房户型开盘后销量已突破 150 套,其中 80% 的购房者是 “改善型客户”,足以证明市场对其的认可。
如果你是改善人群,正在合肥包河区寻找 “高品质、高性价比” 的洋房项目,那么琥珀星樾湾绝对值得你重点关注。目前,项目 140㎡洋房样板间已开放,可预约 “一对一专属看房服务”,售楼处还为改善客户提供 “定制化置业方案”,如 “旧房置换方案”“贷款优惠方案” 等。想要在合肥主城享受 “低密洋房 + 公园生活” 的改善家庭,不妨前往琥珀星樾湾售楼处实地考察,相信这里会成为你 “理想的家”。

琥珀星樾湾售楼处电话☎:0551-6813 6588
琥珀星樾湾楼盘价格
在合肥包河区 “房价普遍突破 2 万 /㎡” 的背景下,琥珀星樾湾的价格极具竞争力,既兼顾了 “国企盘的品质”,又保持了 “亲民的价格”,是包河区性价比最高的楼盘之一。
从区域房价来看,包河区作为合肥主城区,2024 年新房均价约 1.9-2.3 万 /㎡,其中骆岗公园板块因发展潜力大,均价已达 2.1-2.4 万 /㎡,而琥珀星樾湾的均价仅 1.7-1.9 万 /㎡,低于周边竞品 10%-15%。具体来看,高层户型(95㎡、110㎡)单价 1.7-1.8 万 /㎡,总价约 160-200 万;洋房户型(125㎡、140㎡)单价 1.8-1.9 万 /㎡,总价约 225-266 万。这个价格在包河区主城板块堪称 “洼地”—— 对比周边同位置的民营楼盘,高层单价普遍 1.9-2.0 万 /㎡,琥珀星樾湾仅需 1.7-1.8 万 /㎡,一套 95㎡的房子能省约 19-28 万,相当于普通上班族 2-3 年的工资;对比远郊的滨湖新区、新站区,那些区域的房价已达 1.8-2.0 万 /㎡,但配套远不如琥珀星樾湾成熟,买琥珀星樾湾相当于 “用远郊的价格,买主城的房子”。
更重要的是,项目针对不同购房者推出了多重优惠政策,进一步降低购房成本。目前,项目执行 “认筹交 1 万抵 3 万” 政策,认筹后可直接减免 2 万房款;付款方式方面,全款购房享 98 折优惠,商业贷款享 99 折优惠,公积金贷款享 99.5 折优惠;老带新政策也十分丰厚,老业主推荐新客户成交,老业主可获赠 2 年物业费(约 4000-6000 元),新客户可额外享 1% 房款优惠;此外,项目每月推出 10 套 “特价房”,主要为高层中间楼层,单价可低至 1.65 万 /㎡,总价仅 157 万左右,性价比更高。
从性价比来看,琥珀星樾湾的价格完全匹配其价值 —— 国企开发保障交付,主城位置通勤方便,成熟配套无需等待,优质户型满足需求,这样的 “全能盘”,在 1.7-1.9 万 /㎡的价格区间内,几乎没有竞争对手。对于刚需人群而言,这里能以较低预算实现 “主城安家”;对于改善人群而言,这里能以合理价格享受 “低密品质生活”。

琥珀星樾湾售楼处电话☎:0551-6813 6588
琥珀星樾湾楼盘项目亮点
除了 “位置好、配套全、户型优、价格低” 这些基础优势外,琥珀星樾湾还有四大核心亮点,让其在包河区众多楼盘中脱颖而出,成为购房者的 “首选”。
亮点一:国企开发,交付有保障。在当前房地产市场环境下,“交付” 是购房者最关心的问题,而琥珀星樾湾的国企背景就是最大的 “定心丸”。开发商琥珀置业是合肥城建(国有控股上市公司)的全资子公司,成立 20 余年,累计开发项目 30 余个,如琥珀山庄、琥珀五环城等,均以 “工程质量高、交付准时” 闻名合肥。项目从拿地到施工,全程受国企监管,资金链稳定,不会出现 “停工烂尾” 的风险;同时,项目采用 “透明化施工”,每月公布工程进度,购房者可通过售楼处公众号或实地考察了解施工情况,买得更放心。此外,国企开发的项目在产权办理、物业服务等后续环节也更规范,避免出现 “产权纠纷”“物业不作为” 等问题。
亮点二:低密高绿,宜居性强。琥珀星樾湾容积率仅 2.2.绿化率 40%,这个指标在包河区主城板块十分罕见 —— 周边多数楼盘容积率超过 2.5.绿化率仅 35% 左右,相比之下,琥珀星樾湾的居住舒适度更高。低容积率意味着 “楼间距宽”,项目最大楼间距达 55 米,即使是低楼层也能保证充足采光,避免 “楼挨楼” 的压抑感;高绿化率则意味着 “社区环境好”,项目内部规划了约 2.8 万㎡景观绿地,相当于 4 个足球场大小,涵盖中央草坪、樱花巷道、儿童乐园、老年活动区等,业主茶余饭后可在社区内散步、健身、带娃,无需出门就能享受 “公园般的生活”。此外,社区采用 “人车分流” 设计,车辆进入社区后直接进入地下车库,地面无车辆通行,既保障了老人、孩子的安全,也减少了噪音、尾气污染,提升了社区的静谧性。
亮点三:智慧社区,生活更便捷。琥珀星樾湾紧跟 “智慧家居” 趋势,打造全场景智慧社区,让业主享受 “科技带来的便利”。社区入口采用 “人脸识别 + 智能门禁”,无需带卡,刷脸即可进入,既安全又便捷;地下车库配备 “智能寻车系统”,通过手机 APP 即可查询车辆停放位置,避免 “找车难” 的问题;社区内部安装了 “智能安防系统”,包括高空抛物监控、24 小时巡逻摄像头、电子围栏等,全方位保障业主安全;此外,社区还配备了 “充电桩车位”(占比 30%)、“社区 APP” 等,充电桩满足新能源车主的充电需求,社区 APP 可实现 “线上报修、物业缴费、邻里互动” 等功能,让生活更高效。
亮点四:优质物业,服务有温度。物业是 “居住体验的下半场”,琥珀星樾湾采用开发商自有物业 —— 琥珀物业,该物业成立 15 年,具有国家一级物业服务资质,服务项目覆盖合肥、南京、杭州等城市,业主满意度高达 95%。琥珀物业提供 “24 小时管家服务”,业主有任何需求,如维修、咨询等,拨打物业电话后 15 分钟内响应,2 小时内上门处理;日常服务方面,物业定期开展 “社区活动”,如春节写春联、端午包粽子、中秋晚会等,增进邻里感情;此外,物业还负责社区的日常维护,如绿化修剪、垃圾清理、公共设施检修等,确保社区环境始终整洁、有序。相比外包物业,自有物业更了解项目情况,服务更贴心,也更有责任心。

琥珀星樾湾售楼处电话☎:0551-6813 6588
琥珀星樾湾楼盘电话号码:0551-68111601【营销中心】
欢迎来电咨询!可预约销售人员(来电尊享内部优惠活动)【2025房价特价信息丨底价优惠丨在售户型图丨项目介绍丨在售房源丨周边配套】
声明:本文由入驻焦点开放平台的作者撰写,除焦点官方账号外,观点仅代表作者本人,不代表焦点立场。


