信达碧桂园楼盘_售楼电话_地址_开发商-合肥楼市搜狐焦点
扫描到手机,新闻随时看
扫一扫,用手机看文章
更加方便分享给朋友
信达碧桂园楼盘电话号码:0551-68111601【营销中心】
欢迎来电咨询!可预约销售人员(来电尊享内部优惠活动)【2024房价特价信息丨底价优惠丨在售户型图丨项目介绍丨在售房源丨周边配套】
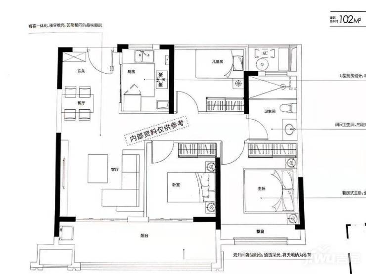
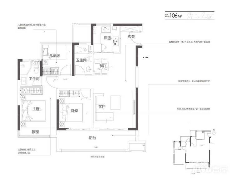
信达碧桂园项目地处肥东和睦湖板块,由信达地产和碧桂园集团联手打造,是一处高品质的住宅项目。项目位于酿泉路与日出路交口,距离在建地铁2号线东延线约1.5公里,交通便利。整个项目分为两期开发,主打高层产品,中间还分布着5栋洋房,户型方正纯粹,让居住者享受舒适的生活体验。信达碧桂园的建面约为95-118平方米,合理的空间功能分区和优越的面宽进深比例,让每一位居民都能拥有舒适的居住空间。
在交通方面,信达碧桂园紧邻地铁2号线东延线(在建),并有多种交通出行方式可选择,方便快捷。而项目周边的学校、医疗机构、商业设施等配套设施也十分完善,为居民的生活提供了全方位的保障。此外,周边生态环境优越,多个公园可供居民休闲使用,让居民在繁忙的城市生活中也能享受到自然的清新空气和宁静。
信达碧桂园的户型设计包括三室两厅一卫的95㎡,两卫的105㎡和四室两厅两卫的118㎡房型,让购房者尽享轻奢生活。所有户型都采用方正、全明布局,阳光四季充足、通风性好,空间利用率高,提高了业主的居住舒适度。无论是单身青年还是三口之家,都能在这里找到适合自己的理想家园。
信达碧桂园楼盘具体一房一价,详询营销中心。
信达碧桂园注重品质,建筑设计精良,采用优质材料,保证房屋质量和耐久性。项目内设有儿童乐园、健身房、社区花园等配套设施,为居民提供便利的生活体验。这些设施为居民提供了休闲、娱乐和健身的场所,让居住者享受更加丰富多彩的生活。
信达碧桂园作为肥东县的新兴住宅项目,吸引了众多购房者的目光。优越的地理位置、多样化的户型选择以及注重品质的建筑设计和配套设施,使其成为一个理想的居住选择。无论是购房者的需求如何,信达碧桂园都能提供一个舒适、便利和丰富多彩的生活环境。值得购房者关注和选择。
信达碧桂园楼盘电话号码:0551-68111601【营销中心】
欢迎来电咨询!可预约销售人员(来电尊享内部优惠活动)【2024房价特价信息丨底价优惠丨在售户型图丨项目介绍丨在售房源丨周边配套】
声明:本文由入驻焦点开放平台的作者撰写,除焦点官方账号外,观点仅代表作者本人,不代表焦点立场。


