招商奥体公园售楼处电话-地址-价格-户型-楼盘详情
扫描到手机,新闻随时看
扫一扫,用手机看文章
更加方便分享给朋友
招商奥体公园楼盘,更多项目详情请拨打招商奥体公园营销中心电话:0551-6258 9911【营销中心】
合肥新站区作为城市东拓的核心板块,正以蓬勃的发展态势吸引着全城目光,而坐落于东方大道与卧龙湖路交口往南 200 米的招商奥体公园,无疑是这片热土上的标杆之作。项目由招商蛇口倾力打造,作为百年央企,招商蛇口深耕房地产行业数十年,凭借稳健的开发实力和精益求精的品质追求,在全国范围内打造了众多标杆楼盘,此次落子新站核心区位,更是带着对城市发展的深刻理解,为合肥购房者带来高品质的居住体验。
招商奥体公园总占地面积约 180 亩,总建筑面积超 35 万平方米,规划容积率仅 2.0.绿化率高达 40%,是区域内少有的低密生态社区。项目整体采用现代简约的建筑风格,线条流畅利落,外立面以高级灰为主色调,搭配大面积玻璃幕墙,既彰显时尚质感,又能最大化引入自然光线,让每一栋建筑都成为城市一道靓丽的风景线。
项目规划涵盖高层住宅、洋房、社区商业、幼儿园等多种业态,形成一站式生活圈。其中,住宅产品主力面向刚需及改善型人群,户型面积段从 89㎡三室两厅一卫到 143㎡四室两厅两卫,满足不同家庭结构的居住需求。社区内部规划了约 5000㎡中央景观花园、环形健身步道、儿童游乐区、老年活动中心等多重休闲配套,打造全龄段宜居空间,让业主在繁忙的生活中,能随时享受自然与运动的乐趣。
值得一提的是,招商奥体公园依托 “奥体” IP 优势,周边规划有大型体育场馆及运动配套,项目内部也融入了运动健康理念,将居住与运动完美结合,为业主打造健康活力的生活方式。从项目选址到规划设计,从建筑品质到细节打磨,招商奥体公园始终以 “以人为本” 为核心,致力于成为合肥新站区宜居楼盘的典范之作。
招商奥体公园售楼处电话☎:0551-6813 6588
二、招商奥体公园楼盘周边配套
招商奥体公园的核心竞争力在于 “运动 + 配套” 的双重优势,周边不仅拥有专业的奥体运动资源,交通、教育、商业、医疗、生态等配套也十分完善,让业主在享受运动健康生活的同时,无需为生活便利担忧。
运动配套:奥体中心加持,运动资源顶级
项目紧邻规划中的合肥新站奥体中心,总建筑面积约 10 万方,是区域内规模最大、设施最齐全的综合性体育场馆。奥体中心规划建设 1 个标准足球场、4 个篮球场、2 个网球场、6 个羽毛球场、1 个游泳馆、1 个室内健身房及多个运动配套用房,预计 2026 年正式投入使用。
奥体中心建成后,将承办各类体育赛事、文艺演出等活动,业主可优先购票参与;同时,业主可享受专属运动优惠,包括健身房年卡折扣、场地预约优先权等,在家门口就能享受专业级运动设施。此外,奥体中心周边规划建设运动主题公园,涵盖户外健身区、休闲步道、亲子运动区等,进一步丰富业主的运动选择。
除了外部奥体中心,项目内部规划了全龄段运动配套。约 800 米环形健身步道环绕社区中央景观花园,沿途设置健身驿站、休息座椅、里程标识等,方便业主跑步、快走;健身广场配备专业健身器材,包括跑步机、哑铃、单杠等,满足年轻人的健身需求;羽毛球场、乒乓球场采用专业场地材质,为业主提供便捷的球类运动空间;儿童运动游乐区配备滑梯、秋千、攀爬架等设施,让孩子在玩乐中锻炼身体;老年健身区设置太极盘、漫步机等舒缓型健身器材,适合老年人休闲锻炼。
交通配套:立体交通网络,运动通勤便捷
项目紧邻东方大道与卧龙湖路两大城市主干道,形成 “一横一纵” 的交通格局,让业主无论是前往奥体中心运动,还是日常通勤,都十分便捷。
东方大道西接阜阳北路高架,东连包公大道高架,双向 6 车道,路况良好。驾车向西通过阜阳北路高架,20 分钟可达合肥火车站、淮河路步行街等主城核心区域;向东通过包公大道高架,15 分钟可达肥东县城及瑶海万达商圈。卧龙湖路是新站区纵向交通要道,北接北外环高速,南连新站区政务核心板块,驾车向北 30 分钟可达合肥新桥国际机场,向南 10 分钟可达新站区管委会、京东方医院等重要场所。
公共交通方面,项目周边 500 米范围内设有 3 个公交站点,涵盖 301 路、302 路、686 路、803 路等多条公交线路。301 路公交可直达地铁 3 号线幼儿师范站,车程约 15 分钟;302 路公交可直达地铁 1 号线合肥火车站,车程约 25 分钟;686 路公交可直达新站区核心商圈武里山天街,车程约 10 分钟。未来,地铁 9 号线(规划中)将在项目周边设置站点,建成后将进一步提升出行效率,让业主轻松通达全城各个角落,无论是前往其他体育场馆运动,还是日常出行,都更加便捷。
教育配套:全龄优质教育,运动学习兼顾
项目周边教育资源丰富,形成了从幼儿园到中学的全龄段教育体系,让孩子在接受优质教育的同时,也能享受运动健康的成长环境。
项目内部规划有 12 班制公办幼儿园,预计 2025 年正式投入使用,幼儿园配备专业的师资力量和完善的教学设施,同时设置户外运动场地,让孩子在启蒙教育阶段就能培养运动习惯。
项目周边 1 公里范围内分布着合肥市庆平希望学校、合肥新站寿春实验中学、合肥市第 168 中学东校区等多所优质学校。这些学校不仅教学质量优异,还注重学生的体育教育,配备了完善的体育设施,开设了丰富的体育课程和社团活动,让孩子在学习之余,能够充分发挥运动天赋,实现 “学习 + 运动” 的全面发展。
商业配套:运动商业融合,生活需求满足
项目周边商业配套完善,且融入运动元素,满足业主运动前后的消费需求,让运动与生活无缝衔接。
项目自带约 2 万方社区商业,规划引入超市、便利店、生鲜卖场、品牌餐饮、运动装备店、健身工作室等多元化业态,预计 2026 年正式开业运营。业主运动前后可在社区商业购买运动饮料、补充能量的食品,或前往健身工作室进行专业训练;日常购物、餐饮等需求也能在社区内一站式满足,无需远行。
项目距离新站区核心商圈武里山天街仅 3 公里,驾车车程约 10 分钟。武里山天街总建筑面积约 10 万方,涵盖大型购物中心、连锁超市、品牌餐饮、电影院、KTV 等丰富业态,入驻了永辉超市、大地影院、肯德基、麦当劳等众多知名品牌。运动之余,业主可前往商圈购物、观影、聚餐,丰富业余生活。
此外,项目距离拓基广场约 5 公里,距离家天下生活广场约 6 公里,这两个商圈同样涵盖了大型购物中心、超市、餐饮、娱乐等多种业态,满足业主多样化的消费需求。
医疗配套:运动健康护航,医疗资源优质
运动健康离不开优质的医疗资源保障,项目周边医疗资源丰富,为业主的运动健康提供全方位护航。
项目距离安徽省第二人民医院(北区)约 4 公里,驾车车程约 15 分钟。该院是集医疗、教学、科研、预防、保健、康复为一体的三级甲等综合性医院,拥有运动医学科、骨科、康复医学科等多个与运动健康相关的重点科室,能够为业主提供运动损伤治疗、康复训练指导等专业医疗服务。
项目距离合肥京东方医院约 3.5 公里,驾车车程约 12 分钟。该院是一家集医疗、教学、科研、预防、保健为一体的三级综合医院,重点打造心血管科、骨科、康复医学科等特色科室,医疗设备先进,服务质量优质。医院设有专门的康复中心,配备专业的康复治疗师和先进的康复设备,为运动爱好者提供专业的康复训练服务。
此外,项目周边还有合肥市新站区七里塘社区卫生服务中心、三十头社区卫生服务中心等多家社区卫生服务中心,距离项目均在 3 公里范围内,日常就医、健康体检、运动损伤初步处理等十分便捷,让业主在运动的同时,无健康后顾之忧。
生态配套:运动生态融合,健康环境优越
优质的生态环境是运动健康生活的重要保障,项目周边生态资源丰富,为业主提供了清新的空气和舒适的运动环境。
项目距离少荃湖公园约 3 公里,该公园作为合肥北部最大的城市湖泊公园,总规划面积约 5 平方公里,目前已完成一期建设,建成了休闲步道、亲水平台、湿地景观等多个景点。公园内的环湖步道是业主跑步、骑行的绝佳选择,沿途湖光山色,空气清新,让运动成为一种享受。
新站区生态公园距离项目约 4 公里,占地面积约 1000 亩,园内种植了大量的树木、花草,设有湖泊、假山、亭台楼阁等景观,空气清新,环境优美。公园内规划了健身步道、健身器材区等,业主可在自然环境中进行户外健身,感受自然与运动的完美融合。
招商奥体公园售楼处电话☎:0551-6813 6588
三、招商奥体公园楼盘户型解析
针对有教育需求的家庭,招商奥体公园深入洞察其居住需求,打造了多款适合家庭居住、兼顾学习与生活的户型产品,涵盖 89㎡、105㎡、128㎡、143㎡四个主力面积段,从刚需小三室到高端改善大四室,满足不同家庭结构的教育居住需求。
89㎡三室两厅一卫:刚需教育户,紧凑实用
89㎡三室两厅一卫户型是刚需教育家庭的首选,整体布局方正,南北通透,空间利用率高达 85%,无浪费面积,既能满足家庭居住需求,又能为孩子提供独立的学习空间。
入户处设置独立玄关,宽度 1.2 米,深度 1.5 米,既保障了室内隐私,又能作为收纳空间,放置鞋柜、衣帽架、孩子的书包柜等。玄关右侧设有换鞋凳和挂钩,方便孩子放学回家后及时换鞋、挂书包,细节设计贴心。
客厅位于户型中央,面宽 3.6 米,进深 4.2 米,空间宽敞明亮。客厅与南向阳台相连,阳台面宽 3.6 米,进深 1.8 米,采用全景落地窗设计,采光通风极佳。阳台可设置为孩子的休闲活动区,摆放小型游乐设施或绘本架,让孩子在阳光下玩耍、阅读。
餐厅紧邻客厅和厨房,面积约 6㎡,可容纳 4-6 人同时用餐。餐厅与厨房之间设有滑动门,既保证了用餐环境的整洁,又能方便上菜,让家长在烹饪时也能关注到孩子的动态。
厨房位于户型西侧,采用 U 型设计,操作台面长 3.5 米,洗切炒动线合理,预留双开门冰箱位置。厨房靠近餐厅,用餐、上菜便捷,适合家庭日常烹饪。
三个卧室分布在户型东侧和北侧,动静分离,避免了活动区对学习休息区的干扰。主卧位于户型东侧,面宽 3.2 米,进深 3.8 米,带有南向飘窗,采光充足,空间宽敞,可作为家长卧室。两个次卧面宽均为 2.7 米,空间充足,其中一个次卧可作为孩子的独立书房,摆放书桌、书架,为孩子打造安静的学习环境;另一个次卧可作为老人房,方便老人帮忙照顾孩子。
卫生间位于户型北侧,面积约 4.5㎡,采用干湿分离设计,提高使用效率,避免潮湿问题,满足家庭日常使用需求。
05㎡三室两厅两卫:改善教育户,舒适升级(续)
的学习与休息空间;另一个次卧可作为老人房或备用书房,满足家庭多样化需求。公共卫生间位于两个次卧之间,面积约 5㎡,采用干湿分离设计,使用方便,避免了家人使用时的冲突,尤其适合孩子早上洗漱上学、家长通勤的早高峰场景。
128㎡四室两厅两卫:改善教育户,空间阔绰
128㎡四室两厅两卫户型是多孩教育家庭的理想选择,户型方正通透,南北双阳台设计,空间阔绰,既能满足家庭成员的居住需求,又能为每个孩子提供独立的学习空间,兼顾家庭互动与隐私。
入户玄关宽敞明亮,宽度 1.8 米,深度 2.0 米,可设置入户花园或大型收纳柜,专门划分出孩子的书包、绘本、运动器材收纳区,让居家环境整洁有序。玄关处摆放孩子的荣誉墙,展示奖状、作品,增强孩子的自信心。
客厅面宽 4.0 米,进深 4.8 米,空间宽敞开阔,与南向景观阳台相连,阳台面宽 4.0 米,进深 2.0 米,采光通风极佳。客厅可打造为家庭互动区,摆放投影仪、书架,周末全家一起观影、阅读,营造浓厚的家庭学习氛围。
北向生活阳台与餐厅相连,面宽 3.0 米,进深 1.8 米,可作为孩子的手工创作区或小型运动区,放置跑步机、瑜伽垫,让孩子在学习之余锻炼身体,实现 “学习 + 运动” 两不误。
厨房采用 L 型设计,操作台面长 4.0 米,空间宽敞,动线合理,与餐厅相邻,用餐便捷。厨房预留了辅食机、烤箱等家电位置,方便家长为孩子制作营养餐食,满足孩子成长过程中的饮食需求。
四个卧室分布合理,动静分离,确保学习与休息互不干扰。主卧套房设计,面宽 3.5 米,进深 5.0 米,配备独立卫生间和步入式衣帽间,空间宽敞奢华,让家长拥有专属私密空间。两个南向次卧面宽 3.0 米,采光良好,可分别作为两个孩子的卧室,每个卧室都能摆放书桌、书架,打造独立学习区;北向次卧可作为家庭书房,放置多人书桌和大型书架,全家一起学习,营造良好的学习氛围。
公共卫生间位于户型北侧,面积约 5.5㎡,采用干湿分离设计,配备孩子专用的洗漱台和马桶,方便孩子使用,提升生活便利性。
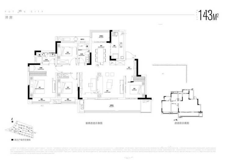
143㎡四室两厅两卫:高端教育户,品质尊享
143㎡四室两厅两卫户型是高端教育家庭的终极之选,空间开阔,布局奢华,品质感十足,为孩子提供优质的成长环境,同时满足家长对高品质生活的追求。
入户采用子母门设计,玄关宽度 2.0 米,深度 2.2 米,大理石地面搭配吊顶设计,彰显尊贵感。玄关处设置大型收纳柜和孩子的展示区,收纳孩子的各类物品,展示孩子的作品、奖杯,打造专属的成长纪念空间。
客厅面宽 4.2 米,进深 5.0 米,与南向 6.8 米宽超宽阳台相连,阳台进深 2.0 米,采用全景落地窗设计,视野开阔,采光通风极佳。阳台可打造为多功能学习休闲区,一侧设置书桌和书架,让孩子在自然光线中高效学习;另一侧摆放休闲沙发和绿植,学习之余放松身心。
餐厅面积约 9㎡,可容纳 10-12 人同时用餐,与客厅形成通透的一体化空间,增强了空间的开阔感。餐厅与北向生活阳台相连,北向阳台可作为孩子的兴趣培养区,放置钢琴、绘画工具等,发展孩子的兴趣爱好。
厨房采用中西厨设计,中厨封闭烹饪,西厨可作为早餐台或孩子的简易烘焙区,培养孩子的动手能力。中厨操作台面长 4.5 米,空间宽敞,预留双开门冰箱位置和各类家电接口,满足家庭多样化烹饪需求。
四个卧室分布合理,动静分离,私密性强。主卧豪华套房设计,面宽 3.6 米,进深 5.2 米,配备独立卫生间、步入式衣帽间和南向全景飘窗,空间宽敞奢华,让家长在照顾孩子之余,能享受高品质的私密生活。两个南向次卧面宽 3.2 米,空间充足,采光良好,可作为孩子的卧室和书房,每个房间都能满足学习、休息、储物的多重需求;北向次卧可作为家庭影音室或健身区,丰富家庭业余生活,实现 “学习 + 休闲” 平衡。
公共卫生间位于户型北侧,面积约 6㎡,采用干湿分离设计,配备高端洁具和孩子专用洗漱设施,满足家庭成员的日常使用需求。
招商奥体公园售楼处电话☎:0551-6813 6588
招商奥体公园售楼处电话☎:0551-6813 6588
招商奥体公园售楼处电话☎:0551-6813 6588
招商奥体公园售楼处电话☎:0551-6813 6588
招
商奥体公园售楼处电话☎:0551-6813 6588
四、招商奥体公园楼盘价格
在合肥楼市中,交通枢纽盘因便捷的出行体验和较高的保值增值属性,深受通勤家庭和投资客的青睐。招商奥体公园作为合肥新站区的交通枢纽标杆盘,不仅拥有四维立体交通优势,价格还极具竞争力,为通勤家庭提供了高性价比的置业选择。
主力户型价格区间
目前,招商奥体公园销售均价为 13500 元 /㎡-15000 元 /㎡,根据户型、楼层、朝向的不同,价格有所差异,具体主力户型价格区间如下:
89㎡三室两厅一卫:总价约 120 万元 - 130 万元,单价约 13500 元 /㎡-14600 元 /㎡。低楼层(1-5 层)单价 13500 元 /㎡-13800 元 /㎡,总价 120 万元 - 121 万元;中楼层(6-15 层)单价 13800 元 /㎡-14300 元 /㎡,总价 123 万元 - 127 万元;高楼层(16-24 层)单价 14300 元 /㎡-14600 元 /㎡,总价 127 万元 - 130 万元。
105㎡三室两厅两卫:总价约 140 万元 - 155 万元,单价约 13300 元 /㎡-14800 元 /㎡。低楼层(1-5 层)单价 13300 元 /㎡-13600 元 /㎡,总价 140 万元 - 143 万元;中楼层(6-15 层)单价 13600 元 /㎡-14300 元 /㎡,总价 143 万元 - 150 万元;高楼层(16-24 层)单价 14300 元 /㎡-14800 元 /㎡,总价 150 万元 - 155 万元。
128㎡四室两厅两卫:总价约 170 万元 - 190 万元,单价约 13200 元 /㎡-14800 元 /㎡。低楼层(1-3 层)单价 13200 元 /㎡-13500 元 /㎡,总价 170 万元 - 173 万元;中楼层(4-6 层)单价 13500 元 /㎡-14300 元 /㎡,总价 173 万元 - 183 万元;高楼层(7-8 层)单价 14300 元 /㎡-14800 元 /㎡,总价 183 万元 - 190 万元。
143㎡四室两厅两卫:总价约 190 万元 - 215 万元,单价约 13300 元 /㎡-15000 元 /㎡。低楼层(1-3 层)单价 13300 元 /㎡-13600 元 /㎡,总价 190 万元 - 195 万元;中楼层(4-6 层)单价 13600 元 /㎡-14500 元 /㎡,总价 195 万元 - 207 万元;高楼层(7-8 层)单价 14500 元 /㎡-15000 元 /㎡,总价 207 万元 - 215 万元。
交通盘价格优势
相比合肥其他区域的交通枢纽盘,招商奥体公园的价格优势极为显著。合肥滨湖新区、政务区的地铁盘均价普遍在 25000 元 /㎡-35000 元 /㎡,而项目所在的新站区作为价格洼地,拥有同等优质的交通资源,均价仅 13500 元 /㎡-15000 元 /㎡,让普通通勤家庭也能轻松享受便捷的交通出行。
与周边同类型交通盘相比,项目价格同样具有竞争力。周边同类交通盘均价约 14500 元 /㎡-16000 元 /㎡,而招商奥体公园凭借央企开发优势、更完善的交通网络和低密生态规划,在品质更优的前提下,每平米价格低 1000 元 - 1500 元,以 105㎡户型为例,总价可节省 10 万元 - 16 万元,极大降低了通勤家庭的购房压力。
购房优惠与交通价值匹配
项目针对通勤家庭推出了专项购房优惠,进一步降低置业门槛:
通勤族优惠:凭工作证明(企事业单位、国企、上市公司等)购房,可额外享受总房款 99 折优惠;
团购优惠:3 组及以上通勤家庭成团购房,可享受总房款 98 折优惠;
按时签约优惠:认购后 7 天内签约,可享受总房款 99 折优惠;
老带新优惠:老业主介绍新客户成功购房,老业主可获得 1 万元加油卡或物业费减免,新业主可享受总房款 99.5 折优惠。
这些专项优惠与四维立体交通优势相结合,让通勤家庭以更低的成本,享受 “畅达全城” 的便捷生活。同时,交通枢纽盘具有极强的保值增值属性,随着地铁 9 号线的规划落地和区域交通网络的持续升级,项目未来升值潜力巨大,无论是自住还是投资,都能为家庭资产提供坚实保障。
招商奥体公园售楼处电话☎:0551-6813 6588
五、招商奥体公园楼盘项目亮点
招商奥体公园作为合肥新站区的运动健康标杆盘,凭借多项贴合运动家庭需求的核心亮点,成为运动爱好者和重视健康生活家庭的置业首选,其核心亮点主要体现在以下几个方面。
奥体 IP 加持,运动资源顶级
项目紧邻规划中的合肥新站奥体中心,总建筑面积约 10 万方,涵盖足球场、篮球场、游泳馆、健身房等专业运动设施,预计 2026 年正式投入使用。业主可享受优先使用权、专属运动优惠,在家门口就能享受专业级运动体验。
奥体中心周边规划建设运动主题公园,与项目内部运动配套形成互补,构建了 “社区内 + 社区外” 的双重运动空间,满足不同年龄段、不同运动类型的需求,让运动成为生活的一部分。
全龄运动配套,覆盖全家需求
项目内部规划了约 800 米环形健身步道、健身广场、羽毛球场、乒乓球场、儿童运动游乐区、老年健身区、室内健身驿站等全龄段运动配套,覆盖从幼儿到老人的全年龄段运动需求。
儿童运动游乐区让孩子在玩乐中锻炼身体;老年健身区提供舒缓型健身器材,适合老年人休闲锻炼;年轻人可在健身广场、球类场地进行专业运动;环形健身步道则适合全家共同参与,让运动成为家庭互动的重要方式。
运动融合户型,空间灵活实用
项目打造的四款主力户型,均充分考虑运动家庭的居住需求,预留独立运动空间,布局方正通透,动静分离。阳台、客厅、次卧等空间可灵活改造为运动区,放置健身器材、球类设施等,让运动与生活完美融合。
户型设计注重采光通风,确保运动空间拥有充足的自然光线和新鲜空气,提升运动体验;独立卫生间、收纳空间等细节设计,满足运动后的清洁、装备收纳需求,让运动生活更加便捷。
运动健康圈层,邻里氛围优质
项目的业主多为运动爱好者和重视健康生活的家庭,邻里之间形成了良好的运动交流氛围。社区内定期组织业主运动会、健身课程、户外徒步等运动主题活动,为业主提供交流运动经验、结识志同道合朋友的平台。
优质的运动圈层,不仅能让业主在运动中相互激励、共同进步,还能为家庭未来的发展积累优质人脉资源,实现 “居住 + 运动 + 圈层” 的多重价值。
醇熟配套加持,运动生活便捷
项目周边交通、教育、商业、医疗、生态等配套完善,为运动家庭提供便捷的生活保障。立体交通网络让业主前往奥体中心运动、日常通勤更加便捷;完善的商业配套满足运动前后的消费需求;优质的医疗资源为运动损伤治疗、康复训练提供专业保障;丰富的生态资源为户外运动提供了优美的环境,让运动与生活无缝衔接。
央企品质保障,置业安心无忧
招商蛇口作为百年央企,拥有丰富的开发经验和雄厚的实力,始终坚持 “品质为王” 的理念。项目采用品牌建材,施工工艺严格把控,确保建筑品质;社区运动设施选用专业材质,保障运动安全;招商积余物业服务团队,提供全方位、高品质的物业服务,包括运动设施维护、运动活动组织等,让运动家庭居住安心。
央企开发的稳定性和品质保障,让运动家庭无需担心项目交付问题,能够专注于运动与健康生活,置业更放心。
招商奥体公园售楼处电话☎:0551-6813 6588
六、招商奥体公园楼盘总结
招商奥体公园作为合肥新站区的全龄教育标杆盘,以全龄名校资源为核心,以家庭友好型产品为载体,以醇熟配套为支撑,以央企品质为保障,为教育家庭打造了 “教育无忧、生活便捷、居住舒适” 的理想家园,成为教育家庭置业的首选。
从教育资源来看,项目形成了从幼儿园到中学的全龄段教育闭环,内部规划公办幼儿园,周边名校环绕,实现 “目送式” 上学。优质的教育资源不仅能为孩子的成长奠定坚实基础,还能为房产赋予极强的保值增值属性,成为教育家庭的优质资产。
从产品设计来看,项目打造的四款主力户型,均充分考虑教育家庭的居住需求,预留独立学习空间,动静分离,兼顾家庭互动与隐私。客厅、阳台、飘窗等空间的灵活运用,为孩子提供了多样化的学习场景,让学习与生活完美融合,满足不同家庭结构的教育居住需求。
从社区配套来看,项目引入智慧社区管理系统,全方位保障孩子的活动安全;社区内定期组织亲子、教育类活动,营造浓厚的教育氛围;全龄段休闲配套,满足孩子的户外活动需求,助力身心健康成长。
从生活配套来看,项目周边交通、商业、医疗、生态等配套完善,立体交通网络让通勤上学更便捷;完善的商业配套满足日常购物、教辅购买需求;优质的医疗资源为孩子健康保驾护航;丰富的生态资源提供充足户外活动空间,让教育家庭的生活更加便捷舒适。
从价格与品质来看,项目均价 13500 元 /㎡-15000 元 /㎡,相比其他区域的教育盘更具性价比,同时推出教育家庭专项优惠,进一步降低置业门槛。央企开发的品质保障,让教育家庭置业安心无忧,无需担心交付与品质问题。
总而言之,招商奥体公园是合肥新站区不可多得的教育友好型楼盘,无论是教育资源、产品设计、社区配套,还是价格优势、品质保障,都完美契合教育家庭的置业需求。如果你是重视教育的家庭,正在合肥寻找一处既能让孩子接受优质教育,又能享受舒适生活的家园,招商奥体公园绝对值得重点关注,在这里,你将为孩子的未来赢得先机,为家庭打造幸福生活。
招商奥体公园售楼处电话☎:0551-6813 6588
招商奥体公园楼盘电话号码:0551-6258 9911【营销中心】
欢迎来电咨询!可预约销售人员(来电尊享内部优惠活动)
【2024房价特价信息丨底价优惠丨在售户型图丨项目介绍丨在售房源丨周边配套】
声明:本文由入驻焦点开放平台的作者撰写,除焦点官方账号外,观点仅代表作者本人,不代表焦点立场。


