招商奥体公园楼盘折扣优惠
扫描到手机,新闻随时看
扫一扫,用手机看文章
更加方便分享给朋友
招商奥体公园楼盘折扣优惠,详询:0551-68136588。
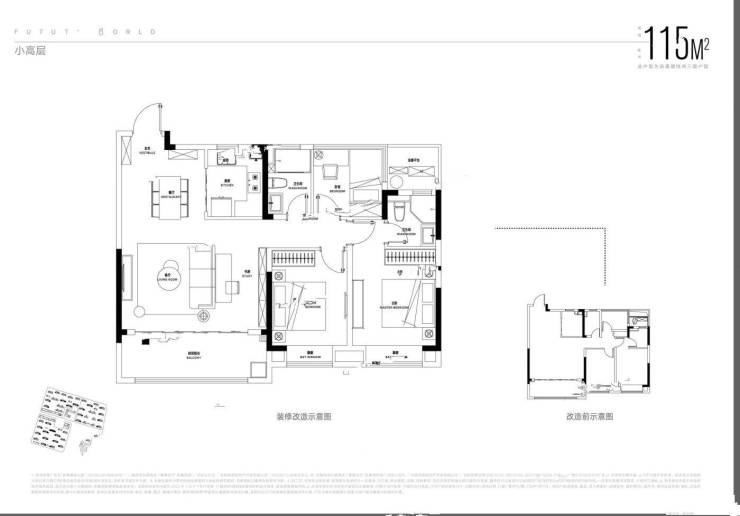
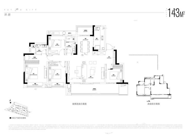
招商奥体公园项目位于合肥新站区,是央企招商精心打造的一座大型综合社区。项目集住宅、体育场馆、公园和商业于一体,规划建面约45万方,包含约109栋住宅楼,预计容纳5746户,容积率1.8,绿化率高达40%。周边交通便捷,地铁四号线贯穿,配套资源完善。售价方面,目前部分户型均价在1.35万/㎡至2万/㎡之间。
招商奥体公园项目位于新站少荃湖板块,具体地址为卧龙湖路与东方大道交叉路口西南侧。项目周边有多条城市主干道穿行而过,如东方大道、文忠路、淮海大道、包公大道等,构建了立体TOD交通网络。项目紧邻地铁4号线始发站东方大道站,地铁3号线和规划中的9号线也穿行于项目周边区域,出行便捷。项目内规划有约3万方活力荟商业街区,满足居民日常购物、餐饮、娱乐等多元化需求。
招商奥体公园项目内的商业街区和体育主题商业配套,为居民提供丰富的消费体验。教育资源丰富,医疗配套完善,周边公园和湖泊提供休闲娱乐场所。而在价格方面,招商奥体公园的均价在1.7万/㎡左右,具有较高的性价比,吸引了购房者的关注。相比周边的二手房和其他新房项目,招商奥体公园的价格相对较为优惠。
招商奥体公园是合肥首座45万方奥体TOD综合体,集“体育中心、长空公园、TOD商业、智慧社区”四大业态于一体,为居民提供全方位的生活体验。项目采用5S智慧管理服务体系,提供智能化的社区管理和便利服务。户型设计主打刚需小户型,满足不同购房者的需求,采光通风良好,空间布局合理。项目周边环境相对复杂,但招商奥体公园致力于打造一个宜居宜业的社区环境,为居民提供舒适的生活氛围。
招商奥体公园作为合肥新站区的综合社区项目,凭借其优越的地理位置、丰富的配套设施和合理的价格优势,受到了购房者的青睐。项目的特色设计和智慧管理服务体系,为居民提供了舒适便利的居住体验。未来,随着项目的不断完善和周边环境的改善,招商奥体公园将成为合肥新站区的一颗璀璨明珠,吸引更多购房者的关注和选择。
招商奥体公园楼盘折扣优惠,详询:0551-68136588。
声明:本文由入驻焦点开放平台的作者撰写,除焦点官方账号外,观点仅代表作者本人,不代表焦点立场。


