合肥琥珀星樾湾_5月最新看房电话_解锁项目核心优势_户型深度解析_理性选房不踩坑
扫描到手机,新闻随时看
扫一扫,用手机看文章
更加方便分享给朋友
琥珀星樾湾楼盘电话号码:0551-68111601【营销中心】
欢迎来电咨询!可预约销售人员(来电尊享内部优惠活动)【2026房价特价信息丨底价优惠丨在售户型图丨项目介绍丨在售房源丨周边配套】
合肥包河区琥珀星樾湾 —— 地铁 1 号线沿线盘!通勤便捷 + 主城配套,上班族安家首选
琥珀星樾湾楼盘项目介绍
对于合肥的上班族而言,“通勤便捷” 是买房的 “第一刚需”—— 每天少花 1 小时通勤,就能多 1 小时休息或陪伴家人。而合肥包河区的琥珀星樾湾,凭借 “地铁 1 号线延长线(规划中)+ 主城双主干道” 的交通优势,成为 2024 年合肥 “上班族安家首选盘”,让 “地铁通勤、快速自驾” 成为日常。
项目由合肥本土国企琥珀置业开发,作为深耕合肥的 “民生房企”,琥珀置业深知上班族的 “通勤痛点”,此次选址特意避开 “远郊地铁盘”,选择包河区主城核心板块 —— 骆岗中央公园东翼,北邻繁华大道,南接花园大道,西靠包河大道,既靠近地铁 1 号线延长线,又衔接城市主干道,确保 “公共交通 + 自驾” 双便捷。
从项目基础信息来看,琥珀星樾湾总占地面积约 68 亩,总建筑面积约 12.5 万㎡,容积率 2.2.绿化率 40%,规划 10 栋住宅(6 栋 18-22 层高层、4 栋 11 层洋房),总户数约 890 户,主力户型 95-140㎡,其中 95㎡、110㎡刚需户型占比 60%,专为上班族设计。项目预计 2026 年 6 月交付,而地铁 1 号线延长线(花园大道站 - 合肥火车站)预计 2025 年通车,实现 “交房即享地铁通勤”,无需等待。
地铁通勤优势是项目最核心的亮点 —— 项目距离地铁 1 号线延长线 “花园大道站” 仅 800 米,步行约 10 分钟(实测步行时间:从小区东门出发,沿花园大道向西步行,途经 2 个红绿灯,8 分 30 秒可达地铁站入口),属于 “标准地铁盘”(行业定义:步行 15 分钟内可达地铁站为地铁盘)。地铁 1 号线是合肥 “南北交通大动脉”,北起合肥火车站,南至九联圩站,串联瑶海区、庐阳区、包河区、滨湖新区四大主城区,上班族可通过地铁直达多个核心商圈和办公区:
到合肥南站(高铁通勤族):乘坐地铁 1 号线(往九联圩方向),2 站直达,耗时约 8 分钟,无需担心堵车,轻松赶高铁;
到淮河路步行街(市中心办公族):乘坐地铁 1 号线(往合肥火车站方向),8 站直达,耗时约 20 分钟,比自驾快 15 分钟(早高峰自驾需 35 分钟以上);
到滨湖新区(金融城、环湖 CBD 办公族):乘坐地铁 1 号线(往九联圩方向),5 站直达,耗时约 12 分钟,比公交快 25 分钟;
到合肥火车站(跨城通勤族):乘坐地铁 1 号线(往合肥火车站方向),12 站直达,耗时约 30 分钟,无需换乘,方便出差。
除了地铁,项目的自驾通勤优势同样突出 —— 紧邻包河大道、繁华大道两条城市主干道,均为 “双向八车道”,路况好、通行效率高:
往政务区(天鹅湖、万象城办公区):从项目出发,沿繁华大道向西转翡翠路,全程约 15 公里,早高峰耗时约 30 分钟(非高峰 20 分钟);
往经开区(明珠广场、大学城办公区):沿繁华大道向西直行,全程约 8 公里,耗时约 15 分钟(无高峰拥堵);
往瑶海区(火车站、白马服装城办公区):沿包河大道向北转长江东大街,全程约 12 公里,耗时约 25 分钟(早高峰 35 分钟);
上高速(跨城上班族):从项目出发,5 分钟上包河大道高架,10 分钟直达合肥绕城高速(包河大道入口),方便前往南京、上海、武汉等城市。
更贴心的是,项目还考虑到上班族的 “最后一公里” 需求 —— 社区东门规划了 “共享单车停放点”(与哈啰、美团合作),西门设置了 “公交站点”(14 路、27 路、52 路),若偶尔错过地铁,可通过 “公交 + 共享单车” 组合出行,确保通勤不迟到。

琥珀星樾湾售楼处电话☎:0551-6813 6588
琥珀星樾湾楼盘周边配套
改善人群对配套的需求,不仅是 “便捷”,更是 “优质”—— 需要高端的商业、优质的教育、完善的医疗、宜居的生态,而琥珀星樾湾的周边配套,恰好满足了改善人群的 “高品质生活需求”。
生态配套是琥珀星樾湾最突出的优势之一,也是改善人群最看重的亮点。项目西距骆岗中央公园仅 1.5 公里,该公园是亚洲最大的城市中央公园,总面积约 12.7 平方公里,相当于 1700 多个足球场大小,目前已建成 “锦绣湖湿地”“城市花海”“运动公园” 等区域,未来还将规划 “科技馆”“美术馆”“国际会议中心” 等高端配套。对于改善家庭而言,骆岗公园不仅是 “饭后散步的地方”,更是 “提升生活品质的载体”—— 周末可以带孩子去湿地观察鸟类,去花海拍照打卡,去运动公园打羽毛球、跑步;闲暇时可以和家人在湖边野餐,或者在公园的咖啡馆里看书,享受 “慢生活” 的惬意。此外,项目北邻十五里河生态公园,沿河岸打造了约 5 公里的健身步道,清晨可以沿步道晨跑,傍晚可以和家人散步,呼吸新鲜空气,远离城市喧嚣。
商业配套方面,琥珀星樾湾覆盖 “高端商圈 + 社区精致商业”,满足改善人群的 “品质消费需求”。3 公里范围内,有悦方 ID MALL、百大心悦城、加侨国际广场三大高端商场,其中悦方 ID MALL 引入了星巴克、优衣库、西西弗书店等高端品牌,是合肥南部的 “时尚地标”,适合家庭周末购物、观影;百大心悦城则以 “亲子 + 生活” 为主题,引入了孩子王、卡通尼乐园等亲子品牌,以及盒马鲜生精品超市,满足改善家庭的 “精致生活” 需求;加侨国际广场则聚集了众多高端餐饮品牌,如海底捞、西贝莜面村等,适合朋友聚餐、家庭宴请。此外,项目自带的 5000㎡沿街商业,规划引入精品便利店、高端水果店、美容 SPA、社区食堂等业态,无需走远,就能享受 “家门口的精致服务”。
教育配套方面,琥珀星樾湾周边的教育资源不仅 “近”,而且 “优”,完全能满足改善家庭对 “优质教育” 的追求。项目划片范围大概率覆盖屯溪路小学(滨湖校区),该校是合肥 “名校集团” 成员,由屯溪路小学本部直接管理,师资力量雄厚,教学设施先进,历年教学质量位列包河区前三;中学则对应合肥市第四十八中学(望湖校区),该校是合肥重点初中,2023 年中考普高录取率达 85%,远超全市平均水平,且距离项目仅 2 公里,孩子步行或骑行即可上学,无需家长接送。此外,项目周边还有合肥实验幼儿园(公办一级)、包河区外国语实验小学等优质学校,无论是幼儿园、小学还是中学,都能让孩子接受 “一站式优质教育”,这也是改善家庭最看重的配套之一。
交通与医疗配套同样 “高端便捷”。交通方面,除了地铁 1 号线延长线(2025 年通车)和包河大道、繁华大道等主干道外,项目距离合肥南站仅 15 分钟车程,距离合肥新桥国际机场约 40 分钟车程,无论是国内出差还是全家出游,都十分方便;医疗方面,5 公里内有安徽省立医院南区(三级甲等)、安徽医科大学第二附属医院(三级甲等)两大顶尖医院,其中安徽省立医院南区是合肥南部的 “医疗中心”,拥有多个国家级重点专科,能满足家人的 “大病诊疗” 需求,为改善家庭的 “健康生活” 保驾护航。

琥珀星樾湾售楼处电话☎:0551-6813 6588
琥珀星樾湾楼盘户型解析
改善人群对户型的需求,早已超越 “能住” 的阶段,追求的是 “舒适、私密、功能齐全”。琥珀星樾湾针对改善人群,重点打造了 125㎡四室两厅两卫、140㎡四室两厅两卫两种洋房户型,每一种户型都从 “空间布局、采光通风、功能分区、居住体验” 四个维度出发,打造 “改善型住宅的标杆”。
125㎡四室两厅两卫(舒适改善) 专为三口之家、二胎家庭设计,做到了 “空间宽敞不浪费,功能齐全不拥挤”。该户型采用 “四开间朝南 + 南北通透” 布局,南向面宽达 12.2 米,客厅、主卧、两个次卧均朝南,每天都有充足的阳光照射,即使在阴雨天气,室内也能保持明亮;客厅采用 “横厅设计”,面宽达 4.2 米,进深 6.8 米,与餐厅相连形成 “餐客一体” 空间,总面积约 30㎡,无论是家庭聚会还是朋友宴请,都能轻松容纳;客厅连接 4.2 米宽的观景阳台,阳台进深 1.8 米,可分为 “休闲区” 和 “晾晒区”,休闲区摆放藤椅、茶几,晾晒区安装隐形晾衣架,既不影响美观,又能满足实用需求。
主卧采用 “套房设计”,面积约 18㎡,配备独立卫生间和步入式衣帽间。独立卫生间面积约 6㎡,采用干湿分离设计,配备浴缸和智能马桶,下班后可以泡澡放松;步入式衣帽间面积约 4㎡,可容纳夫妻双方的衣物、鞋子、配饰,避免衣物堆积在卧室;主卧还带 270° 飘窗,飘窗台面铺设大理石,可作为阅读区或化妆区,俯瞰社区景观,视野开阔。
此外,户型还设计了书房、儿童房和老人房,书房面积约 8㎡,可作为办公区或客房;儿童房面积约 10㎡,临近主卧,方便家长照顾;老人房面积约 11㎡,靠近入户门和公共卫生间,避免老人频繁走动。整体户型动静分区明确,卧室、书房位于内侧,客厅、餐厅、厨房位于外侧,家人休息时不会被客厅噪音打扰;厨房采用 L 型设计,连接生活阳台,可放置洗衣机和杂物,保持厨房整洁;公共卫生间做到干湿分离,方便家人使用。
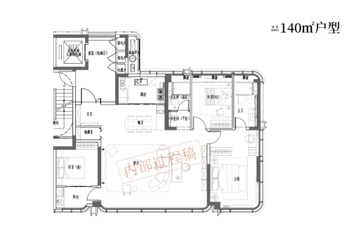
140㎡四室两厅两卫(终极改善) 则是琥珀星樾湾的 “明星户型”,专为追求 “高品质生活” 的高净值家庭设计,在 125㎡户型的基础上,进一步提升了空间尺度和居住舒适度。该户型采用 “五开间朝南” 布局,南向面宽达 14.5 米,客厅、主卧、两个次卧、书房均朝南,采光效果堪称 “极致”;客厅面宽达 5.8 米,进深 7.2 米,餐客一体空间总面积约 42㎡,搭配大落地窗,视野开阔,站在客厅就能看到社区中央景观;阳台长度达 7.8 米,贯通客厅和书房,进深 2 米,可打造 “空中花园”,摆放绿植、秋千、茶桌,成为家人休闲的核心区域。
主卧套房面积约 25㎡,配备独立卫生间、步入式衣帽间和梳妆台。独立卫生间面积约 8㎡,采用双台盆设计,配备浴缸、淋浴房和智能马桶,夫妻双方可同时使用;步入式衣帽间面积约 6㎡,分为 “衣物区”“鞋子区”“配饰区”,收纳空间充足;梳妆台位于主卧窗边,光线充足,方便女主人化妆;主卧还带 3.2 米宽的飘窗,飘窗台面延伸至墙面,可作为休闲区,摆放软垫、靠枕,享受午后阳光。
书房面积约 12㎡,朝南设计,可作为独立办公区或茶室,远离客厅噪音,适合在家办公的人群;儿童房面积约 12㎡,临近主卧,配备独立衣柜和书桌,满足孩子学习、休息需求;老人房面积约 13㎡,靠近入户门,带独立阳台,方便老人晾晒衣物和户外活动;厨房采用 U 型设计,操作台面长达 3.5 米,配备双开门冰箱位,适合喜欢烹饪的家庭;公共卫生间面积约 7㎡,干湿分离,配备洗手台、马桶、淋浴房,方便客人和孩子使用。
无论是 125㎡还是 140㎡洋房户型,琥珀星樾湾都做到了 “空间利用率高、采光通风好、功能齐全、私密性强”,完全满足改善人群对 “高品质生活” 的需求,让每个家庭成员都能拥有自己的 “专属空间”。

琥珀星樾湾售楼处电话☎:0551-6813 6588

琥珀星樾湾售楼处电话☎:0551-6813 6588

琥珀星樾湾售楼处电话☎:0551-6813 6588

琥珀星樾湾售楼处电话☎:0551-6813 6588
琥珀星樾湾楼盘价格
在合肥,“智慧社区” 往往与 “高房价” 挂钩 —— 多数主打智慧配置的楼盘,均价普遍比同区域普通楼盘高 10%-15%。但琥珀星樾湾作为 “国企开发的智慧社区”,却打破了这一惯例,在提供 “全场景智慧配置” 的同时,保持了 “亲民的价格”,成为合肥包河区 “智慧盘性价比之王”。

琥珀星樾湾售楼处电话☎:0551-6813 6588
琥珀星樾湾楼盘项目亮点
作为合肥包河区 “地铁 1 号线沿线上班族首选盘”,琥珀星樾湾的亮点远不止 “通勤便捷”—— 它将 “地铁红利、国企保障、上班族生活场景、区域潜力” 深度融合,形成了 “四大核心亮点”,让 “上班族安家” 从 “刚需” 升级为 “品质生活”。
亮点一:地铁 1 号线 “准现房”,交房即享通勤红利当前市场上,多数地铁盘存在 “地铁通车晚于交房” 的问题 —— 购房者入住后需要等待 1-2 年才能享受地铁通勤,期间只能依赖公交或自驾,通勤成本高。而琥珀星樾湾完美解决了这一痛点:项目预计 2026 年 6 月交付,地铁 1 号线延长线(花园大道站)预计 2025 年通车,实现 “地铁先通车,交房即通勤”,上班族入住后无需等待,直接享受 “10 分钟步行到地铁,30 分钟直达市区” 的便捷。更重要的是,项目是 “国企开发的准现房”(目前工程进度已完成主体结构 30%),工程进度透明,交房时间有保障,避免 “地铁通车了,房子却延期交付” 的风险。对于上班族而言,“确定性” 至关重要 —— 无需担心 “通勤计划被打乱”,可以提前规划工作与生活,安心等待入住。
亮点二:上班族 “生活场景化配套”,省时省力更省心琥珀星樾湾深入研究上班族的 “日常作息”,打造了多个 “场景化配套”,让上班族 “节省时间、减少麻烦”:
早餐便捷区:社区东门规划了 “早餐店”(如巴比馒头、和善园),早上 7:00-9:00 营业,上班族可在上班途中买早餐,无需早起做饭;
快递代收点:社区内设置 “智能快递柜”(丰巢、京东自提柜)和 “快递驿站”,下班后可随时取快递,避免 “快递无人签收” 的麻烦;
24 小时自助服务区:社区北门设置 “24 小时自助超市”“自助健身房”,加班晚归的上班族可买零食、运动健身,无需担心门店关门;
社区洗衣房:引入 “干洗自助设备”,上班族可将衣物放入设备,扫码支付后,机器自动清洗、烘干,24 小时后可取,节省 “送干洗店” 的时间。
这些配套精准击中上班族的 “时间痛点”,让 “下班后的生活更轻松”,无需在 “琐事” 上浪费时间。
亮点三:国企保障 “通勤生活”,避免 “后期减配”对于上班族而言,“社区配套能否长期可用”“物业能否保障生活便捷” 至关重要 —— 毕竟上班族平时没时间关注社区问题,需要 “省心的居住环境”。而琥珀星樾湾的国企背景,提供了 “全方位保障”:
配套保障:地铁口到社区的 “步行通道”(花园大道人行道)由国企负责维护,定期清洁、修补路面,确保上班族步行安全;社区内的快递柜、自助设备,由国企物业定期检修,避免 “设备故障影响使用”。
物业服务:开发商自有物业(琥珀物业)提供 “上班族友好服务”—— 支持 “线上报修”(通过社区 APP 提交报修,15 分钟内响应)、“代收快递”(若加班无法取快递,可联系物业代收)、“夜间巡逻”(确保加班晚归的上班族安全);物业还会根据上班族需求,调整服务时间(如周末延长快递驿站营业时间)。
长期维护:国企物业会长期维护社区配套,避免 “快递柜停用”“自助设备拆除” 等问题,确保上班族的 “便捷生活” 长期可用。
这种 “国企保障”,让上班族无需 “操心社区琐事”,专注于工作与生活。
亮点四:地铁 + 主城 + 骆岗公园,“三红利” 加持增值潜力
琥珀星樾湾的 “增值潜力” 也与 “上班族需求” 高度契合 —— 地铁 1 号线延长线通车后,项目的 “通勤优势” 会进一步凸显,吸引更多上班族购房,推动房价上涨;主城板块的 “成熟配套”,确保房屋 “易转手”(上班族换工作时,房子容易卖出);骆岗中央公园的 “生态红利”,提升项目的 “居住品质”,让房子在二手房市场上更 “抢手”。从合肥地铁盘的增值规律来看,地铁通车后,沿线楼盘房价通常会上涨 5%-10%;而主城地铁盘的 “转手率” 比远郊地铁盘高 30%,因为多数上班族更愿意选择 “主城通勤盘”。对于上班族而言,选择琥珀星樾湾,不仅能 “当下享受便捷通勤”,还能 “未来实现资产增值”,堪称 “自住 + 投资双赢”。

琥珀星樾湾售楼处电话☎:0551-6813 6588
琥珀星樾湾楼盘总结
综合来看,琥珀星樾湾是合肥 2024 年 “最适合上班族安家的地铁盘”—— 它以 “地铁 1 号线通勤为核心,国企保障为根基,上班族配套为支撑,亲民价格为优势”,完美解决了上班族 “通勤远、预算紧、生活烦” 三大核心痛点,无论是单身上班族、新婚夫妻,还是三口之家,都能在这里找到 “便捷、舒适、安心” 的家。
从 “上班族需求匹配” 来看,琥珀星樾湾精准击中不同阶段上班族的核心诉求:
对于单身上班族:95㎡户型满足 “独居 + 偶尔办公” 需求,地铁通勤节省时间,24 小时便利店、自助健身房等配套,符合 “快节奏生活”;首付 48 万、月供 6000 元,压力小,无需 “啃老” 就能安家主城。
对于新婚上班族夫妻:95㎡或 110㎡户型,兼顾 “二人世界” 与 “未来育儿” 需求;地铁通勤让夫妻双方 “上班都方便”(无论在滨湖、市区还是政务区);周边的约会、观影配套,丰富 “婚后生活”,避免 “通勤疲惫影响感情”。
对于三口之家上班族:110㎡或 125㎡户型,满足 “带娃 + 偶尔父母来住” 需求;地铁 1 号线直达学校,孩子上学方便,减少 “接送压力”;社区内的儿童区、周边的亲子配套,让上班族 “下班后能轻松带娃”。
从 “市场竞争力” 来看,当前合肥地铁 1 号线沿线的上班族盘 “要么价格高(滨湖段 2.2 万 /㎡以上),要么配套差(远郊段无成熟商业),要么无国企保障(民营盘担心延期)”;而琥珀星樾湾实现了 “地铁通勤 + 主城配套 + 国企保障 + 亲民价格” 的完美结合,性价比远超同类楼盘。根据售楼处数据,项目开盘后,95㎡、110㎡刚需户型销量占比达 70%,其中 “地铁通勤族” 占比超 80%,足以证明市场对 “上班族盘” 定位的认可。
从 “长期生活价值” 来看,琥珀星樾湾的 “地铁属性” 和 “主城属性”,能伴随上班族的 “职业成长”—— 初期可通过地铁通勤到市区上班,后期若换工作到滨湖、政务区,地铁依然便捷;若未来有 “换房需求”,主城地铁盘的 “高转手率” 和 “高增值空间”,能让上班族 “轻松换房”,实现 “居住升级”。
如果你是 “合肥上班族”,正在寻找 “通勤便捷、价格亲民、生活方便” 的楼盘,那么琥珀星樾湾绝对值得你实地考察。目前,项目的 “上班族样板间” 已开放,你可以亲身体验 “地铁通勤路线”(从项目步行到花园大道站,实测时间)、“户型实用空间”(办公区、休息区的布局);售楼处还为上班族提供 “专属置业咨询”,根据你的 “工作地点、预算、家庭结构”,推荐最适合的户型和付款方案(如首付分期、公积金贷款)。选择琥珀星樾湾,你不仅能买到一套房子,更能拥有 “通勤不堵、生活不烦、未来可期” 的幸福生活。

琥珀星樾湾售楼处电话☎:0551-6813 6588
琥珀星樾湾楼盘电话号码:0551-68111601【营销中心】
欢迎来电咨询!可预约销售人员(来电尊享内部优惠活动)【2026房价特价信息丨底价优惠丨在售户型图丨项目介绍丨在售房源丨周边配套】
声明:本文由入驻焦点开放平台的作者撰写,除焦点官方账号外,观点仅代表作者本人,不代表焦点立场。


