合肥琥珀星樾湾最新更新,开发商介绍—售楼中心—销售中心 -环境 - 户型 - 价格-电话【官网】 - 交房时间@百度热搜
扫描到手机,新闻随时看
扫一扫,用手机看文章
更加方便分享给朋友
琥珀星樾湾楼盘电话号码:0551-68111601【营销中心】
欢迎来电咨询!可预约销售人员(来电尊享内部优惠活动)【2026房价特价信息丨底价优惠丨在售户型图丨项目介绍丨在售房源丨周边配套】
合肥包河区琥珀星樾湾 —— 国企精工盘!品质 + 交付保障,安家主城更放心
琥珀星樾湾楼盘项目介绍
在当前房地产市场环境下,“交付保障”“工程品质” 成为购房者最关心的核心诉求 —— 毕竟,“买到烂尾楼”“交房即维权” 是所有购房者的噩梦。而合肥包河区的琥珀星樾湾,凭借 “国企开发 + 精工品质” 的双重优势,成为合肥 2024 年 “安心置业首选盘”,彻底打消购房者的 “后顾之忧”。
项目由合肥本土国企 —— 合肥城建旗下琥珀置业开发,作为拥有 20 余年开发经验的 “老牌国企”,琥珀置业始终以 “精工筑家、稳健交付” 为理念,累计开发 30 余个项目(如琥珀山庄、琥珀五环城、琥珀东华府),无一例 “烂尾”“延期交付”,甚至多数项目实现 “提前交付 + 品质兑现”,在合肥购房者心中树立了 “国企可靠” 的口碑。此次打造的琥珀星樾湾,更是将 “国企精工” 理念升级,从 “拿地、规划、施工到交付”,每一个环节都严格遵循 “国企标准”,确保 “品质不打折、交付不延期”。
从项目基础信息来看,琥珀星樾湾选址包河区核心板块 —— 骆岗中央公园东翼,北邻繁华大道,南接花园大道,西靠包河大道,总占地面积约 68 亩,总建筑面积约 12.5 万㎡,容积率 2.2.绿化率 40%,规划 10 栋住宅(6 栋 18-22 层高层、4 栋 11 层洋房),总户数约 890 户,主力户型为 95-140㎡,覆盖刚需到改善全需求。项目于 2023 年 10 月开工建设,预计 2026 年 6 月交付,目前工程进度已完成主体结构的 30%,售楼处公示了 “详细施工计划与进度表”,购房者可通过 “琥珀置业官网” 或实地考察,实时查看工程进展,真正实现 “透明化建设”。
“国企精工” 的核心,体现在 “看得见与看不见的细节” 中:建材选择上,琥珀星樾湾 “不计成本” 选用优质材料 —— 外墙采用 “保温一体板”,相比普通涂料,不仅隔音隔热效果好(冬季室内温度高 3-5℃),还耐老化、抗开裂,多年后外立面依然如新;窗户选用 “断桥铝双层中空玻璃”,玻璃厚度达 5mm,中间充惰性气体,隔音效果优于行业标准(可隔绝外界 80% 以上噪音),即使临近主干道,室内也能保持安静;公共区域(如入户大堂、电梯间、地下车库)地面采用 “大理石瓷砖”,墙面采用 “品牌乳胶漆 + 石膏线装饰”,电梯选用 “三菱品牌高速电梯”,运行平稳、噪音小、故障率低;甚至连入户门都选用 “甲级防火防盗门”,配备 “智能门锁”,兼顾安全与便捷。
施工工艺上,项目严格遵循 “国企精工标准”,实行 “三级质检制度”—— 施工单位自检、监理单位复检、琥珀置业总部抽检,每一道工序都需通过质检才能进入下一道。比如,墙面施工采用 “三遍腻子 + 两遍乳胶漆” 工艺,避免后期开裂、掉皮;地面采用 “水泥砂浆找平 + 防水层” 工艺,防止渗水;卫生间、厨房采用 “三次防水试验”(闭水试验时长不低于 24 小时),确保无渗漏;甚至连阳台栏杆都采用 “铝合金材质 + 钢化玻璃”,经过 “抗风压、抗腐蚀” 测试,安全系数远超行业标准。此外,项目还引入 “智慧工地系统”,通过摄像头实时监控施工过程,确保施工规范,避免 “偷工减料”。
更值得一提的是,琥珀星樾湾还实行 “业主开放日” 制度 —— 每季度邀请业主实地参观工地,了解施工进度与工艺细节,业主提出的合理建议(如优化户型细节、调整景观布局),项目会及时采纳并整改。这种 “透明化、互动式” 的建设模式,让购房者 “亲眼看到品质、亲身感受进度”,进一步增强 “安家信心”。

琥珀星樾湾售楼处电话☎:0551-6813 6588
琥珀星樾湾楼盘周边配套
对于 “国企精工盘” 而言,“品质” 不仅体现在楼盘本身,更体现在 “周边配套的成熟度”—— 毕竟,购房者买的不仅是 “一套房子”,更是 “一种便捷的生活”。琥珀星樾湾所处的包河区核心板块,配套已 “完全成熟”,无需等待 “规划落地”,入住即可享受 “交通、商业、教育、医疗、生态” 全方位便捷生活,与 “国企品质” 形成 “强强联合”。
交通配套:双主干道 + 地铁,通勤无忧项目位于 “包河大道 + 繁华大道” 两大城市主干道交汇处,这两条道路均为 “双向八车道”,路况好、通行效率高。从项目自驾出发,5 分钟可上包河大道高架,15 分钟直达合肥南站(高铁站),20 分钟抵达滨湖新区(融创茂、滨湖湿地公园),30 分钟可到政务区(天鹅湖、万象城)、经开区(明珠广场),无论是日常通勤还是跨区出行,都十分便捷。公共交通方面,项目距离地铁 1 号线延长线(规划中,2025 年通车)花园大道站仅 800 米,步行约 10 分钟,未来地铁通车后,可直达合肥火车站、淮河路步行街、滨湖新区,无需担心堵车;此外,项目周边 1 公里内有 14 路、27 路、52 路、902 路等 6 条公交线路,覆盖合肥火车站、政务区、经开区等区域,满足老人、孩子等不同人群的出行需求。
商业配套:3 公里内三大商圈,购物便利琥珀星樾湾的商业配套 “近可享社区便民商业,远可拥大型商圈”,完全满足日常消费与品质消费需求。项目自带约 5000㎡沿街商业,规划引入 “生鲜超市、便利店、药店、餐饮店、母婴店” 等便民业态,下楼即可解决 “买菜、购物、吃饭、买药” 等日常需求,尤其适合上班族、老人 —— 早上出门买个早餐,晚上下班买个菜,无需绕远路。3 公里范围内,有悦方 ID MALL、百大心悦城、加侨国际广场三大 “一站式购物中心”,涵盖 “购物、餐饮、影院、亲子娱乐、健身” 等全业态:
悦方 ID MALL 距离项目约 2 公里,是合肥南部的 “时尚地标”,引入了优衣库、星巴克、西西弗书店、永辉超市、万达影城等品牌,适合周末带家人购物、观影;
百大心悦城距离项目约 2.5 公里,以 “亲子 + 生活” 为主题,引入了孩子王、卡通尼乐园、盒马鲜生(精品超市)、海底捞等品牌,适合带娃休闲、家庭聚餐;
加侨国际广场距离项目约 3 公里,聚集了众多餐饮品牌(如西贝莜面村、老乡鸡、星巴克),还有健身房、KTV 等娱乐场所,适合朋友聚会、休闲放松。
教育配套:15 年一贯制优质教育圈,孩子上学无忧对于有孩子的家庭而言,“教育配套” 是买房的核心考量,而琥珀星樾湾周边的教育资源 “既近又优”,形成 “15 年一贯制教育圈”。项目 3 公里内有 5 所幼儿园、3 所小学、2 所中学,其中多为 “合肥优质公办学校”:
幼儿园:距离项目最近的是 “包河区实验幼儿园”(约 500 米),为公办一级幼儿园,师资稳定、收费合理(公办幼儿园学费约 500 元 / 月),孩子步行即可入园,无需家长接送;
小学:项目划片范围大概率覆盖 “屯溪路小学(滨湖校区)”,该校是合肥 “名校集团” 核心成员,由屯溪路小学本部直接管理,师资力量雄厚、教学设施先进(配备多媒体教室、实验室、图书馆、操场),2023 年教学质量位列包河区前三,距离项目约 1.5 公里,孩子步行或骑行即可上学;
中学:对应 “合肥市第四十八中学(望湖校区)”,该校是合肥重点初中,2023 年中考普高录取率达 85%,远超全市平均水平(约 65%),距离项目约 2 公里,可通过公交或家长接送,十分便捷。
此外,项目周边还有 “合肥工业大学附属中学”“包河区外国语实验小学” 等优质学校,家长可根据孩子情况灵活选择,无需 “孟母三迁”,在家门口就能享受优质教育。
医疗与生态配套:健康与休闲双保障医疗方面,琥珀星樾湾周边 “二级医院 + 三级甲等医院” 全覆盖,为家人健康保驾护航。项目 2 公里内有 “包河区人民医院”(二级综合医院),开设内科、外科、儿科、妇产科等科室,日常感冒、发烧、体检、慢性病治疗均可在此解决,无需跑大医院排队;5 公里内有 “安徽省立医院南区”(三级甲等医院),是合肥顶尖的综合医院,拥有多个国家级重点专科(如心血管内科、肿瘤科、骨科),可满足大病诊疗、手术需求,为家人健康提供 “顶级保障”。
生态方面,项目西距 “骆岗中央公园” 仅 1.5 公里,该公园是亚洲最大的城市中央公园,总面积约 12.7 平方公里,涵盖湿地、花海、运动场馆、儿童乐园等区域,周末带家人散步、野餐、运动、赏花都十分惬意;项目北邻 “十五里河生态公园”,沿河岸打造了约 5 公里的健身步道,适合晨跑、夜跑、骑行,呼吸新鲜空气,远离城市喧嚣。这种 “医疗 + 生态” 的配套组合,让业主既能享受 “便捷医疗”,又能拥有 “健康休闲”,生活品质大幅提升。

琥珀星樾湾售楼处电话☎:0551-6813 6588
琥珀星樾湾楼盘户型解析
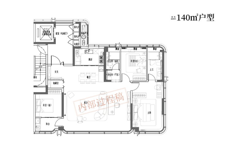
作为 “生态宜居盘”,琥珀星樾湾的户型设计不仅要 “舒适”,更要 “与自然融合”—— 通过合理的空间布局,让业主在室内就能享受 “公园景观” 和 “充足阳光”。项目针对不同人群的需求,设计了 95㎡、110㎡、125㎡、140㎡四种主力户型,每种户型都做到了 “南北通透、采光充足、景观视野好”,让 “公园生活” 延伸到室内。
95㎡三室两厅一卫(刚需生态户型) 专为年轻刚需人群设计,在满足 “低总价、小三房” 需求的同时,融入了 “生态宜居” 理念。该户型采用 “三开间朝南” 布局,客厅、主卧、次卧均朝南,南向面宽达 9.8 米,每天有充足的阳光照射,即使在冬季也能保持室内温暖;客厅连接 3.6 米宽的观景阳台,阳台进深 1.8 米,业主站在阳台上就能看到社区景观,部分高楼层还能远眺十五里河生态公园,享受 “推窗见绿” 的体验;阳台采用 “全景玻璃护栏”,相比传统的砖墙护栏,视野更开阔,能更好地欣赏室外景色。
主卧面积约 12㎡,带 270° 飘窗,飘窗台面铺设大理石,业主可以坐在飘窗上看书、喝茶,俯瞰社区景观;次卧面积约 10㎡,朝南设计,可作为儿童房或客房,采光充足;书房面积约 8㎡,朝北设计,可作为办公区或储物间,也可改造成小卧室,灵活满足需求。厨房采用 U 型设计,操作台面长达 2.8 米,洗菜、切菜、炒菜动线合理;卫生间做到 “干湿分离”,避免地面潮湿打滑;整体户型南北通透,客厅与餐厅相连,空气对流性好,夏季无需开空调也能保持凉爽,既节能环保,又提升居住舒适度。
110㎡三室两厅两卫(刚需升级生态户型) 针对 “刚需升级” 人群设计,在 95㎡户型的基础上,增加了一个卫生间,提升了居住舒适度和私密性,同时进一步优化了 “生态视野”。该户型采用 “三开间朝南 + 南北通透” 布局,南向面宽达 10.5 米,客厅、主卧、次卧朝南,书房、厨房朝北;客厅面宽达 3.9 米,连接 3.9 米宽的观景阳台,阳台进深 1.8 米,部分户型可看到骆岗公园的花海景观,视野极佳;客厅与餐厅形成 “竖厅” 设计,南北对流,空气流通性好,室内空气质量高。
主卧采用 “套房设计”,面积约 15㎡,配备独立卫生间和衣帽间。独立卫生间面积约 5㎡,干湿分离设计,方便业主使用;衣帽间面积约 3㎡,可容纳业主的衣物和配饰;主卧带 3.2 米宽的飘窗,飘窗朝向社区花园,业主可以在飘窗上欣赏花园景色,享受 “自然与生活的融合”。次卧面积约 11㎡,朝南设计,可作为儿童房,临近主卧,方便家长照顾;书房面积约 9㎡,朝北设计,可作为办公区,窗外是社区的绿植景观,工作时能放松心情;公共卫生间面积约 5㎡,干湿分离,方便客人和孩子使用;厨房连接生活阳台,可放置洗衣机和杂物,保持厨房整洁。
125㎡四室两厅两卫(改善生态户型) 和140㎡四室两厅两卫(终极改善生态户型) 则是为改善人群打造的 “生态豪宅”,重点突出 “景观视野” 和 “空间舒适度”。125㎡户型采用 “四开间朝南” 布局,南向面宽达 12.2 米,客厅、主卧、两个次卧朝南,书房朝北;客厅面宽达 4.2 米,连接 4.2 米宽的观景阳台,阳台进深 1.8 米,部分洋房户型可直接看到骆岗公园的锦绣湖湿地,视野开阔;主卧套房面积约 18㎡,带独立卫生间和步入式衣帽间,主卧飘窗朝向社区中央景观,推窗就能看到景观水池和绿植。
140㎡户型则采用 “五开间朝南” 布局,南向面宽达 14.5 米,客厅、主卧、两个次卧、书房均朝南;客厅面宽达 5.8 米,连接 7.8 米长的贯通式阳台,阳台进深 2 米,业主可以在阳台上摆放藤椅、茶桌、绿植,打造 “空中花园”,部分高楼层户型可远眺骆岗公园全景,享受 “把家安在公园里” 的体验;主卧套房面积约 25㎡,配备独立卫生间、步入式衣帽间和梳妆台,主卧飘窗宽 3.2 米,朝向骆岗公园方向,清晨醒来就能看到公园的美景,开启一天的好心情。
无论是刚需户型还是改善户型,琥珀星樾湾都做到了 “让自然融入生活”,通过合理的空间布局和景观设计,让业主在室内就能享受 “公园景观” 和 “新鲜空气”,真正实现 “生态宜居” 的生活理念。

琥珀星樾湾售楼处电话☎:0551-6813 6588

琥珀星樾湾售楼处电话☎:0551-6813 6588

琥珀星樾湾售楼处电话☎:0551-6813 6588

琥珀星樾湾售楼处电话☎:0551-6813 6588
琥珀星樾湾楼盘价格
对于改善人群而言,买房不仅要看 “价格”,更要看 “价值”—— 是否值得为 “低密洋房、优质配套、国企品质” 支付这个价格。而琥珀星樾湾的价格,恰好体现了 “高价值 + 高性价比”,在包河区改善市场中极具竞争力。

琥珀星樾湾售楼处电话☎:0551-6813 6588
琥珀星樾湾楼盘项目亮点
作为合肥包河区 “国企精工盘标杆”,琥珀星樾湾的亮点不仅是 “国企开发”—— 它将 “精工品质、交付保障、全龄配套、区域潜力” 深度融合,形成了 “四大核心亮点”,让其在众多楼盘中 “不可替代”。
亮点一:国企精工,从 “建材到工艺” 全维度品质把控这是琥珀星樾湾最核心的亮点,也是 “国企盘” 的灵魂。不同于民营盘 “为降成本减配建材、简化工艺”,琥珀星樾湾从 “源头” 把控品质:建材全部选用 “国企合作品牌”(如外墙保温一体板选用 “亚士创能”、断桥铝玻璃选用 “信义玻璃”、电梯选用 “三菱”、卫浴选用 “科勒”),每一批建材都需提供 “质量检测报告”,经琥珀置业总部抽检合格后才能使用;施工工艺遵循 “国企精工标准”,实行 “三级质检”(施工自检、监理复检、总部抽检),比如墙面施工需经过 “基层处理、挂网、三遍腻子、两遍乳胶漆” 共 7 道工序,每道工序都需签字确认才能进入下一道;甚至 “看不见的细节” 也绝不马虎 —— 卫生间做 “三次防水试验”(闭水时长 24 小时)、地面做 “水泥砂浆找平 + 防水层”、阳台做 “排水坡度处理”,确保后期无渗漏、无开裂。这种 “全维度品质把控”,让业主无需担心 “交房即维权”,住得更安心。
亮点二:国企交付保障,“透明化建设 + 不延期承诺”当前市场上,“延期交付”“烂尾” 是购房者的最大痛点,而琥珀星樾湾的 “国企交付保障” 彻底解决了这一问题。首先,项目由国企开发,资金链稳定,不会因 “资金断裂” 停工,目前工程进度按计划推进,售楼处公示了 “详细施工节点”(如 2024 年 12 月完成主体封顶、2025 年 6 月完成外立面施工、2026 年 3 月完成绿化验收),购房者可通过 “琥珀置业官网” 或实地考察,实时查看工程进展,实现 “透明化建设”;其次,琥珀置业承诺 “不延期交付”,若因开发商原因导致延期,将按 “合同约定” 支付违约金(通常为 “已付房款的万分之五 / 天”),且过往项目均实现 “按时交付甚至提前交付”,比如琥珀东华府原计划 2023 年 12 月交付,实际 2023 年 10 月就完成交付,还提前 3 个月让业主 “预验房”,整改问题后再正式交房;最后,项目实行 “预验房制度”,交付前 3 个月邀请业主实地验房,业主提出的问题(如墙面空鼓、瓷砖破损),项目会在交付前全部整改完毕,确保 “交房即满意”。
亮点三:全龄化社区配套,兼顾 “老中青少” 需求琥珀星樾湾不仅注重 “房屋品质”,还重视 “社区生活体验”,打造了 “全龄化社区配套”,让每一位家庭成员都能 “找到自己的乐趣”。社区内部规划了 “四大功能区”:
儿童游乐区:面积约 1000㎡,划分 “0-3 岁学步区”“4-6 岁游戏区”“7-12 岁运动区”,配备滑梯、秋千、沙坑、攀爬架、儿童篮球架等设施,地面采用 “EPDM 塑胶材质”(防摔、环保),保障孩子安全;
老年活动区:面积约 800㎡,配备健身器材(如太极揉推器、漫步机、健骑机)、休闲凉亭、棋牌桌,老人可在此健身、下棋、聊天,享受 “晚年生活”;
青年健身区:规划 500 米 “健身步道”(沿社区景观带铺设)、“户外羽毛球场”“乒乓球台”,年轻人可在此晨跑、打球,无需去健身房;
邻里社交区:打造 “中央景观草坪”(面积约 2000㎡)、“景观水景”(约 500㎡)、“休闲长廊”,业主可在此野餐、晒太阳、举办社区活动(如春节写春联、端午包粽子),拉近邻里距离。
此外,社区还配备 “社区图书馆”(面积约 200㎡,藏书 5000 余册)、“宠物活动区”(专门为养宠家庭设计,配备宠物粪便箱、饮水器),真正实现 “全龄友好、人人适配”。
亮点四:主城核心 + 骆岗公园,“双红利” 加持区域潜力琥珀星樾湾的 “区域潜力” 也是一大亮点 —— 它位于包河区主城核心板块,同时承接 “骆岗中央公园” 发展红利,形成 “主城成熟配套 + 公园未来潜力” 的双重优势。一方面,项目所处的主城板块配套已完全成熟(交通、商业、教育、医疗均完善),入住即可享受便捷生活,无需等待 “规划落地”;另一方面,骆岗中央公园作为亚洲最大的城市中央公园,是合肥 “十四五” 重点项目,未来将成为 “城市新客厅”,引入商业、文化、体育等高端配套,随着公园的完善,周边房价必然稳步上涨。琥珀星樾湾距离骆岗公园仅 1.5 公里,是 “公园红利” 的直接受益者,未来增值空间巨大。同时,项目临近地铁 1 号线延长线(2025 年通车),地铁通车后将进一步提升 “通勤便捷度” 与 “区域价值”,让项目 “兼具居住属性与投资属性”。

琥珀星樾湾售楼处电话☎:0551-6813 6588
琥珀星樾湾楼盘总结
6.1 不同家庭需求匹配:精准契合全周期健康需求
琥珀星樾湾的绿色健康属性,能够精准匹配不同家庭在不同生命周期的健康需求,无论是刚需年轻家庭、二胎家庭,还是改善型家庭,都能在这里找到 “理想的健康之家”。
刚需年轻家庭:95㎡刚需健康户型,满足 “小三房” 的实用需求,环保建材(E0 级地板、立邦乳胶漆)保障新婚夫妻和未来孩子的居住健康,避免 “装修污染” 对身体的影响;首付 48 万、月供 6000 元,符合年轻家庭的预算承受能力,无需 “掏空六个钱包”;周边的地铁 1 号线(2025 年通车)、社区生鲜超市、休闲健身配套,适配年轻夫妻的快节奏生活 —— 早上地铁通勤上班,晚上社区健身或超市采购,周末带未来孩子到骆岗公园散步,轻松享受健康便捷的生活。
二胎家庭:125㎡改善健康户型,四室设计满足 “两个孩子 + 父母帮忙带娃” 的居住需求,两个儿童房均朝南,采光充足、空间独立,避免孩子因居住拥挤产生矛盾;老人房靠近入户门和公共卫生间,方便老人生活,紧急呼叫按钮和无障碍设计保障老人安全;社区内的儿童区、老年区、健身区,让每个家庭成员都有专属活动空间 —— 孩子在儿童区玩耍,老人在老年区健身,父母在健身区运动,全家各得其所,同时社区的绿色环境和健康配套,也能让孩子在健康的环境中成长,减少疾病风险。
改善型家庭:140㎡终极健康户型,11 层洋房的低密属性、5.8 米宽落地窗的生态视野、全屋新风系统的健康配置,满足改善家庭对 “高品质健康生活” 的追求;主卧套房 + 独立阳台 + 阳光书房,提供充足的私人空间,适合工作压力大的高净值人群放松身心;骆岗中央公园的远景和社区内的高绿化率,让居住体验堪比 “公园豪宅”;国企运维保障绿色配套长期升级,确保房子 “越住越舒适、越住越保值”,是改善家庭 “终极置业” 的理想选择。
6.2 市场竞争力:绿色健康盘里的 “性价比天花板”
在合肥包河区的绿色健康盘市场中,琥珀星樾湾凭借 “国企保障、高性价比、全配套” 的组合优势,成为 “性价比天花板”,远超同类竞品。当前包河区的绿色健康盘,主要存在三大痛点:一是 “民营盘减配风险”,部分民营绿色盘交付时存在建材品牌更换、健康配套停用等问题,业主维权困难;二是 “高端盘价格过高”,定位豪宅的绿色盘均价超 2.4 万 /㎡,刚需和普通改善家庭难以承受;三是 “远郊盘配套不足”,部分绿色盘位于远郊,周边缺乏商业、医疗、教育配套,入住后生活不便。而琥珀星樾湾完美解决了这些痛点:
国企开发,无减配风险:琥珀置业作为合肥本土国企,资金链稳定,工程质量和交付有保障,绿色健康配置全程透明,避免 “概念炒作” 和 “交付减配”;
均价 1.7-1.9 万 /㎡,性价比高:低于周边同类绿色盘 10%-20%,且所有绿色健康配置均为标配,无需额外付费,刚需和改善家庭均能承受;
主城核心,全配套覆盖:位于包河区主城,周边地铁、商业、教育、医疗、生态配套成熟,入住即可享受便捷健康生活,无需等待 “规划落地”。
根据售楼处数据,项目自开盘以来,绿色健康户型的销量占比达 80%,其中 30-45 岁的家庭购房者占比超 70%,这些人群正是 “健康生活的核心需求者”,他们更关注居住的健康属性和性价比,而琥珀星樾湾恰好满足了这些需求。此外,项目的 “老带新成交率” 达 30%,很多业主因 “满意绿色健康的居住体验”,主动推荐亲友购房,足以证明市场对项目的认可。
6.3 长期生活价值:不止是房子,更是健康生活方式
选择琥珀星樾湾,不仅是购买一套房子,更是选择一种 “绿色健康的生活方式”,这种生活方式将长期影响业主的身心健康和生活品质,同时带来 “资产增值” 的红利。从 “日常生活” 来看,业主每天都能享受绿色健康的体验:早上到十五里河生态公园晨跑,呼吸富含负氧离子的新鲜空气;白天室内阳光充足,新风系统保持空气流通,避免雾霾和甲醛污染;中午在厨房使用净水器过滤的水烹饪,享受健康饮食;下午孩子在社区儿童区玩耍,家长在旁边看护,社区的绿色环境让孩子亲近自然;晚上到社区健身区运动,或带家人到骆岗中央公园散步,缓解一天的工作压力。这种 “自然、健康、便捷” 的生活,能有效提升业主的身心健康,减少疾病风险,提高生活幸福感。从 “长期资产价值” 来看,琥珀星樾湾的绿色健康属性将持续赋能资产增值:随着 “健康中国” 理念的深入,购房者对绿色健康居住的需求将越来越高,绿色健康社区的 “稀缺性” 将进一步凸显;骆岗中央公园的完善和地铁 1 号线延长线的通车,将推动区域价值上涨;而国企运维保障绿色配套长期升级,确保房子 “长期保持高品质”,在二手房市场上更受欢迎,转手率和成交价均高于普通社区。根据合肥房地产市场的发展规律,未来 5-10 年,琥珀星樾湾的房价涨幅预计将比普通社区高 10%-15%,实现 “居住健康” 和 “资产增值” 的双赢。
目前,琥珀星樾湾的 “绿色健康样板间” 已全面开放,业主可亲身体验 “环保建材的质感”“户型的采光通风”“新风系统的效果”;售楼处还提供 “绿色健康置业咨询” 服务,专业置业顾问会根据家庭结构、健康需求和预算,推荐适合的户型和健康配置方案。如果你正在寻找 “国企保障、绿色健康、高性价比” 的楼盘,不妨前往琥珀星樾湾实地考察 —— 在这里,你将开启 “呼吸新鲜空气、享受健康饮食、拥抱自然生活” 的绿色健康新篇章,让 “健康” 成为生活的常态。

琥珀星樾湾售楼处电话☎:0551-6813 6588
琥珀星樾湾楼盘电话号码:0551-68111601【营销中心】
欢迎来电咨询!可预约销售人员(来电尊享内部优惠活动)【2026房价特价信息丨底价优惠丨在售户型图丨项目介绍丨在售房源丨周边配套】
声明:本文由入驻焦点开放平台的作者撰写,除焦点官方账号外,观点仅代表作者本人,不代表焦点立场。


