为什么越来越多的岳西人,要去合肥买房?
扫描到手机,新闻随时看
扫一扫,用手机看文章
更加方便分享给朋友
有人带你去看星星,有人带你去看月亮,
但是我不一样,我要带你去合肥看房。
我带你看的又不仅仅是房,是商机!
丨看房背景丨
1、截止到今年,岳西目前已无住宅库存,大多楼盘已经售馨;
2、岳西房价已创历史新高,全城价格已近6000元/㎡;
3、对比省城合肥,岳西各项基础设施,如商业、医疗、学区,与之差之甚远;
4、前年合肥房价上涨,众多业主房产一夜增值,合肥市作为省城,投资空间远大于岳西县。
5、 只要你想买,我们就陪你去
丨看房亮点丨
1、精品公寓 :较低成交单价仅8000元+/㎡
2、 主打户型:3室2厅2卫
3、层高:挑高4.5米
4、交通配套:西侧包河大道高架,东侧上海路高架,无缝对接地铁5号线黄河路站(在建)
5、教育配套:合肥实验学校西安路校区(九年制)、上海世界外国语学校
6、医疗配套:省立医院总院,上海长海医院(在建)
7、景观配套:茶主题公园、许小河景观带、方兴湖公园、塘西河公园、滨湖先进城
丨区位图丨

丨实拍样板房丨









项目地址:
合肥市省政府板块
由岳西微网、岳西房网专业置业顾问全程陪同看房,从岳西出发去合肥,只为分析南翔茗座的火爆原因及投资价值。
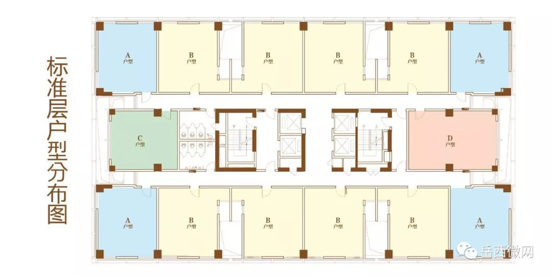
丨户型图丨




丨工地实拍丨

项目地址:
合肥市省政府板块
由岳西微网、岳西房网专业置业顾问全程陪同看房,从岳西出发去合肥,只为分析南翔茗座的火爆原因及投资价值。

(效果图)

声明:本文由入驻焦点开放平台的作者撰写,除焦点官方账号外,观点仅代表作者本人,不代表焦点立场。


