合肥琥珀星樾湾_售楼中心—热搜榜-楼盘资讯-动态 -图文评测-售价如何
扫描到手机,新闻随时看
扫一扫,用手机看文章
更加方便分享给朋友
琥珀星樾湾楼盘电话号码:0551-68111601【营销中心】
欢迎来电咨询!可预约销售人员(来电尊享内部优惠活动)【2025房价特价信息丨底价优惠丨在售户型图丨项目介绍丨在售房源丨周边配套】
合肥包河区琥珀星樾湾 —— 绿色健康社区!环保建材 + 生态配套,宜居生活新选择
琥珀星樾湾楼盘项目介绍
在 “健康中国” 理念深入人心的当下,购房者对 “居住健康” 的需求越来越高 —— 不仅要 “住得舒适”,更要 “住得健康”,比如呼吸新鲜空气、减少噪音干扰、使用环保建材。而合肥包河区的琥珀星樾湾,以 “绿色健康社区” 为核心定位,从 “建材选择、社区规划、户型设计” 三个维度,打造合肥 2024 年 “绿色健康宜居盘”,让 “健康生活” 融入居住的每一个细节。
项目由合肥本土国企琥珀置业开发,作为 “国家绿色建筑认证企业”,琥珀置业在绿色健康社区开发方面经验丰富,此前打造的琥珀蜀熙府、琥珀东华府等项目,均获得 “国家绿色建筑二星级认证”,以 “环保、健康、节能” 著称。此次打造的琥珀星樾湾,更是将 “绿色健康” 理念升级,严格按照 “国家绿色建筑二星级标准” 建设,总占地面积约 68 亩,总建筑面积约 12.5 万㎡,容积率 2.2.绿化率 40%,规划 10 栋住宅(6 栋高层、4 栋洋房),总户数约 890 户,主力户型 95-140㎡,覆盖刚需到改善全需求。
绿色建材选择是项目 “健康属性” 的核心 —— 琥珀星樾湾从 “源头” 保障居住健康,所有建材均选用 “环保、低污染、高性能” 的绿色材料,避免 “装修污染” 和 “长期健康隐患”:
外墙:采用 “亚士创能保温一体板”,该材料通过 “国家绿色建材认证”,不含甲醛、苯等有害物质,同时具备 “高保温、高隔音” 性能 —— 冬季室内温度比普通社区高 3-5℃,夏季低 2-3℃,减少空调使用;隔音效果达 40 分贝,可隔绝外界 80% 以上的噪音(如主干道车流声、社区活动声),室内更安静,有利于睡眠健康。
地面:室内地面采用 “圣象 E0 级实木复合地板”,甲醛释放量≤0.05mg/m³,远低于国家标准(≤0.124mg/m³),赤脚踩在地板上也安全;公共区域(入户大堂、电梯间)地面采用 “马可波罗防滑瓷砖”,无辐射、易清洁,避免细菌滋生。
门窗:选用 “信义断桥铝双层中空 Low-E 玻璃”,玻璃内填充惰性气体,不仅隔音隔热,还能阻挡 90% 以上的紫外线,避免家具褪色、皮肤晒伤;窗框采用 “粉末喷涂工艺”,不含重金属,环保无污染。
涂料:室内墙面采用 “立邦 E0 级乳胶漆”,甲醛释放量几乎为零,且具备 “抗菌功能”(可抑制大肠杆菌、金黄色葡萄球菌),减少室内细菌滋生,尤其适合有老人、孩子的家庭。
辅材:装修辅材(如胶水、腻子、密封胶)均选用 “绿色环保产品”,如 “东方雨虹环保胶水”“美巢 E0 级腻子”,确保 “看不见的细节” 也健康。
社区绿色规划进一步强化 “健康属性”—— 项目从 “空气、水质、噪音、绿化” 四个维度,打造 “全维度健康社区”:
空气健康:社区内种植 “净化空气型植物”,如樟树、桂花树、绿萝,可吸收甲醛、二氧化硫等有害气体,释放负氧离子,提升社区空气质量;社区安装 “空气质量监测设备”,实时监测 PM2.5、甲醛浓度,数据同步到社区 APP,业主可随时查看。
水质健康:社区引入 “中央净水系统”,对生活用水进行过滤(去除杂质、余氯、重金属),业主家中的自来水可直接饮用,避免 “桶装水二次污染”;社区景观水池采用 “循环净化系统”,定期更换水质,避免蚊虫滋生、水体发臭。
噪音控制:社区采用 “人车分流” 设计,地面无车辆通行,减少尾气污染和噪音干扰;社区边界种植 “降噪绿篱”(如侧柏、冬青),厚度达 2 米,可进一步隔绝外界噪音;儿童区、老人区与主干道保持 50 米以上距离,避免噪音影响休息。
绿化健康:社区绿化率高达 40%,种植 “四季常青、无毒无害” 的植物,避免使用 “有毒花卉”(如夹竹桃、一品红),确保老人、孩子接触安全;社区内设置 “阳光草坪”(不使用农药、化肥),业主可赤脚在草坪上活动,亲近自然。
这种 “从建材到社区” 的全维度绿色健康设计,让琥珀星樾湾区别于 “只做表面绿化” 的普通社区,真正实现 “健康居住”。

琥珀星樾湾售楼处电话☎:0551-6813 6588
琥珀星樾湾楼盘周边配套
对于上班族而言,“通勤便捷” 只是基础,“下班后的生活便捷度” 同样重要 —— 是否能快速买到菜、是否有地方健身、是否能方便约会,这些 “下班后的需求” 直接决定生活幸福感。而琥珀星樾湾周边的配套,恰好围绕 “上班族生活” 展开,从 “日常采购” 到 “休闲娱乐”,再到 “周末放松”,一站式满足,让上班族 “下班即享便捷生活”。
下班便捷采购:10 分钟内解决 “吃饭问题”上班族最头疼的就是 “下班后买菜做饭”—— 不想跑远路,又想买到新鲜食材。琥珀星樾湾周边 “社区商业 + 大型超市” 全覆盖,10 分钟内就能解决 “采购需求”:
社区便民商业:项目自带 5000㎡沿街商业,规划引入 “24 小时便利店”(如全家、罗森)、“生鲜超市”(如红府超市、谊品生鲜)、“快餐外卖店”(如老乡鸡、麦当劳)。下班后从地铁口出来,步行 5 分钟到社区超市,就能买到新鲜的蔬菜、水果、肉类,回家就能做饭;若不想做饭,可在便利店买速食,或在快餐店内堂食 / 外卖,10 分钟内解决 “吃饭问题”。
大型超市:距离项目 1.5 公里的 “悦方 ID MALL 负一楼永辉超市”,是合肥南部知名的 “平价大型超市”,涵盖生鲜、零食、日用品、家电等全品类,适合周末 “大宗采购”—— 周六下午乘坐地铁 1 号线(1 站到紫庐站),或自驾 5 分钟,就能一次性买齐一周的食材和日用品,避免工作日频繁采购。
农贸市场:距离项目 1 公里的 “望湖城农贸市场”,每天早上 6 点至晚上 7 点营业,蔬菜、水果、肉类均为 “农户直供”,新鲜且价格便宜,适合喜欢 “吃新鲜菜” 的上班族 —— 早上提前 10 分钟出门,在农贸市场买完菜再去地铁站,不耽误通勤;或下班后顺路购买,市场门口有免费停车位,停车方便。
下班后休闲:30 分钟内享受 “放松时光”上班族下班后需要 “放松解压”—— 健身、看电影、约会,这些需求在琥珀星樾湾周边 30 分钟内都能满足:
健身需求:项目自带 “社区健身区”(规划中,2025 年投入使用),配备跑步机、动感单车、哑铃等基础健身器材,下班后无需去健身房,下楼就能运动;若想享受专业健身服务,2 公里内的 “悦方 ID MALL 四楼金吉鸟健身” 和 “百大心悦城三楼英派斯健身”,均为连锁健身品牌,配备泳池、操房、私教区,可通过 “下班 + 健身 + 回家” 的路线,兼顾运动与休息。
观影需求:2 公里内的 “悦方 ID MALL 五楼万达影城” 和 “百大心悦城四楼大地影院”,均为合肥知名影院,上映影片与全国同步,配备 IMAX 厅、杜比全景声厅,适合下班后约朋友看电影;影院周边有星巴克、奈雪的茶等饮品店,看完电影可喝杯奶茶,放松心情。
约会需求:3 公里内的 “加侨国际广场美食街” 和 “悦方 ID MALL 餐饮区”,聚集了海底捞、西贝莜面村、烤肉、日料等各类餐饮品牌,适合与伴侣约会;广场内还有 KTV、密室逃脱、剧本杀等娱乐场所,周末可与朋友一起玩,缓解工作压力。
周末放松:1 小时内享受 “短途休闲”上班族周末需要 “彻底放松”—— 逛公园、购物、亲子游(若有孩子),琥珀星樾湾周边 1 小时内有多个 “休闲目的地”:
逛公园:距离项目 1.5 公里的 “骆岗中央公园”,是亚洲最大的城市中央公园,周末可带家人散步、野餐、赏花;距离项目 3 公里的 “十五里河生态公园”,沿河岸打造了骑行步道,适合骑行或晨跑,呼吸新鲜空气。
购物逛街:2 公里内的 “悦方 ID MALL”“百大心悦城”,涵盖优衣库、ZARA、H&M 等快时尚品牌,以及西西弗书店、无印良品等生活品牌,周末可逛商场买衣服、看书,享受 “慢生活”。
亲子游(有孩子的上班族):2.5 公里内的 “百大心悦城孩子王”“悦方 ID MALL 卡通尼乐园”,是合肥知名的亲子场所,可带孩子玩游乐设施、买玩具;距离项目 5 公里的 “合肥海洋世界”,适合周末带孩子参观,增进亲子感情。
此外,项目周边 1 公里内还有 “药店”(百姓缘大药房、国胜大药房)、“干洗店”(福奈特)、“理发店”(永琪、卡顿)等便民配套,上班族的 “日常琐事” 都能在周边解决,无需跨区奔波。

琥珀星樾湾售楼处电话☎:0551-6813 6588
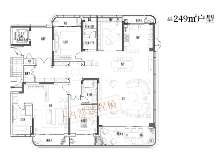
琥珀星樾湾楼盘户型解析
3.1 95㎡三室两厅一卫(刚需健康户型):小空间,全健康
该户型专为年轻刚需家庭设计,在 95㎡的紧凑空间内,将 “绿色健康” 理念融入每一个细节,既满足 “小三房” 的实用需求,又保障居住健康,适合新婚夫妻或三口之家。从 “采光通风” 来看,户型采用 “三开间朝南” 布局,南向面宽达 9.8 米,客厅、主卧、次卧均朝南,且每个南向空间都配备大尺寸窗户 —— 客厅窗户宽 3.6 米、高 2.1 米,主卧窗户宽 2.4 米、高 2.1 米,次卧窗户宽 2 米、高 2.1 米,确保每天上午 9 点至下午 4 点,室内有充足的阳光照射。阳光不仅能提升室内温度(冬季可减少空调使用),还能杀菌消毒,降低室内细菌滋生风险。北向的厨房和卫生间均设置 “明窗”,厨房窗户宽 1.5 米、高 1.8 米,卫生间窗户宽 1 米、高 1.8 米,与南向窗户形成 “对流”,空气流通性极佳,夏季无需开空调,仅靠自然通风就能保持室内凉爽,减少 “空调病” 风险。在 “功能分区” 上,户型严格遵循 “健康动线” 设计。客厅与餐厅采用 “一体化设计”,总面积约 16㎡,空间开阔不压抑,避免 “密闭空间导致的憋闷感”;客厅地面采用 “圣象 E0 级实木复合地板”,甲醛释放量≤0.05mg/m³,赤脚踩在上面也安全,有孩子的家庭可放心让孩子在客厅玩耍。厨房采用 “U 型布局”,操作台面长达 2.8 米,“洗菜 - 切菜 - 炒菜” 动线合理,且厨房靠近入户门和生活阳台,油烟可通过 “明窗 + 品牌抽油烟机” 快速排出(抽油烟机排风量达 18m³/min,远超行业平均水平),避免油烟扩散至客厅和卧室,减少 “油烟污染导致的呼吸道问题”。卫生间采用 “干湿分离” 设计,淋浴区与洗漱区用玻璃隔断分隔,地面铺设 “马可波罗防滑瓷砖”(防滑系数≥0.6),避免老人、孩子滑倒;卫生间安装 “科勒抗菌马桶”(可抑制 99% 的大肠杆菌和金黄色葡萄球菌)和 “防雾镜柜”(避免洗漱时镜面起雾,减少细菌滋生),进一步提升健康属性。“健康细节” 设计更是贴心。主卧带 270° 全景飘窗,飘窗台面采用 “天然大理石”(无辐射、易清洁),宽度达 1.5 米,业主可在飘窗上放置靠枕和小茶几,打造 “阳光阅读角”,每天享受自然光照的同时放松身心。次卧预留 “儿童房健康收纳区”,墙面安装 “可拆卸书架” 和 “防尘玩具柜”,玩具柜采用 “透气网纱门”,避免玩具积灰滋生细菌;次卧地面铺设 “环保地垫”,孩子可在地上玩耍,无需担心着凉或接触有害物质。书房面积约 8㎡,可改造成 “健身角”,摆放瑜伽垫、哑铃等小型健身器材,利用南向采光进行晨练,既节省去健身房的时间,又能呼吸新鲜空气。此外,户型所有墙面均采用 “立邦 E0 级乳胶漆”,甲醛释放量几乎为零,且具备 “抗菌功能”,从源头保障室内空气健康。
3.2 125㎡四室两厅两卫(改善健康户型):大空间,深健康
该户型专为二胎家庭或三代同堂家庭设计,125㎡的四室空间,结合 “全龄健康” 理念,兼顾 “私密性” 与 “健康需求”,让每个家庭成员都能享受舒适健康的居住体验。“采光通风” 是该户型的核心优势之一。户型采用 “四开间朝南 + 南北双阳台” 布局,南向面宽达 12.2 米,客厅、主卧、两个次卧均朝南,客厅连接 4.2 米宽的观景阳台(阳台进深 1.8 米),主卧带 3.2 米宽的飘窗,北向书房连接 1.5 米宽的生活阳台,形成 “穿堂风” 效果 —— 夏季打开南北阳台的窗户,空气可在室内快速流通,每小时换气 2-3 次,保持室内空气新鲜;冬季关闭阳台窗户,南向阳光可照射至客厅中央,室内温度比普通户型高 3-5℃,减少空调使用。所有房间均为 “明房”,无暗角,比如北向书房窗户宽 2 米、高 2.1 米,公共卫生间窗户宽 1.2 米、高 1.8 米,确保每个空间都有阳光照射和新鲜空气流通,避免 “暗房导致的潮湿、异味问题”。“全龄健康功能区” 设计更是精准契合家庭需求。主卧采用 “套房设计”,面积约 18㎡,配备独立卫生间和步入式衣帽间 —— 独立卫生间安装 “智能马桶(抗菌除臭 + 温水冲洗)”“恒温花洒(水温稳定在 38℃,避免水温骤变导致感冒)” 和 “双台盆(台面宽度 1.2 米,夫妻双方可同时洗漱,减少拥挤)”;卫生间墙面采用 “抗菌瓷砖”,地面铺设 “防滑地砖”,并设置 “紧急呼叫按钮”(连接物业中控室,突发情况时可一键求助)。步入式衣帽间采用 “透气实木板材”,安装 “防潮灯带”(避免衣物发霉)和 “分区收纳格”(可分类存放衣物、鞋子、配饰),保持衣物干燥整洁。老人房位于入户门旁,靠近公共卫生间,房间预留 “无障碍通道”(门洞宽度 1.1 米,方便轮椅进出),地面采用 “防滑地板”(防滑系数≥0.7),床头设置 “夜灯插座”(夜间自动亮起柔和灯光,避免老人起夜摔倒);老人房窗户宽 2 米、高 2.1 米,配备 “可调节遮阳帘”,老人可根据需求调节光线,保护视力。两个儿童房均朝南,面积分别为 11㎡和 10㎡—— 大儿童房(11㎡)摆放 1.5 米床 + 书桌 + 衣柜,书桌靠近窗户,采光充足,适合学龄儿童学习;小儿童房(10㎡)摆放 1.2 米床 + 玩具收纳架,墙面采用 “可擦洗环保涂料”(孩子涂鸦后可轻松擦拭),窗户安装 “限位器”(最大开启宽度 10cm,防止孩子攀爬),打造安全健康的成长空间。“绿色生活细节” 贯穿整个户型。厨房采用 “L 型布局”,操作台面长达 3.2 米,预留 “嵌入式洗碗机(可高温杀菌,减少细菌滋生)” 和 “净水器接口”(可安装全屋净水器,过滤水中的重金属和杂质);厨房墙面采用 “防油瓷砖”,油污可轻松擦拭,减少清洁负担;厨房连接北向生活阳台,阳台内设置 “垃圾分类桶”(分为厨余垃圾、可回收物、有害垃圾、其他垃圾)和 “小型绿植架”(可种植薄荷、绿萝等净化空气的植物),实现 “烹饪 - 清洁 - 环保” 一体化。客厅预留 “空气净化器摆放位” 和 “新风系统接口”,业主可后期加装全屋新风系统(建议选择带 PM2.5 过滤功能的型号),进一步提升室内空气质量;客厅地面采用 “大理石瓷砖”(无辐射、易清洁),搭配 “环保地毯”(减少孩子摔倒时的冲击力),兼顾健康与安全。
3.3 140㎡四室两厅两卫(终极健康户型):低密宽境,健康顶配
该户型为 11 层洋房产品,得房率达 85%(高层得房率约 78%),结合洋房 “低密、安静、视野好” 的优势,打造 “终极健康居住体验”,适合追求高品质生活的改善型家庭。“生态视野” 是该户型的独特优势。户型采用 “五开间朝南” 布局,南向面宽达 14.5 米,客厅搭配 “5.8 米宽落地窗”(落地窗高度 2.4 米,采用信义双层中空 Low-E 玻璃,可阻挡 90% 以上的紫外线),直面社区中央景观带和骆岗中央公园远景 —— 从客厅望去,社区的樱花巷道、中央草坪、景观水池尽收眼底,远处骆岗公园的花海和湿地隐约可见,视野开阔,心情舒畅。洋房楼间距达 55 米,无遮挡采光,每天日照时长比高层多 2-3 小时(冬季可达 6-7 小时),室内温暖明亮,减少潮湿和霉菌滋生;社区内种植的樟树、桂花树等植物,可通过窗户飘入淡淡的香气,提升居住舒适度。“健康功能升级” 让居住体验更上一层楼。主卧套房面积约 25㎡,配备 “独立卫浴 + 步入式衣帽间 + 阳光书房”—— 独立卫浴内安装 “恒温浴缸(可调节水温,缓解疲劳)”“智能镜柜(带除雾功能 + 收纳空间,避免洗漱用品堆积滋生细菌)” 和 “双台盆(台面采用天然大理石,无辐射)”;卫浴地面铺设 “防滑地砖”,并设置 “防滑扶手”(方便老人使用)。阳光书房与主卧相连,面积约 8㎡,书房窗户宽 2.4 米、高 2.1 米,业主可在书房内阅读、办公或冥想,享受安静的私人空间;书房内可摆放 “空气净化器” 和 “绿植”,进一步提升空气质量。两个次卧均带 “独立阳台”(阳台宽度 1.5 米,进深 1.8 米),业主可在阳台上打造 “私人绿植角”,种植多肉、绿萝、吊兰等净化空气的植物,也可放置休闲桌椅,享受户外风光。公共卫生间采用 “三分离设计”(洗漱区、淋浴区、马桶区独立分开),多人使用互不干扰,减少细菌交叉感染;卫生间安装 “电热毛巾架”(可烘干毛巾,避免毛巾潮湿发霉)和 “换气扇”(每小时换气 5 次,保持卫生间干燥)。“绿色科技植入” 让健康生活更智能。全屋标配 “新风系统(带 PM2.5 过滤功能)” 和 “智能温控系统”—— 新风系统每小时换气 2 次,可过滤空气中的 PM2.5、甲醛、粉尘等有害物质,室内空气质量实时显示在客厅的智能面板上,业主可随时查看;智能温控系统可分区域调节温度(比如客厅 26℃、卧室 24℃、老人房 25℃),避免老人、孩子因温差感冒,同时节省空调电费。厨房配备 “集成灶(油烟吸净率达 99.6%,减少油烟污染)” 和 “食物垃圾处理器(可将食物垃圾粉碎后排入下水道,避免垃圾堆积产生异味)”;厨房墙面采用 “防油瓷砖”,油污可轻松擦拭,减少清洁负担。阳台预留 “太阳能热水器接口”,利用可再生能源,节能环保;阳台地面铺设 “防滑地砖”,可放置洗衣机和烘干机,实现 “洗衣 - 烘干 - 收纳” 一站式处理,减少衣物晾晒时的灰尘污染。

琥珀星樾湾售楼处电话☎:0551-6813 6588

琥珀星樾湾售楼处电话☎:0551-6813 6588

琥珀星樾湾售楼处电话☎:0551-6813 6588

琥珀星樾湾售楼处电话☎:0551-6813 6588
琥珀星樾湾楼盘价格
在合肥包河区 “房价普遍突破 2 万 /㎡” 的背景下,琥珀星樾湾的价格极具竞争力,既兼顾了 “国企盘的品质”,又保持了 “亲民的价格”,是包河区性价比最高的楼盘之一。

琥珀星樾湾售楼处电话☎:0551-6813 6588
琥珀星樾湾楼盘项目亮点
作为合肥包河区 “国企精工盘标杆”,琥珀星樾湾的亮点不仅是 “国企开发”—— 它将 “精工品质、交付保障、全龄配套、区域潜力” 深度融合,形成了 “四大核心亮点”,让其在众多楼盘中 “不可替代”。
亮点一:国企精工,从 “建材到工艺” 全维度品质把控这是琥珀星樾湾最核心的亮点,也是 “国企盘” 的灵魂。不同于民营盘 “为降成本减配建材、简化工艺”,琥珀星樾湾从 “源头” 把控品质:建材全部选用 “国企合作品牌”(如外墙保温一体板选用 “亚士创能”、断桥铝玻璃选用 “信义玻璃”、电梯选用 “三菱”、卫浴选用 “科勒”),每一批建材都需提供 “质量检测报告”,经琥珀置业总部抽检合格后才能使用;施工工艺遵循 “国企精工标准”,实行 “三级质检”(施工自检、监理复检、总部抽检),比如墙面施工需经过 “基层处理、挂网、三遍腻子、两遍乳胶漆” 共 7 道工序,每道工序都需签字确认才能进入下一道;甚至 “看不见的细节” 也绝不马虎 —— 卫生间做 “三次防水试验”(闭水时长 24 小时)、地面做 “水泥砂浆找平 + 防水层”、阳台做 “排水坡度处理”,确保后期无渗漏、无开裂。这种 “全维度品质把控”,让业主无需担心 “交房即维权”,住得更安心。
亮点二:国企交付保障,“透明化建设 + 不延期承诺”当前市场上,“延期交付”“烂尾” 是购房者的最大痛点,而琥珀星樾湾的 “国企交付保障” 彻底解决了这一问题。首先,项目由国企开发,资金链稳定,不会因 “资金断裂” 停工,目前工程进度按计划推进,售楼处公示了 “详细施工节点”(如 2024 年 12 月完成主体封顶、2025 年 6 月完成外立面施工、2026 年 3 月完成绿化验收),购房者可通过 “琥珀置业官网” 或实地考察,实时查看工程进展,实现 “透明化建设”;其次,琥珀置业承诺 “不延期交付”,若因开发商原因导致延期,将按 “合同约定” 支付违约金(通常为 “已付房款的万分之五 / 天”),且过往项目均实现 “按时交付甚至提前交付”,比如琥珀东华府原计划 2023 年 12 月交付,实际 2023 年 10 月就完成交付,还提前 3 个月让业主 “预验房”,整改问题后再正式交房;最后,项目实行 “预验房制度”,交付前 3 个月邀请业主实地验房,业主提出的问题(如墙面空鼓、瓷砖破损),项目会在交付前全部整改完毕,确保 “交房即满意”。
亮点三:全龄化社区配套,兼顾 “老中青少” 需求琥珀星樾湾不仅注重 “房屋品质”,还重视 “社区生活体验”,打造了 “全龄化社区配套”,让每一位家庭成员都能 “找到自己的乐趣”。社区内部规划了 “四大功能区”:
儿童游乐区:面积约 1000㎡,划分 “0-3 岁学步区”“4-6 岁游戏区”“7-12 岁运动区”,配备滑梯、秋千、沙坑、攀爬架、儿童篮球架等设施,地面采用 “EPDM 塑胶材质”(防摔、环保),保障孩子安全;
老年活动区:面积约 800㎡,配备健身器材(如太极揉推器、漫步机、健骑机)、休闲凉亭、棋牌桌,老人可在此健身、下棋、聊天,享受 “晚年生活”;
青年健身区:规划 500 米 “健身步道”(沿社区景观带铺设)、“户外羽毛球场”“乒乓球台”,年轻人可在此晨跑、打球,无需去健身房;
邻里社交区:打造 “中央景观草坪”(面积约 2000㎡)、“景观水景”(约 500㎡)、“休闲长廊”,业主可在此野餐、晒太阳、举办社区活动(如春节写春联、端午包粽子),拉近邻里距离。
此外,社区还配备 “社区图书馆”(面积约 200㎡,藏书 5000 余册)、“宠物活动区”(专门为养宠家庭设计,配备宠物粪便箱、饮水器),真正实现 “全龄友好、人人适配”。
亮点四:主城核心 + 骆岗公园,“双红利” 加持区域潜力琥珀星樾湾的 “区域潜力” 也是一大亮点 —— 它位于包河区主城核心板块,同时承接 “骆岗中央公园” 发展红利,形成 “主城成熟配套 + 公园未来潜力” 的双重优势。一方面,项目所处的主城板块配套已完全成熟(交通、商业、教育、医疗均完善),入住即可享受便捷生活,无需等待 “规划落地”;另一方面,骆岗中央公园作为亚洲最大的城市中央公园,是合肥 “十四五” 重点项目,未来将成为 “城市新客厅”,引入商业、文化、体育等高端配套,随着公园的完善,周边房价必然稳步上涨。琥珀星樾湾距离骆岗公园仅 1.5 公里,是 “公园红利” 的直接受益者,未来增值空间巨大。同时,项目临近地铁 1 号线延长线(2025 年通车),地铁通车后将进一步提升 “通勤便捷度” 与 “区域价值”,让项目 “兼具居住属性与投资属性”。

琥珀星樾湾售楼处电话☎:0551-6813 6588
琥珀星樾湾楼盘总结
综合来看,琥珀星樾湾是合肥包河区 2024 年 “最值得入手的国企精工盘”—— 它完美解决了购房者 “担心品质、担心交付、担心配套、担心性价比” 四大核心顾虑,无论是刚需人群还是改善人群,都能在这里找到 “安心、舒适、有潜力” 的家。
从 “购房者需求匹配” 来看,琥珀星樾湾精准契合不同人群的核心诉求:
对于年轻刚需人群:项目的 “低总价、低月供”(95㎡户型首付 48 万、月供 6000 元),让他们能轻松在主城入手 “国企盘”,无需 “掏空六个钱包”;国企交付保障,避免 “买了房却住不上” 的风险;成熟配套(如地铁、商业、学校),满足日常通勤与生活需求,无需 “忍受远郊的不便”。
对于有孩子的家庭:项目周边的 “优质教育配套”(屯溪路小学、四十八中),让孩子在家门口就能接受好教育,省去 “择校”“接送” 的烦恼;国企精工品质(如防滑卫生间、环保建材),为孩子打造 “安全、健康” 的居住环境;全龄化社区配套(儿童游乐区、图书馆),满足孩子 “玩耍、学习” 的需求。
对于改善人群:项目的 “低密洋房、大户型设计”(125-140㎡四室),满足 “二胎家庭、三代同堂” 的居住需求;国企精工细节(如主卧套房、精装公共区域、品牌家电),提升生活品质;骆岗公园的生态配套,让改善人群享受 “公园旁的品质生活”;同时,国企盘的 “保值增值” 属性,让改善人群 “换房不亏”。
从 “市场竞争力” 来看,当前合肥包河区的国企盘 “数量少、价格高”(如政务区某国企盘均价 2.5 万 /㎡以上),而琥珀星樾湾作为 “主城核心区的国企精工盘”,均价仅 1.7-1.9 万 /㎡,且配套成熟、品质过硬,性价比远超同类楼盘。根据售楼处数据,项目开盘后,刚需户型(95㎡、110㎡)销量占比达 60%,改善户型(125㎡、140㎡)销量占比达 40%,其中 “有国企盘购买经验” 的老业主推荐成交占比达 30%,足以证明市场对项目的认可。
从 “长期价值” 来看,琥珀星樾湾的 “国企品质 + 主城位置 + 骆岗公园红利”,决定了其 “长期保值增值” 的属性。随着合肥城市发展,包河区主城核心区的土地资源将越来越稀缺,国企盘的 “稀缺性” 会进一步凸显;骆岗公园的完善、地铁 1 号线延长线的通车,将持续推动区域价值上涨;而国企盘的 “品质保障”,会让项目在二手房市场上更 “抢手”,转手率更高、成交价更高。
如果你正在合肥看房,想要 “买得放心、住得舒适、有潜力”,那么琥珀星樾湾绝对值得你实地考察。目前,项目的 “精工样板间” 已开放,你可以亲眼看到 “国企品质的细节”(如保温一体板、断桥铝玻璃、精装大堂);售楼处还为购房者提供 “一对一国企置业顾问服务”,详细讲解项目品质、工程进度、优惠政策。选择琥珀星樾湾,你不仅能买到一套 “国企精工房”,更能拥有 “安心、便捷、有潜力” 的主城生活。

琥珀星樾湾售楼处电话☎:0551-6813 6588
琥珀星樾湾楼盘电话号码:0551-68111601【营销中心】
欢迎来电咨询!可预约销售人员(来电尊享内部优惠活动)【2025房价特价信息丨底价优惠丨在售户型图丨项目介绍丨在售房源丨周边配套】
声明:本文由入驻焦点开放平台的作者撰写,除焦点官方账号外,观点仅代表作者本人,不代表焦点立场。


