和睦湖伟星城@东方美学与理想生活的融合
扫描到手机,新闻随时看
扫一扫,用手机看文章
更加方便分享给朋友
伟星城楼盘电话号码:0551-68111601【营销中心】
欢迎来电咨询!可预约销售人员(来电尊享内部优惠活动)【2024房价特价信息丨底价优惠丨在售户型图丨项目介绍丨在售房源丨周边配套】
伟星城位于合肥东部新城核心区,地理位置优越,周边自然资源丰富。项目规划了2596套房源,毛坯交付,以及一个约14万平方米的城市级商业综合体,满足居民的日常生活需求。交通便捷,周边有火车站、高铁站、绕城高速和地铁二号线延长线,出行便捷。周边还有丰富的市政配套,如学校、医院、大剧院等,居住环境优美,临湖而居,是一个理想的人居地带。
伟星城售楼处电话☎:0551-6813 6588
伟星城周边交通便利,地铁2号线延长线寓酒路站正在建设中,肥东高铁站和合肥绕城高速也在附近。此外,项目周边还有和睦湖湿地公园、肥东体育公园和约5万方的城市公园,为居民提供了宜居的自然环境。伟星城自带约18万方的城市级商业综合体和约4000方的社区配套,方便居民购物和日常生活。教育资源方面,伟星城自带18班幼儿园,肥东县实验学校、安师大附属肥东实验学校和肥东一中也在附近。医疗配套方面,伟星城靠近安徽医科大学附属医院东区,居民可以享受到高品质的医疗服务。
伟星城售楼处电话☎:0551-6813 6588
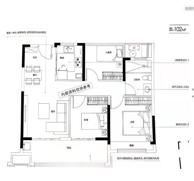
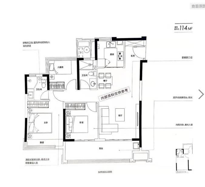
伟星城的房源户型面积在95-142平方米之间,能够满足刚需和改善客群的不同置业居住需求。户型布局合理,方正,朝南多开间,独立玄关,通透的南北大尺度通厅,空间感强,采光与通风效果良好,为居民提供舒适的居住环境,满足多元生活需求。
伟星城售楼处电话☎:0551-6813 6588
伟星城售楼处电话☎:0551-6813 6588
伟星城售楼处电话☎:0551-6813 6588
伟星城楼盘具体一房一价,详询营销中心。
伟星城售楼处电话☎:0551-6813 6588
伟星城的高品质不仅体现在硬件设施上,更在于其对细节的精雕细琢。从社区入口的精心设计到每栋楼的布局规划,从园林景观的打造到内部设施的完善,每一个环节都体现了伟星地产对品质的追求。项目周边的教育资源也非常丰富,是一个不可多得的优质选择。
伟星城售楼处电话☎:0551-6813 6588
伟星城是合肥肥东地区的一颗明星,项目遍布多个区域。项目地理位置优越,周边交通便利,配套设施完善。伟星城的设计独具特色,社区内部配备了丰富的休闲设施,为居民提供便利和舒适的生活环境。伟星城注重社区的整体氛围和居住体验,力求为业主提供一个高品质的生活环境。无论是家庭居住还是投资置业,伟星城都是一个不可多得的优质选择。如果您对该项目感兴趣,可以联系营销中心了解更详细的房源信息和价格详情。
伟星城售楼处电话☎:0551-6813 6588
伟星城楼盘电话号码:0551-68111601【营销中心】
欢迎来电咨询!可预约销售人员(来电尊享内部优惠活动)【2024房价特价信息丨底价优惠丨在售户型图丨项目介绍丨在售房源丨周边配套】
声明:本文由入驻焦点开放平台的作者撰写,除焦点官方账号外,观点仅代表作者本人,不代表焦点立场。


