新站区招商奥体公园房价,楼盘户型,周边配套,交通地图,户型图,售楼部电话号码
扫描到手机,新闻随时看
扫一扫,用手机看文章
更加方便分享给朋友
招商奥体公园地理位置,更多项目详情请拨打楼盘电话:0551-6258 9911【预约热线】欢迎来电咨询!
合肥新站招商奥体公园 —— 东方大道旁的宜居典范
一、招商奥体公园楼盘项目介绍
合肥新站区作为城市东拓的核心板块,正以蓬勃的发展态势吸引着全城目光,而坐落于东方大道与卧龙湖路交口往南 200 米的招商奥体公园,无疑是这片热土上的标杆之作。项目由招商蛇口倾力打造,作为百年央企,招商蛇口深耕房地产行业数十年,凭借稳健的开发实力和精益求精的品质追求,在全国范围内打造了众多标杆楼盘,此次落子新站核心区位,更是带着对城市发展的深刻理解,为合肥购房者带来高品质的居住体验。
招商奥体公园总占地面积约 180 亩,总建筑面积超 35 万平方米,规划容积率仅 2.0.绿化率高达 40%,是区域内少有的低密生态社区。项目整体采用现代简约的建筑风格,线条流畅利落,外立面以高级灰为主色调,搭配大面积玻璃幕墙,既彰显时尚质感,又能最大化引入自然光线,让每一栋建筑都成为城市一道靓丽的风景线。
项目规划涵盖高层住宅、洋房、社区商业、幼儿园等多种业态,形成一站式生活圈。其中,住宅产品主力面向刚需及改善型人群,户型面积段从 89㎡三室两厅一卫到 143㎡四室两厅两卫,满足不同家庭结构的居住需求。社区内部规划了约 5000㎡中央景观花园、环形健身步道、儿童游乐区、老年活动中心等多重休闲配套,打造全龄段宜居空间,让业主在繁忙的生活中,能随时享受自然与运动的乐趣。
值得一提的是,招商奥体公园依托 “奥体” IP 优势,周边规划有大型体育场馆及运动配套,项目内部也融入了运动健康理念,将居住与运动完美结合,为业主打造健康活力的生活方式。从项目选址到规划设计,从建筑品质到细节打磨,招商奥体公园始终以 “以人为本” 为核心,致力于成为合肥新站区宜居楼盘的典范之作。
招商奥体公园售楼处电话☎:0551-6813 6588
二、招商奥体公园楼盘周边配套
招商奥体公园的核心优势之一,就是周边富集的全龄段教育资源,同时交通、商业、医疗、生态等配套也十分完善,让业主在享受优质教育的同时,也能拥有便捷舒适的生活。
教育配套:全龄名校环绕,上学无忧
项目周边教育资源丰富,形成了从幼儿园到中学的全龄段教育体系,且学校距离近、品质高,让业主子女实现 “目送式” 上学,家长省心省力。
幼儿园:社区内公办幼儿园,启蒙教育无忧
项目内部规划有一所 12 班制公办幼儿园,占地面积约 4000㎡,建筑面积约 3000㎡,预计 2025 年正式投入使用。幼儿园按照省级示范幼儿园标准建设,配备专业的师资力量和完善的教学设施,包括多媒体教室、舞蹈室、美术室、户外活动场地等。
幼儿园注重孩子的综合素质培养,采用 “游戏化教学” 模式,让孩子在快乐中学习成长。由于幼儿园位于社区内部,业主子女无需远行,步行即可到达,既保障了孩子的出行安全,也为家长节省了接送时间。
小学:优质公办小学,基础教学扎实
项目周边 1 公里范围内分布着多所优质公办小学,包括合肥市庆平希望学校(小学部)、合肥市新站区关井小学、合肥市新站区三十头镇中心学校等。
合肥市庆平希望学校距离项目约 800 米,是一所九年一贯制公办学校,小学部教学设施完善,师资力量充足,注重学生的基础知识培养和综合素质提升。学校开设了丰富的兴趣课程,如书法、绘画、体育等,让学生在学习之余发展兴趣爱好。
合肥市新站区关井小学距离项目约 1 公里,学校占地面积约 20 亩,建筑面积约 8000㎡,拥有现代化的教学设备和优美的校园环境。学校师资力量雄厚,教学质量优异,在新站区小学教学质量排名中名列前茅。
中学:名校加持,升学之路有保障
项目周边优质中学云集,包括合肥新站寿春实验中学、合肥市第 168 中学东校区等,为业主子女的初中、高中教育提供了坚实保障。
合肥新站寿春实验中学距离项目仅 500 米,是寿春教育集团旗下的优质民办中学,成立于 2015 年。学校占地面积约 80 亩,建筑面积约 5 万平方米,教学设施先进,师资力量雄厚。学校中考成绩连续多年位列新站区前列,2024 年中考普高达线率达 85%,其中多名学生考入合肥市第一中学、合肥市第六中学等省级示范高中,是众多家长认可的优质初中。
合肥市第 168 中学东校区距离项目约 1.5 公里,是安徽省示范高中,成立于 2002 年。学校占地面积约 150 亩,建筑面积约 8 万平方米,拥有现代化的教学设施和优美的校园环境。学校师资力量雄厚,高考成绩优异,2024 年高考本科达线率 98%,一本达线率 75%,每年都有大量学生考入清华大学、北京大学、复旦大学等全国重点高校,是合肥家长和学生向往的优质高中。
此外,项目周边还有合肥市新站区七十中学等多所中学,教育资源持续丰富,满足业主子女不同的升学需求。
交通配套:便捷出行,上学通勤无忧
项目紧邻东方大道与卧龙湖路两大城市主干道,交通网络发达,无论是孩子上学还是家长通勤,都十分便捷。
东方大道西接阜阳北路高架,东连包公大道高架,双向 6 车道,路况良好。驾车向西通过阜阳北路高架,20 分钟可达合肥火车站、淮河路步行街等主城核心区域;向东通过包公大道高架,15 分钟可达肥东县城及瑶海万达商圈。卧龙湖路是新站区纵向交通要道,北接北外环高速,南连新站区政务核心板块,驾车向南 10 分钟可达新站区管委会、京东方医院等重要场所。
公共交通方面,项目周边 500 米范围内设有 3 个公交站点,涵盖 301 路、302 路、686 路、803 路等多条公交线路。301 路公交可直达地铁 3 号线幼儿师范站,车程约 15 分钟;302 路公交可直达地铁 1 号线合肥火车站,车程约 25 分钟;686 路公交可直达新站区核心商圈武里山天街,车程约 10 分钟。未来,地铁 9 号线(规划中)将在项目周边设置站点,建成后将进一步提升出行效率,让孩子上学和家长通勤更加便捷。
商业配套:繁华商业在侧,生活学习便利
项目周边商业配套完善,满足业主日常购物、餐饮、休闲等需求,同时也为孩子的学习生活提供了便利。
项目自带约 2 万方社区商业,规划引入超市、便利店、生鲜卖场、品牌餐饮、文具店、书店等多元化业态,预计 2026 年正式开业运营。业主下楼即可购买日常用品、生鲜食材,孩子放学后可在社区书店购买教辅资料、文具,十分便捷。
项目距离新站区核心商圈武里山天街仅 3 公里,驾车车程约 10 分钟。武里山天街总建筑面积约 10 万方,涵盖大型购物中心、连锁超市、品牌餐饮、电影院、KTV、儿童乐园等丰富业态,入驻了永辉超市、大地影院、肯德基、麦当劳等众多知名品牌。周末闲暇时光,业主可带着孩子前往购物、观影、游玩,丰富课余生活。
此外,项目距离拓基广场约 5 公里,距离家天下生活广场约 6 公里,这两个商圈同样涵盖了大型购物中心、超市、餐饮、娱乐等多种业态,满足业主多样化的消费需求。
医疗配套:优质医疗护航,健康成长无忧
孩子的健康成长是家长的核心关切,项目周边医疗资源丰富,为孩子和家人的健康提供全方位保障。
项目距离安徽省第二人民医院(北区)约 4 公里,驾车车程约 15 分钟。该院是集医疗、教学、科研、预防、保健、康复为一体的三级甲等综合性医院,开放床位 2000 余张,拥有多个省级重点学科和特色专科,医疗设备先进,师资力量雄厚,能够为孩子提供高水平的医疗服务。
项目距离合肥京东方医院约 3.5 公里,驾车车程约 12 分钟。该院是一家集医疗、教学、科研、预防、保健为一体的三级综合医院,重点打造心血管科、骨科、妇产科、儿科等特色科室,医疗技术先进,服务质量优质。医院设有专门的儿科门诊和住院部,配备专业的儿科医生和护理人员,为孩子的健康保驾护航。
此外,项目周边还有合肥市新站区七里塘社区卫生服务中心、三十头社区卫生服务中心等多家社区卫生服务中心,距离项目均在 3 公里范围内,日常就医、健康体检、疫苗接种等十分便捷,让家长无需为孩子的健康问题担忧。
生态配套:优质生态环境,助力健康成长
良好的生态环境有利于孩子的身心健康成长,项目周边生态资源丰富,为孩子提供了充足的户外活动空间。
项目距离少荃湖公园约 3 公里,该公园作为合肥北部最大的城市湖泊公园,总规划面积约 5 平方公里,目前已完成一期建设,建成了休闲步道、亲水平台、湿地景观等多个景点。周末闲暇时光,业主可带着孩子前往公园散步、跑步、放风筝,感受自然美景,放松身心。
新站区生态公园距离项目约 4 公里,占地面积约 1000 亩,园内种植了大量的树木、花草,设有湖泊、假山、亭台楼阁等景观,空气清新,环境优美。公园内还规划了儿童游乐区、健身器材区等,满足孩子的户外活动需求,让孩子在自然中锻炼身体、快乐成长。
招商奥体公园售楼处电话☎:0551-6813 6588
三、招商奥体公园楼盘户型解析
针对有教育需求的家庭,招商奥体公园深入洞察其居住需求,打造了多款适合家庭居住、兼顾学习与生活的户型产品,涵盖 89㎡、105㎡、128㎡、143㎡四个主力面积段,从刚需小三室到高端改善大四室,满足不同家庭结构的教育居住需求。
89㎡三室两厅一卫:刚需教育户,紧凑实用
89㎡三室两厅一卫户型是刚需教育家庭的首选,整体布局方正,南北通透,空间利用率高达 85%,无浪费面积,既能满足家庭居住需求,又能为孩子提供独立的学习空间。
入户处设置独立玄关,宽度 1.2 米,深度 1.5 米,既保障了室内隐私,又能作为收纳空间,放置鞋柜、衣帽架、孩子的书包柜等。玄关右侧设有换鞋凳和挂钩,方便孩子放学回家后及时换鞋、挂书包,细节设计贴心。
客厅位于户型中央,面宽 3.6 米,进深 4.2 米,空间宽敞明亮。客厅与南向阳台相连,阳台面宽 3.6 米,进深 1.8 米,采用全景落地窗设计,采光通风极佳。阳台可设置为孩子的休闲活动区,摆放小型游乐设施或绘本架,让孩子在阳光下玩耍、阅读。
餐厅紧邻客厅和厨房,面积约 6㎡,可容纳 4-6 人同时用餐。餐厅与厨房之间设有滑动门,既保证了用餐环境的整洁,又能方便上菜,让家长在烹饪时也能关注到孩子的动态。
厨房位于户型西侧,采用 U 型设计,操作台面长 3.5 米,洗切炒动线合理,预留双开门冰箱位置。厨房靠近餐厅,用餐、上菜便捷,适合家庭日常烹饪。
三个卧室分布在户型东侧和北侧,动静分离,避免了活动区对学习休息区的干扰。主卧位于户型东侧,面宽 3.2 米,进深 3.8 米,带有南向飘窗,采光充足,空间宽敞,可作为家长卧室。两个次卧面宽均为 2.7 米,空间充足,其中一个次卧可作为孩子的独立书房,摆放书桌、书架,为孩子打造安静的学习环境;另一个次卧可作为老人房,方便老人帮忙照顾孩子。
卫生间位于户型北侧,面积约 4.5㎡,采用干湿分离设计,提高使用效率,避免潮湿问题,满足家庭日常使用需求。
05㎡三室两厅两卫:改善教育户,舒适升级(续)
的学习与休息空间;另一个次卧可作为老人房或备用书房,满足家庭多样化需求。公共卫生间位于两个次卧之间,面积约 5㎡,采用干湿分离设计,使用方便,避免了家人使用时的冲突,尤其适合孩子早上洗漱上学、家长通勤的早高峰场景。
128㎡四室两厅两卫:改善教育户,空间阔绰
128㎡四室两厅两卫户型是多孩教育家庭的理想选择,户型方正通透,南北双阳台设计,空间阔绰,既能满足家庭成员的居住需求,又能为每个孩子提供独立的学习空间,兼顾家庭互动与隐私。
入户玄关宽敞明亮,宽度 1.8 米,深度 2.0 米,可设置入户花园或大型收纳柜,专门划分出孩子的书包、绘本、运动器材收纳区,让居家环境整洁有序。玄关处摆放孩子的荣誉墙,展示奖状、作品,增强孩子的自信心。
客厅面宽 4.0 米,进深 4.8 米,空间宽敞开阔,与南向景观阳台相连,阳台面宽 4.0 米,进深 2.0 米,采光通风极佳。客厅可打造为家庭互动区,摆放投影仪、书架,周末全家一起观影、阅读,营造浓厚的家庭学习氛围。
北向生活阳台与餐厅相连,面宽 3.0 米,进深 1.8 米,可作为孩子的手工创作区或小型运动区,放置跑步机、瑜伽垫,让孩子在学习之余锻炼身体,实现 “学习 + 运动” 两不误。
厨房采用 L 型设计,操作台面长 4.0 米,空间宽敞,动线合理,与餐厅相邻,用餐便捷。厨房预留了辅食机、烤箱等家电位置,方便家长为孩子制作营养餐食,满足孩子成长过程中的饮食需求。
四个卧室分布合理,动静分离,确保学习与休息互不干扰。主卧套房设计,面宽 3.5 米,进深 5.0 米,配备独立卫生间和步入式衣帽间,空间宽敞奢华,让家长拥有专属私密空间。两个南向次卧面宽 3.0 米,采光良好,可分别作为两个孩子的卧室,每个卧室都能摆放书桌、书架,打造独立学习区;北向次卧可作为家庭书房,放置多人书桌和大型书架,全家一起学习,营造良好的学习氛围。
公共卫生间位于户型北侧,面积约 5.5㎡,采用干湿分离设计,配备孩子专用的洗漱台和马桶,方便孩子使用,提升生活便利性。
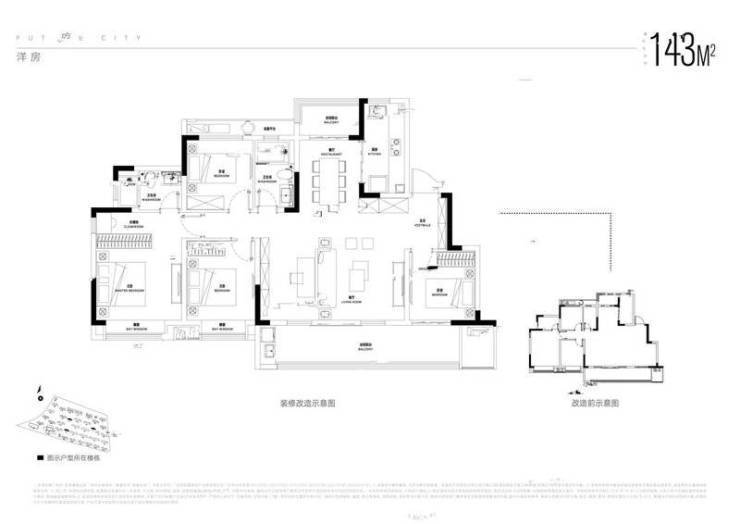
143㎡四室两厅两卫:高端教育户,品质尊享
143㎡四室两厅两卫户型是高端教育家庭的终极之选,空间开阔,布局奢华,品质感十足,为孩子提供优质的成长环境,同时满足家长对高品质生活的追求。
入户采用子母门设计,玄关宽度 2.0 米,深度 2.2 米,大理石地面搭配吊顶设计,彰显尊贵感。玄关处设置大型收纳柜和孩子的展示区,收纳孩子的各类物品,展示孩子的作品、奖杯,打造专属的成长纪念空间。
客厅面宽 4.2 米,进深 5.0 米,与南向 6.8 米宽超宽阳台相连,阳台进深 2.0 米,采用全景落地窗设计,视野开阔,采光通风极佳。阳台可打造为多功能学习休闲区,一侧设置书桌和书架,让孩子在自然光线中高效学习;另一侧摆放休闲沙发和绿植,学习之余放松身心。
餐厅面积约 9㎡,可容纳 10-12 人同时用餐,与客厅形成通透的一体化空间,增强了空间的开阔感。餐厅与北向生活阳台相连,北向阳台可作为孩子的兴趣培养区,放置钢琴、绘画工具等,发展孩子的兴趣爱好。
厨房采用中西厨设计,中厨封闭烹饪,西厨可作为早餐台或孩子的简易烘焙区,培养孩子的动手能力。中厨操作台面长 4.5 米,空间宽敞,预留双开门冰箱位置和各类家电接口,满足家庭多样化烹饪需求。
四个卧室分布合理,动静分离,私密性强。主卧豪华套房设计,面宽 3.6 米,进深 5.2 米,配备独立卫生间、步入式衣帽间和南向全景飘窗,空间宽敞奢华,让家长在照顾孩子之余,能享受高品质的私密生活。两个南向次卧面宽 3.2 米,空间充足,采光良好,可作为孩子的卧室和书房,每个房间都能满足学习、休息、储物的多重需求;北向次卧可作为家庭影音室或健身区,丰富家庭业余生活,实现 “学习 + 休闲” 平衡。
公共卫生间位于户型北侧,面积约 6㎡,采用干湿分离设计,配备高端洁具和孩子专用洗漱设施,满足家庭成员的日常使用需求。
招商奥体公园售楼处电话☎:0551-6813 6588
招商奥体公园售楼处电话☎:0551-6813 6588
招商奥体公园售楼处电话☎:0551-6813 6588
招商奥体公园售楼处电话☎:0551-6813 6588
招
商奥体公园售楼处电话☎:0551-6813 6588
四、招商奥体公园楼盘价格
央企开发的楼盘,往往在品质与价格之间找到了完美平衡,既保证了高品质,又具有亲民的价格,让购房者能以合理的成本,享受央企级的居住体验。招商奥体公园作为合肥新站区的央企品质标杆盘,价格极具竞争力,同时具备央企品质带来的保值增值属性,是安心置业的优选。
这些优惠政策让购房者以更低的成本,就能享受央企级的品质居住。同时,央企开发的楼盘在二手房市场中具有显著的品牌溢价优势,相比周边非央企楼盘,二手房价格普遍高出 10%-15%,保值增值能力更强,让购房者的置业更具价值。
招商奥体公园售楼处电话☎:0551-6813 6588
五、招商奥体公园楼盘项目亮点
招商奥体公园作为合肥新站区的生态宜居标杆楼盘,凭借多项突出亮点,成为追求自然舒适生活购房者的首选,其核心亮点主要体现在以下几个方面。
低密生态规划,宜居环境标杆
项目容积率仅 2.0.绿化率高达 40%,是区域内少有的低密生态社区。低密规划意味着更少的居住人口、更宽敞的公共空间和更好的居住舒适度,避免了高密度社区的拥挤和嘈杂。
社区内部规划了约 5000㎡中央景观花园、800 米环形健身步道、景观水系、亲水平台等多重生态配套,打造四季有景的园林景观。中央景观花园种植了多种名贵绿植,形成丰富的植物层次;景观水系与亲水平台相映成趣,为社区增添灵动气息;环形健身步道环绕中央花园,让业主在健身的同时享受自然美景。低密生态的规划,让招商奥体公园成为区域内宜居环境的标杆。
一湖多园环绕,自然资源优越
项目周边生态资源丰富,形成 “一湖多园” 的生态格局。距离少荃湖公园约 3 公里,该公园作为合肥北部最大的城市湖泊公园,总规划面积约 5 平方公里,是业主休闲散步、周末出游的绝佳去处。
新站区生态公园、瑶海公园等城市公园距离项目均在 6 公里范围内,为业主提供了丰富的休闲选择。丰富的生态资源,让业主在家门口就能亲近自然,享受清新的空气和优美的环境,提升了居住的幸福感和健康指数。
全龄休闲配套,生态生活多元
项目内部规划了全龄段休闲配套,将生态与休闲完美结合,满足不同年龄段业主的需求。儿童游乐区配备了滑梯、秋千、沙坑等游乐设施,周边种植了安全无害的绿植,让孩子在自然中快乐成长;老年活动中心设置了健身器材、棋牌桌等,周边环境清幽,适合老年人休闲锻炼;健身广场、羽毛球场、乒乓球场等运动配套,让年轻人在自然中挥洒汗水,享受健康活力的生活。
此外,社区内还设置了休闲步道、观景平台、户外烧烤区等,让业主在自然中享受多样化的休闲生活,丰富了居住体验。
通透户型设计,采光通风俱佳
项目打造的四款主力户型,均采用方正通透的布局,南北通透,空间利用率高,同时最大化引入自然光线和新鲜空气。客厅与南向阳台相连,阳台采用全景落地窗设计,采光通风效果极佳;卧室大多带有飘窗或阳台,让业主在休息时也能享受阳光和自然美景。
通透的户型设计,不仅提升了居住的舒适度,还能保持室内空气流通,减少细菌滋生,有利于业主的身体健康,与生态宜居理念高度契合。
醇熟生活配套,生态生活便捷
项目周边配套完善,交通、教育、商业、医疗等一应俱全,让业主在享受生态宜居生活的同时,无需为生活便利担忧。立体交通网络让业主轻松通达全城;全龄段优质教育资源让孩子在家门口就能享受优质教育;完善的商业配套满足业主日常购物、休闲娱乐需求;优质的医疗资源为业主的健康保驾护航。
醇熟的生活配套与优越的生态资源相结合,让业主既能享受自然舒适的居住环境,又能享受便捷的城市生活,实现 “生态与便捷兼得” 的理想居住状态。
央企品质保障,生态居住安心
招商蛇口作为百年央企,拥有丰富的开发经验和雄厚的实力,始终坚持 “品质为王” 的理念。项目采用品牌建材,如断桥铝门窗、双层中空玻璃、品牌电梯等,保证了建筑的品质和居住的安全性;专业的施工团队和监理团队,全程把控施工质量,确保每一套房子都能达到高品质标准。
此外,招商积余物业服务团队,为业主提供全方位、高品质的物业服务,让业主的生态居住生活更加安心、舒适。央企品质保障,让购房者买得放心、住得安心。
招商奥体公园售楼处电话☎:0551-6813 6588
六、招商奥体公园楼盘总结
招商奥体公园作为合肥新站区的交通枢纽标杆盘,以四维立体交通为核心,以央企品质为保障,以完善配套为支撑,以优质户型为载体,为通勤家庭打造了 “畅达全城、便捷舒适、安心无忧” 的理想家园,成为通勤家庭和投资客的置业首选。
从交通优势来看,项目拥有 “主干道 + 高架 + 地铁 + 公交” 的四维立体交通网络,双高架让自驾出行高效便捷,双地铁(现有 + 规划)让公共交通升级,多条公交线路满足短途出行需求。便捷的交通网络让业主彻底摆脱通勤困扰,20 分钟可达主城核心,40 分钟畅达全城,节省了大量通勤时间,提升了生活幸福感。
从周边配套来看,项目周边教育、商业、医疗、生态等配套完善,借助便捷的交通,业主的生活更加便捷舒适。全龄段优质教育资源让孩子上学无忧;完善的商业配套满足日常购物、休闲娱乐需求;优质的医疗资源为健康保驾护航;丰富的生态资源让休闲出游更轻松。交通与配套的完美结合,让业主实现 “便捷出行 + 品质生活” 的双重满足。
从户型产品来看,项目打造的四款主力户型,均充分考虑通勤家庭的居住需求,布局方正通透,空间利用率高,细节处贴合通勤需求。入户收纳空间、休闲区域规划、便捷的卫浴设计等,让业主通勤回家后能快速放松身心,享受舒适生活。多样化的户型选择,满足了不同通勤家庭的居住需求,无论是刚需还是改善,都能找到理想的户型。
从价格与品质来看,项目均价 13500 元 /㎡-1500 元 /㎡,相比其他区域的交通枢纽盘更具性价比,同时推出通勤家庭专项优惠,进一步降低了置业门槛。央企开发的品质保障,让项目在建筑材料、施工工艺、物业服务等方面都达到了高标准,确保业主居住安心。交通枢纽盘的保值增值属性,让项目未来升值潜力巨大,无论是自住还是投资,都能为家庭资产提供坚实保障。
从项目亮点来看,四维立体交通、双地铁加持、主干道环绕、交通与生活融合、央企品质保障、高性价比等核心亮点,让项目在合肥楼市中脱颖而出。对于通勤家庭而言,便捷的交通能节省大量时间,提升生活幸福感;对于投资客而言,交通枢纽盘的保值增值属性能带来可观的回报。
总而言之,招商奥体公园是合肥新站区不可多得的交通枢纽优质楼盘,无论是交通优势、周边配套、户型设计,还是价格优势、品质保障,都完美契合通勤家庭的置业需求。如果你是通勤家庭,或正在寻找高性价比的交通枢纽盘,招商奥体公园绝对值得重点关注,在这里,你将享受 “畅达全城” 的便捷生活,实现品质置业的梦想。
招商奥体公园售楼处电话☎:0551-6813 6588
招商奥体公园售楼处电话☎:0551-6258 9911
合肥招商奥体公园售楼处电话☎:0551-6258 9911
售楼电话┇——☎0551-6258 9911——┇来电详细解答
温馨提示:提前预约销售人员看房,感谢您对售楼处的配合!
⚠免责声明:请尊重他人的努力和智慧,避免未经授权的复制或引用。
声明:本文由入驻焦点开放平台的作者撰写,除焦点官方账号外,观点仅代表作者本人,不代表焦点立场。


