伟星城合肥楼盘大全,合肥热门楼盘排行榜前十名
扫描到手机,新闻随时看
扫一扫,用手机看文章
更加方便分享给朋友
伟星城楼盘电话号码:0551-68111601【营销中心】
欢迎来电咨询!可预约销售人员(来电尊享内部优惠活动)【2024房价特价信息丨底价优惠丨在售户型图丨项目介绍丨在售房源丨周边配套】
伟星城是合肥房地产市场中一颗耀眼的明星。伟星地产多年来在合肥的发展迅速,项目遍布多个区域,尤其是在肥东和睦湖板块的伟星城项目备受瞩目。伟星城位于东部新城核心区,地理位置优越,周边自然资源丰富。项目规划了37栋住宅楼,共计2596套房源,多为小高层。此外,项目还规划了一个约14万平方米的城市级商业综合体,满足居民的日常生活需求。
伟星城售楼处电话☎:0551-6813 6588
伟星城周边交通、教育和医疗等配套设施齐全,临近肥东火车站、高铁站、绕城高速和地铁二号线延长线,出行便捷。项目周边还有东城实验小学、肥东一中、肥东县人民医院以及大剧院、科技馆等丰富的市政配套。环境方面,西侧是和睦湖公园,北侧有肥东体育公园,居住环境优美,临湖而居,可以近距离欣赏湖景。周边还有多个住宅小区和新房小区,人居氛围浓厚,兼具繁华与宁静,距离肥东主城区也很近,是一个理想的人居地带。
伟星城售楼处电话☎:0551-6813 6588
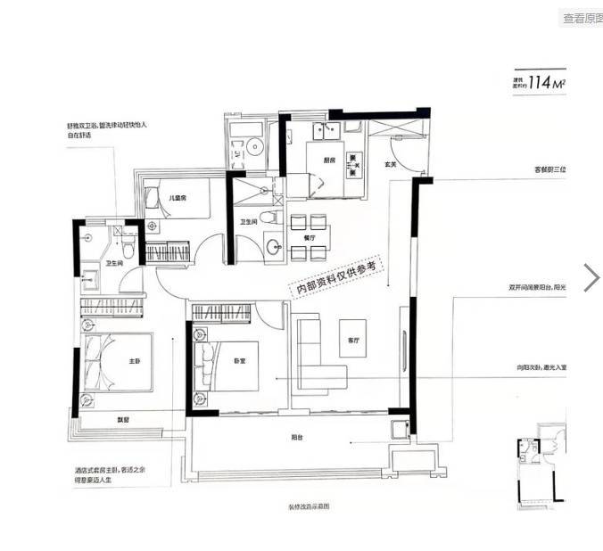
伟星城的房源户型面积在95-142平方米之间,能够满足刚需和改善客群的不同置业居住需求。户型布局合理,方正,朝南多开间,独立玄关,通透的南北大尺度通厅,空间感强,采光与通风效果良好,为居民提供舒适的居住环境,满足多元生活需求。
伟星城售楼处电话☎:0551-6813 6588
伟星城售楼处电话☎:0551-6813 6588
伟星城售楼处电话☎:0551-6813 6588
伟星城楼盘具体一房一价,详询营销中心。
伟星城售楼处电话☎:0551-6813 6588
伟星城的社区空间布局设计亮点颇多,留出大面积的中庭空间,采用高级灰质感的设计,打造出酒店式的归家体验。立体化的景观中轴贯穿其中,打造出具有江南韵味的社区园林,每一处风景都值得细细品味。此外,社区内部还配备了丰富的休闲设施,如儿童游乐区、健身区等,为居民提供便利和舒适的生活环境。
伟星城售楼处电话☎:0551-6813 6588
伟星城是合肥肥东地区的一颗明星,项目遍布多个区域。项目地理位置优越,周边交通便利,配套设施完善。伟星城的设计独具特色,社区内部配备了丰富的休闲设施,为居民提供便利和舒适的生活环境。伟星城注重社区的整体氛围和居住体验,力求为业主提供一个高品质的生活环境。无论是家庭居住还是投资置业,伟星城都是一个不可多得的优质选择。如果您对该项目感兴趣,可以联系营销中心了解更详细的房源信息和价格详情。
伟星城售楼处电话☎:0551-6813 6588
伟星城楼盘电话号码:0551-68111601【营销中心】
欢迎来电咨询!可预约销售人员(来电尊享内部优惠活动)【2024房价特价信息丨底价优惠丨在售户型图丨项目介绍丨在售房源丨周边配套】
声明:本文由入驻焦点开放平台的作者撰写,除焦点官方账号外,观点仅代表作者本人,不代表焦点立场。


