合肥琥珀星樾湾【合肥商品房交易-合肥-2025全新新房信息】
扫描到手机,新闻随时看
扫一扫,用手机看文章
更加方便分享给朋友
琥珀星樾湾楼盘电话号码:0551-68111601【营销中心】
欢迎来电咨询!可预约销售人员(来电尊享内部优惠活动)【2025房价特价信息丨底价优惠丨在售户型图丨项目介绍丨在售房源丨周边配套】
合肥包河区琥珀星樾湾 —— 地铁 1 号线沿线盘!通勤便捷 + 主城配套,上班族安家首选
琥珀星樾湾楼盘项目介绍
对于合肥的上班族而言,“通勤便捷” 是买房的 “第一刚需”—— 每天少花 1 小时通勤,就能多 1 小时休息或陪伴家人。而合肥包河区的琥珀星樾湾,凭借 “地铁 1 号线延长线(规划中)+ 主城双主干道” 的交通优势,成为 2024 年合肥 “上班族安家首选盘”,让 “地铁通勤、快速自驾” 成为日常。
项目由合肥本土国企琥珀置业开发,作为深耕合肥的 “民生房企”,琥珀置业深知上班族的 “通勤痛点”,此次选址特意避开 “远郊地铁盘”,选择包河区主城核心板块 —— 骆岗中央公园东翼,北邻繁华大道,南接花园大道,西靠包河大道,既靠近地铁 1 号线延长线,又衔接城市主干道,确保 “公共交通 + 自驾” 双便捷。
从项目基础信息来看,琥珀星樾湾总占地面积约 68 亩,总建筑面积约 12.5 万㎡,容积率 2.2.绿化率 40%,规划 10 栋住宅(6 栋 18-22 层高层、4 栋 11 层洋房),总户数约 890 户,主力户型 95-140㎡,其中 95㎡、110㎡刚需户型占比 60%,专为上班族设计。项目预计 2026 年 6 月交付,而地铁 1 号线延长线(花园大道站 - 合肥火车站)预计 2025 年通车,实现 “交房即享地铁通勤”,无需等待。
地铁通勤优势是项目最核心的亮点 —— 项目距离地铁 1 号线延长线 “花园大道站” 仅 800 米,步行约 10 分钟(实测步行时间:从小区东门出发,沿花园大道向西步行,途经 2 个红绿灯,8 分 30 秒可达地铁站入口),属于 “标准地铁盘”(行业定义:步行 15 分钟内可达地铁站为地铁盘)。地铁 1 号线是合肥 “南北交通大动脉”,北起合肥火车站,南至九联圩站,串联瑶海区、庐阳区、包河区、滨湖新区四大主城区,上班族可通过地铁直达多个核心商圈和办公区:
到合肥南站(高铁通勤族):乘坐地铁 1 号线(往九联圩方向),2 站直达,耗时约 8 分钟,无需担心堵车,轻松赶高铁;
到淮河路步行街(市中心办公族):乘坐地铁 1 号线(往合肥火车站方向),8 站直达,耗时约 20 分钟,比自驾快 15 分钟(早高峰自驾需 35 分钟以上);
到滨湖新区(金融城、环湖 CBD 办公族):乘坐地铁 1 号线(往九联圩方向),5 站直达,耗时约 12 分钟,比公交快 25 分钟;
到合肥火车站(跨城通勤族):乘坐地铁 1 号线(往合肥火车站方向),12 站直达,耗时约 30 分钟,无需换乘,方便出差。
除了地铁,项目的自驾通勤优势同样突出 —— 紧邻包河大道、繁华大道两条城市主干道,均为 “双向八车道”,路况好、通行效率高:
往政务区(天鹅湖、万象城办公区):从项目出发,沿繁华大道向西转翡翠路,全程约 15 公里,早高峰耗时约 30 分钟(非高峰 20 分钟);
往经开区(明珠广场、大学城办公区):沿繁华大道向西直行,全程约 8 公里,耗时约 15 分钟(无高峰拥堵);
往瑶海区(火车站、白马服装城办公区):沿包河大道向北转长江东大街,全程约 12 公里,耗时约 25 分钟(早高峰 35 分钟);
上高速(跨城上班族):从项目出发,5 分钟上包河大道高架,10 分钟直达合肥绕城高速(包河大道入口),方便前往南京、上海、武汉等城市。
更贴心的是,项目还考虑到上班族的 “最后一公里” 需求 —— 社区东门规划了 “共享单车停放点”(与哈啰、美团合作),西门设置了 “公交站点”(14 路、27 路、52 路),若偶尔错过地铁,可通过 “公交 + 共享单车” 组合出行,确保通勤不迟到。

琥珀星樾湾售楼处电话☎:0551-6813 6588
琥珀星樾湾楼盘周边配套
对于 “生态宜居盘” 而言,“配套” 不仅要 “便捷”,更要 “与生态融合”—— 既要有成熟的生活配套,又要有优质的生态资源,而琥珀星樾湾的周边配套,恰好实现了 “生态与便捷的完美结合”。
生态配套是琥珀星樾湾的 “核心竞争力”,项目周边 3 公里内有三大生态公园,形成 “天然氧吧”,为业主提供 “出门即公园” 的生活体验。其中,最核心的是骆岗中央公园,距离项目仅 1.5 公里,该公园是合肥 “十四五” 重点项目,总面积约 12.7 平方公里,相当于 1700 多个足球场大小,目前已建成 “锦绣湖湿地”“城市花海”“运动公园”“儿童乐园” 等区域。锦绣湖湿地面积约 2.5 平方公里,湖水清澈,周边种植了芦苇、菖蒲等水生植物,栖息着白鹭、野鸭等鸟类,是观鸟、散步的好去处;城市花海面积约 1000 亩,种植了虞美人、波斯菊、向日葵等花卉,春季和秋季花开成片,是合肥著名的 “打卡地”;运动公园配备了足球场、篮球场、网球场、健身步道等设施,适合业主运动健身;儿童乐园则有滑梯、秋千、沙坑等游乐设施,是孩子的 “快乐天地”。
除了骆岗中央公园,项目北邻十五里河生态公园,距离约 800 米,该公园沿十五里河打造,长度约 5 公里,宽度约 200 米,种植了大量乔木、灌木和花卉,形成 “城市绿廊”。十五里河生态公园内规划了 “亲水平台”“骑行步道”“野餐草坪” 等区域,业主可以沿河岸骑行、散步,或者在草坪上野餐、放风筝,享受 “自然与生活的融合”。此外,项目东距包河公园约 3 公里,该公园是合肥历史悠久的公园之一,内有包公祠、包公墓等历史文化景点,既可以休闲散步,又可以感受合肥的历史文化。
生活配套方面,琥珀星樾湾同样 “成熟完善”,无需等待 “规划落地”,入住即可享受便捷生活。交通方面,项目临近地铁 1 号线延长线(规划中,2025 年通车)花园大道站,步行约 10 分钟,未来可直达合肥南站、滨湖新区、淮河路步行街;地面交通依托包河大道、繁华大道两条城市主干道,自驾到合肥南站 15 分钟、到滨湖新区 20 分钟、到政务区 30 分钟,通勤便捷。商业方面,项目 3 公里内有悦方 ID MALL、百大心悦城、加侨国际广场三大商场,涵盖购物、餐饮、影院、亲子娱乐等全业态,其中悦方 ID MALL 距离项目仅 2 公里,步行 20 分钟或自驾 5 分钟即可到达,满足业主的 “日常消费” 和 “品质消费” 需求。
教育与医疗配套也十分优质,为业主的 “宜居生活” 保驾护航。教育方面,项目划片范围大概率覆盖屯溪路小学(滨湖校区)和合肥市第四十八中学(望湖校区),这两所学校均为合肥优质公办学校,师资力量雄厚,教学质量高,孩子在家门口就能接受优质教育;医疗方面,项目 2 公里内有包河区人民医院(二级综合医院),5 公里内有安徽省立医院南区(三级甲等医院),日常就医和大病诊疗都十分方便。
可以说,琥珀星樾湾的周边配套,既满足了业主对 “生态宜居” 的追求,又保障了 “生活便捷”,真正实现了 “在公园里生活,在城市中便捷”。

琥珀星樾湾售楼处电话☎:0551-6813 6588
琥珀星樾湾楼盘户型解析
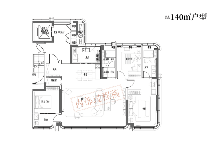
上班族对户型的需求,核心是 “实用、便捷、舒适”—— 既要满足 “休息、做饭、储物” 的基础需求,又要避免 “空间浪费”,还要兼顾 “偶尔招待朋友” 的需求。琥珀星樾湾针对上班族的 “通勤生活习惯”,设计了 95㎡、110㎡两款主力刚需户型,以及 125㎡改善户型,每一款都精准匹配不同阶段上班族的需求。
95㎡三室两厅一卫(单身 / 新婚上班族户型):小空间,高利用该户型专为 “单身上班族” 或 “新婚夫妻上班族” 设计,95㎡的紧凑空间,做到 “三室 + 全明”,无浪费面积,满足 “休息 + 办公 + 储物” 需求。户型采用 “三开间朝南” 布局,客厅、主卧、次卧均朝南,南向面宽达 9.8 米,确保 “休息区” 和 “活动区” 采光充足 —— 上班族白天上班,晚上回家需要 “明亮的空间” 缓解疲劳,客厅和主卧的充足采光,能让人心情更舒畅。客厅面宽 3.6 米,进深 4.5 米,餐客一体空间总面积约 16㎡,划分 “休息区”(摆放 L 型沙发 + 1.2 米茶几)和 “简易办公区”(靠近阳台一侧,摆放 1.2 米书桌),解决 “偶尔在家办公” 的需求 —— 下班后若有未完成的工作,可在书桌前处理,避免在床上办公影响休息;周末可在沙发上看电视、刷剧,放松身心。主卧面积约 12㎡,带 270° 飘窗,飘窗台面铺设大理石,可作为 “休闲区”—— 睡前坐在飘窗上看书、刷手机,或周末晒太阳,享受 “独处时光”;主卧摆放 1.8 米床 + 2 个床头柜 + 衣柜后,依然留有走动空间,不显得拥挤;衣柜采用 “顶天立地” 设计,储物空间充足,适合上班族存放四季衣物。次卧面积约 10㎡,可作为 “客房” 或 “储物间”—— 若有朋友偶尔来住,可摆放 1.5 米床;若暂时用不到,可改造成 “储物间”,存放行李箱、换季衣物、健身器材等,避免客厅杂乱。书房面积约 8㎡,可作为 “专属办公区” 或 “兴趣区”—— 摆放 1.2 米书桌 + 书柜,适合需要经常在家办公的上班族;或改成 “健身区”,摆放瑜伽垫、哑铃,下班后在家运动,无需去健身房。厨房采用 U 型设计,操作台面长达 2.8 米,“洗菜 - 切菜 - 炒菜” 动线合理,即使是 “厨房小白” 也能轻松操作;厨房预留了 “双开门冰箱位”(宽度 1.2 米),适合上班族储存速食、饮料、水果;厨房连接生活阳台,可放置洗衣机和杂物,保持厨房整洁。公共卫生间面积约 5㎡,做到 “干湿分离”,安装 “智能马桶”(支持加热、冲洗功能),冬天使用更舒适;卫生间预留了 “收纳柜” 位置,可存放洗漱用品、洗衣液等,避免台面杂乱;上班族早上洗漱、晚上洗澡,无需排队,使用便捷。
110㎡三室两厅两卫(三口之家上班族户型):功能全,更舒适该户型专为 “有孩子的上班族夫妻” 设计,在 95㎡户型的基础上,增加了一个卫生间,提升 “居住舒适度” 和 “私密性”,满足 “三口之家” 的生活需求。户型采用 “三开间朝南 + 南北通透” 布局,南向面宽达 10.5 米,客厅、主卧、次卧(儿童房)均朝南,北向为书房和厨房,空气对流性好,室内更干爽 —— 上班族平时没时间经常打扫,南北通透的户型能减少 “潮湿发霉”,降低家务负担。客厅面宽 3.9 米,进深 5 米,餐客一体空间总面积约 19.5㎡,划分 “家庭互动区”(摆放沙发、茶几、电视)和 “儿童游戏区”(靠近阳台,设置收纳式玩具柜)—— 下班后可陪孩子在游戏区玩耍,或全家一起看电视,增进亲子感情;周末可邀请同事、朋友来家聚餐,空间足够容纳 6-8 人。主卧采用 “套房设计”,面积约 15㎡,配备独立卫生间,满足上班族夫妻的 “私密性” 需求 —— 早上夫妻双方可同时洗漱,避免抢卫生间;晚上下班后可在独立卫生间泡澡放松,不影响孩子休息。主卧带 3.2 米宽飘窗,飘窗旁设置 “梳妆台”,女主人可化妆,男主人可在窗边看书,互不干扰;主卧衣柜采用 “步入式设计”,储物空间充足,可存放夫妻双方的衣物、配饰。儿童房面积约 11㎡,靠近主卧,方便上班族夫妻照顾孩子 —— 摆放 1.5 米床 + 书桌 + 衣柜,孩子可在房间学习、休息;房间预留了 “玩具收纳区”(墙面安装置物架),避免玩具散落客厅;儿童房朝南,采光充足,有利于孩子健康成长。书房面积约 9㎡,可作为 “上班族专属办公区”—— 摆放 1.4 米书桌 + 书柜,配备台灯、打印机,适合需要经常在家加班的上班族;书房与客厅之间采用 “玻璃隔断”,既能保持安静,又能看到客厅孩子的动态,兼顾 “工作” 与 “带娃”。公共卫生间面积约 5㎡,位于儿童房和书房之间,方便孩子和客人使用;卫生间做到 “干湿分离”,安装 “儿童马桶圈”(可拆卸)和 “洗手台台阶”(方便孩子自主洗漱),减少上班族的 “带娃负担”。厨房采用 L 型设计,操作台面长达 3.2 米,预留了 “嵌入式烤箱” 和 “洗碗机” 位置 —— 上班族周末可烤蛋糕、做饭,洗碗机则能减少 “洗碗时间”,多陪伴家人;厨房连接生活阳台,可放置洗衣机和烘干机,实现 “洗衣 - 烘干 - 收纳” 一站式处理,节省时间。
125㎡四室两厅两卫(改善型上班族户型):宽空间,高品质该户型专为 “工作多年、追求品质生活的上班族” 设计,125㎡的四室空间,适合 “三口之家 + 偶尔父母来住” 的需求,兼顾 “舒适” 与 “实用性”。户型采用 “四开间朝南” 布局,南向面宽达 12.2 米,客厅、主卧、儿童房、老人房均朝南,每个房间都有充足阳光;客厅面宽 4.2 米,搭配大落地窗,视野开阔,摆放 “大尺寸沙发 + 茶几 + 投影仪”,打造 “家庭影院”,下班后可享受 “沉浸式观影”;客厅与餐厅相连,总面积约 28㎡,周末可举办 “家庭聚餐” 或 “朋友派对”,空间宽敞不拥挤。主卧套房面积约 18㎡,配备独立卫生间(双台盆、浴缸、智能马桶)和步入式衣帽间 —— 双台盆设计,夫妻双方可同时洗漱;浴缸可在下班后泡澡放松,缓解工作压力;步入式衣帽间划分 “衣物区”“鞋子区”“配饰区”,收纳有序,避免杂乱。儿童房面积约 12㎡,带独立阳台,孩子可在阳台玩耍、种植绿植;房间预留了 “学习区” 和 “游戏区”,兼顾 “学习” 与 “娱乐”。老人房面积约 11㎡,靠近入户门,方便父母偶尔来住时进出;房间带飘窗,老人可在窗边晒太阳、看书;老人房与公共卫生间相邻,方便老人夜间上厕所。书房面积约 10㎡,作为 “上班族专属办公区”,配备 “老板桌”“书柜”“办公椅”,适合需要在家处理重要工作的上班族;书房还可改造成 “兴趣室”,摆放吉他、画板等,培养兴趣爱好,丰富生活。

琥珀星樾湾售楼处电话☎:0551-6813 6588

琥珀星樾湾售楼处电话☎:0551-6813 6588

琥珀星樾湾售楼处电话☎:0551-6813 6588

琥珀星樾湾售楼处电话☎:0551-6813 6588
琥珀星樾湾楼盘价格
在合肥,“智慧社区” 往往与 “高房价” 挂钩 —— 多数主打智慧配置的楼盘,均价普遍比同区域普通楼盘高 10%-15%。但琥珀星樾湾作为 “国企开发的智慧社区”,却打破了这一惯例,在提供 “全场景智慧配置” 的同时,保持了 “亲民的价格”,成为合肥包河区 “智慧盘性价比之王”。
从区域智慧盘价格对比来看,包河区 2024 年主打 “智慧社区” 的楼盘,均价普遍在 2.0-2.3 万 /㎡,比如位于包河大道附近的某民营智慧盘,高层均价 2.1 万 /㎡,洋房均价 2.3 万 /㎡,且部分智慧配置(如全屋智能控制系统)需要 “额外付费升级”;而琥珀星樾湾的均价仅 1.7-1.9 万 /㎡,不仅低于周边智慧盘 10%-20%,且所有智慧配置(如智慧安防、智慧出行、基础全屋智能系统)均为 “标配”,无需额外付费,相当于 “花普通楼盘的钱,享受智慧楼盘的配置”。
具体到户型价格,琥珀星樾湾的性价比优势更为明显:
刚需智慧户型:95㎡三室两厅一卫,单价 1.7-1.8 万 /㎡,总价约 160-171 万,首付最低 48 万(按 30% 首付计算),月供约 6000 元(按 LPR+20BP,贷款 30 年计算)。对比周边同面积智慧盘(总价约 180-190 万),一套房能省 20-19 万,相当于普通上班族 2-3 年的工资,且无需额外支付智慧系统费用。
刚需升级智慧户型:110㎡三室两厅两卫,单价 1.75-1.85 万 /㎡,总价约 192.5-203.5 万,首付最低 57.75 万,月供约 7200 元。该户型比 95㎡多一个卫生间,且智慧配置更丰富(如主卧智能控制面板、公共卫生间智能浴霸),性价比远超周边同类型智慧户型。
改善智慧户型:125㎡四室两厅两卫,单价 1.8-1.9 万 /㎡,总价约 225-237.5 万,首付最低 67.5 万,月供约 8500 元;140㎡洋房智慧户型,单价 1.85-1.95 万 /㎡,总价约 259-273 万,首付最低 77.7 万,月供约 9800 元。对比周边同面积洋房智慧盘(总价约 280-300 万),140㎡户型能省 21-27 万,且得房率高达 85%(周边智慧盘洋房得房率约 80%),实际使用面积更大,智慧配置更全面(如智能新风系统、全屋温控系统)。
更重要的是,琥珀星樾湾针对 “智慧社区” 购房者,推出了 “专属优惠政策”,进一步降低购房成本:
智慧配置礼包:即日起购房,可免费升级 “全屋智能进阶套餐”(含智能门锁、智能摄像头、智能音箱各 1 台),市场价值约 5000 元,无需额外付费;
付款优惠:全款购房享 97 折优惠,商业贷款享 98 折优惠,公积金贷款享 98.5 折优惠,且支持 “组合贷”,满足不同购房者的付款需求;
老带新奖励:老业主推荐新客户成交,老业主可获赠 “智慧社区运维年费”(价值 2000 元 / 年,含智能设备检修、系统升级服务),新客户可额外享 1% 房款优惠;
智慧特价房:每月推出 5 套 “智慧特价房”,主要为高层中间楼层,单价可低至 1.65 万 /㎡,且智慧配置不缩水,性价比更高。
从 “长期价值” 来看,琥珀星樾湾的智慧配置还能 “降低生活成本”:比如智能温控系统可节省 15%-20% 的空调电费,智能新风系统减少空气净化器使用成本,智能安防系统降低居家安全风险(如燃气泄漏、盗窃)。这些 “隐性节省”,进一步提升了项目的性价比。对于追求 “智慧生活” 的购房者而言,选择琥珀星樾湾,不仅能以低预算入手 “国企智慧盘”,还能长期享受 “科技带来的便捷与节省”,堪称 “明智之选”。

琥珀星樾湾售楼处电话☎:0551-6813 6588
琥珀星樾湾楼盘项目亮点
除了 “位置好、配套全、户型优、价格低” 这些基础优势外,琥珀星樾湾还有四大核心亮点,让其在包河区众多楼盘中脱颖而出,成为购房者的 “首选”。
亮点一:国企开发,交付有保障。在当前房地产市场环境下,“交付” 是购房者最关心的问题,而琥珀星樾湾的国企背景就是最大的 “定心丸”。开发商琥珀置业是合肥城建(国有控股上市公司)的全资子公司,成立 20 余年,累计开发项目 30 余个,如琥珀山庄、琥珀五环城等,均以 “工程质量高、交付准时” 闻名合肥。项目从拿地到施工,全程受国企监管,资金链稳定,不会出现 “停工烂尾” 的风险;同时,项目采用 “透明化施工”,每月公布工程进度,购房者可通过售楼处公众号或实地考察了解施工情况,买得更放心。此外,国企开发的项目在产权办理、物业服务等后续环节也更规范,避免出现 “产权纠纷”“物业不作为” 等问题。
亮点二:低密高绿,宜居性强。琥珀星樾湾容积率仅 2.2.绿化率 40%,这个指标在包河区主城板块十分罕见 —— 周边多数楼盘容积率超过 2.5.绿化率仅 35% 左右,相比之下,琥珀星樾湾的居住舒适度更高。低容积率意味着 “楼间距宽”,项目最大楼间距达 55 米,即使是低楼层也能保证充足采光,避免 “楼挨楼” 的压抑感;高绿化率则意味着 “社区环境好”,项目内部规划了约 2.8 万㎡景观绿地,相当于 4 个足球场大小,涵盖中央草坪、樱花巷道、儿童乐园、老年活动区等,业主茶余饭后可在社区内散步、健身、带娃,无需出门就能享受 “公园般的生活”。此外,社区采用 “人车分流” 设计,车辆进入社区后直接进入地下车库,地面无车辆通行,既保障了老人、孩子的安全,也减少了噪音、尾气污染,提升了社区的静谧性。
亮点三:智慧社区,生活更便捷。琥珀星樾湾紧跟 “智慧家居” 趋势,打造全场景智慧社区,让业主享受 “科技带来的便利”。社区入口采用 “人脸识别 + 智能门禁”,无需带卡,刷脸即可进入,既安全又便捷;地下车库配备 “智能寻车系统”,通过手机 APP 即可查询车辆停放位置,避免 “找车难” 的问题;社区内部安装了 “智能安防系统”,包括高空抛物监控、24 小时巡逻摄像头、电子围栏等,全方位保障业主安全;此外,社区还配备了 “充电桩车位”(占比 30%)、“社区 APP” 等,充电桩满足新能源车主的充电需求,社区 APP 可实现 “线上报修、物业缴费、邻里互动” 等功能,让生活更高效。
亮点四:优质物业,服务有温度。物业是 “居住体验的下半场”,琥珀星樾湾采用开发商自有物业 —— 琥珀物业,该物业成立 15 年,具有国家一级物业服务资质,服务项目覆盖合肥、南京、杭州等城市,业主满意度高达 95%。琥珀物业提供 “24 小时管家服务”,业主有任何需求,如维修、咨询等,拨打物业电话后 15 分钟内响应,2 小时内上门处理;日常服务方面,物业定期开展 “社区活动”,如春节写春联、端午包粽子、中秋晚会等,增进邻里感情;此外,物业还负责社区的日常维护,如绿化修剪、垃圾清理、公共设施检修等,确保社区环境始终整洁、有序。相比外包物业,自有物业更了解项目情况,服务更贴心,也更有责任心。

琥珀星樾湾售楼处电话☎:0551-6813 6588
琥珀星樾湾楼盘总结
综合来看,琥珀星樾湾是合肥 2024 年最值得入手的 “生态宜居盘”,它完美融合了 “骆岗公园的生态资源”“主城芯的成熟配套”“国企开发的品质保障” 和 “亲民的价格”,无论是刚需人群还是改善人群,都能在这里找到 “理想的生态之家”。
核心优势一:不可复制的生态资源。琥珀星樾湾距离骆岗中央公园仅 1.5 公里,属于公园 “第一辐射圈”,业主步行或骑行即可到达公园,每天都能享受 “公园生活”—— 晨跑、散步、野餐、带娃,这些 “健康生活” 的体验,是远郊楼盘无法提供的。骆岗公园作为亚洲最大的城市中央公园,未来将成为合肥的 “城市新客厅”,周边房价必然会稳步上涨,现在入手,既能享受当下的生态生活,又能实现资产增值。
核心优势二:成熟完善的生活配套。与其他 “偏远生态盘” 不同,琥珀星樾湾位于包河区主城芯,周边交通、商业、教育、医疗配套成熟,无需等待 “规划落地”。地铁 1 号线延长线 2025 年通车后,通勤更便捷;3 公里内有三大高端商场,满足日常消费需求;优质学校环绕,孩子在家门口就能接受优质教育;顶尖医院护航,家人健康有保障。在这里,业主无需 “为了生态牺牲便捷”,也无需 “为了便捷牺牲生态”,真正实现 “生态与便捷的完美结合”。
核心优势三:国企开发的品质保障。琥珀星樾湾由合肥本土国企琥珀置业开发,工程质量高,交付有保障,避免了 “烂尾”“延期” 的风险。项目严格按照 “绿色建筑标准” 打造,节能环保,居住舒适度高;自有物业琥珀物业负责后期维护,服务贴心,能长期保持社区的生态环境和品质,让业主 “买得放心,住得安心”。
核心优势四:高性价比的价格。在骆岗公园周边楼盘均价普遍超过 2.0 万 /㎡的背景下,琥珀星樾湾的均价仅 1.7-1.9 万 /㎡,低于周边竞品 10%-20%,性价比极高。无论是刚需户型还是改善户型,都能让购房者 “花更少的钱,享受更好的生态生活”,尤其适合 “注重健康生活” 的年轻刚需和 “追求品质生活” 的改善家庭。
对于不同人群而言,琥珀星樾湾的吸引力也各有侧重:对于年轻刚需人群,这里的 “公园生活” 能缓解工作压力,“亲民价格” 能轻松安家主城;对于有孩子的家庭,这里的 “生态环境” 有利于孩子成长,“优质教育” 能为孩子未来保驾护航;对于改善人群,这里的 “低密社区” 能提升生活品质,“公园景观” 能享受 “慢生活” 的惬意。
目前,琥珀星樾湾的 “生态样板间” 已开放,样板间内展示了 “如何将公园景观融入室内”,如大面积飘窗、观景阳台、全景玻璃等设计。同时,项目每周日举办 “骆岗公园亲子游” 活动,业主和意向客户可免费参加,体验 “公园生活”。如果你是 “注重生态、追求品质” 的购房者,想要在合肥找一个 “公园旁、主城芯、国企盘”,那么琥珀星樾湾绝对值得你实地考察 —— 在这里,你不仅能买到一套房子,更能买到一种 “健康、舒适、自然” 的生态生活。

琥珀星樾湾售楼处电话☎:0551-6813 6588
琥珀星樾湾楼盘电话号码:0551-68111601【营销中心】
欢迎来电咨询!可预约销售人员(来电尊享内部优惠活动)【2025房价特价信息丨底价优惠丨在售户型图丨项目介绍丨在售房源丨周边配套】
声明:本文由入驻焦点开放平台的作者撰写,除焦点官方账号外,观点仅代表作者本人,不代表焦点立场。


