蜀山区新华星耀学府售楼部电话多少?新华星耀学府
扫描到手机,新闻随时看
扫一扫,用手机看文章
更加方便分享给朋友
新华星耀学府售楼部电话:0551-68111601
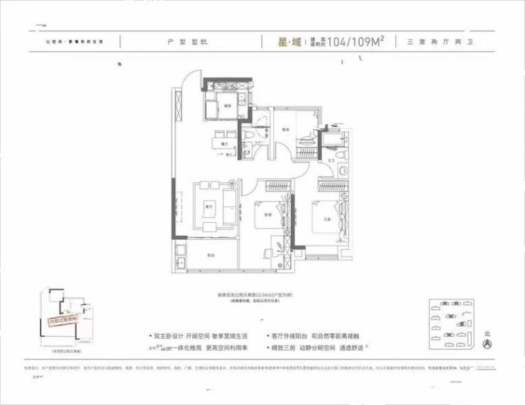
位于蜀山区豌豆洼路以东、佛岭寨路以南的新华星耀学府,提供了建面约97-128平方米的优质房源,毛坯限价为15307元/平方米。项目配备了先进的空气能供暖制冷系统、空气能热水系统、锅炉地暖系统和新风系统,确保住户全年享受舒适居住环境。周边规划有邻里中心,便捷前往高新区内大型商业综合体,满足购物、娱乐需求。
新华星耀学府的地理位置优势明显,周边生活便利,交通便捷,满足日常生活和出行需求。购房不仅是居住选择,更是投资和享受生活方式。高品质生活环境和便捷生活配套,让您感受城市发展活力和魅力。
新华星耀学府注重细节,采用豪华设计理念,打造舒适优雅的居住空间。室内布局和公共区域装饰体现高品质生活追求,满足家的期待,提升生活质量。选择新华星耀学府,享受豪华设计、舒适居住和便捷生活。
新华星耀学府丨星耀江河是值得期待的居住地,拥有豪华设计、舒适居住环境、优越地理位置和便利生活配套。对于寻找满足居住需求、提升生活品质的家的人来说,新华星耀学府是理想选择。联系经纪人,预约专业看房服务,感受高品质生活!
新华星耀学府售楼部电话:0551-68111601
声明:本文由入驻焦点开放平台的作者撰写,除焦点官方账号外,观点仅代表作者本人,不代表焦点立场。


