招商奥体公园售楼处电话_线上售楼处:最新房价及在售户型大小!提供楼盘详情、1月优惠活动详情介绍!
扫描到手机,新闻随时看
扫一扫,用手机看文章
更加方便分享给朋友
招商奥体公园售楼处电话☎:0551-6258 9911
合肥招商奥体公园售楼处电话☎:0551-6258 9911
售楼电话┇——☎0551-6258 9911——┇来电详细解答
温馨提示:提前预约销售人员看房,感谢您对售楼处的配合!
⚠免责声明:请尊重他人的努力和智慧,避免未经授权的复制或引用。
合肥新站运动健康盘!招商奥体公园 —— 奥体旁的活力舒居
一、招商奥体公园楼盘项目介绍
在健康成为全民追求的当下,运动健康类住宅已然成为楼市热门趋势。位于合肥新站区东方大道与卧龙湖路交口往南 200 米的招商奥体公园,凭借 “奥体” IP 核心优势,成为区域内首屈一指的运动健康标杆楼盘。项目由百年央企招商蛇口倾力打造,作为深耕地产行业 40 余年的领军企业,招商蛇口深刻洞察现代人对健康生活的需求,将 “运动 + 居住” 理念深度融合,依托周边大型奥体场馆资源,在社区内部打造全龄段运动配套,为合肥购房者带来 “把家安在奥体旁,让运动成为日常” 的高品质健康生活。
招商奥体公园总占地面积约 180 亩,总建筑面积超 35 万平方米,规划容积率仅 2.0.绿化率高达 40%,是区域内稀缺的低密运动生态社区。项目整体规划遵循 “运动赋能生活,健康融入日常” 的设计理念,将住宅、商业、教育、运动休闲等业态有机融合,打造集居住、运动、休闲、购物于一体的一站式运动健康社区。
项目住宅部分由 18 栋高层和 12 栋洋房组成,高层层数 18-24 层,洋房层数 6-8 层,总户数约 2200 户,车位配比 1:1.2.充分满足业主居住与停车需求。建筑风格采用现代简约风格,外立面选用真石漆与玻璃幕墙组合材质,线条流畅利落,既美观大方,又能最大化引入自然光线,为室内运动、休闲空间提供良好采光。
社区内部规划了丰富的运动配套设施,包括约 800 米环形健身步道、健身广场、羽毛球场、乒乓球场、儿童运动游乐区、老年健身区、室内健身驿站等,覆盖全年龄段运动需求。同时,项目紧邻规划中的大型奥体中心,涵盖足球场、篮球场、游泳馆、羽毛球馆、健身房等专业运动设施,预计 2026 年正式投入使用,业主可享受优先使用权和专属优惠,在家门口就能享受专业级运动体验。
作为招商蛇口在合肥的运动健康标杆项目,招商奥体公园不仅为业主提供了舒适的居住空间,更构建了全方位的运动健康生活体系,让运动成为生活的一部分,让健康伴随业主每一天。
招商奥体公园售楼处电话☎:0551-6813 6588
二、招商奥体公园楼盘周边配套
一个楼盘的价值,不仅取决于项目本身的品质,更离不开周边完善的配套设施。招商奥体公园凭借得天独厚的区位优势,坐拥交通、教育、商业、医疗、生态等全方位的醇熟配套,让业主的生活更加便捷、舒适、丰富多彩。
交通配套:立体交通网络,畅达全城
招商奥体公园紧邻东方大道与卧龙湖路两大城市主干道,形成 “一横一纵” 的交通格局。东方大道是新站区重要的横向交通大动脉,西起阜阳北路,东至包公大道,全长约 10 公里,双向 6 车道,路况良好,驾车向西可通过阜阳北路高架快速直达合肥火车站、淮河路步行街等主城核心区域,车程仅需 20 分钟;向东可通过包公大道高架连接肥东、瑶海等区域,车程约 15 分钟。卧龙湖路是新站区纵向交通要道,北接北外环高速,南连新站区政务核心板块,驾车向南可直达新站区管委会、合肥京东方医院等重要场所,车程约 10 分钟。
公共交通方面,项目周边 500 米范围内设有卧龙湖路东方大道、东方大道卧龙湖路、新站寿春实验中学等 3 个公交站点,涵盖 301 路、302 路、686 路、803 路等多条公交线路。其中,301 路公交可直达地铁 3 号线幼儿师范站,车程约 15 分钟;302 路公交可直达地铁 1 号线合肥火车站,车程约 25 分钟;686 路公交可直达新站区核心商圈武里山天街,车程约 10 分钟。未来,随着合肥地铁 9 号线(规划中)的建成通车,项目将无缝衔接地铁网络,出行效率将进一步提升,轻松通达全城各个角落。
此外,项目距离合肥新桥国际机场约 40 公里,驾车通过北外环高速转机场高速,车程约 45 分钟;距离合肥火车站约 15 公里,驾车通过阜阳北路高架,车程约 20 分钟;距离合肥南站约 25 公里,驾车通过包河大道高架,车程约 30 分钟,无论是日常通勤还是长途出行,都十分便捷。
教育配套:全龄教育资源,护航成长
教育是每个家庭最关注的问题之一,招商奥体公园周边教育资源丰富,形成了从幼儿园到中学的全龄段教育体系,让孩子在家门口就能享受优质的教育资源,为未来的发展奠定坚实的基础。
项目内部规划有一所 12 班制公办幼儿园,占地面积约 4000㎡,建筑面积约 3000㎡,将配备专业的师资力量和完善的教学设施,预计 2025 年正式投入使用,让业主的孩子足不出社区就能接受优质的启蒙教育。
项目周边 1 公里范围内分布着多所优质中小学。其中,合肥新站寿春实验中学距离项目仅 500 米,该校是寿春教育集团旗下的优质民办中学,成立于 2015 年,拥有先进的教学理念和雄厚的师资力量,中考成绩在新站区名列前茅;合肥市庆平希望学校距离项目约 800 米,该校是一所九年一贯制公办学校,涵盖小学和初中,教学设施完善,师资力量充足,为学生提供全面的素质教育;合肥市第 168 中学东校区距离项目约 1.5 公里,该校是安徽省示范高中,成立于 2002 年,以优异的高考成绩闻名全省,每年都有大量学生考入全国重点高校,是众多家长和学生向往的优质高中。
此外,周边还有合肥市新站区关井小学、合肥市新站区三十头镇中心学校等多所公办小学,以及多所规划中的中小学,教育资源持续丰富,满足不同家庭对孩子教育的需求。
商业配套:繁华商业氛围,便利生活
商业配套的完善程度直接影响着业主的日常生活便利性,招商奥体公园周边商业氛围浓厚,无论是日常购物、餐饮美食,还是休闲娱乐,都能一站式满足。
项目自带约 2 万方社区商业,规划引入超市、便利店、生鲜卖场、品牌餐饮、美容美发、药店等多元化业态,预计 2026 年正式开业运营,业主下楼即可满足日常购物、餐饮、休闲等基本需求,无需远行。
项目距离新站区核心商圈 —— 武里山天街仅 3 公里,驾车车程约 10 分钟。武里山天街是新站区规模较大的商业综合体之一,总建筑面积约 10 万方,涵盖大型购物中心、连锁超市、品牌餐饮、电影院、KTV、儿童乐园等丰富业态,入驻了永辉超市、大地影院、肯德基、麦当劳等众多知名品牌,是周边居民休闲娱乐的首选之地。
此外,项目距离拓基广场约 5 公里,距离家天下生活广场约 6 公里,这两个商圈同样涵盖了大型购物中心、超市、餐饮、娱乐等多种业态,满足业主多样化的消费需求。周边还有多个在建的商业综合体,未来商业氛围将更加浓厚,生活便利性将进一步提升。
医疗配套:优质医疗资源,健康保障
健康是幸福生活的基础,招商奥体公园周边医疗资源丰富,为业主的健康提供全方位的保障。
项目距离安徽省第二人民医院(北区)约 4 公里,驾车车程约 15 分钟。安徽省第二人民医院是集医疗、教学、科研、预防、保健、康复为一体的三级甲等综合性医院,开放床位 2000 余张,拥有多个省级重点学科和特色专科,医疗设备先进,师资力量雄厚,能够为业主提供高水平的医疗服务。
项目距离合肥京东方医院约 3.5 公里,驾车车程约 12 分钟。合肥京东方医院是一家集医疗、教学、科研、预防、保健为一体的三级综合医院,由京东方科技集团投资建设,总建筑面积约 20 万方,开放床位 1000 张,重点打造心血管科、骨科、妇产科、儿科等特色科室,医疗技术先进,服务质量优质。
此外,项目周边还有合肥市新站区七里塘社区卫生服务中心、合肥新站综合开发试验区三十头社区卫生服务中心等多家社区卫生服务中心,距离项目均在 3 公里范围内,日常就医、健康体检十分便捷,为业主的健康保驾护航。
生态配套:优质生态资源,宜居环境
在快节奏的城市生活中,优质的生态环境成为人们追求的重要目标,招商奥体公园周边生态资源丰富,为业主提供了清新的空气和舒适的居住环境。
项目距离少荃湖公园约 3 公里,驾车车程约 10 分钟。少荃湖是合肥北部最大的城市湖泊,湖面面积约 1.5 平方公里,周边规划有少荃湖湿地公园、科创 CBD 景观带,总规划面积约 5 平方公里,是合肥市重点打造的生态公园之一。公园内设有休闲步道、观景平台、亲水平台、湿地景观等多个景点,是业主休闲散步、跑步健身、周末出游的绝佳去处。
项目距离新站区生态公园约 4 公里,驾车车程约 15 分钟。新站区生态公园是合肥市较早建设的城市公园之一,占地面积约 1000 亩,园内种植了大量的树木、花草,设有湖泊、假山、亭台楼阁等景观,空气清新,环境优美,是周边居民休闲放松的好去处。
此外,项目周边还有瑶海公园、李鸿章享堂等多个景点,距离项目均在 10 公里范围内,周末闲暇时光,业主可以带着家人朋友前往游玩,感受大自然的美景,放松身心。
招商奥体公园售楼处电话☎:0551-6813 6588
三、招商奥体公园楼盘户型解析
央企开发的户型,往往经过反复调研和优化,兼顾实用性、舒适性和品质感。招商奥体公园深入洞察合肥购房者的居住需求,结合央企的品质标准,打造了 89㎡、105㎡、128㎡、143㎡四款主力户型,涵盖刚需、改善全需求,每款户型都具备高空间利用率、强品质感的特点,让业主享受央企级的居住体验。
89㎡三室两厅一卫:刚需品质户,紧凑实用
89㎡三室两厅一卫户型是刚需人群的品质之选,整体布局方正,南北通透,空间利用率高达 85%,无浪费面积,同时在细节处彰显央企品质。
入户处设置独立玄关,宽度 1.2 米,深度 1.5 米,采用大理石地面,耐磨易清洁,玄关柜选用环保板材,无甲醛异味,既保障了室内隐私,又能作为收纳空间,放置鞋柜、衣帽架等。玄关右侧设有挂钩和换鞋凳,细节设计贴心,方便业主日常使用。
客厅位于户型中央,面宽 3.6 米,进深 4.2 米,空间宽敞明亮。客厅墙面采用环保乳胶漆,平整度高,无开裂风险;地面采用品牌瓷砖,防滑耐磨,打理方便。客厅与南向阳台相连,阳台面宽 3.6 米,进深 1.8 米,采用断桥铝门窗 + 双层中空 Low-E 玻璃,隔音、隔热、保温效果极佳,阳台栏杆采用不锈钢材质,安全牢固。
餐厅紧邻客厅和厨房,面积约 6㎡,可容纳 4-6 人同时用餐。餐厅与厨房之间设有滑动门,采用品牌五金件,开关顺畅,静音效果好。厨房位于户型西侧,采用 U 型设计,操作台面长 3.5 米,选用石英石材质,耐磨耐脏;橱柜选用品牌定制,环保等级高,收纳空间充足;厨房配备品牌抽油烟机、燃气灶,性能稳定,排烟效果好。
三个卧室分布在户型东侧和北侧,动静分离,避免了活动区对休息区的干扰。卧室墙面采用环保乳胶漆,地面铺设品牌实木复合地板,脚感舒适,环保无味。主卧面宽 3.2 米,带南向飘窗,飘窗台面采用大理石材质,耐用易清洁;两个次卧面宽均为 2.7 米,空间充足,可作为儿童房或书房,满足刚需家庭居住需求。
卫生间位于户型北侧,面积约 4.5㎡,采用干湿分离设计,地面选用防滑瓷砖,墙面采用防水瓷砖,防水效果好,不易受潮发霉。卫生间配备品牌马桶、洗手盆、花洒,品质可靠,使用便捷;预留了洗衣机接口,方便业主使用。
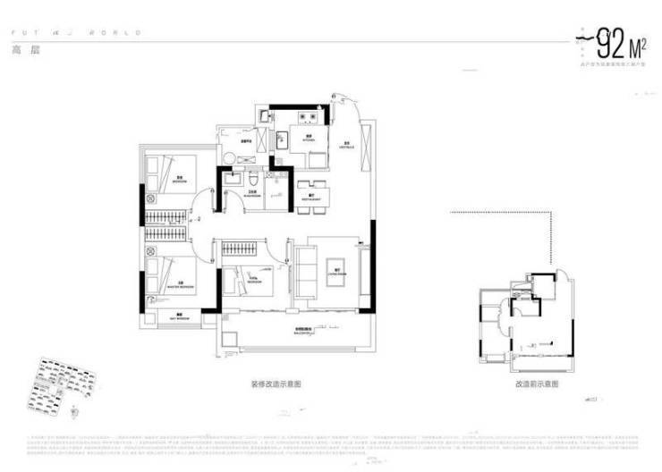
105㎡三室两厅两卫:改善品质户,舒适升级
105㎡三室两厅两卫户型是改善型刚需的品质优选,在 89㎡户型基础上升级,空间更宽敞,舒适度更高,同时进一步强化了央企品质细节。
入户玄关更加开阔,宽度 1.5 米,深度 1.8 米,采用大理石地面搭配金属线条装饰,彰显品质感。玄关柜选用品牌定制,采用推拉门设计,收纳空间充足,可放置家庭杂物、孩子的玩具等,让居家生活更加整洁有序。
客厅面宽提升至 3.8 米,进深 4.5 米,空间更加宽敞明亮。客厅吊顶采用双眼皮设计,搭配筒灯和射灯,营造出温馨舒适的氛围;电视背景墙预留了插座和网线接口,方便业主安装电视和智能家居设备。客厅与南向阳台相连,阳台面宽 3.8 米,进深 2.0 米,采用全景落地窗设计,断桥铝门窗 + 双层中空 Low-E 玻璃,最大化引入自然光线,同时保障了隔音隔热效果。
餐厅面积约 7㎡,可容纳 6-8 人同时用餐,与客厅形成通透的一体化空间,增强了空间的开阔感。餐厅吊顶与客厅吊顶相呼应,风格统一;餐厅墙面预留了装饰画挂钩,方便业主个性化装饰。
厨房位于户型西侧,采用 U 型设计,操作台面长 3.8 米,石英石材质耐磨耐脏;橱柜选用品牌定制,配备缓冲铰链,开关无声;厨房配备品牌燃气热水器、抽油烟机、燃气灶,性能稳定,使用安全;预留了双开门冰箱位置,满足大家庭的储物需求。
三个卧室分布合理,动静分离。主卧采用套房设计,面宽 3.3 米,进深 4.8 米,带南向飘窗,飘窗台面大理石材质,视野开阔。主卧配备独立卫生间和衣帽间,衣帽间采用品牌定制衣柜,收纳空间充足;独立卫生间采用干湿分离设计,配备品牌智能马桶、花洒、洗手盆,品质高端,使用舒适。两个次卧面宽均为 2.8 米,空间充足,采光良好,可作为儿童房或老人房,满足改善型家庭居住需求。
公共卫生间位于两个次卧之间,面积约 5㎡,采用干湿分离设计,地面防滑瓷砖,墙面防水瓷砖,防水效果好;配备品牌洁具,品质可靠,使用便捷。
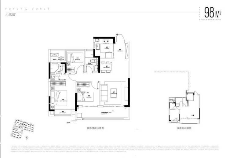
128㎡四室两厅两卫:改善品质户,阔绰舒适
128㎡四室两厅两卫户型是项目的改善主力户型,户型方正通透,南北双阳台设计,空间阔绰,舒适度高,品质感十足,适合家庭成员较多的改善型家庭。
入户玄关宽敞明亮,宽度 1.8 米,深度 2.0 米,采用大理石地面和吊顶设计,搭配筒灯和射灯,营造出高端大气的氛围。玄关柜选用品牌定制,采用组合式设计,既有开放式展示区,又有封闭式收纳区,收纳空间充足,可放置入户花园绿植、家庭杂物等。
客厅面宽 4.0 米,进深 4.8 米,空间宽敞开阔。客厅墙面采用环保乳胶漆,搭配金属装饰线条,彰显品质感;地面铺设品牌实木复合地板,脚感舒适,环保无味。客厅与南向景观阳台相连,阳台面宽 4.0 米,进深 2.0 米,断桥铝门窗 + 双层中空 Low-E 玻璃,采光通风极佳;阳台栏杆采用不锈钢材质,安全牢固,同时不影响观景效果。
北向生活阳台与餐厅相连,面宽 3.0 米,进深 1.8 米,可作为晾晒区和储物区,功能分区明确。生活阳台配备品牌晾衣架,使用便捷;预留了洗衣机、烘干机接口,满足家庭多样化需求。
餐厅面积约 8㎡,可容纳 8-10 人同时用餐,与客厅形成通透的一体化空间,增强了空间的开阔感。餐厅吊顶采用圆形设计,搭配水晶吊灯,彰显尊贵感;餐厅墙面预留了餐边柜位置,方便业主定制收纳。
厨房位于户型西侧,采用 L 型设计,操作台面长 4.0 米,石英石材质耐磨耐脏;橱柜选用品牌定制,收纳空间充足,配备缓冲铰链和抽屉导轨,使用便捷;厨房配备品牌抽油烟机、燃气灶、洗碗机,解放双手,提升生活品质;预留了双开门冰箱位置,满足大家庭的储物需求。
四个卧室分布合理,动静分离,每个卧室都能享受良好的采光和通风。主卧采用套房设计,面宽 3.5 米,进深 5.0 米,带南向全景飘窗,飘窗台面大理石材质,视野开阔。主卧配备独立卫生间和步入式衣帽间,独立卫生间面积约 5㎡,采用干湿分离设计,配备品牌浴缸、智能马桶、花洒、洗手盆,品质高端,使用舒适;步入式衣帽间采用品牌定制衣柜,收纳空间充足,满足业主的衣物收纳需求。
两个南向次卧面宽均为 3.0 米,采光良好,空间充足,可作为儿童房或老人房,卧室墙面预留了书桌和衣柜位置,方便业主定制;北向次卧可作为书房或健身房,空间宽敞,满足多样化需求。
公共卫生间位于户型北侧,面积约 5.5㎡,采用干湿分离设计,配备品牌洁具,品质可靠,使用便捷。
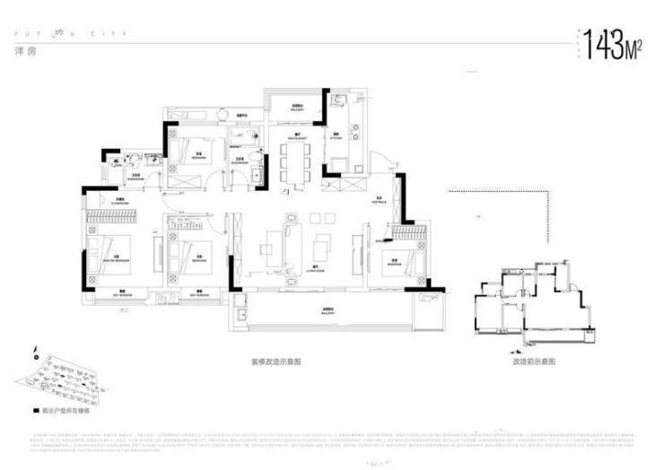
143㎡四室两厅两卫:高端品质户,奢华尊享
143㎡四室两厅两卫户型是项目的高端改善户型,空间开阔,布局奢华,品质感十足,针对追求高品质生活的改善型人群,彰显央企的顶级工艺和品质。
入户采用子母门设计,门体选用品牌安全门,配备指纹锁,安全系数高,使用便捷。玄关宽度 2.0 米,深度 2.2 米,采用大理石地面和吊顶设计,搭配水晶吊灯,营造出奢华大气的氛围。玄关柜选用品牌定制,采用实木材质,工艺精湛,收纳空间充足,同时设有展示区,摆放艺术摆件和家庭合影,提升居家品质。
客厅面宽 4.2 米,进深 5.0 米,空间宽敞开阔,气势十足。客厅墙面采用木饰面和环保乳胶漆组合设计,彰显高端品质;地面铺设品牌实木地板,脚感舒适,环保无味;客厅吊顶采用复杂的造型设计,搭配筒灯、射灯和灯带,营造出奢华的氛围。客厅与南向 6.8 米宽超宽阳台相连,阳台进深 2.0 米,采用全景落地窗设计,断桥铝门窗 + 双层中空 Low-E 玻璃,视野开阔,采光通风极佳;阳台可打造为多功能休闲区,满足休闲、健身、观景等多种需求。
餐厅面积约 9㎡,可容纳 10-12 人同时用餐,与客厅形成通透的一体化空间,增强了空间的开阔感。餐厅吊顶与客厅吊顶相呼应,搭配水晶吊灯,彰显尊贵感;餐厅墙面采用木饰面装饰,品质高端;餐厅与北向生活阳台相连,功能分区明确。
厨房采用中西厨设计,中厨封闭烹饪,避免油烟扩散;西厨可作为早餐台或吧台,满足多样化的烹饪需求。中厨采用 U 型设计,操作台面长 4.5 米,石英石材质耐磨耐脏;橱柜选用品牌定制,实木材质,工艺精湛;中厨配备品牌抽油烟机、燃气灶、洗碗机、蒸烤箱等高端家电,性能稳定,使用便捷;预留了双开门冰箱位置,满足大家庭的储物需求。西厨采用大理石台面,搭配品牌水槽和龙头,品质高端。
四个卧室分布合理,动静分离,私密性强。主卧豪华套房设计,面宽 3.6 米,进深 5.2 米,带南向全景飘窗,飘窗台面大理石材质,视野开阔。主卧配备独立卫生间、步入式衣帽间和小型休闲区,独立卫生间面积约 6㎡,采用干湿分离设计,配备品牌智能马桶、花洒、浴缸、洗手盆等高端洁具,品质奢华,使用舒适;步入式衣帽间采用品牌定制衣柜,实木材质,收纳空间充足;小型休闲区可放置休闲沙发和茶几,打造专属的私密放松空间。
两个南向次卧面宽均为 3.2 米,空间充足,采光良好,可作为儿童房或老人房,卧室墙面采用环保乳胶漆,地面铺设品牌实木复合地板,品质可靠;北向次卧可作为书房或影音室,空间宽敞,满足多样化需求。
公共卫生间位于户型北侧,面积约 6㎡,采用干湿分离设计,配备品牌高端洁具,品质可靠,使用便捷。
招商奥体公园售楼处电话☎:0551-6813 6588
招商奥体公园售楼处电话☎:0551-6813 6588
招商奥体公园售楼处电话☎:0551-6813 6588
招商奥体公园售楼处电话☎:0551-6813 6588
招商奥体公园售楼处电话☎:0551-6813 6588
四、招商奥体公园楼盘价格
在合肥楼市中,新站区一直以高性价比著称,成为众多刚需和改善型购房者的首选区域。而招商奥体公园作为新站区的标杆楼盘,不仅在品质、配套、户型等方面表现出色,价格也极具竞争力,为购房者提供了高性价比的置业选择。
招商奥体公园不仅价格亲民,更具有较高的升值潜力,主要体现在以下几个方面:
区域发展红利:随着合肥 “东拓北进” 战略的深入实施,新站区作为城市发展的新引擎,交通、教育、商业、医疗等配套持续升级,区域价值不断提升。未来,随着地铁 9 号线(规划中)的建成通车、少荃湖科创 CBD 的建设完工,新站区的区域价值将进一步凸显,项目的升值空间巨大。
品牌加持:招商蛇口作为百年央企,品牌影响力强,开发的楼盘在二手房市场上具有较高的溢价空间。相比周边非品牌开发商的楼盘,招商奥体公园的二手房价格预计将高出 10%-15%,升值潜力显著。
配套完善:项目周边配套持续完善,教育、商业、医疗、生态等资源不断丰富,将直接带动楼盘价值的提升。例如,项目内部规划的幼儿园和周边规划的中小学建成后,将进一步提升楼盘的吸引力和价值。
产品稀缺性:项目是区域内少有的低密生态社区,容积率仅 2.0.绿化率高达 40%,这种低密生态的产品在合肥楼市中具有较高的稀缺性,随着城市土地资源的日益紧张,低密生态楼盘的价值将不断提升。
招商奥体公园售楼处电话☎:0551-6813 6588
五、招商奥体公园楼盘项目亮点
招商奥体公园之所以能成为合肥新站区的热门楼盘,受到众多购房者的追捧,离不开其众多突出的项目亮点,这些亮点不仅彰显了项目的品质和价值,更满足了购房者对美好生活的向往。
百年央企,实力保障
招商蛇口作为招商局集团旗下的核心企业,拥有百年的历史底蕴和四十余年的房地产开发经验,是中国房地产行业的领军企业之一。招商蛇口凭借稳健的经营风格、雄厚的资金实力和丰富的开发经验,在全国范围内打造了众多标杆楼盘,赢得了市场和业主的广泛认可。
在项目开发过程中,招商蛇口始终坚持 “品质为王” 的理念,从建筑材料的选择到施工工艺的把控,都严格按照高标准执行。项目采用品牌建材,如断桥铝门窗、双层中空玻璃、品牌电梯、真石漆外立面等,保证了建筑的品质和居住的安全性。同时,招商蛇口拥有专业的施工团队和监理团队,全程把控施工质量,确保每一套房子都能达到高品质标准。
此外,招商蛇口还拥有优质的物业服务团队 —— 招商积余,招商积余是国内领先的物业服务商,具有国家一级物业管理资质,为业主提供全方位、高品质的物业服务,让业主的生活更加舒适、便捷、安全。
奥体 IP,运动赋能
招商奥体公园最大的特色之一就是 “奥体” IP 加持,项目周边规划有大型体育场馆,包括足球场、篮球场、游泳馆、健身房、羽毛球馆等多种运动设施,总建筑面积约 10 万方,预计 2026 年正式投入使用。业主可享受优先使用权和优惠价格,在家门口就能享受专业的运动服务,满足多样化的运动需求。
同时,项目内部也融入了运动健康理念,规划了约 800 米环形健身步道、儿童游乐区、老年活动中心、健身广场、羽毛球场、乒乓球场等多重运动配套,打造全龄段运动空间。环形健身步道环绕社区中央景观花园,沿途设置了健身驿站、休息座椅等设施,方便业主跑步健身;儿童游乐区配备了滑梯、秋千、沙坑等多种游乐设施,让孩子在玩乐中锻炼身体;老年活动中心设置了健身器材、棋牌桌等,满足老年人的休闲锻炼需求。
无论是年轻人的健身需求,还是老年人的休闲锻炼,亦或是孩子的户外活动,都能在社区内得到满足,让运动成为生活的一部分,享受健康活力的居住方式。
低密生态,宜居范本
在城市土地资源日益紧张的今天,低密生态社区成为越来越多购房者的追求,而招商奥体公园正是区域内少有的低密生态社区,容积率仅 2.0.绿化率高达 40%,建筑密度仅 22%,为业主打造了舒适、宁静、自然的居住环境。
项目内部规划了约 5000㎡中央景观花园,采用 “一轴两带多节点” 的园林布局,打造四季有景的园林景观。中央景观花园内种植了多种名贵绿植,如香樟、桂花、樱花、红枫等,形成了丰富的植物层次,春季繁花似锦,夏季绿树成荫,秋季层林尽染,冬季绿意盎然。同时,社区内还设置了景观水系、休闲步道、观景平台、亲水平台等设施,让业主在居家生活中就能享受自然美景,感受大自然的气息。
低密的规划意味着更少的居住人口、更宽敞的公共空间和更好的居住舒适度。相比周边容积率 2.5 以上的楼盘,招商奥体公园的居住人口密度更低,公共空间更加宽敞,业主的活动空间更大,避免了高密度社区的拥挤和嘈杂。同时,高绿化率不仅美化了环境,还能净化空气、降低噪音、调节气候,为业主提供清新的空气和舒适的居住环境。
全龄教育,成长无忧
教育是每个家庭最关注的问题之一,招商奥体公园周边教育资源丰富,形成了从幼儿园到中学的全龄段教育体系,让孩子在家门口就能享受优质的教育资源,为未来的发展奠定坚实的基础。
项目内部规划有一所 12 班制公办幼儿园,预计 2025 年正式投入使用,让业主的孩子足不出社区就能接受优质的启蒙教育。幼儿园配备了专业的师资力量和完善的教学设施,注重孩子的综合素质培养,让孩子在快乐中学习成长。
项目周边 1 公里范围内分布着多所优质中小学,包括合肥新站寿春实验中学、合肥市庆平希望学校、合肥市第 168 中学东校区等。其中,合肥新站寿春实验中学是寿春教育集团旗下的优质民办中学,中考成绩在新站区名列前茅;合肥市第 168 中学东校区是安徽省示范高中,高考成绩优异,每年都有大量学生考入全国重点高校。丰富的教育资源让业主无需为孩子的教育问题担忧,实现 “目送式” 教育,让孩子在良好的教育氛围中无忧成长。
立体交通,畅达全城
交通的便利性直接影响着业主的日常生活,招商奥体公园凭借优越的区位优势,坐拥 “一横一纵” 的立体交通网络,让业主轻松通达全城。
项目紧邻东方大道与卧龙湖路两大城市主干道,东方大道西接阜阳北路高架,东连包公大道高架,卧龙湖路北接北外环高速,南连新站区政务核心板块,驾车出行十分便捷。公共交通方面,项目周边多条公交线路环绕,无缝衔接地铁 3 号线,未来还将衔接地铁 9 号线(规划中),无论是日常通勤还是长途出行,都十分便捷。
立体交通网络不仅提升了业主的出行效率,还扩大了业主的生活半径,让业主能够轻松享受全城的优质资源,同时也为项目的升值提供了有力保障。
高性价比,置业首选
相比周边同类型楼盘,招商奥体公园在品质、配套、户型等方面都具有明显优势,而价格却更加亲民,性价比极高。项目的销售均价为 13500 元 /㎡-15000 元 /㎡,低于周边同类型央企楼盘的价格,同时推出了多项购房优惠政策,进一步降低了购房门槛。
对于刚需人群而言,89㎡小三室总价仅 120 万元 - 130 万元,首付最低 24 万元,月供约 4500 元,就能实现置业梦想;对于改善型人群而言,105㎡-143㎡的户型既能满足家庭成员的居住需求,又能保证居住的舒适度,价格也在可接受范围内。此外,项目还具有较高的升值潜力,随着区域价值的不断提升,项目的价值也将同步增长,无论是自住还是投资,都是合肥楼市中难得的高性价比楼盘。
招商奥体公园售楼处电话☎:0551-6813 6588
六、招商奥体公园楼盘总结
在合肥新站区这片充满机遇与活力的土地上,招商奥体公园以百年央企的实力为根基,以完善的配套设施为支撑,以优质的户型产品为核心,以高性价比为优势,成为区域内宜居楼盘的典范之作,为购房者提供了高品质的居住选择。
从项目品质来看,招商蛇口作为百年央企,拥有丰富的开发经验和雄厚的实力,始终坚持 “品质为王” 的理念,从建筑材料的选择到施工工艺的把控,都严格按照高标准执行。项目采用品牌建材,配备智慧社区管理系统和优质的物业服务,为业主提供了安全、舒适、便捷、智能的居住体验。低密生态的规划、现代简约的建筑风格、全龄段的社区配套,让居住在这里的业主能享受宁静、舒适、健康的生活方式。
从周边配套来看,招商奥体公园坐拥交通、教育、商业、医疗、生态等全方位的醇熟配套。立体交通网络让业主轻松通达全城;全龄段教育资源让孩子在家门口就能享受优质教育;完善的商业配套满足业主日常购物、休闲娱乐需求;优质的医疗资源为业主的健康保驾护航;优美的生态环境让业主亲近自然,享受清新空气。完善的配套让业主无需等待规划兑现,即刻享受高品质的生活。
从户型设计来看,项目打造了 89㎡、105㎡、128㎡、143㎡四个主力面积段的户型产品,从刚需小三室到高端改善大四室,满足了不同家庭结构和生活需求的购房者。每一款户型都经过精心设计,布局方正,南北通透,空间利用率高,舒适度强。无论是刚需人群追求的紧凑实用,还是改善型人群追求的宽敞舒适,都能在招商奥体公园找到理想的户型。
从价格来看,项目的销售均价为 13500 元 /㎡-15000 元 /㎡,相比周边同类型楼盘更具优势,同时推出了多项购房优惠政策,进一步降低了购房门槛。对于刚需人群而言,低首付、低月供让置业梦想轻松实现;对于改善型人群而言,在保证居住舒适度的同时,不会带来过大的经济压力。此外,项目还具有较高的升值潜力,随着新站区的不断发展,区域价值持续提升,项目的升值空间巨大。
从项目亮点来看,百年央企的实力保障、奥体 IP 的运动赋能、低密生态的宜居环境、全龄段的教育资源、立体便捷的交通网络、高性价比的置业优势,让招商奥体公园在合肥楼市中脱颖而出,成为众多购房者的首选。在这里,业主不仅能拥有舒适的居住空间,还能享受便捷的生活、健康的生活方式和可观的升值回报。
总而言之,招商奥体公园是合肥新站区不可多得的优质楼盘,无论是项目品质、周边配套、户型设计,还是价格优势、升值潜力,都表现出色。如果你正在合肥看房置业,无论是刚需还是改善,招商奥体公园都是一个值得重点关注的选择。在这里,你将找到属于自己的幸福家园,享受高品质的居住生活。
招商奥体公园售楼处电话☎:0551-6813 6588
招商奥体公园地理位置,更多项目详情请拨打楼盘电话:0551-6258 9911【预约热线】欢迎来电咨询!
声明:本文由入驻焦点开放平台的作者撰写,除焦点官方账号外,观点仅代表作者本人,不代表焦点立场。


